| ||||||||||||||||||||||||
Скачать Типовые проектные решения 400-040.91 Альбом 2. Здание пролетом 6 м. Архитектурные решения. Конструкции железобетонные. Конструкции металлическиеДата актуализации: 10.08.2017
|
| Обозначение: | Типовые проектные решения 400-040.91 |
| Обозначение англ: | 400-040.91 |
| Статус: | cправочные материалы, мп, тпр |
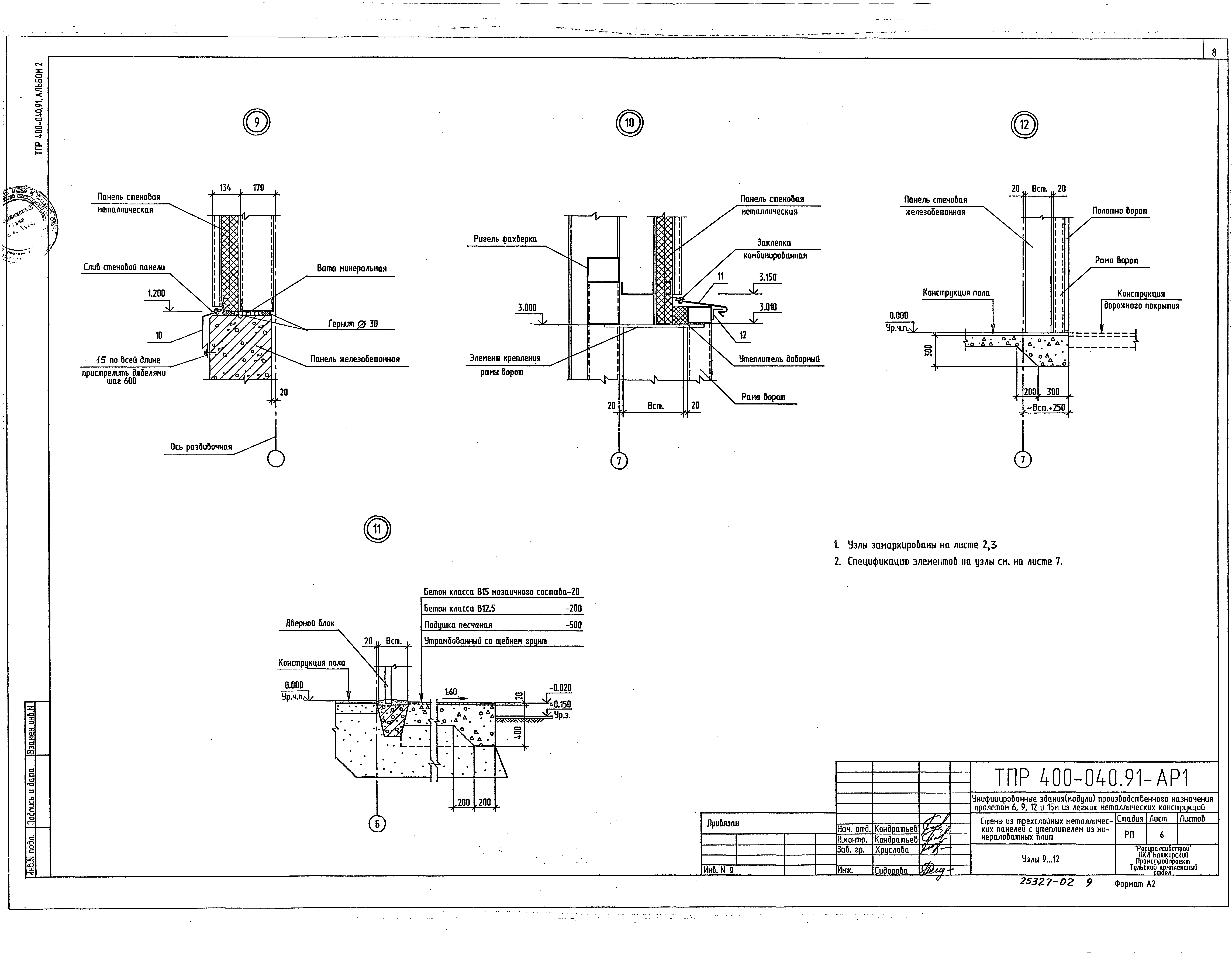
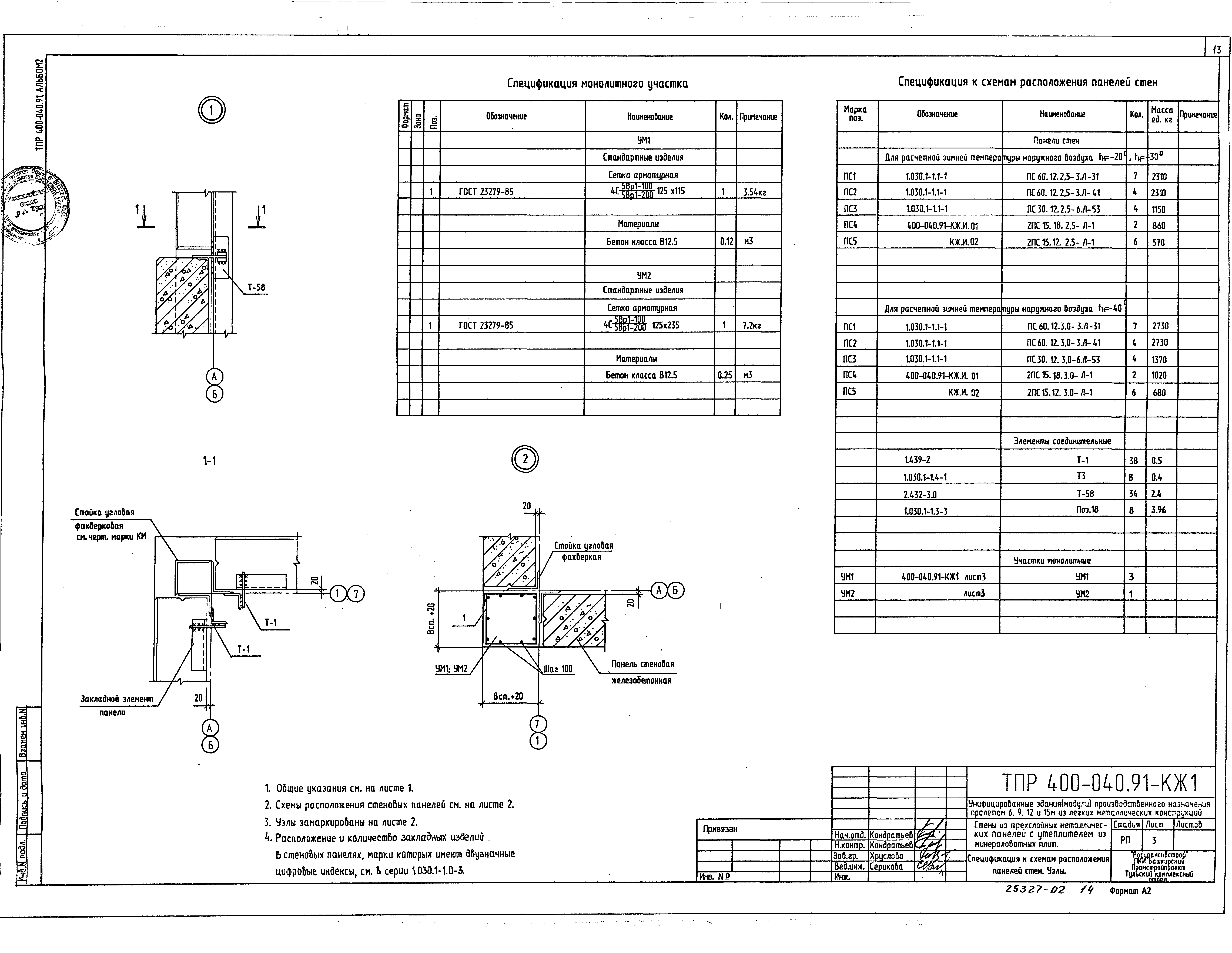
| Название рус.: | Альбом 2. Здание пролетом 6 м. Архитектурные решения. Конструкции железобетонные. Конструкции металлические |
| Дата добавления в базу: | 01.09.2013 |
| Дата актуализации: | 05.05.2017 |
| Дата введения: | 25.12.1991 |
| Разработан: | Тульский КО Башкирского Промстройпроекта |
| Утверждён: | 25.12.1991 Ассоциация Росуралсибпроект (12-91) |
| Расположен в: |


































