Информационная система
«Ёшкин Кот»

Скачать базу одним архивом
Скачать обновления
История создания базы
Карта сайта

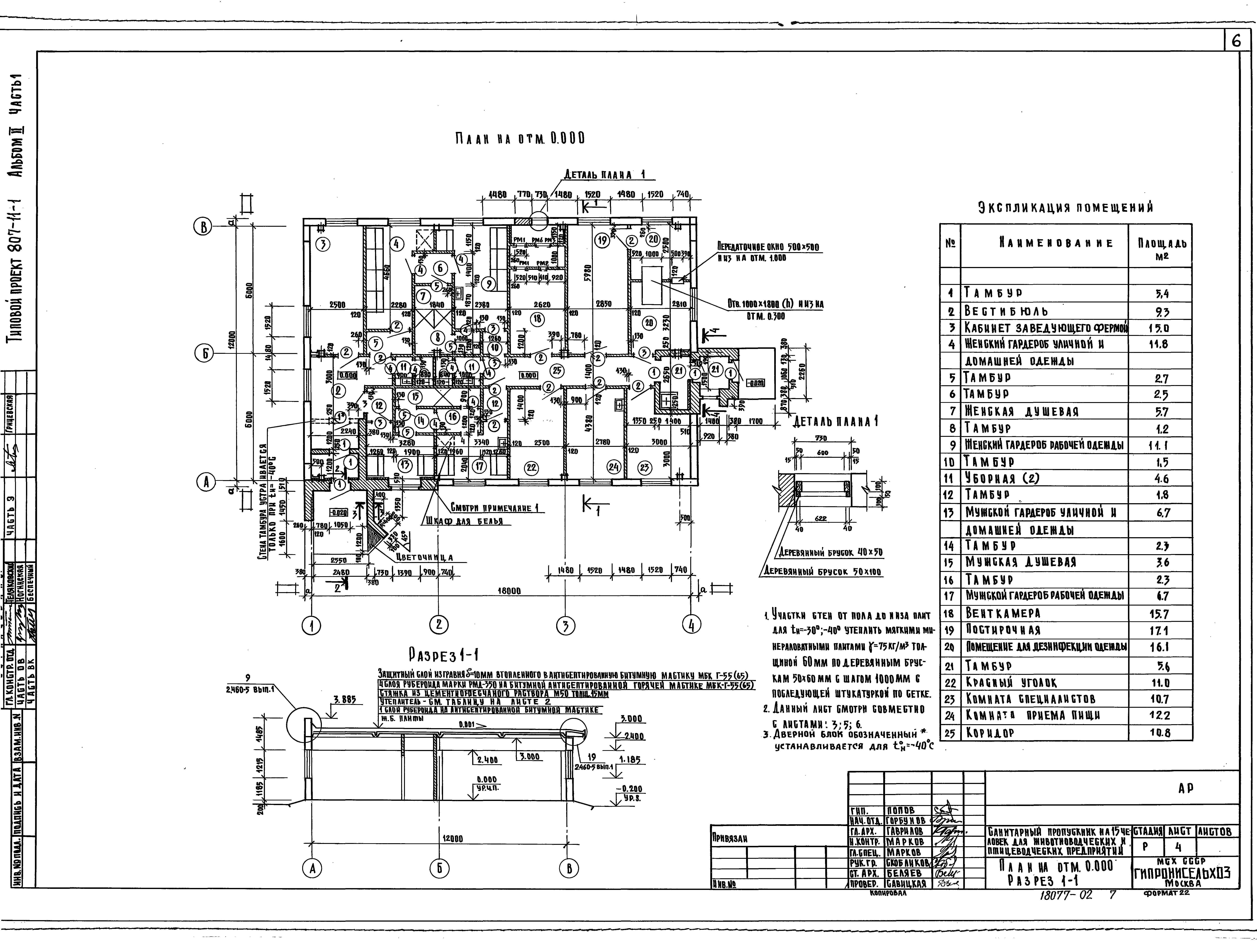
Скачать Типовой проект 807-11-1 Альбом II. Часть 1. Архитектурно-строительные решения. Конструкции железобетонные. Вариант со сборным железобетонным каркасом и панельными стенами

Дата актуализации: 10.08.2017

Типовой проект 807-11-1

Альбом II. Часть 1. Архитектурно-строительные решения. Конструкции железобетонные. Вариант со сборным железобетонным каркасом и панельными стенами

Обозначение: Типовой проект 807-11-1
Обозначение англ: 807-11-1
Статус:не определен законодательством
Название рус.:Альбом II. Часть 1. Архитектурно-строительные решения. Конструкции железобетонные. Вариант со сборным железобетонным каркасом и панельными стенами
Дата добавления в базу:01.09.2013
Дата актуализации:05.05.2017
Дата введения:21.09.1981
Разработан: ГипроНИсельхоз (Институт Гипронисельхоз )
Утверждён:13.07.1981 Главсельстройпроект Минсельхоза СССР (Glavselstroyproject, USSR Minselkhoz 63)
Расположен в:Техническая документация Строительство Справочные документы Типовые строительные конструкции, изделия и узлы Общероссийский строительный каталог Сельскохозяйственные предприятия, здания и сооружения Здания и сооружения ветеринарные, зоотехнические, агрономические и санпропускники Санпропускники
Типовой проект 807-11-1Типовой проект 807-11-1Типовой проект 807-11-1Типовой проект 807-11-1Типовой проект 807-11-1Типовой проект 807-11-1Типовой проект 807-11-1Типовой проект 807-11-1Типовой проект 807-11-1Типовой проект 807-11-1Типовой проект 807-11-1Типовой проект 807-11-1Типовой проект 807-11-1Типовой проект 807-11-1Типовой проект 807-11-1

© 2013 Ёшкин Кот :-) Карта сайта