Информационная система
«Ёшкин Кот»

Скачать базу одним архивом
Скачать обновления
История создания базы
Карта сайта

Скачать Типовой проект 407-3-645.94 Альбом 3. Строительные изделия

Дата актуализации: 10.08.2017

Типовой проект 407-3-645.94

Альбом 3. Строительные изделия

Обозначение: Типовой проект 407-3-645.94
Обозначение англ: 407-3-645.94
Статус:не определен законодательством
Название рус.:Альбом 3. Строительные изделия
Дата добавления в базу:01.09.2013
Дата актуализации:05.05.2017
Дата введения:05.07.1994
Оглавление:407-3-645.94-АС.И Содержание альбома
407-3-645.94-АС.И-ТТ Технические требования
407-3-645.94-АС.И-1 Колонны 1К48-4М2-А и 1К48-4М2-Б
407-3-645.94-АС.И-2 Колонна 1К48-4М2-В
407-3-645.94-АС.И-3 Колонна 1К48-4М2-Г
407-3-645.94-АС.И-4 Кровельная балка БСП9.2-6АIV-1
407-3-645.94-АС.И-5 Плита 4ПГ6-3АmV
407-3-645.94-АС.И-6 Изделие закладное Т-1
407-3-645.94-АС.И-7 Изделие закладное Т-2
407-3-645.94-АС.И-8 Марка Т-10
407-3-645.94-АС.И-9 Марка Т-12
407-3-645.94-АС.И-10 Ограждение Т-13
407-3-645.94-АС.И-11 Кронштейны Т-14, Т-15
407-3-645.94-АС.И-12 Марка М-2
407-3-645.94-АС.И-13 Изделие закладное Т-5
407-3-645.94-АС.И-14 Марка МП (МП-3, МП-4)
407-3-645.94-АС.И-15 Марка МН-2
407-3-645.94-АС.И-16 Марка Т-28
407-3-645.94-АС.И-17 Изделие закладное МН-3
407-3-645.94-АС.И-18 Марка МП-1
407-3-645.94-АС.И-19 Марка МП-2
407-3-645.94-АС.И-20 Марка КМ (КМ-1, КМ-2)
407-3-645.94-АС.И-21 Марка КМ-3
407-3-645.94-АС.И-22 Марка КМ-4
407-3-645.94-АС.И-23 Марка КМ-5
407-3-645.94-АС.И-24 Марка КМ-6
407-3-645.94-АС.И-25 Марка КМ-7
407-3-645.94-АС.И-26 Металлическая дверь МД-1
407-3-645.94-АС.И-27 Металлическая дверь МД-1. Комплекты "П", "Р"
407-3-645.94-АС.И-28 Металлическая дверь МД-1. Комплекты "Ж", "Л"
407-3-645.94-АС.И-29 Металлическая дверь МД-1. Комплект "И"
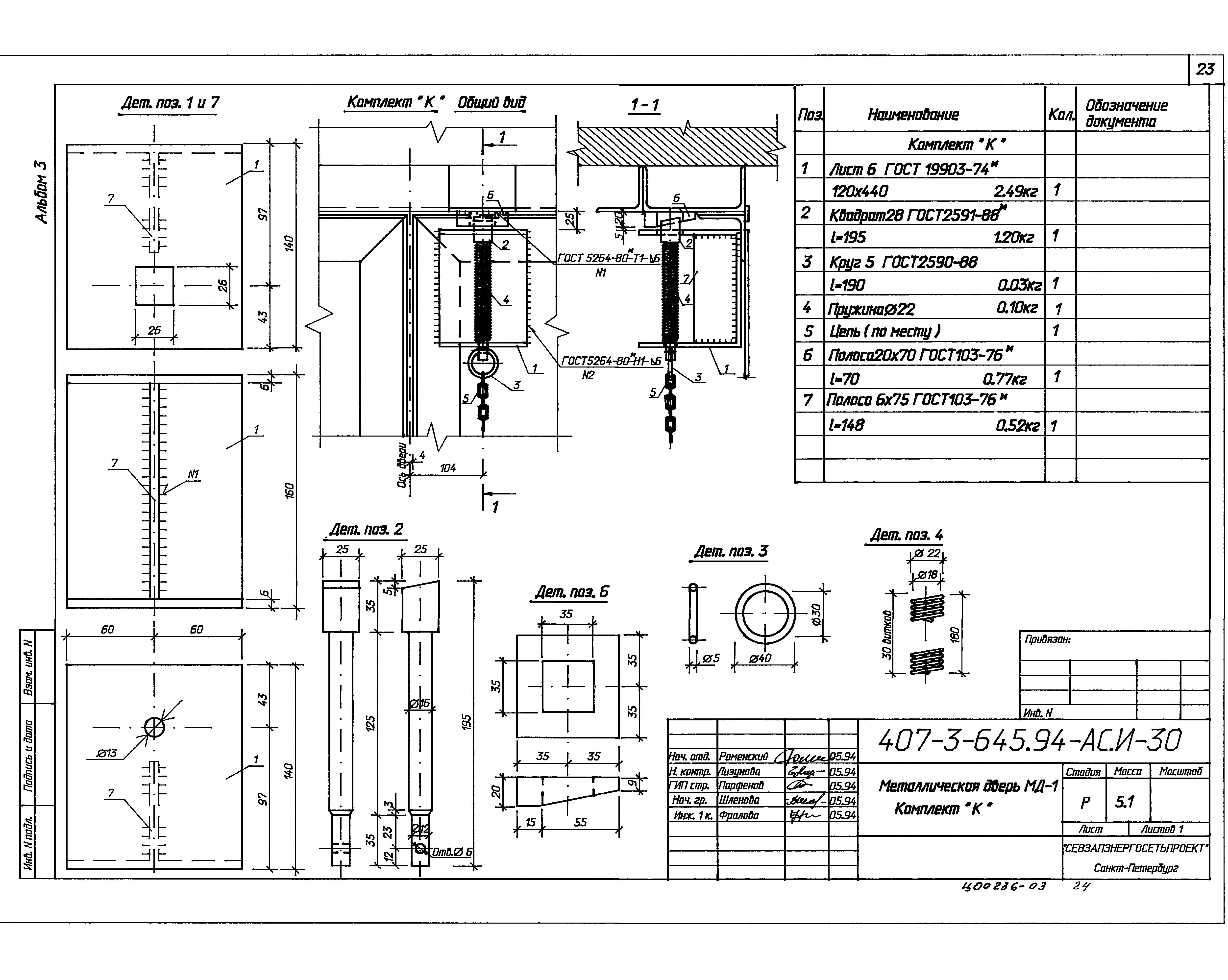
407-3-645.94-АС.И-30 Металлическая дверь МД-1. Комплект "К"
407-3-645.94-АС.И-31 Металлическая дверь МД-1. Комплекты "Г", "В", "Б"
407-3-645.94-АС.И-32 Марка Т-25
407-3-645.94-АС.И-33 Марка Т-30
Разработан: Севзапэнергосетьпроект
Утверждён:05.07.1994 Минтопэнерго России (Russian Federation Mintopenergo 4)
Расположен в:Техническая документация Строительство Справочные документы Типовые строительные конструкции, изделия и узлы Общероссийский строительный каталог Промышленные предприятия, здания и сооружения Предприятия, здания и сооружения промышленности и электроэнергетики Электроэнергетика Устройства и подстанции распределительные
Типовой проект 407-3-645.94Типовой проект 407-3-645.94Типовой проект 407-3-645.94Типовой проект 407-3-645.94Типовой проект 407-3-645.94Типовой проект 407-3-645.94Типовой проект 407-3-645.94Типовой проект 407-3-645.94Типовой проект 407-3-645.94Типовой проект 407-3-645.94Типовой проект 407-3-645.94Типовой проект 407-3-645.94Типовой проект 407-3-645.94Типовой проект 407-3-645.94Типовой проект 407-3-645.94Типовой проект 407-3-645.94Типовой проект 407-3-645.94Типовой проект 407-3-645.94Типовой проект 407-3-645.94Типовой проект 407-3-645.94Типовой проект 407-3-645.94Типовой проект 407-3-645.94Типовой проект 407-3-645.94Типовой проект 407-3-645.94Типовой проект 407-3-645.94Типовой проект 407-3-645.94

© 2013 Ёшкин Кот :-) Карта сайта