Информационная система
«Ёшкин Кот»

Скачать базу одним архивом
Скачать обновления
История создания базы
Карта сайта

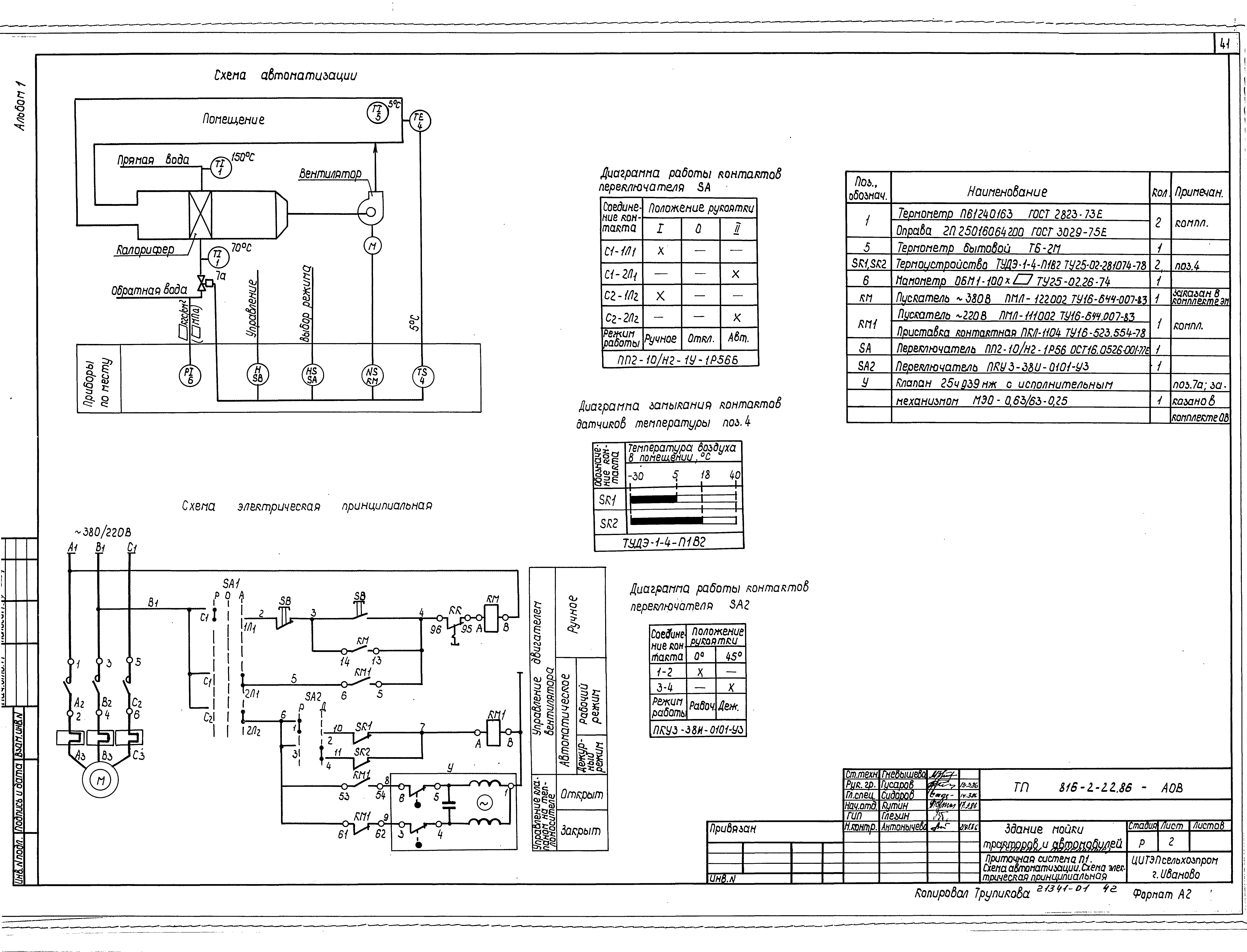
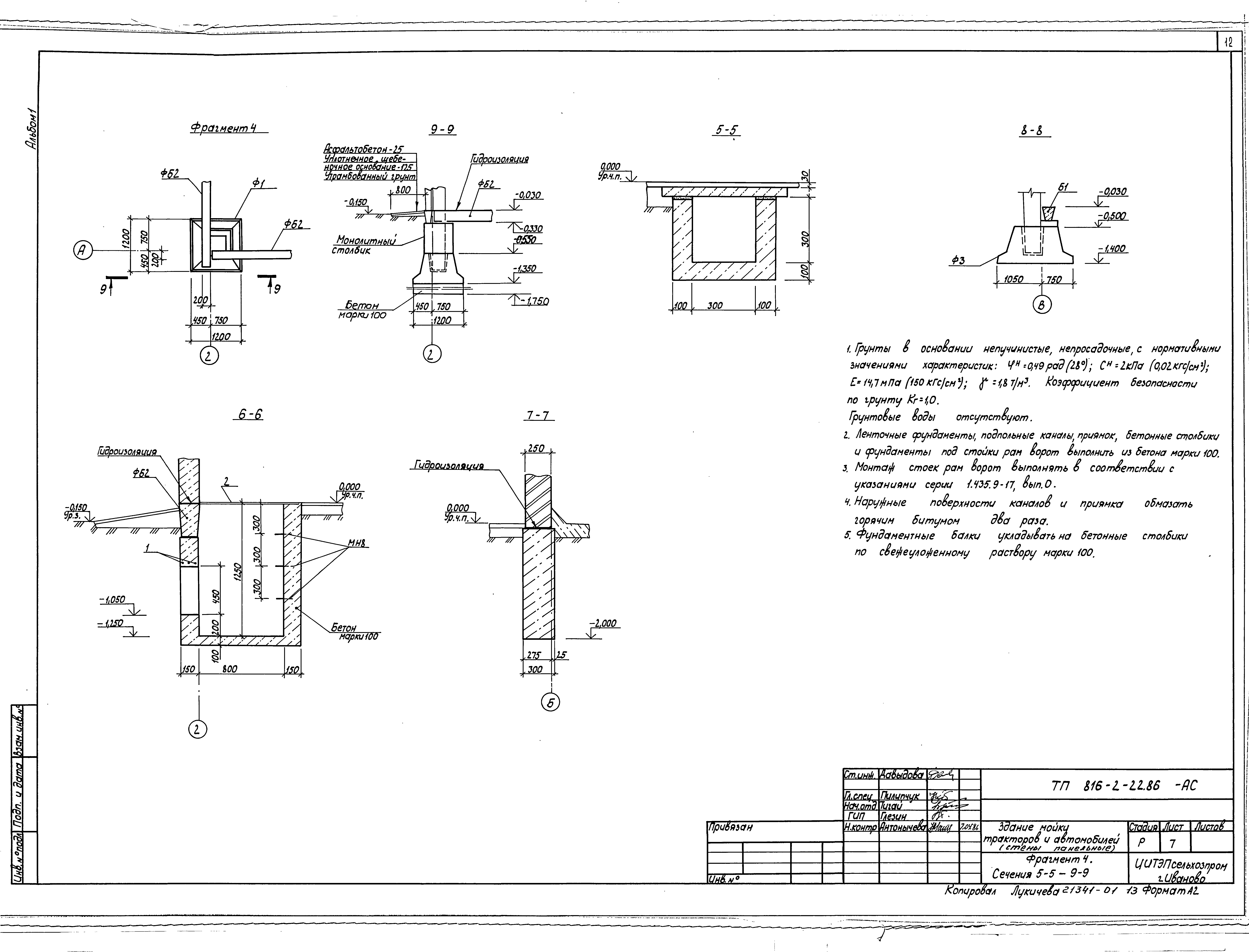
Скачать Типовой проект 816-2-22.86 Альбом 1. Общая пояснительная записка. Технология производства. Архитектурно-строительные решения. Внутренние водопровод и канализация. Отопление и вентиляция. Силовое электрооборудование. Автоматизация отопления и вентиляции. Спецификации оборудования. Ведомости потребности в материалах

Дата актуализации: 10.08.2017

Типовой проект 816-2-22.86

Альбом 1. Общая пояснительная записка. Технология производства. Архитектурно-строительные решения. Внутренние водопровод и канализация. Отопление и вентиляция. Силовое электрооборудование. Автоматизация отопления и вентиляции. Спецификации оборудования. Ведомости потребности в материалах

Обозначение: Типовой проект 816-2-22.86
Обозначение англ: 816-2-22.86
Статус:не определен законодательством
Название рус.:Альбом 1. Общая пояснительная записка. Технология производства. Архитектурно-строительные решения. Внутренние водопровод и канализация. Отопление и вентиляция. Силовое электрооборудование. Автоматизация отопления и вентиляции. Спецификации оборудования. Ведомости потребности в материалах
Дата добавления в базу:01.09.2013
Дата актуализации:05.05.2017
Дата введения:13.12.1985
Разработан: ЦИТЭПсельхозпрома
Утверждён:13.12.1985 Главсельстройпроект Минсельхоза СССР (Glavselstroyproject, USSR Minselkhoz 113-ЭГ)
Расположен в:Техническая документация Строительство Справочные документы Типовые строительные конструкции, изделия и узлы Общероссийский строительный каталог Сельскохозяйственные предприятия, здания и сооружения Предприятия, здания и сооружения по ремонту, техническому обслуживанию, хранению и обеспечению горюче-смазочными материалами сельхозтехники Пропускные пункты, мойки, эстакады, площадки
Типовой проект 816-2-22.86Типовой проект 816-2-22.86Типовой проект 816-2-22.86Типовой проект 816-2-22.86Типовой проект 816-2-22.86Типовой проект 816-2-22.86Типовой проект 816-2-22.86Типовой проект 816-2-22.86Типовой проект 816-2-22.86Типовой проект 816-2-22.86Типовой проект 816-2-22.86Типовой проект 816-2-22.86Типовой проект 816-2-22.86Типовой проект 816-2-22.86Типовой проект 816-2-22.86Типовой проект 816-2-22.86Типовой проект 816-2-22.86Типовой проект 816-2-22.86Типовой проект 816-2-22.86Типовой проект 816-2-22.86Типовой проект 816-2-22.86Типовой проект 816-2-22.86Типовой проект 816-2-22.86Типовой проект 816-2-22.86Типовой проект 816-2-22.86Типовой проект 816-2-22.86Типовой проект 816-2-22.86Типовой проект 816-2-22.86Типовой проект 816-2-22.86Типовой проект 816-2-22.86Типовой проект 816-2-22.86Типовой проект 816-2-22.86Типовой проект 816-2-22.86Типовой проект 816-2-22.86Типовой проект 816-2-22.86Типовой проект 816-2-22.86Типовой проект 816-2-22.86Типовой проект 816-2-22.86Типовой проект 816-2-22.86Типовой проект 816-2-22.86Типовой проект 816-2-22.86Типовой проект 816-2-22.86Типовой проект 816-2-22.86Типовой проект 816-2-22.86Типовой проект 816-2-22.86Типовой проект 816-2-22.86Типовой проект 816-2-22.86Типовой проект 816-2-22.86Типовой проект 816-2-22.86Типовой проект 816-2-22.86Типовой проект 816-2-22.86Типовой проект 816-2-22.86

© 2013 Ёшкин Кот :-) Карта сайта