Информационная система
«Ёшкин Кот»

Скачать базу одним архивом
Скачать обновления
История создания базы
Карта сайта

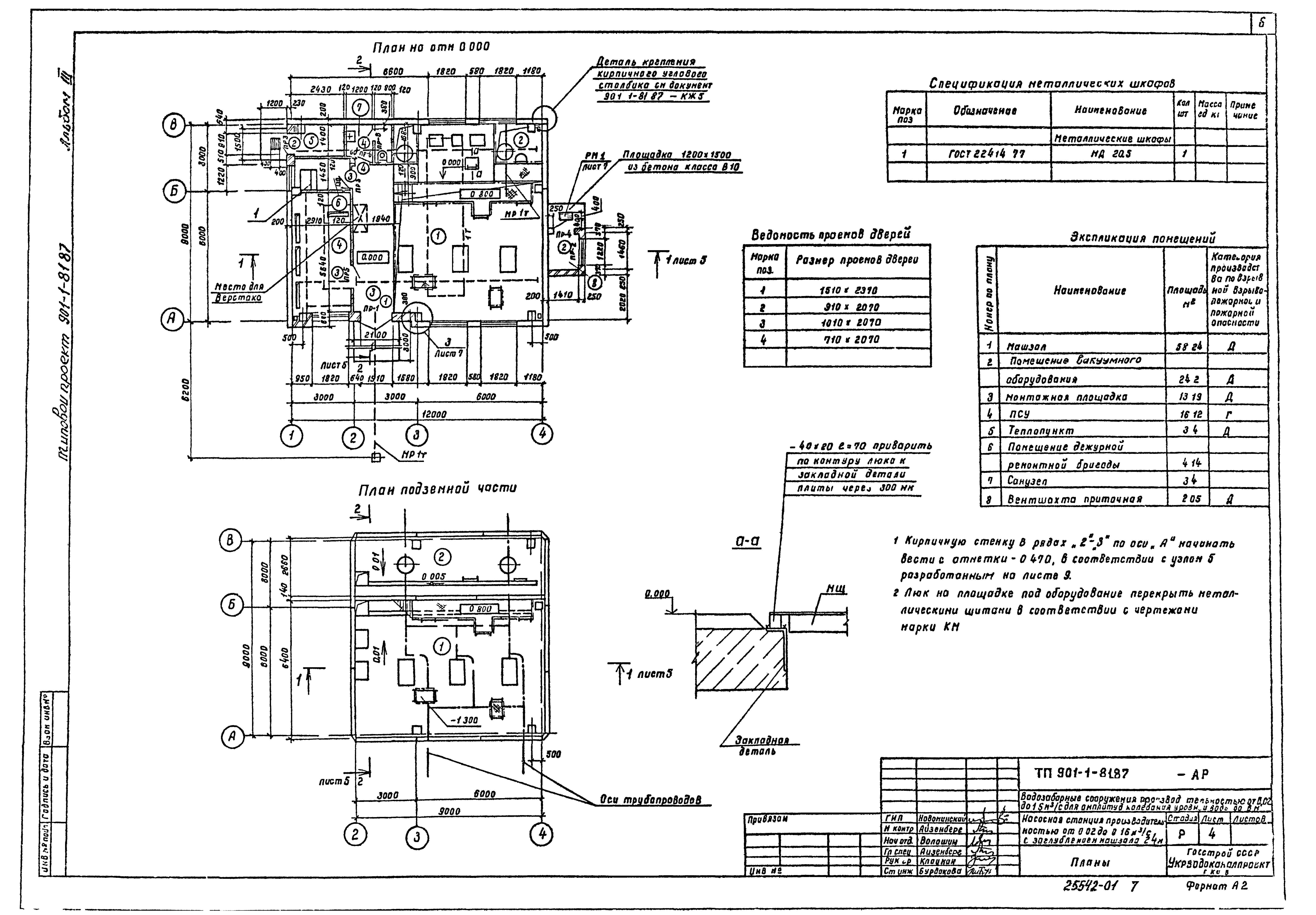
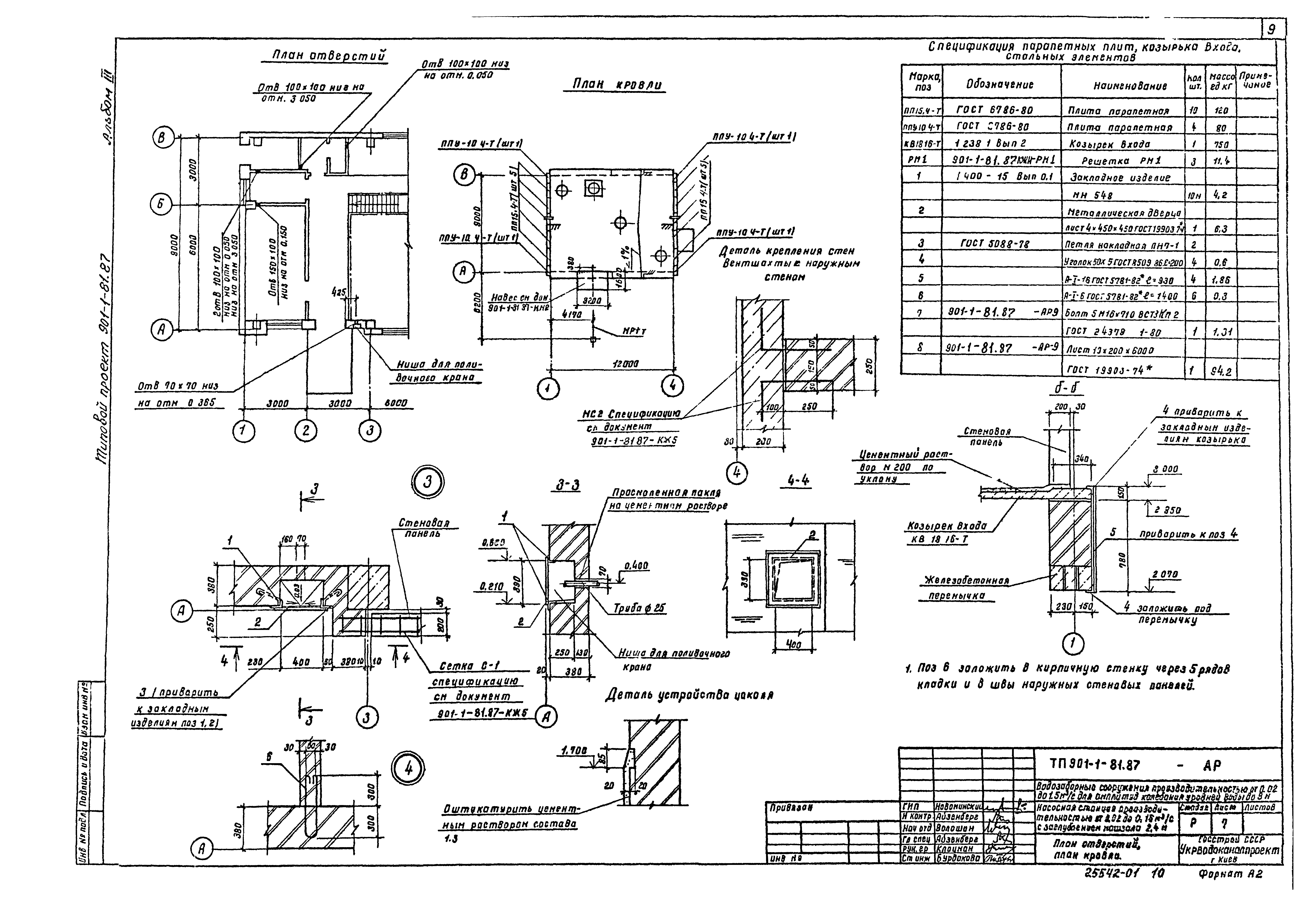
Скачать Типовой проект 901-1-81.87 Альбом III. Архитектурно-строительные решения

Дата актуализации: 10.08.2017

Типовой проект 901-1-81.87

Альбом III. Архитектурно-строительные решения

Обозначение: Типовой проект 901-1-81.87
Обозначение англ: 901-1-81.87
Статус:не определен законодательством
Название рус.:Альбом III. Архитектурно-строительные решения
Дата добавления в базу:01.09.2013
Дата актуализации:05.05.2017
Дата введения:28.08.1987
Разработан: ГПИ Укрводоканалпроект
Утверждён:28.08.1987 Госстрой СССР (Государственный комитет Совета Министров СССР по делам строительства) (USSR Gosstroy 57)
Расположен в:Техническая документация Строительство Справочные документы Типовые строительные конструкции, изделия и узлы Общероссийский строительный каталог Промышленные предприятия, здания и сооружения Здания и сооружения санитарно-технические Водоснабжение Насосные станции Насосные станции водопроводные
Заменяет собой:
Типовой проект 901-1-81.87Типовой проект 901-1-81.87Типовой проект 901-1-81.87Типовой проект 901-1-81.87Типовой проект 901-1-81.87Типовой проект 901-1-81.87Типовой проект 901-1-81.87Типовой проект 901-1-81.87Типовой проект 901-1-81.87Типовой проект 901-1-81.87Типовой проект 901-1-81.87Типовой проект 901-1-81.87Типовой проект 901-1-81.87Типовой проект 901-1-81.87Типовой проект 901-1-81.87Типовой проект 901-1-81.87Типовой проект 901-1-81.87Типовой проект 901-1-81.87Типовой проект 901-1-81.87Типовой проект 901-1-81.87Типовой проект 901-1-81.87Типовой проект 901-1-81.87Типовой проект 901-1-81.87Типовой проект 901-1-81.87Типовой проект 901-1-81.87Типовой проект 901-1-81.87Типовой проект 901-1-81.87Типовой проект 901-1-81.87Типовой проект 901-1-81.87Типовой проект 901-1-81.87Типовой проект 901-1-81.87Типовой проект 901-1-81.87Типовой проект 901-1-81.87Типовой проект 901-1-81.87Типовой проект 901-1-81.87

© 2013 Ёшкин Кот :-) Карта сайта