| 
 | ||||||||||||||||||||||||||
| 
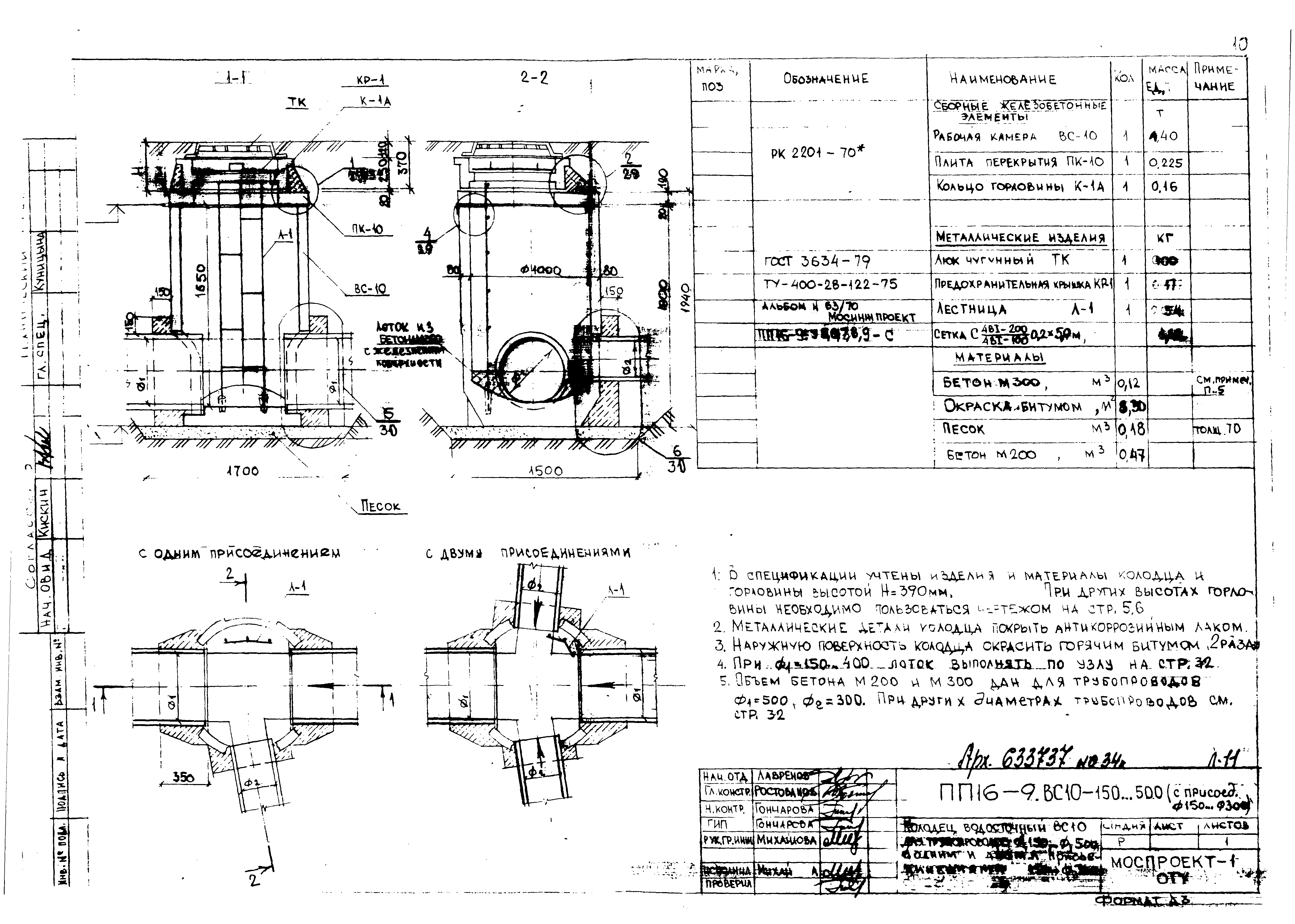
 Скачать Альбом ПП 16-9 Сборные железобетонные колодцы для сетей водостокаДата актуализации: 10.08.2017
 | 
| Обозначение: |  Альбом ПП 16-9 | 
| Обозначение англ: |  ПП 16-9 | 
| Статус: | не определен законодательством | 
| Название рус.: | Сборные железобетонные колодцы для сетей водостока | 
| Дата добавления в базу: | 01.09.2013 | 
| Дата актуализации: | 05.05.2017 | 
| Дата введения: | 19.12.1984 | 
| Область применения: | В настоящем альбоме разработаны рабочие чертежи колодцев, предназначенные для установки их при строительстве водостоков диаметром от 150 до 1000 мм | 
| Разработан: | Моспроект-1 | 
| Утверждён: | 19.12.1984 Моспроект-1 (426) | 
| Расположен в: | 

































