Информационная система
«Ёшкин Кот»

Скачать базу одним архивом
Скачать обновления
История создания базы
Карта сайта

Скачать Типовой проект 284-5-18 Часть 10. Раздел 10.7-2. Изделия заводского изготовления. Витражи

Дата актуализации: 10.08.2017

Типовой проект 284-5-18

Часть 10. Раздел 10.7-2. Изделия заводского изготовления. Витражи

Обозначение: Типовой проект 284-5-18
Обозначение англ: 284-5-18
Статус:не определен законодательством
Название рус.:Часть 10. Раздел 10.7-2. Изделия заводского изготовления. Витражи
Дата добавления в базу:01.09.2013
Дата актуализации:05.05.2017
Дата введения:01.01.1972
Оглавление:284-5-18 Заглавный лист
284-5-18 Пояснительная записка и техническая спецификация материалов
284-5-18 Схема витража между осями Р-М
284-5-18 Схема витража по ряду "Р"
284-5-18 Схема витража вестибюля по оси "10"
284-5-18 Рамка Р1-Р9. Фрамуги Ф1-Ф2
284-5-18 Рамки Р10-Р15. Стойка В2
284-5-18 Таблица сечений
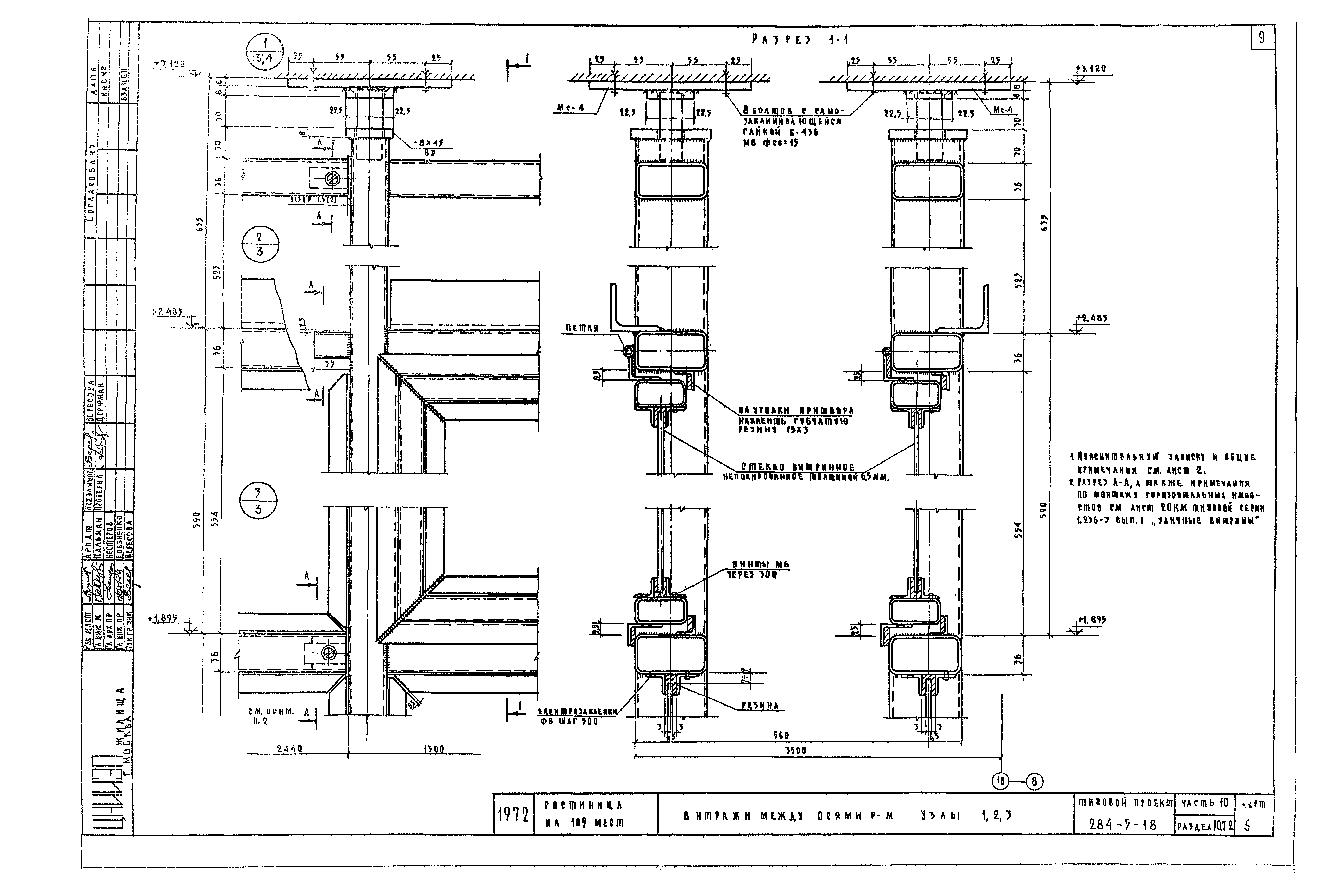
284-5-18 Витражи между осями Р-М. Узлы 1:2,3
284-5-18 Витражи между осями Р-М. Узлы 4,5,6,7,8
284-5-18 Витражи вестибюля. Узлы 9,10
284-5-18 Тамбур вестибюля
284-5-18 Фасады тамбура вестибюля и входа в ресторан
284-5-18 Двери тамбура ИДМ-1,ИДМ-2
284-5-18 Дверь ресторана ИДМ-3
284-5-18 Двери, узлы 1-6
284-5-18 Ручка для дверей тамбура Р-1. Сборочный чертеж
284-5-18 Ручка для дверей тамбура Р-1. Деталировочный чертеж
Разработан: ЦНИИЭП жилища
Утверждён:01.01.1972 Госкомитет по гражданскому строительству и архитектуре при Госстрое СССР (National Committee on Nonindustrial Construction and Architecture, USSR Gosstroy )
Расположен в:Техническая документация Строительство Справочные документы Типовые строительные конструкции, изделия и узлы Общероссийский строительный каталог Общественные здания в городах и поселках городского типа Предприятия бытового обслуживания населения и коммунального хозяйства Гостиницы, мотели
Типовой проект 284-5-18Типовой проект 284-5-18Типовой проект 284-5-18Типовой проект 284-5-18Типовой проект 284-5-18Типовой проект 284-5-18Типовой проект 284-5-18Типовой проект 284-5-18Типовой проект 284-5-18Типовой проект 284-5-18Типовой проект 284-5-18Типовой проект 284-5-18Типовой проект 284-5-18Типовой проект 284-5-18Типовой проект 284-5-18Типовой проект 284-5-18Типовой проект 284-5-18Типовой проект 284-5-18Типовой проект 284-5-18

© 2013 Ёшкин Кот :-) Карта сайта