Информационная система
«Ёшкин Кот»

Скачать базу одним архивом
Скачать обновления
История создания базы
Карта сайта

Скачать Типовой проект 284-5-18 Часть 0. Общая часть

Дата актуализации: 10.08.2017

Типовой проект 284-5-18

Часть 0. Общая часть

Обозначение: Типовой проект 284-5-18
Обозначение англ: 284-5-18
Статус:не определен законодательством
Название рус.:Часть 0. Общая часть
Дата добавления в базу:01.09.2013
Дата актуализации:05.05.2017
Дата введения:01.01.1972
Оглавление:284-5-18 Заглавный лист
284-5-18 Схема генерального плана
284-5-18 Фасады 1. Вариант сплошных простенков-лопаток
284-5-18 Фасады 2. Вариант прерывистых простенков-лопаток
284-5-18 Фасады 1 жилого корпуса, разрез /для привязки/
284-5-18 Фасады 2 жилого корпуса, разрез /для привязки/
284-5-18 Фасады 1 общественного корпуса; разрез /для привязки/
284-5-18 Фасады 2 общественного корпуса; разрез /для привязки/
284-5-18 План цокольного этажа и технического подполья /для привязки/
284-5-18 План 1 этажа /для привязки/
284-5-18 План 2(3) этажа. Фрагмент плана 3 этажа /для привязки/
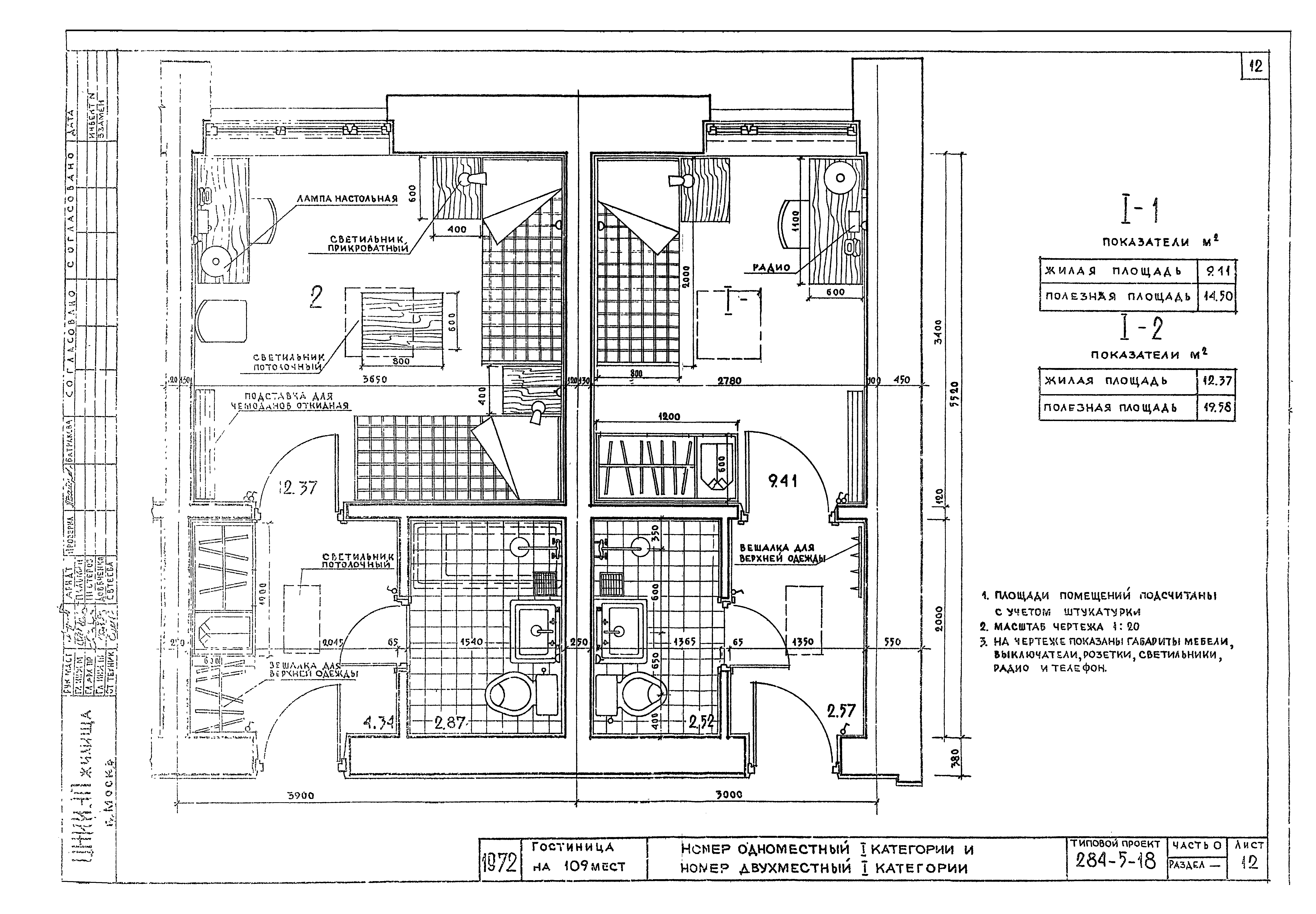
284-5-18 Номер одноместный 1 категории и номер двухместный 1 категории
284-5-18 Номер "Люкс"
284-5-18 Номер одноместный 2 категории
284-5-18 Номер двухместный второй категории /2 варианта/
284-5-18 Номер четырехместный 2 категории
284-5-18 План зала ресторана и вестибюля
284-5-18 Интерьер вестибюлей
284-5-18 Фрагмент фасадов /варианты 1 и 2/ входы в жилой корпус
284-5-18 Строительные конструкции, отделка, инженерное оборудование, технико-экономические показатели /для привязки/
284-5-18 Указания по производству работ
284-5-18 Комплектация проекта
284-5-18 Указания по применению и привязке проекта
Разработан: ЦНИИЭП жилища
Утверждён:01.01.1972 Государственный комитет по гражданскому строительству и архитектуре при Госстрое СССР
Расположен в:Техническая документация Строительство Справочные документы Типовые строительные конструкции, изделия и узлы Общероссийский строительный каталог Общественные здания в городах и поселках городского типа Предприятия бытового обслуживания населения и коммунального хозяйства Гостиницы, мотели
Типовой проект 284-5-18Типовой проект 284-5-18Типовой проект 284-5-18Типовой проект 284-5-18Типовой проект 284-5-18Типовой проект 284-5-18Типовой проект 284-5-18Типовой проект 284-5-18Типовой проект 284-5-18Типовой проект 284-5-18Типовой проект 284-5-18Типовой проект 284-5-18Типовой проект 284-5-18Типовой проект 284-5-18Типовой проект 284-5-18Типовой проект 284-5-18Типовой проект 284-5-18Типовой проект 284-5-18Типовой проект 284-5-18Типовой проект 284-5-18Типовой проект 284-5-18Типовой проект 284-5-18Типовой проект 284-5-18Типовой проект 284-5-18

© 2013 Ёшкин Кот :-) Карта сайта