Информационная система
«Ёшкин Кот»

Скачать базу одним архивом
Скачать обновления
История создания базы
Карта сайта

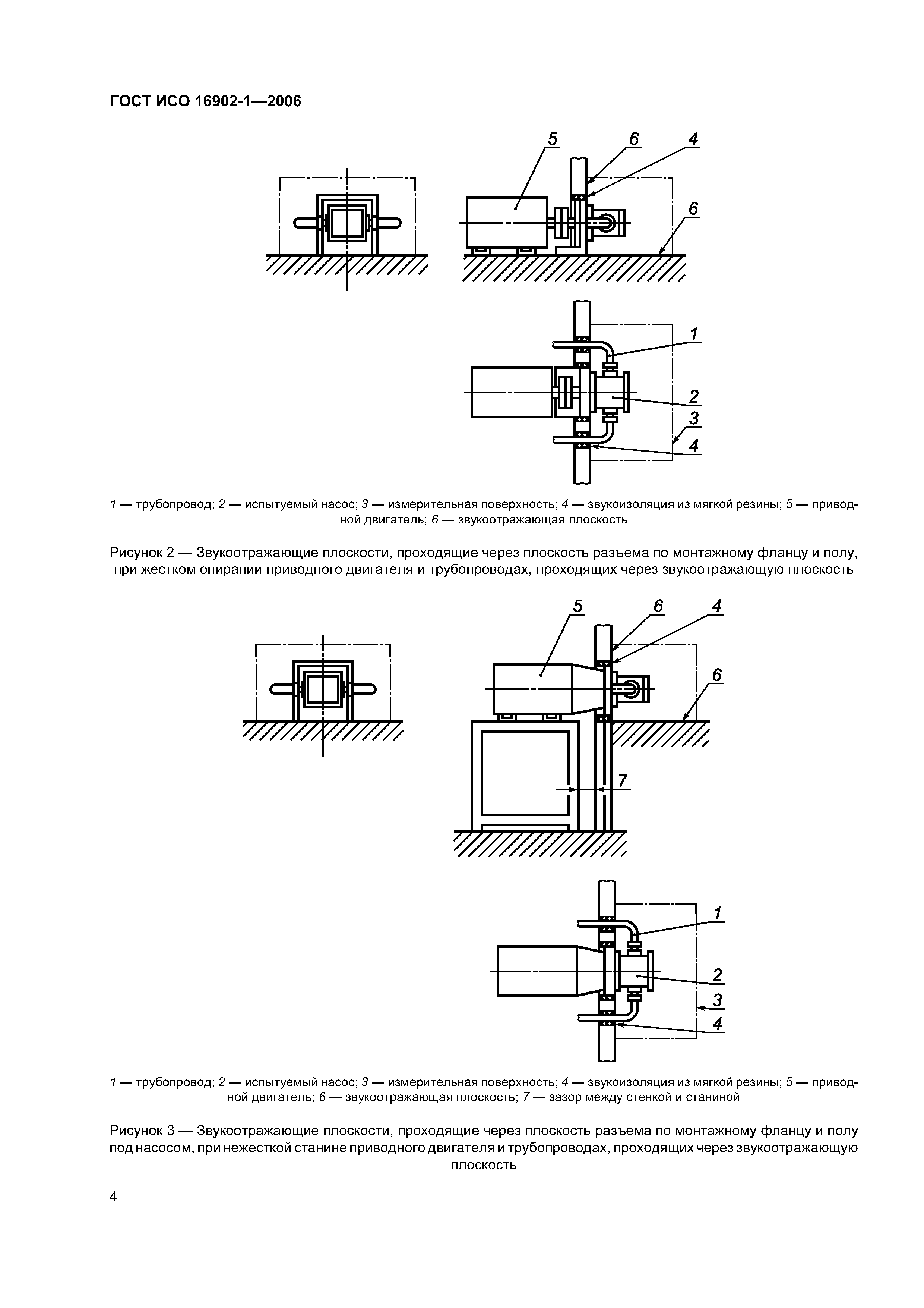
Скачать ГОСТ ИСО 16902-1-2006 Шум машин. Технический метод определения уровней звуковой мощности насосов гидроприводов по интенсивности звука

Дата актуализации: 10.08.2017

ГОСТ ИСО 16902-1-2006

Шум машин. Технический метод определения уровней звуковой мощности насосов гидроприводов по интенсивности звука

Обозначение: ГОСТ ИСО 16902-1-2006
Обозначение англ: GOST ISO 16902-1-2006
Статус:действует
Название рус.:Шум машин. Технический метод определения уровней звуковой мощности насосов гидроприводов по интенсивности звука
Название англ.:Noise of machines. Engineering method for determination of the sound power levels of pumps using sound intensity techniques
Дата добавления в базу:01.09.2013
Дата актуализации:05.05.2017
Дата введения:01.10.2007
Область применения:Стандарт устанавливает метод определения уровней звуковой мощности насосов гидроприводов на основе ИСО 9614-1 и ИСО 9614-2 при контролируемых условиях установки и режиме работы. Уровень звуковой мощности может включать шум, излучаемый любыми трубопроводами, находящимися внутри измерительной поверхности.
Оглавление:1 Область применения
2 Нормативные ссылки
3 Термины и определения
4 Определение уровня звуковой мощности
5 Установка и монтаж
   5.1 Общие положения
   5.2 Монтаж насоса
   5.3 Приводная муфта
   5.4 Гидравлическая схема
6 Измерительная поверхность
   6.1 Общие положения
   6.2 Трубопроводы
   6.3 Влияние способа монтажа
   6.4 Звукоотражающая плоскость
   6.5 Приводной двигатель и муфта
7 Режим работы
8 Неопределенность измерений
9 Регистрируемая информация
   9.1 Общая информация
   9.2 Испытуемый насос
10 Протокол испытаний
Приложение А (справочное) Сведения о соответствии международных стандартов, на которые даны ссылки, межгосударственным стандартам
Библиография
Разработан: ОАО Научно-исследовательский центр контроля и диагностики технических систем
Утверждён:07.12.2006 Межгосударственный Совет по стандартизации, метрологии и сертификации (Inter-Governmental Council on Standardization, Metrology, and Certification 30)
14.07.2007 Федеральное агентство по техническому регулированию и метрологии (131-ст)
Издан: Стандартинформ (2007 г. )
Расположен в:Техническая документация Электроэнергия ГИДРАВЛИЧЕСКИЕ И ПНЕВМАТИЧЕСКИЕ СИСТЕМЫ И КОМПОНЕНТЫ ОБЩЕГО НАЗНАЧЕНИЯ Объемные гидроприводы и пневмоприводы Насосы и моторы МЕТРОЛОГИЯ И ИЗМЕРЕНИЯ. ФИЗИЧЕСКИЕ ЯВЛЕНИЯ Акустика и акустические измерения Шум от машин и оборудования Экология ГИДРАВЛИЧЕСКИЕ И ПНЕВМАТИЧЕСКИЕ СИСТЕМЫ И КОМПОНЕНТЫ ОБЩЕГО НАЗНАЧЕНИЯ Объемные гидроприводы и пневмоприводы Насосы и моторы МЕТРОЛОГИЯ И ИЗМЕРЕНИЯ. ФИЗИЧЕСКИЕ ЯВЛЕНИЯ Акустика и акустические измерения Шум от машин и оборудования
Нормативные ссылки:
ГОСТ ИСО 16902-1-2006ГОСТ ИСО 16902-1-2006ГОСТ ИСО 16902-1-2006ГОСТ ИСО 16902-1-2006ГОСТ ИСО 16902-1-2006ГОСТ ИСО 16902-1-2006ГОСТ ИСО 16902-1-2006ГОСТ ИСО 16902-1-2006ГОСТ ИСО 16902-1-2006ГОСТ ИСО 16902-1-2006ГОСТ ИСО 16902-1-2006ГОСТ ИСО 16902-1-2006ГОСТ ИСО 16902-1-2006ГОСТ ИСО 16902-1-2006ГОСТ ИСО 16902-1-2006ГОСТ ИСО 16902-1-2006

© 2013 Ёшкин Кот :-) Карта сайта