Информационная система
«Ёшкин Кот»

Скачать базу одним архивом
Скачать обновления
История создания базы
Карта сайта

Скачать Типовые проектные решения 501-02-1 Альбом 1. Указания по применению. Подъемка пролетных строений. Ремонт мостов. Ремонт труб

Дата актуализации: 10.08.2017

Типовые проектные решения 501-02-1

Альбом 1. Указания по применению. Подъемка пролетных строений. Ремонт мостов. Ремонт труб

Обозначение: Типовые проектные решения 501-02-1
Обозначение англ: 501-02-1
Статус:cправочные материалы, мп, тпр
Название рус.:Альбом 1. Указания по применению. Подъемка пролетных строений. Ремонт мостов. Ремонт труб
Дата добавления в базу:01.09.2013
Дата актуализации:05.05.2017
Дата введения:01.08.1982
Оглавление:501-02-1-0 Указания по применению типовых решений
501-02-1-01 Подъемка пролетных строений с помощью временных опор
501-02-1-02 Подъемка пролетных строений с помощью кранов
501-02-1-03 Устройство раздельных тротуаров на металлических пролетных строениях
501-02-1-04 Наращивание опор при их переустройств
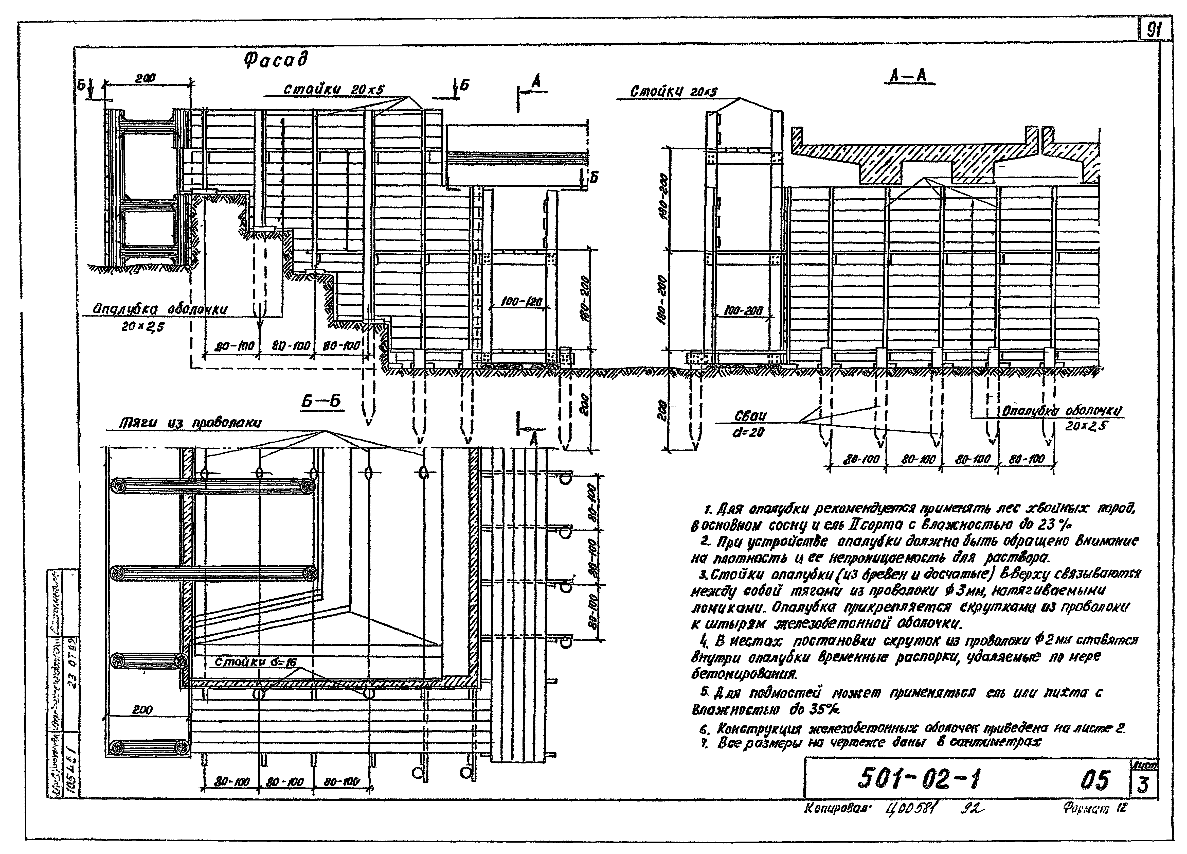
501-02-1-05 Сооружение и перекладка новых опор. Устройство железобетонных оболочек и поясов
501-02-1-06 Подпорные стенки в основании конусов устоев
501-02-1-07 Замена грунта за устоями
501-02-1-08 Временные опоры, применяемые при ремонте искусственных сооружений
501-02-1-09 Ремонт труб
501-02-1-10 Строительство новых труб
Разработан: Гипротранспуть
Утверждён:05.05.1982 МПС (Ministry of Railroads М-14791)
Расположен в:Техническая документация Строительство Справочные документы Типовые строительные конструкции, изделия и узлы Общероссийский строительный каталог Промышленные предприятия, здания и сооружения Предприятия, здания и сооружения транспорта Транспорт железнодорожный Сооружения искусственные
Типовые проектные решения 501-02-1Типовые проектные решения 501-02-1Типовые проектные решения 501-02-1Типовые проектные решения 501-02-1Типовые проектные решения 501-02-1Типовые проектные решения 501-02-1Типовые проектные решения 501-02-1Типовые проектные решения 501-02-1Типовые проектные решения 501-02-1Типовые проектные решения 501-02-1Типовые проектные решения 501-02-1Типовые проектные решения 501-02-1Типовые проектные решения 501-02-1Типовые проектные решения 501-02-1Типовые проектные решения 501-02-1Типовые проектные решения 501-02-1Типовые проектные решения 501-02-1Типовые проектные решения 501-02-1Типовые проектные решения 501-02-1Типовые проектные решения 501-02-1Типовые проектные решения 501-02-1Типовые проектные решения 501-02-1Типовые проектные решения 501-02-1Типовые проектные решения 501-02-1Типовые проектные решения 501-02-1Типовые проектные решения 501-02-1Типовые проектные решения 501-02-1Типовые проектные решения 501-02-1Типовые проектные решения 501-02-1Типовые проектные решения 501-02-1Типовые проектные решения 501-02-1Типовые проектные решения 501-02-1Типовые проектные решения 501-02-1Типовые проектные решения 501-02-1Типовые проектные решения 501-02-1Типовые проектные решения 501-02-1Типовые проектные решения 501-02-1Типовые проектные решения 501-02-1Типовые проектные решения 501-02-1Типовые проектные решения 501-02-1Типовые проектные решения 501-02-1Типовые проектные решения 501-02-1Типовые проектные решения 501-02-1Типовые проектные решения 501-02-1Типовые проектные решения 501-02-1Типовые проектные решения 501-02-1Типовые проектные решения 501-02-1Типовые проектные решения 501-02-1Типовые проектные решения 501-02-1Типовые проектные решения 501-02-1Типовые проектные решения 501-02-1Типовые проектные решения 501-02-1Типовые проектные решения 501-02-1Типовые проектные решения 501-02-1Типовые проектные решения 501-02-1Типовые проектные решения 501-02-1Типовые проектные решения 501-02-1Типовые проектные решения 501-02-1Типовые проектные решения 501-02-1Типовые проектные решения 501-02-1Типовые проектные решения 501-02-1Типовые проектные решения 501-02-1Типовые проектные решения 501-02-1Типовые проектные решения 501-02-1Типовые проектные решения 501-02-1Типовые проектные решения 501-02-1Типовые проектные решения 501-02-1Типовые проектные решения 501-02-1Типовые проектные решения 501-02-1Типовые проектные решения 501-02-1Типовые проектные решения 501-02-1Типовые проектные решения 501-02-1Типовые проектные решения 501-02-1Типовые проектные решения 501-02-1Типовые проектные решения 501-02-1Типовые проектные решения 501-02-1Типовые проектные решения 501-02-1Типовые проектные решения 501-02-1Типовые проектные решения 501-02-1Типовые проектные решения 501-02-1Типовые проектные решения 501-02-1Типовые проектные решения 501-02-1Типовые проектные решения 501-02-1Типовые проектные решения 501-02-1Типовые проектные решения 501-02-1Типовые проектные решения 501-02-1Типовые проектные решения 501-02-1Типовые проектные решения 501-02-1Типовые проектные решения 501-02-1Типовые проектные решения 501-02-1Типовые проектные решения 501-02-1Типовые проектные решения 501-02-1Типовые проектные решения 501-02-1Типовые проектные решения 501-02-1Типовые проектные решения 501-02-1Типовые проектные решения 501-02-1Типовые проектные решения 501-02-1Типовые проектные решения 501-02-1Типовые проектные решения 501-02-1Типовые проектные решения 501-02-1Типовые проектные решения 501-02-1Типовые проектные решения 501-02-1Типовые проектные решения 501-02-1Типовые проектные решения 501-02-1Типовые проектные решения 501-02-1Типовые проектные решения 501-02-1Типовые проектные решения 501-02-1Типовые проектные решения 501-02-1Типовые проектные решения 501-02-1Типовые проектные решения 501-02-1Типовые проектные решения 501-02-1Типовые проектные решения 501-02-1Типовые проектные решения 501-02-1Типовые проектные решения 501-02-1Типовые проектные решения 501-02-1Типовые проектные решения 501-02-1Типовые проектные решения 501-02-1Типовые проектные решения 501-02-1Типовые проектные решения 501-02-1Типовые проектные решения 501-02-1Типовые проектные решения 501-02-1Типовые проектные решения 501-02-1Типовые проектные решения 501-02-1Типовые проектные решения 501-02-1Типовые проектные решения 501-02-1Типовые проектные решения 501-02-1Типовые проектные решения 501-02-1Типовые проектные решения 501-02-1Типовые проектные решения 501-02-1Типовые проектные решения 501-02-1Типовые проектные решения 501-02-1Типовые проектные решения 501-02-1Типовые проектные решения 501-02-1Типовые проектные решения 501-02-1Типовые проектные решения 501-02-1Типовые проектные решения 501-02-1Типовые проектные решения 501-02-1Типовые проектные решения 501-02-1Типовые проектные решения 501-02-1Типовые проектные решения 501-02-1Типовые проектные решения 501-02-1Типовые проектные решения 501-02-1Типовые проектные решения 501-02-1Типовые проектные решения 501-02-1Типовые проектные решения 501-02-1Типовые проектные решения 501-02-1Типовые проектные решения 501-02-1Типовые проектные решения 501-02-1Типовые проектные решения 501-02-1Типовые проектные решения 501-02-1Типовые проектные решения 501-02-1Типовые проектные решения 501-02-1Типовые проектные решения 501-02-1Типовые проектные решения 501-02-1Типовые проектные решения 501-02-1Типовые проектные решения 501-02-1Типовые проектные решения 501-02-1Типовые проектные решения 501-02-1Типовые проектные решения 501-02-1Типовые проектные решения 501-02-1

© 2013 Ёшкин Кот :-) Карта сайта