Информационная система
«Ёшкин Кот»

Скачать базу одним архивом
Скачать обновления
История создания базы
Карта сайта

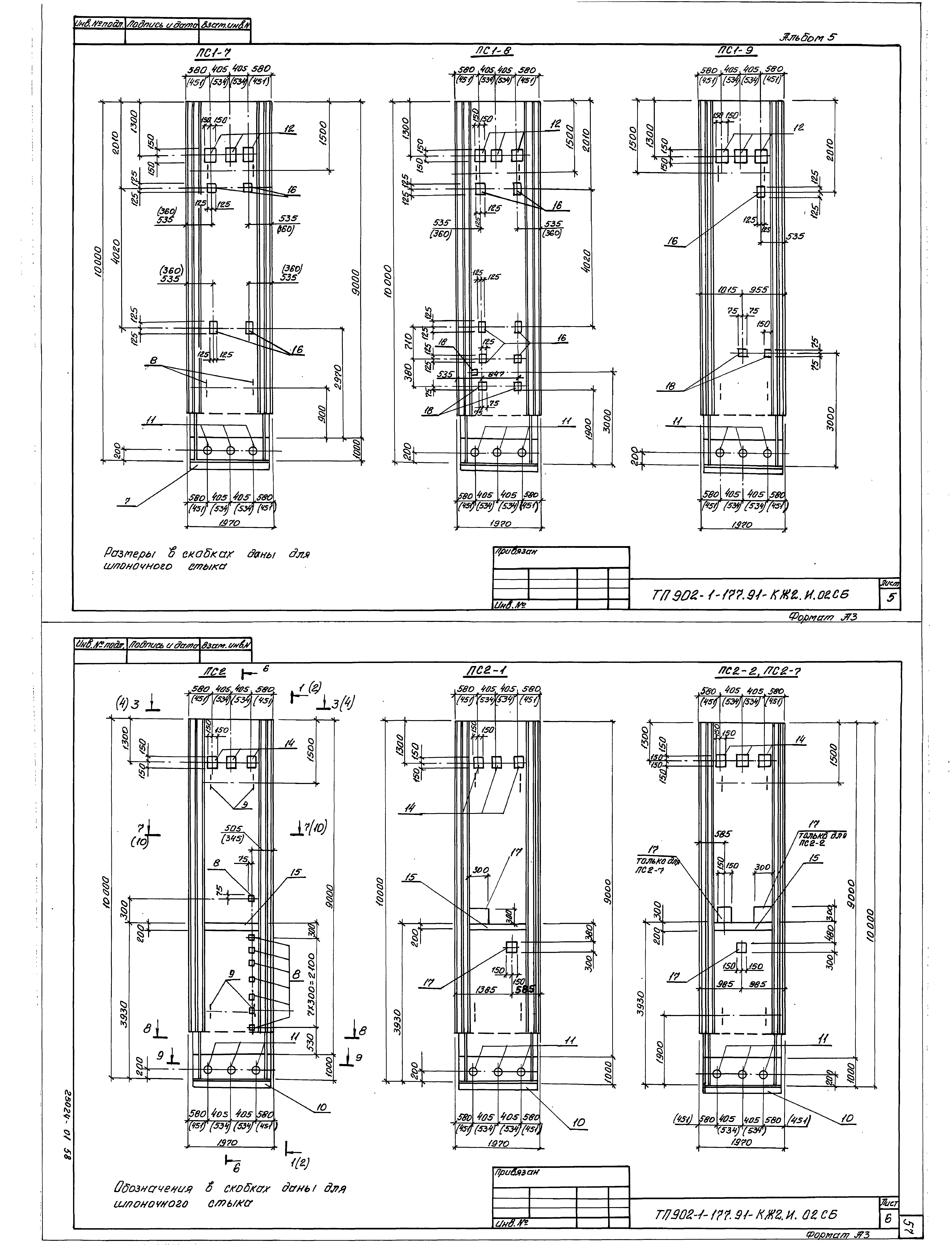
Скачать Типовой проект 902-1-177.91 Альбом 5. Подземная часть. Конструкции железобетонные. Конструкции металлические. Изделия

Дата актуализации: 10.08.2017

Типовой проект 902-1-177.91

Альбом 5. Подземная часть. Конструкции железобетонные. Конструкции металлические. Изделия

Обозначение: Типовой проект 902-1-177.91
Обозначение англ: 902-1-177.91
Статус:не определен законодательством
Название рус.:Альбом 5. Подземная часть. Конструкции железобетонные. Конструкции металлические. Изделия
Дата добавления в базу:01.09.2013
Дата актуализации:05.05.2017
Дата введения:15.05.1991
Разработан: Харьковский Водоканалпроект
Утверждён:15.05.1991 СоюзводоканалНИИпроект (SoyuzvodokanalNIIproject 9)
Расположен в:Техническая документация Строительство Справочные документы Типовые строительные конструкции, изделия и узлы Общероссийский строительный каталог Промышленные предприятия, здания и сооружения Здания и сооружения санитарно-технические Канализация Станции насосные Станции насосные для перекачки бытовых сточных вод
Типовой проект 902-1-177.91Типовой проект 902-1-177.91Типовой проект 902-1-177.91Типовой проект 902-1-177.91Типовой проект 902-1-177.91Типовой проект 902-1-177.91Типовой проект 902-1-177.91Типовой проект 902-1-177.91Типовой проект 902-1-177.91Типовой проект 902-1-177.91Типовой проект 902-1-177.91Типовой проект 902-1-177.91Типовой проект 902-1-177.91Типовой проект 902-1-177.91Типовой проект 902-1-177.91Типовой проект 902-1-177.91Типовой проект 902-1-177.91Типовой проект 902-1-177.91Типовой проект 902-1-177.91Типовой проект 902-1-177.91Типовой проект 902-1-177.91Типовой проект 902-1-177.91Типовой проект 902-1-177.91Типовой проект 902-1-177.91Типовой проект 902-1-177.91Типовой проект 902-1-177.91Типовой проект 902-1-177.91Типовой проект 902-1-177.91Типовой проект 902-1-177.91Типовой проект 902-1-177.91Типовой проект 902-1-177.91Типовой проект 902-1-177.91Типовой проект 902-1-177.91Типовой проект 902-1-177.91Типовой проект 902-1-177.91Типовой проект 902-1-177.91Типовой проект 902-1-177.91Типовой проект 902-1-177.91Типовой проект 902-1-177.91Типовой проект 902-1-177.91Типовой проект 902-1-177.91Типовой проект 902-1-177.91Типовой проект 902-1-177.91Типовой проект 902-1-177.91Типовой проект 902-1-177.91Типовой проект 902-1-177.91Типовой проект 902-1-177.91Типовой проект 902-1-177.91Типовой проект 902-1-177.91Типовой проект 902-1-177.91Типовой проект 902-1-177.91Типовой проект 902-1-177.91Типовой проект 902-1-177.91Типовой проект 902-1-177.91Типовой проект 902-1-177.91Типовой проект 902-1-177.91Типовой проект 902-1-177.91Типовой проект 902-1-177.91Типовой проект 902-1-177.91Типовой проект 902-1-177.91Типовой проект 902-1-177.91Типовой проект 902-1-177.91Типовой проект 902-1-177.91Типовой проект 902-1-177.91Типовой проект 902-1-177.91Типовой проект 902-1-177.91Типовой проект 902-1-177.91Типовой проект 902-1-177.91Типовой проект 902-1-177.91Типовой проект 902-1-177.91Типовой проект 902-1-177.91Типовой проект 902-1-177.91Типовой проект 902-1-177.91Типовой проект 902-1-177.91

© 2013 Ёшкин Кот :-) Карта сайта