Скачать Типовой проект 503-05-11.85 Альбом I. АвтопавильоныДата актуализации: 10.08.2017 Типовой проект 503-05-11.85
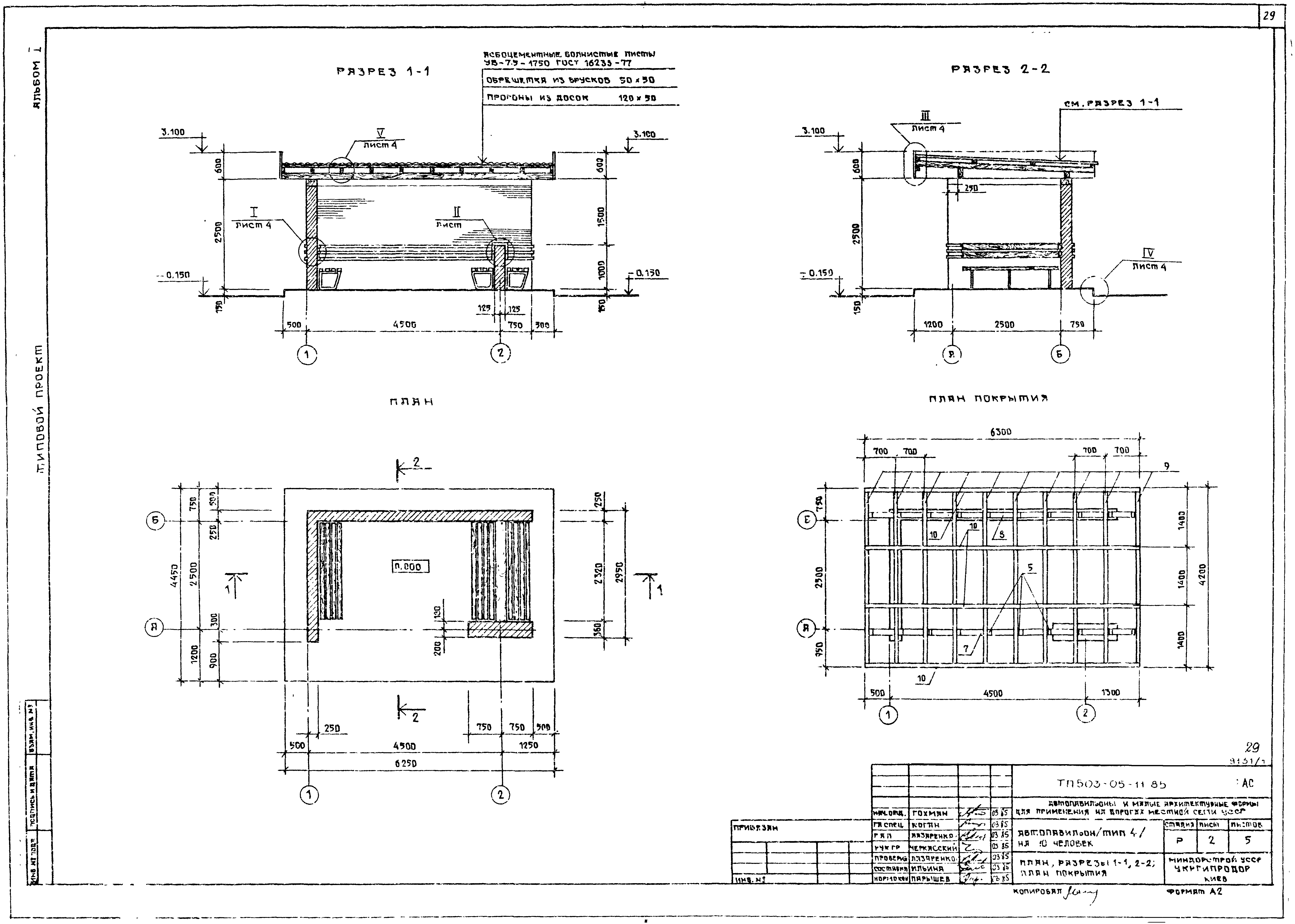
Альбом I. АвтопавильоныОбозначение: | Типовой проект 503-05-11.85 | Обозначение англ: | 503-05-11.85 | Статус: | не определен законодательством | Название рус.: | Альбом I. Автопавильоны | Дата добавления в базу: | 01.09.2013 | Дата актуализации: | 05.05.2017 | Дата введения: | 01.03.1985 | Разработан: | Укргипродор
| Утверждён: | 21.02.1985 Миндорстрой УССР (27)
| Издан: | ЦИТП Госстроя СССР (CITP, Gosstroy (USSR) 1988 г. )
| Расположен в: |
|
                                                     
|