Информационная система
«Ёшкин Кот»

Скачать базу одним архивом
Скачать обновления
История создания базы
Карта сайта

Скачать Типовой проект 901-1-84.87 Альбом III. Архитектурно-строительные решения

Дата актуализации: 10.08.2017

Типовой проект 901-1-84.87

Альбом III. Архитектурно-строительные решения

Обозначение: Типовой проект 901-1-84.87
Обозначение англ: 901-1-84.87
Статус:не определен законодательством
Название рус.:Альбом III. Архитектурно-строительные решения
Дата добавления в базу:01.09.2013
Дата актуализации:05.05.2017
Дата введения:28.08.1987
Оглавление:ТП 901-1-84.87 АР Основной комплект АР
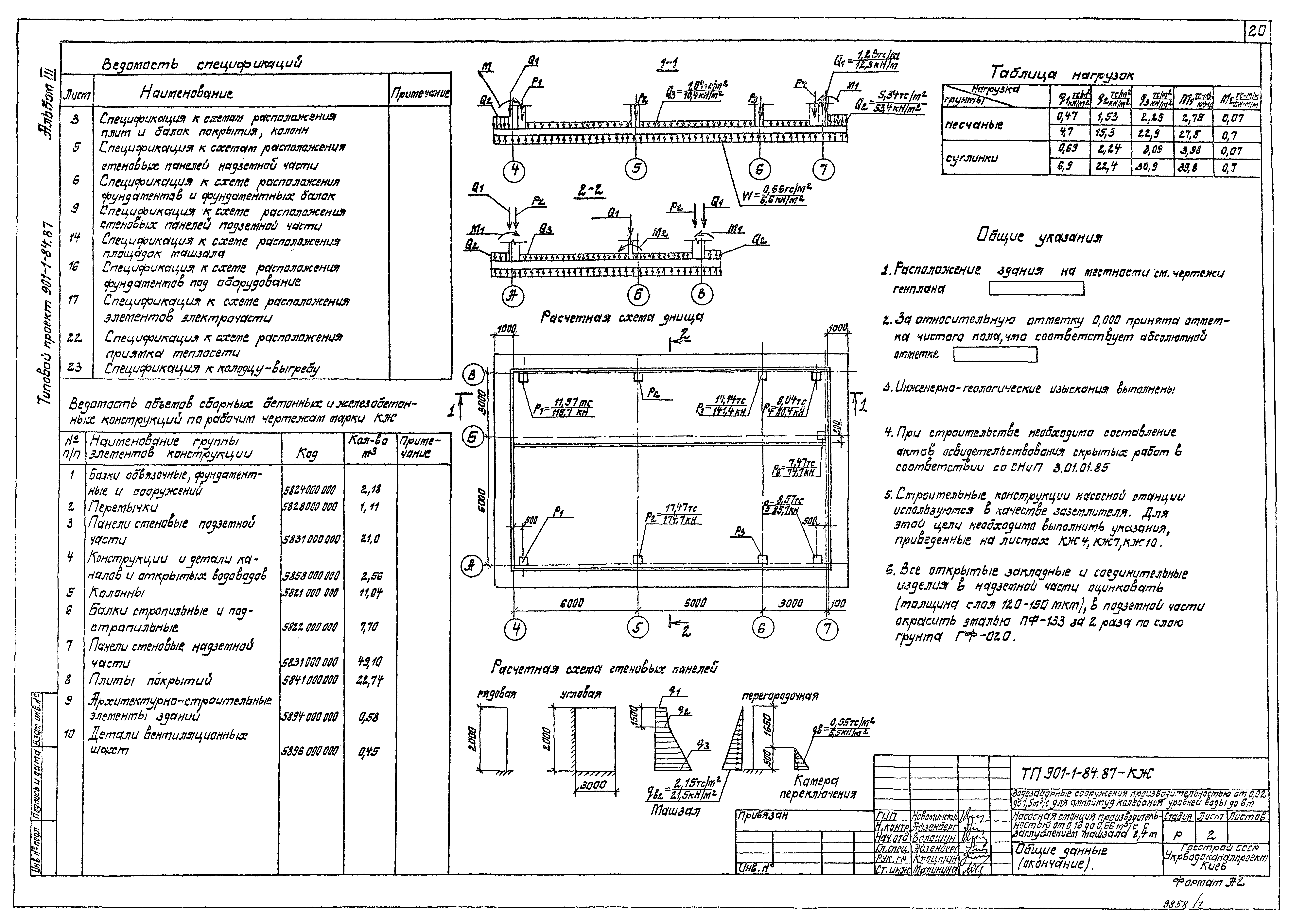
ТП 901-1-84.87 АР Общие данные (начало)
ТП 901-1-84.87 АР Общие данные (продолжение)
ТП 901-1-84.87 АР Общие данные (окончание)
ТП 901-1-84.87 АР Планы
ТП 901-1-84.87 АР Разрезы 1-1;2-2;3-3
ТП 901-1-84.87 АР Фасады
ТП 901-1-84.87 АР Планы отверстий. Узлы
ТП 901-1-84.87 АР Фрагмент плана 2
ТП 901-1-84.87 АР Планы полов
ТП 901-1-84.87 АР План кровли. Ведомость перемычек
ТП 901-1-84.87 АР Узлы
ТП 901-1-84.87 АР Ворота ВЭ-1,9х2,79. Монтажная схема. Защелка пружинная. Спецификация
ТП 901-1-84.87 АР ПВЭ-1,9х2,79 защитный уголок У-1, пробой Т90
ТП 901-1-84.87 АР Рама РВЭ-1,9х2,79. Шпингалет нижний ШН. Щеколда далевая ШФ. Петля подгибная ПП
ТП 901-1-84.87 АР Детали установки приборов ворот. Вентиляционная жалюзийная решетка ВОК-1, утепленный клапан УК-1
ТП 901-1-84.87 АР Вентиляционная жалюзийная решетка ВЖ-2 утепленный клапан УК-2
ТП 901-1-84.87 КЖ Основной комплект КЖ
ТП 901-1-84.87 КЖ Общие данные (начало)
ТП 901-1-84.87 КЖ Общие данные (окончание)
ТП 901-1-84.87 КЖ Схемы расположения плит и балок покрытия, колонн
ТП 901-1-84.87 КЖ Узел 1…7 к схемам расположения плит и балок покрытия колонн
ТП 901-1-84.87 КЖ Схемы расположения стеновых панелей надземной части
ТП 901-1-84.87 КЖ Схемы расположения фундаментов и фундаментных балок
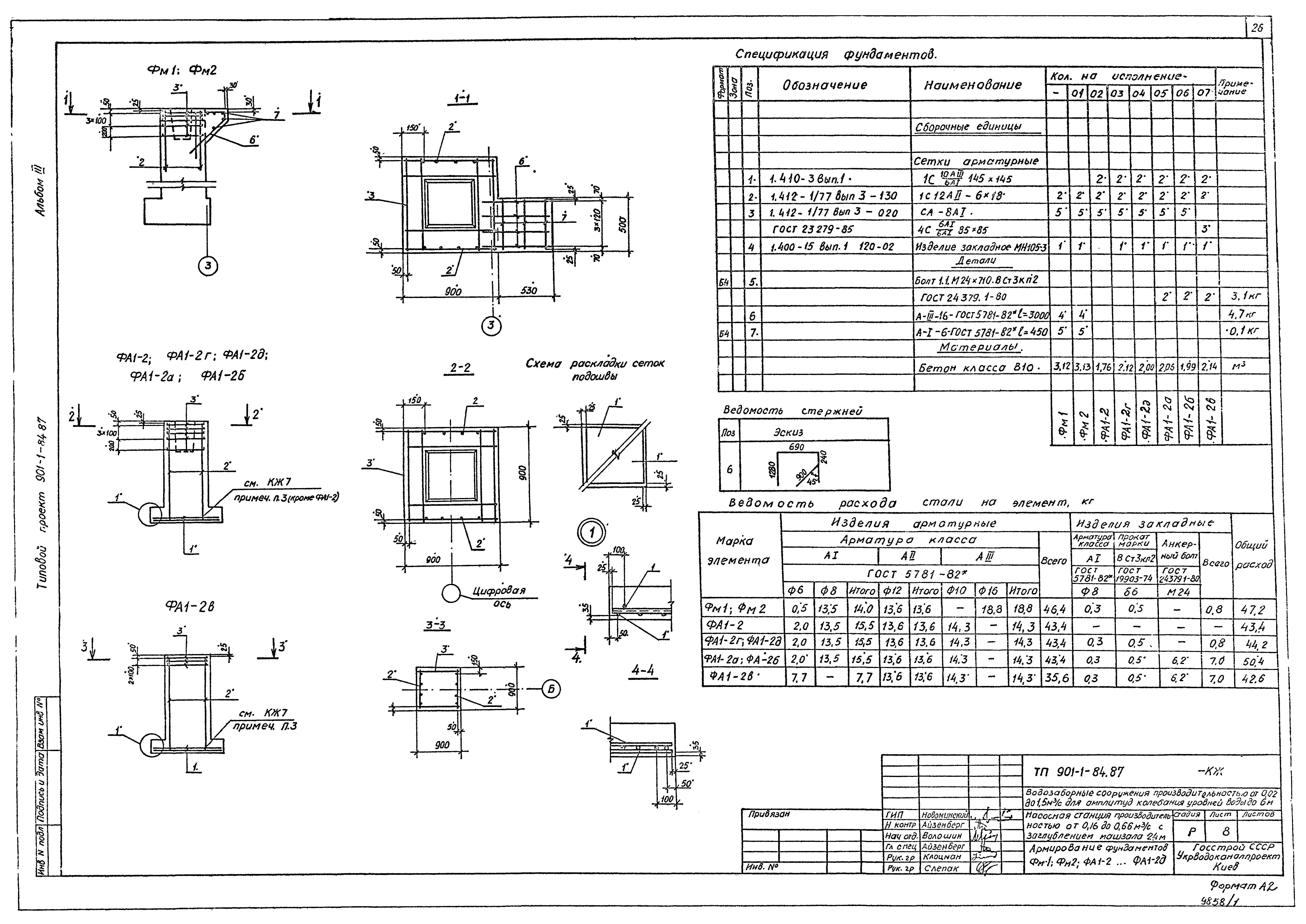
ТП 901-1-84.87 КЖ Фундамент ФМ1;ФМ2;ФА1-2…ФА1-2д
ТП 901-1-84.87 КЖ Армирование фундаментов ФМ1;ФМ2;ФА1-2…ФА1-2д
ТП 901-1-84.87 КЖ Схема расположения стеновых панелей подземной части
ТП 901-1-84.87 КЖ Узел 1…4 к схеме расположения стеновых панелей подземной части
ТП 901-1-84.87 КЖ Схема расположения закладных изделий и выпусков днища ПМ1. Детали армирования гребня и приямки
ТП 901-1-84.87 КЖ Схемы армирования днища ПМ1
ТП 901-1-84.87 КЖ Спецификация и ведомость расхода стали днища ПМ1
ТП 901-1-84.87 КЖ Схема расположения площадок машзала
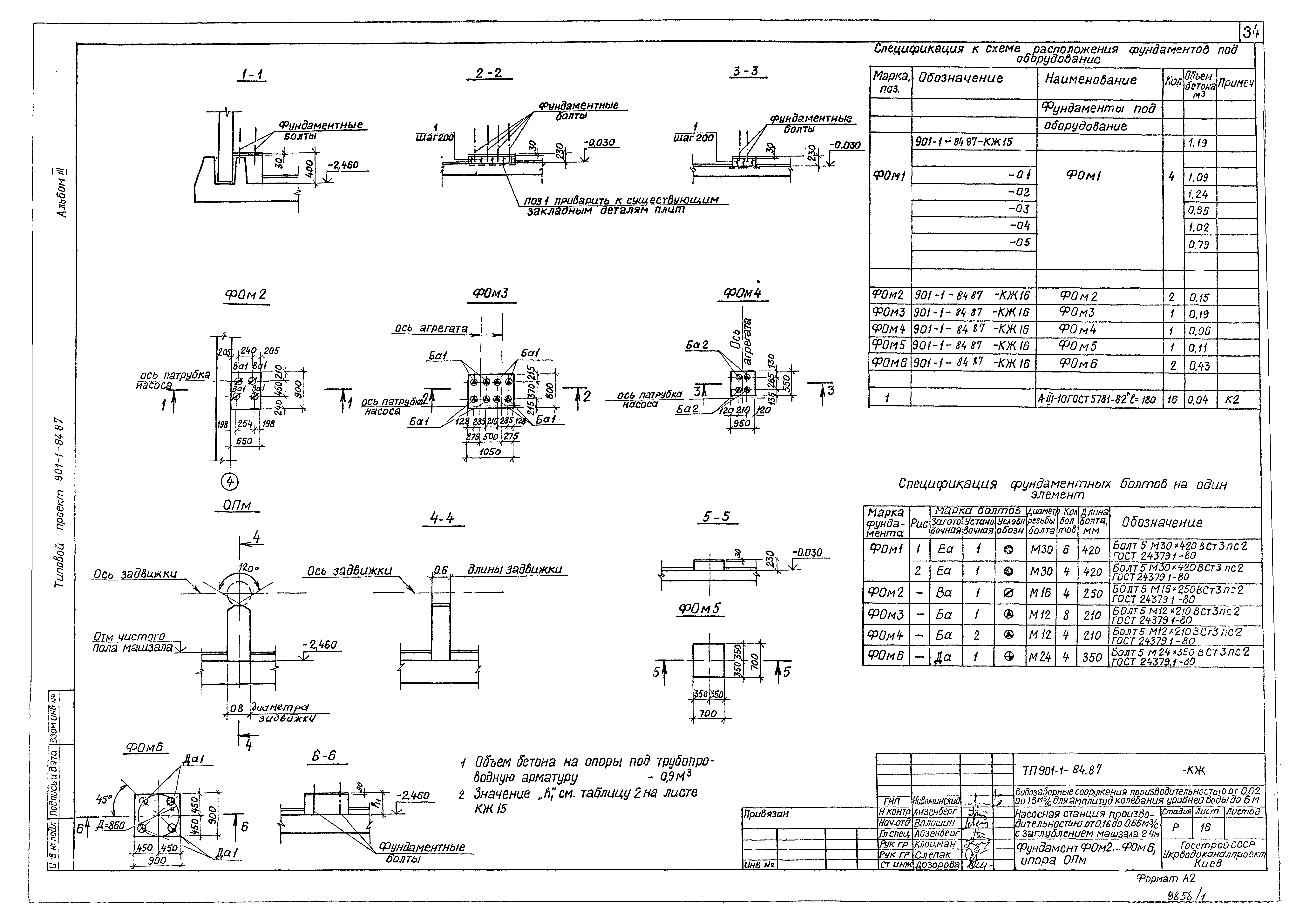
ТП 901-1-84.87 КЖ Схема расположения фундаментов, опор под оборудование. Фундамент ФОм1
ТП 901-1-84.87 КЖ Фундамент ФОМ2...ФОМ6, опора Опм
ТП 901-1-84.87 КЖ Схема расположения каналов электрочасти (вариант установки 2КТП-630). Разрез 1-1
ТП 901-1-84.87 КЖ Схема расположения каналов электрочасти (вариант установки 2КТП-400,2КТП-250). Разрезы 2-2…8-8
ТП 901-1-84.87 КЖ Каналы электрочасти. Разрезы 9-9…13-13
ТП 901-1-84.87 КЖ Балка БМ1…БМ5
ТП 901-1-84.87 КЖ Балка БМ1…БМ5. Спецификация. Ведомость расхода стали
ТП 901-1-84.87 КЖ Схема расположения приямка теплосети
ТП 901-1-84.87 КЖ Водонепроницаемый выгреб
ТП 901-1-84.87 КМ Основной комплект КМ
ТП 901-1-84.87 КМ Общие данные
ТП 901-1-84.87 КМ Схема расположения путей подвесного крана и монорельсов
ТП 901-1-84.87 КМ Узел 1…8. Балка МБ6
ТП 901-1-84.87 КМ Схемы расположения металлических лестниц и ограждений
ТП 901-1-84.87 КМ Разрез 3-3…9-9
ТП 901-1-84.87 КМ Узел 1…12
ТП 901-1-84.87 КМ Схемы расположения стоек, балок и кронштейнов под площадки
ТП 901-1-84.87 КМ Разрез 12-12…17-17. Узел 10...18
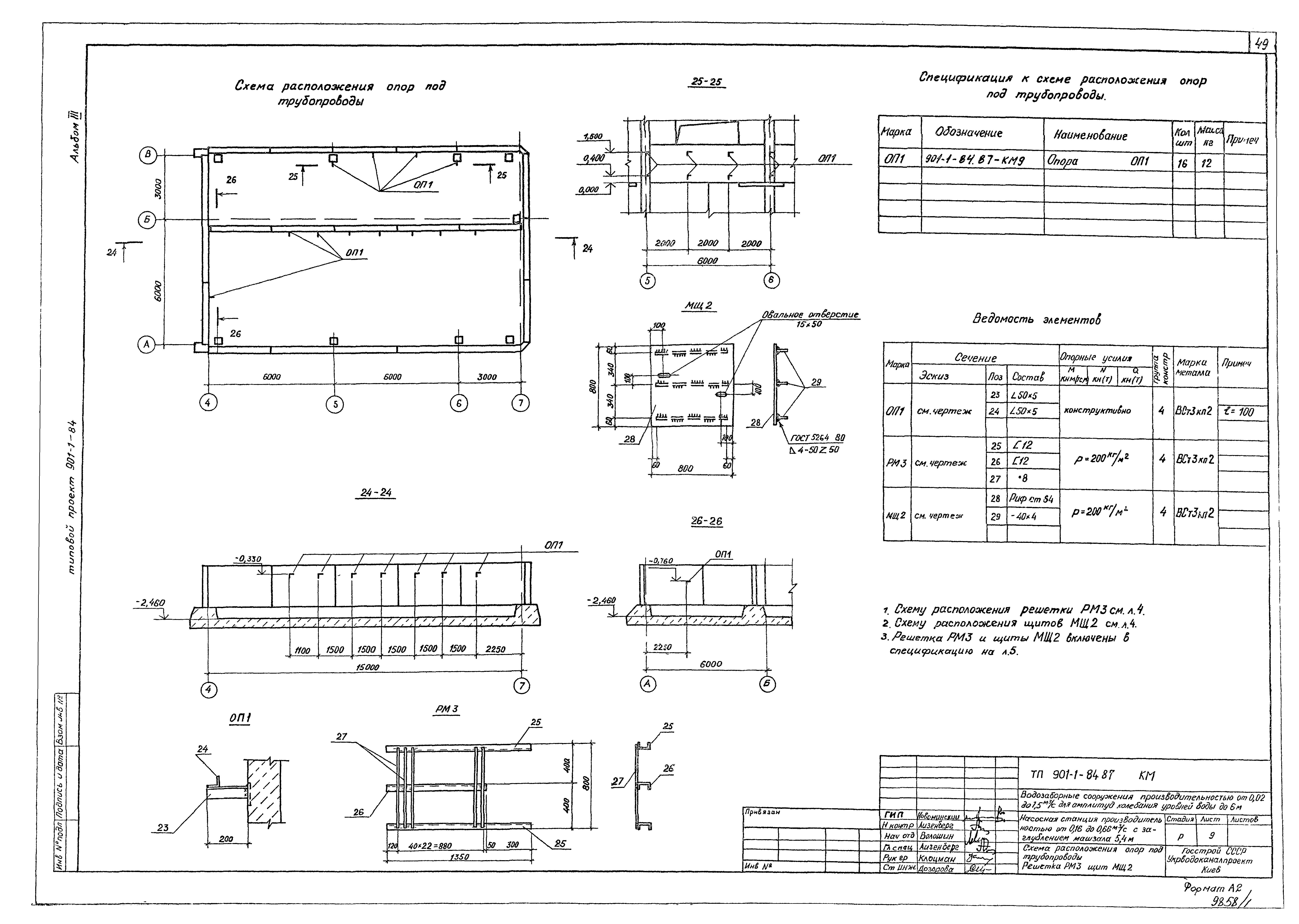
ТП 901-1-84.87 КМ Схема расположения опор под трубопроводы. Решетка РМЗ. Щит МЩ2
ТП 901-1-84.87 КМ Техническая спецификация металла (начало)
ТП 901-1-84.87 КМ Техническая спецификация металла (окончание)
Разработан: ГПИ Укрводоканалпроект
Утверждён:28.08.1987 Госстрой СССР (Государственный комитет Совета Министров СССР по делам строительства) (USSR Gosstroy 57)
Расположен в:Техническая документация Строительство Справочные документы Типовые строительные конструкции, изделия и узлы Общероссийский строительный каталог Промышленные предприятия, здания и сооружения Здания и сооружения санитарно-технические Водоснабжение Насосные станции Насосные станции водопроводные
Типовой проект 901-1-84.87Типовой проект 901-1-84.87Типовой проект 901-1-84.87Типовой проект 901-1-84.87Типовой проект 901-1-84.87Типовой проект 901-1-84.87Типовой проект 901-1-84.87Типовой проект 901-1-84.87Типовой проект 901-1-84.87Типовой проект 901-1-84.87Типовой проект 901-1-84.87Типовой проект 901-1-84.87Типовой проект 901-1-84.87Типовой проект 901-1-84.87Типовой проект 901-1-84.87Типовой проект 901-1-84.87Типовой проект 901-1-84.87Типовой проект 901-1-84.87Типовой проект 901-1-84.87Типовой проект 901-1-84.87Типовой проект 901-1-84.87Типовой проект 901-1-84.87Типовой проект 901-1-84.87Типовой проект 901-1-84.87Типовой проект 901-1-84.87Типовой проект 901-1-84.87Типовой проект 901-1-84.87Типовой проект 901-1-84.87Типовой проект 901-1-84.87Типовой проект 901-1-84.87Типовой проект 901-1-84.87Типовой проект 901-1-84.87Типовой проект 901-1-84.87Типовой проект 901-1-84.87Типовой проект 901-1-84.87Типовой проект 901-1-84.87Типовой проект 901-1-84.87Типовой проект 901-1-84.87Типовой проект 901-1-84.87Типовой проект 901-1-84.87Типовой проект 901-1-84.87Типовой проект 901-1-84.87Типовой проект 901-1-84.87Типовой проект 901-1-84.87Типовой проект 901-1-84.87Типовой проект 901-1-84.87Типовой проект 901-1-84.87Типовой проект 901-1-84.87Типовой проект 901-1-84.87Типовой проект 901-1-84.87Типовой проект 901-1-84.87

© 2013 Ёшкин Кот :-) Карта сайта