Информационная система
«Ёшкин Кот»

Скачать базу одним архивом
Скачать обновления
История создания базы
Карта сайта

Скачать Технологическая карта 7390 ТК Технологическая карта. Устройство вводов водопровода в здания и сооружения

Дата актуализации: 10.08.2017

Технологическая карта 7390 ТК

Технологическая карта. Устройство вводов водопровода в здания и сооружения

Обозначение: Технологическая карта 7390 ТК
Обозначение англ: 7390 ТК
Статус:не установлен срок действия
Название рус.:Технологическая карта. Устройство вводов водопровода в здания и сооружения
Дата добавления в базу:01.09.2013
Дата актуализации:05.05.2017
Дата введения:01.01.2007
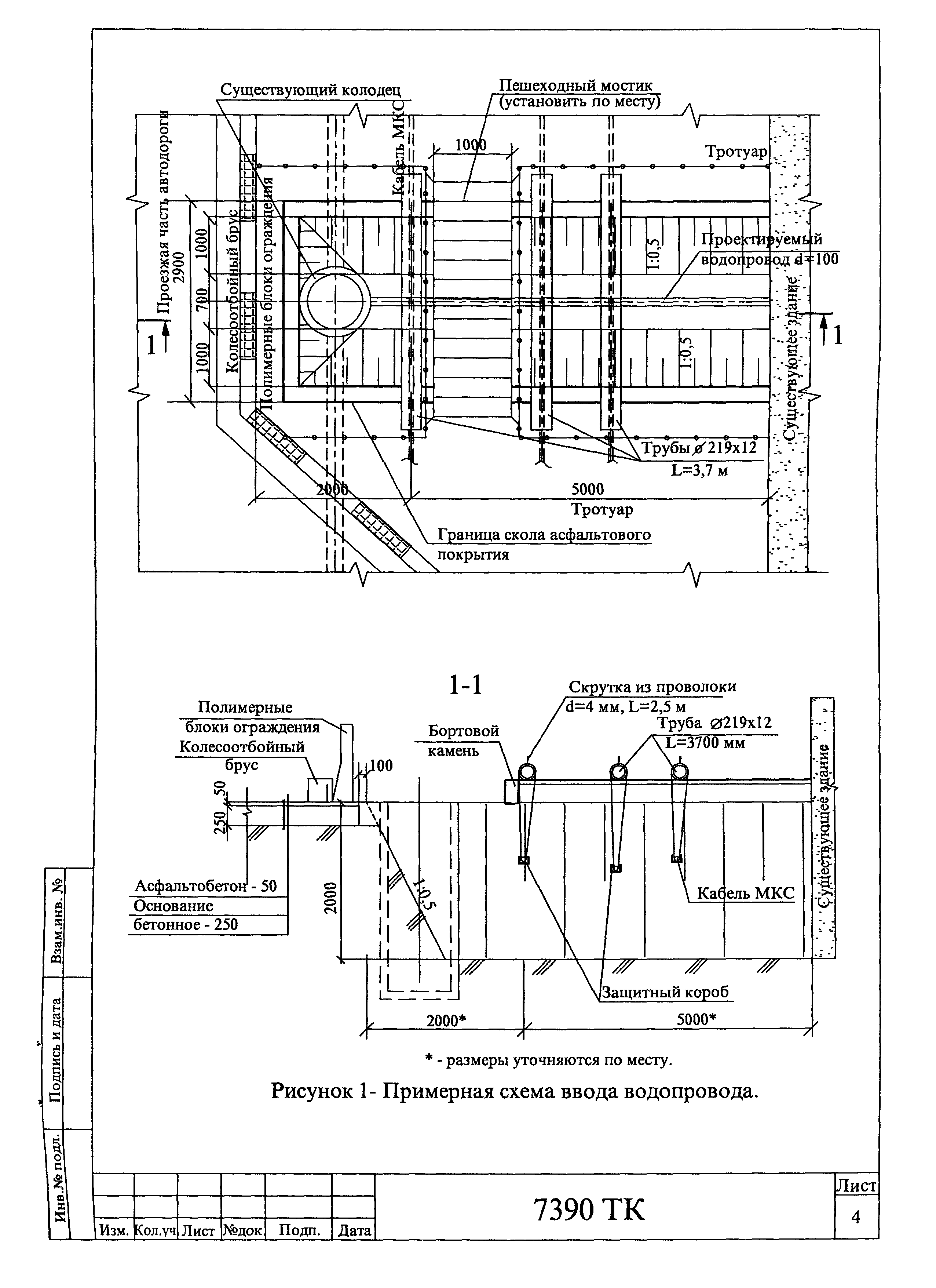
Область применения:Технологическая карта на устройство вводов водопровода предназначена для использования при производстве строительных работ при подключении сети водопровода в здания и сооружения, расположенные вдоль автодорог и магистралей, а также пешеходных зон в условиях сложившейся застройки.
Оглавление:1 Общие данные
2 Организация и технология строительного процесса
3 Требования к качеству и приемке работ
4 Требования безопасности и охраны труда, экологической и пожарной безопасности
5 Потребность в материально-технических ресурсах
6 Технико-экономические показатели
7 Перечень нормативно-технической литературы
Разработан: ОАО ПКТИпромстрой
Утверждён:01.01.2007 ОАО ПКТИпромстрой (PKTIpromstroy OAO )
Издан: ПКТИ Промстрой (2007 г. )
Расположен в:Техническая документация Строительство Справочные документы Технологические карты Водопровод - наружные сети
Нормативные ссылки:
Технологическая карта 7390 ТКТехнологическая карта 7390 ТКТехнологическая карта 7390 ТКТехнологическая карта 7390 ТКТехнологическая карта 7390 ТКТехнологическая карта 7390 ТКТехнологическая карта 7390 ТКТехнологическая карта 7390 ТКТехнологическая карта 7390 ТКТехнологическая карта 7390 ТКТехнологическая карта 7390 ТКТехнологическая карта 7390 ТКТехнологическая карта 7390 ТКТехнологическая карта 7390 ТКТехнологическая карта 7390 ТКТехнологическая карта 7390 ТКТехнологическая карта 7390 ТКТехнологическая карта 7390 ТКТехнологическая карта 7390 ТКТехнологическая карта 7390 ТКТехнологическая карта 7390 ТКТехнологическая карта 7390 ТК

© 2013 Ёшкин Кот :-) Карта сайта