Информационная система
«Ёшкин Кот»

Скачать базу одним архивом
Скачать обновления
История создания базы
Карта сайта

Скачать Типовой проект 211-1-290с.84 Альбом 2. Отопление и вентиляция. Водопровод и канализация. Электрооборудование. Связь и сигнализация

Дата актуализации: 10.08.2017

Типовой проект 211-1-290с.84

Альбом 2. Отопление и вентиляция. Водопровод и канализация. Электрооборудование. Связь и сигнализация

Обозначение: Типовой проект 211-1-290с.84
Обозначение англ: 211-1-290с.84
Статус:не действует
Название рус.:Альбом 2. Отопление и вентиляция. Водопровод и канализация. Электрооборудование. Связь и сигнализация
Дата добавления в базу:01.09.2013
Дата актуализации:05.05.2017
Оглавление:ТП 211-1-290с.84 ОВ Общие данные
ТП 211-1-290с.84 ОВ Блок "А". План тех.подполья
ТП 211-1-290с.84 ОВ Блок "Б". План тех.подполья
ТП 211-1-290с.84 ОВ Блок "А". План 1 этажа
ТП 211-1-290с.84 ОВ Блок "Б". План 1 этажа
ТП 211-1-290с.84 ОВ Блок "А". План 2 этажа
ТП 211-1-290с.84 ОВ Блок "Б". План 2 этажа
ТП 211-1-290с.84 ОВ Схема системы отопления. Блок "А"
ТП 211-1-290с.84 ОВ Схема системы отопления. Блок "Б"
ТП 211-1-290с.84 ОВ Схема систем вентиляции. План кровли
ТП 211-1-290с.84 ОВ Приточная венткамера
ТП 211-1-290с.84 ВК Общие данные
ТП 211-1-290с.84 ВК Блок "А" и "Б". План технического подполья
ТП 211-1-290с.84 ВК Блок "А". Планы 1 и 2 этажей
ТП 211-1-290с.84 ВК Блок "Б". Планы 1 и 2 этажей
ТП 211-1-290с.84 ВК Схемы систем ВО;Т3;Т4;К2
ТП 211-1-290с.84 ВК Схема системы К1
ТП 211-1-290с.84 Э Общие данные
ТП 211-1-290с.84 Э Схемы электрические расчетные ГРЩ и ЩС2
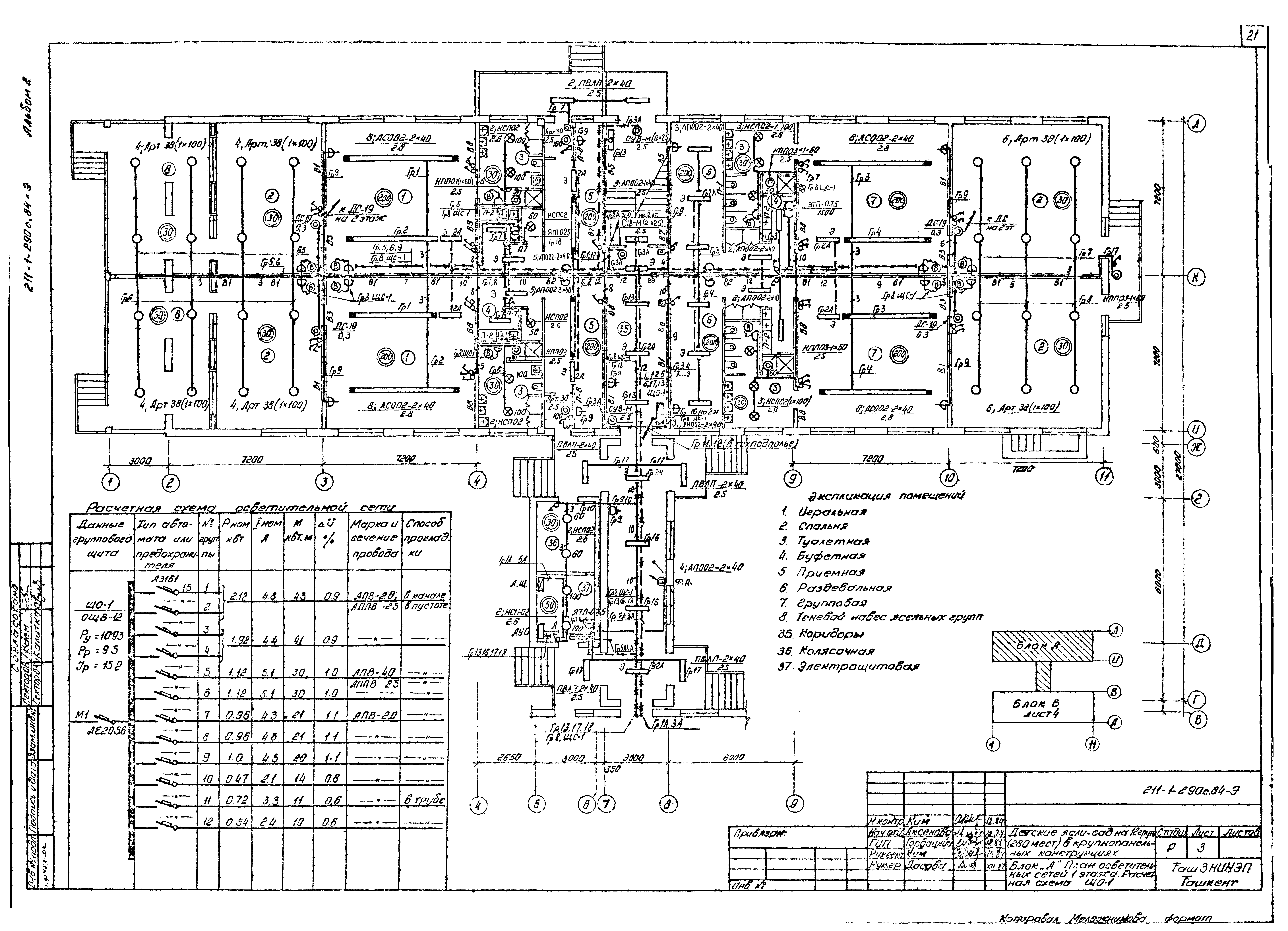
ТП 211-1-290с.84 Э Блок "А". План осветительных сетей 1 этажа. Расчетная схема ЩО1
ТП 211-1-290с.84 Э Блок "Б". План осветительных сетей 1 этажа. Расчетная схема ЩО3 и АЩ
ТП 211-1-290с.84 Э Блоки "А" и "Б". Планы осветительных сетей 2 этажа
ТП 211-1-290с.84 Э Блок "А". План осветительных сетей техподполья. Расчетные схемы ЩО2,ЩО4,АУО
ТП 211-1-290с.84 Э Блок "Б". План осветительных сетей техподполья. Схема трасс каналов в стеновых панелях и перегородках
ТП 211-1-290с.84 Э Блоки "А" и "Б". Планы силовых распределительных и магистральных сетей 1 и 2 этажей кровли
ТП 211-1-290с.84 Э Блоки "А" и "Б". Планы магистральных сетей техподполья. Расчетная схема ЩС-1
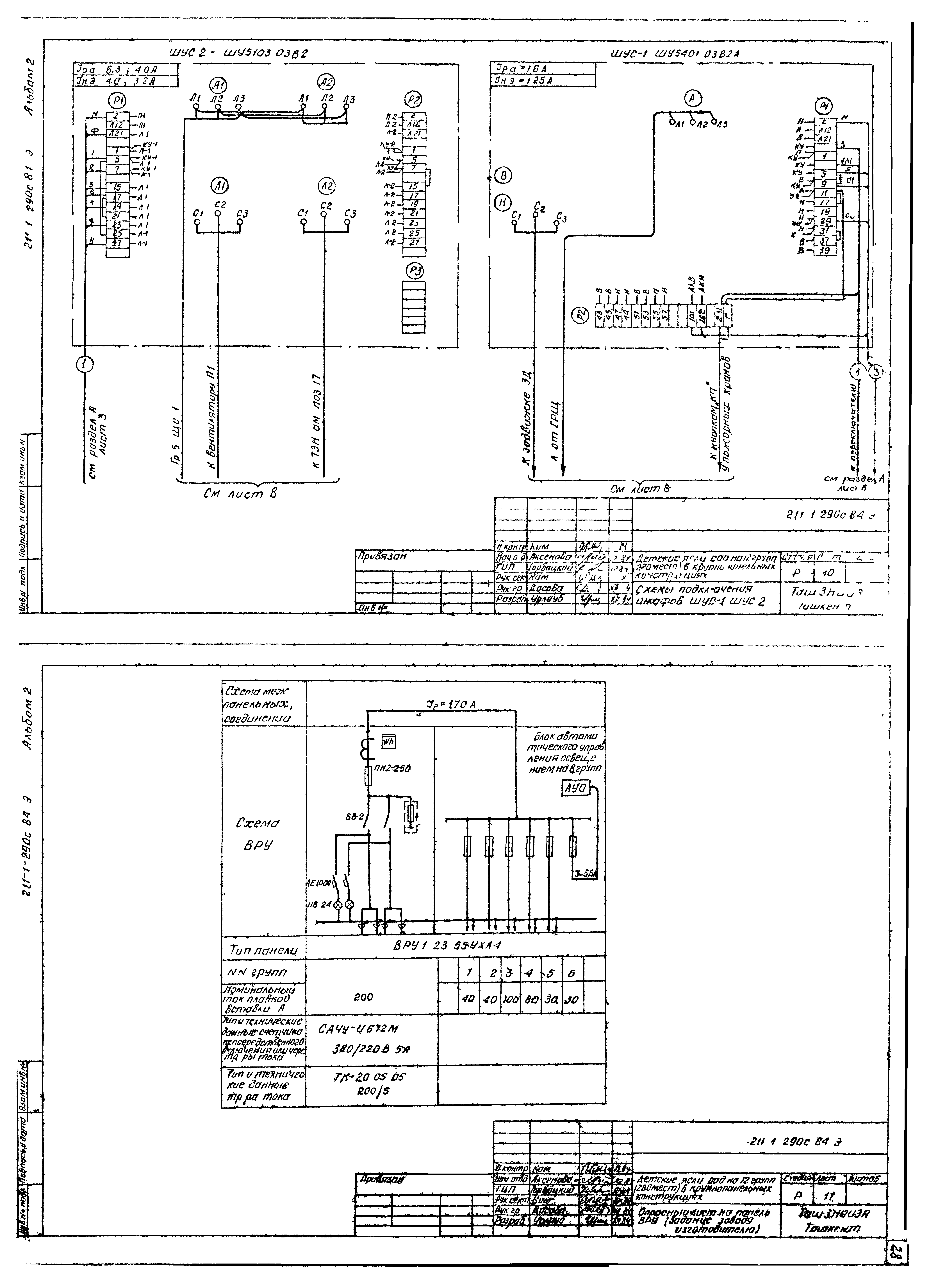
ТП 211-1-290с.84 Э Схемы подключения шкафов ШУС1,ШУС2
ТП 211-1-290с.84 Э Опросный лист на панель ВРУ (Задание заводу-изготовителю)
ТП 211-1-290с.84 ВЧ.А Общие данные
ТП 211-1-290с.84 ВЧ.А Приточная система П1. Схемы функциональная и электрическая принципиальная управления
ТП 211-1-290с.84 ВЧ.А Приточная система П1. Схема внешних проводок. План расположения
ТП 211-1-290с.84 ВЧ.А Задвижка на вводе водопровода. Схемы электрическая принципиальная управления и внешних проводок
ТП 211-1-290с.84 СС Общие данные
ТП 211-1-290с.84 СС Блок "Б". План сетей 1 этажа
ТП 211-1-290с.84 СС Блок "Б". План сетей 2 этажа
ТП 211-1-290с.84 СС Блок "А". План сетей 1 этажа
ТП 211-1-290с.84 СС Блок "А". План сетей 2 этажа. План сетей технического подполья и кровли
Разработан: ТашЗНИИЭП Госгражданстроя
Утверждён:21.06.1984 Госгражданстрой (Gosgrazhdanstroy 168)
Расположен в:Техническая документация Строительство Справочные документы Типовые строительные конструкции, изделия и узлы Общероссийский строительный каталог Общественные здания в городах и поселках городского типа Детские дошкольные учреждения Детские ясли-сады
Типовой проект 211-1-290с.84Типовой проект 211-1-290с.84Типовой проект 211-1-290с.84Типовой проект 211-1-290с.84Типовой проект 211-1-290с.84Типовой проект 211-1-290с.84Типовой проект 211-1-290с.84Типовой проект 211-1-290с.84Типовой проект 211-1-290с.84Типовой проект 211-1-290с.84Типовой проект 211-1-290с.84Типовой проект 211-1-290с.84Типовой проект 211-1-290с.84Типовой проект 211-1-290с.84Типовой проект 211-1-290с.84Типовой проект 211-1-290с.84Типовой проект 211-1-290с.84Типовой проект 211-1-290с.84Типовой проект 211-1-290с.84Типовой проект 211-1-290с.84Типовой проект 211-1-290с.84Типовой проект 211-1-290с.84Типовой проект 211-1-290с.84Типовой проект 211-1-290с.84Типовой проект 211-1-290с.84Типовой проект 211-1-290с.84Типовой проект 211-1-290с.84Типовой проект 211-1-290с.84Типовой проект 211-1-290с.84Типовой проект 211-1-290с.84Типовой проект 211-1-290с.84Типовой проект 211-1-290с.84Типовой проект 211-1-290с.84Типовой проект 211-1-290с.84Типовой проект 211-1-290с.84Типовой проект 211-1-290с.84Типовой проект 211-1-290с.84Типовой проект 211-1-290с.84

© 2013 Ёшкин Кот :-) Карта сайта