Информационная система
«Ёшкин Кот»

Скачать базу одним архивом
Скачать обновления
История создания базы
Карта сайта

Скачать Типовой проект 503-7-12.88 Альбом 5. Строительные изделия

Дата актуализации: 10.08.2017

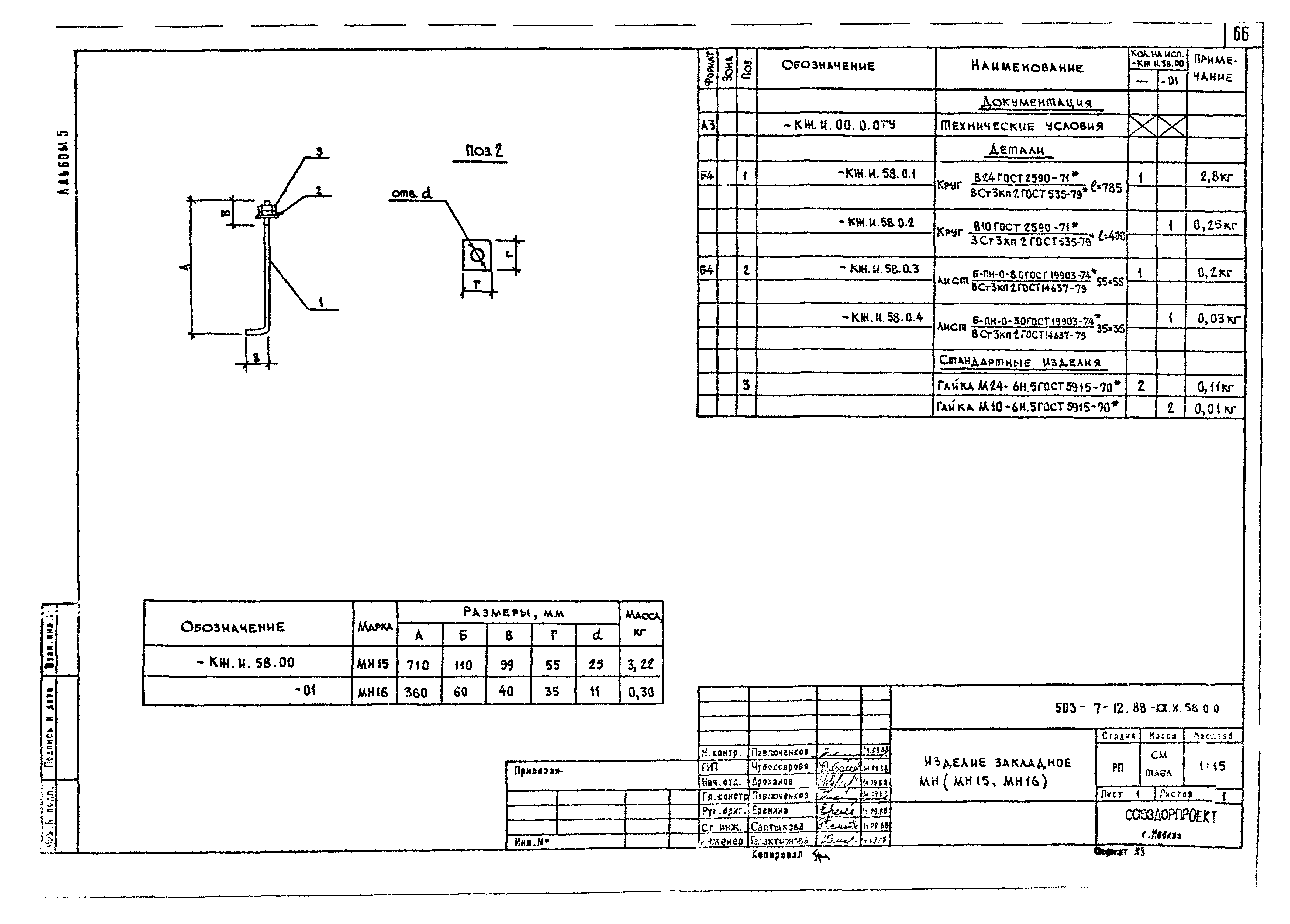
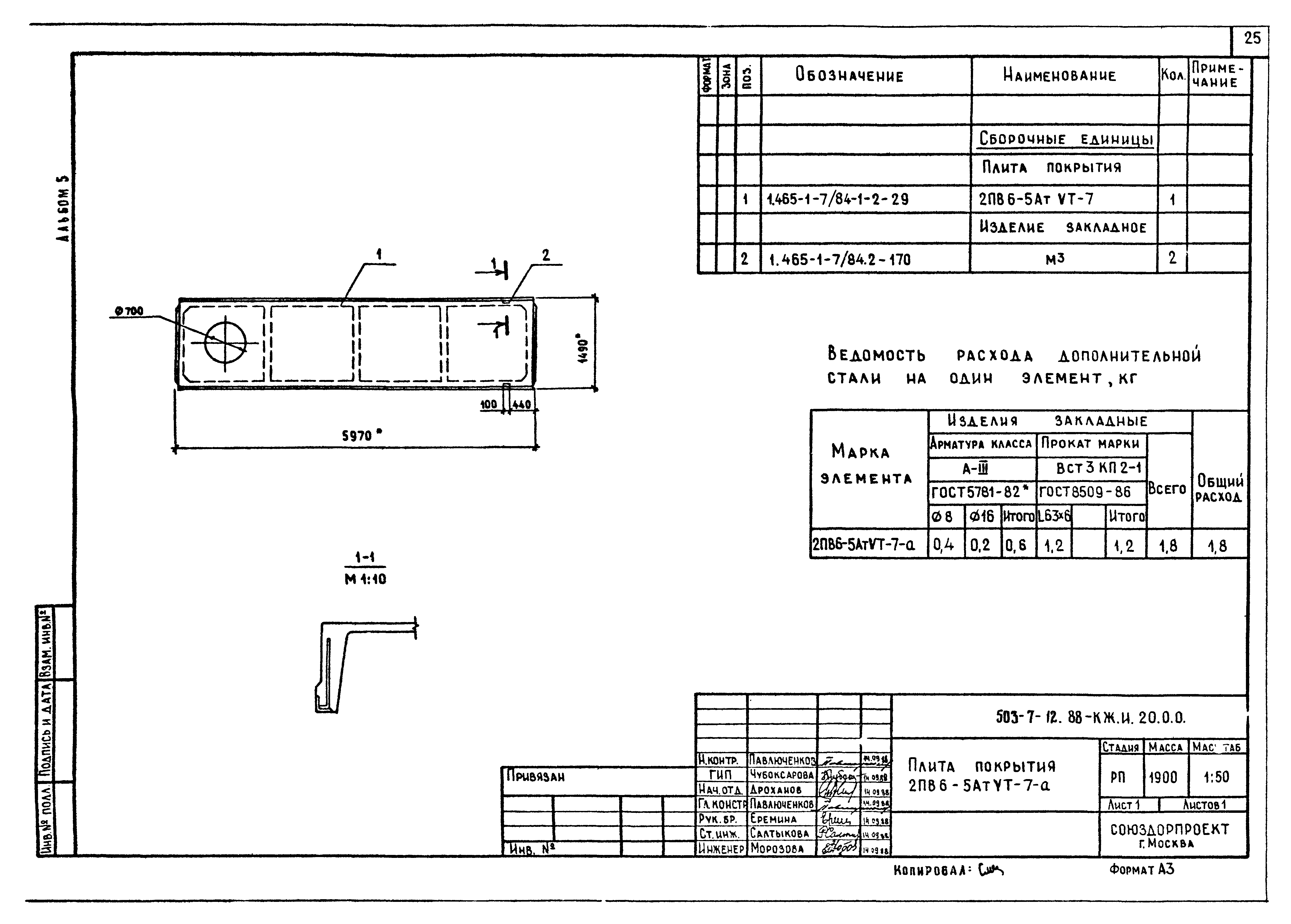
Типовой проект 503-7-12.88

Альбом 5. Строительные изделия

Обозначение: Типовой проект 503-7-12.88
Обозначение англ: 503-7-12.88
Статус:не определен законодательством
Название рус.:Альбом 5. Строительные изделия
Дата добавления в базу:01.09.2013
Дата актуализации:05.05.2017
Дата введения:28.10.1988
Разработан: ГПИ Союздорпроект
Утверждён:27.10.1988 Минтрансстрой СССР (USSR Mintransstroy АВ-640)
Расположен в:Техническая документация Строительство Справочные документы Типовые строительные конструкции, изделия и узлы Общероссийский строительный каталог Защитные сооружения гражданской обороны Типовые проекты защитных сооружений гражданской обороны для объектов промышленности, электроэнергетики, транспорта, связи и складского хозяйства Встроенные помещения, приспосабливаемые под противорадиационные укрытия Противорадиационные укрытия в зданиях и сооружениях транспорта Промышленные предприятия, здания и сооружения Предприятия, здания и сооружения транспорта Транспорт автомобильный Строительство, ремонт и эксплуатация автомобильных дорог
Типовой проект 503-7-12.88Типовой проект 503-7-12.88Типовой проект 503-7-12.88Типовой проект 503-7-12.88Типовой проект 503-7-12.88Типовой проект 503-7-12.88Типовой проект 503-7-12.88Типовой проект 503-7-12.88Типовой проект 503-7-12.88Типовой проект 503-7-12.88Типовой проект 503-7-12.88Типовой проект 503-7-12.88Типовой проект 503-7-12.88Типовой проект 503-7-12.88Типовой проект 503-7-12.88Типовой проект 503-7-12.88Типовой проект 503-7-12.88Типовой проект 503-7-12.88Типовой проект 503-7-12.88Типовой проект 503-7-12.88Типовой проект 503-7-12.88Типовой проект 503-7-12.88Типовой проект 503-7-12.88Типовой проект 503-7-12.88Типовой проект 503-7-12.88Типовой проект 503-7-12.88Типовой проект 503-7-12.88Типовой проект 503-7-12.88Типовой проект 503-7-12.88Типовой проект 503-7-12.88Типовой проект 503-7-12.88Типовой проект 503-7-12.88Типовой проект 503-7-12.88Типовой проект 503-7-12.88Типовой проект 503-7-12.88Типовой проект 503-7-12.88Типовой проект 503-7-12.88Типовой проект 503-7-12.88Типовой проект 503-7-12.88Типовой проект 503-7-12.88Типовой проект 503-7-12.88Типовой проект 503-7-12.88Типовой проект 503-7-12.88Типовой проект 503-7-12.88Типовой проект 503-7-12.88Типовой проект 503-7-12.88Типовой проект 503-7-12.88Типовой проект 503-7-12.88Типовой проект 503-7-12.88Типовой проект 503-7-12.88Типовой проект 503-7-12.88Типовой проект 503-7-12.88Типовой проект 503-7-12.88Типовой проект 503-7-12.88Типовой проект 503-7-12.88Типовой проект 503-7-12.88Типовой проект 503-7-12.88Типовой проект 503-7-12.88Типовой проект 503-7-12.88Типовой проект 503-7-12.88Типовой проект 503-7-12.88Типовой проект 503-7-12.88Типовой проект 503-7-12.88Типовой проект 503-7-12.88Типовой проект 503-7-12.88Типовой проект 503-7-12.88Типовой проект 503-7-12.88Типовой проект 503-7-12.88Типовой проект 503-7-12.88Типовой проект 503-7-12.88Типовой проект 503-7-12.88Типовой проект 503-7-12.88Типовой проект 503-7-12.88Типовой проект 503-7-12.88Типовой проект 503-7-12.88Типовой проект 503-7-12.88Типовой проект 503-7-12.88

© 2013 Ёшкин Кот :-) Карта сайта