Информационная система
«Ёшкин Кот»

Скачать базу одним архивом
Скачать обновления
История создания базы
Карта сайта

Скачать Шифр М24.03/2007 Выпуск 1. Материалы для проектирования и рабочие чертежи узлов

Дата актуализации: 10.08.2017

Шифр М24.03/2007

Выпуск 1. Материалы для проектирования и рабочие чертежи узлов

Обозначение: Шифр М24.03/2007
Обозначение англ: М24.03/2007
Статус:не определен законодательством
Название рус.:Выпуск 1. Материалы для проектирования и рабочие чертежи узлов
Дата добавления в базу:01.09.2013
Дата актуализации:05.05.2017
Дата введения:02.04.2007
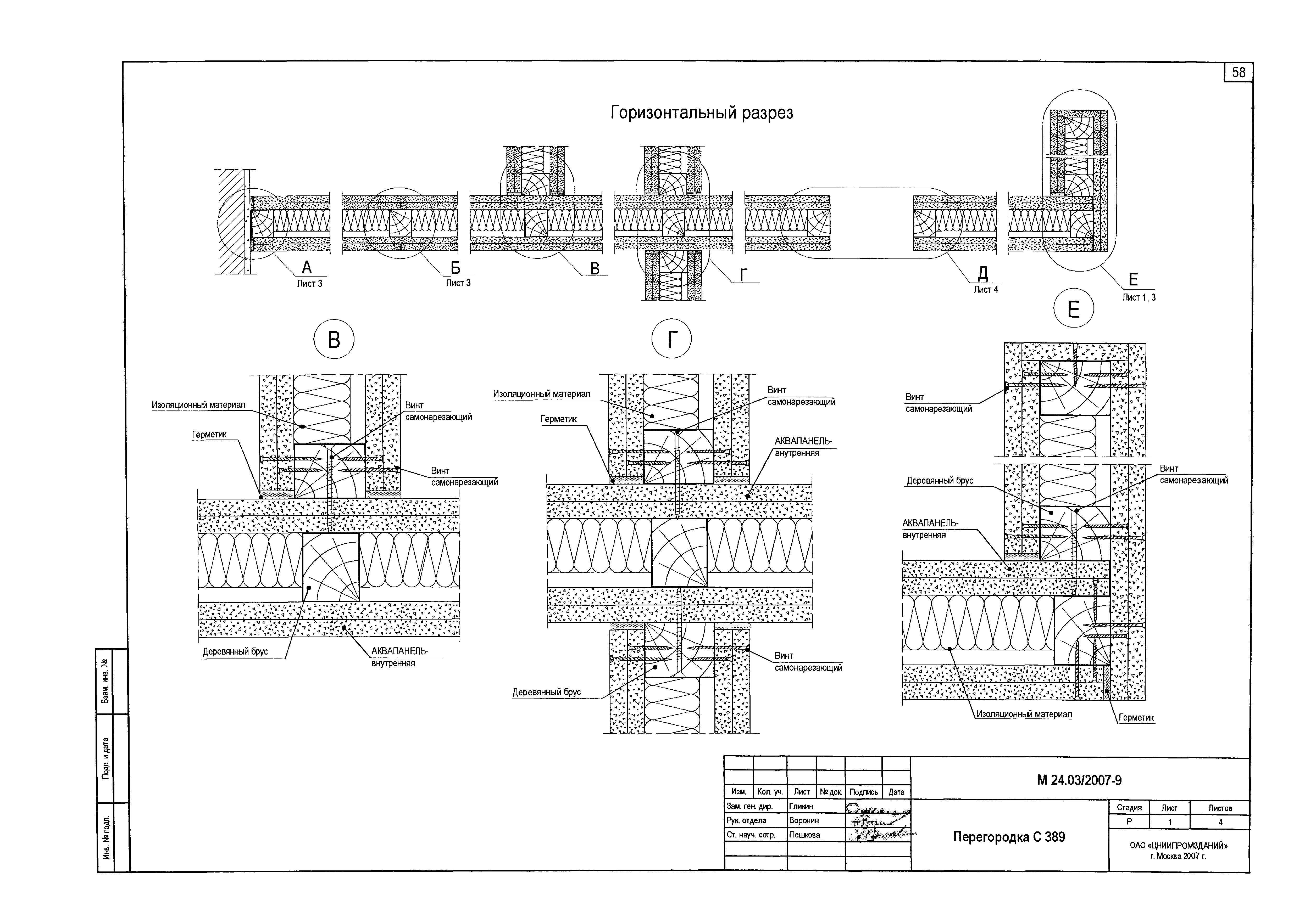
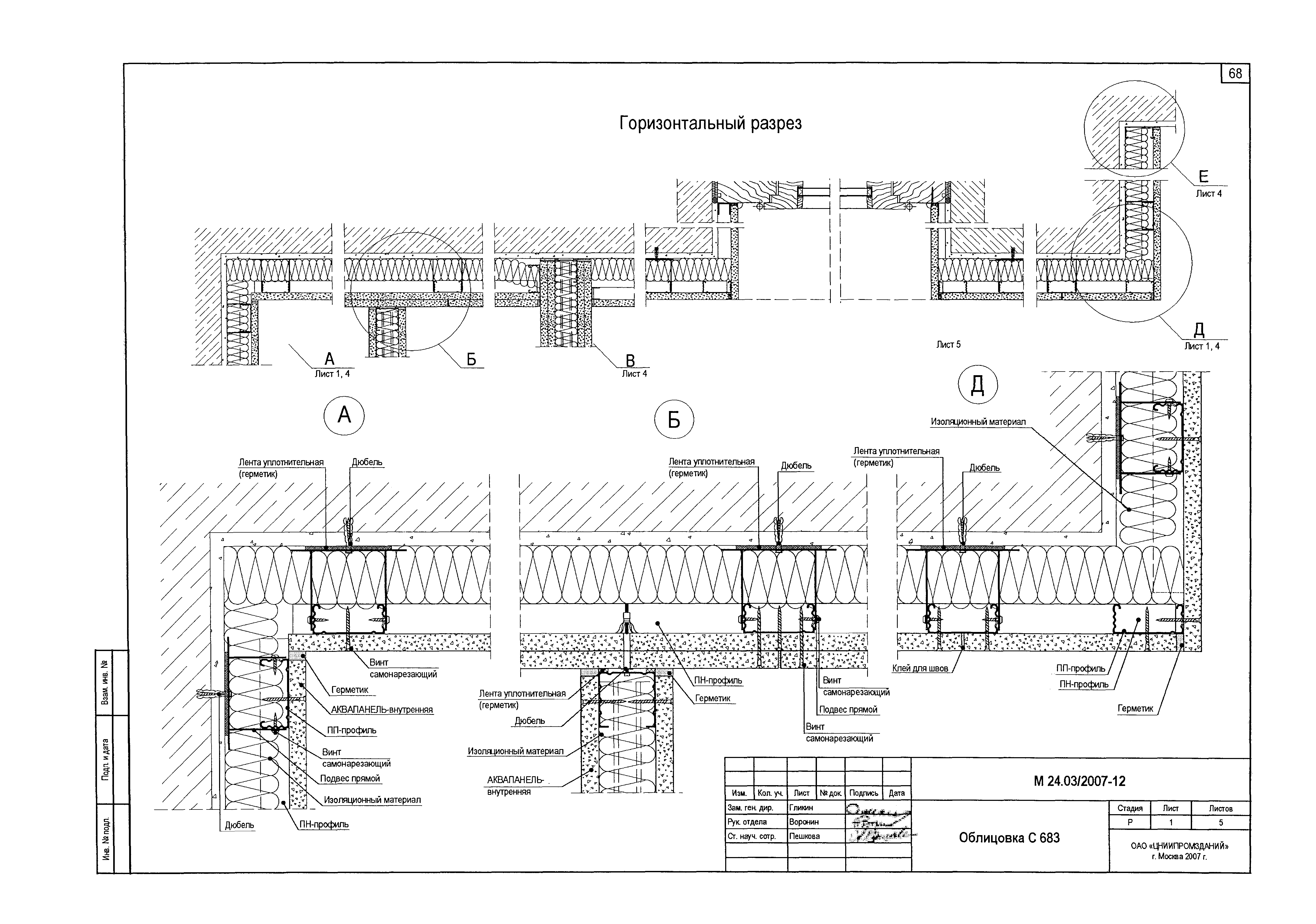
Область применения:Альбом содержит материалы для проектирования и рабочие чертежи узлов конструкций поэлементной сборки (каркасно-обшивных перегородок, подвесных потолков, облицовок стен и коммуникационных шахт) с применением армированных цементно-минеральных плит "Аквапанель-внутренняя"
Разработан: ОАО ЦНИИпромзданий
ООО КНАУФ-Сервис
Утверждён:01.01.2007 ЦНИИ промзданий (TsNII promzdaniy )
Расположен в:Техническая документация Строительство Справочные документы Типовые строительные конструкции, изделия и узлы Разработанные другими министерствами, ведомствами и организациями
Шифр М24.03/2007Шифр М24.03/2007Шифр М24.03/2007Шифр М24.03/2007Шифр М24.03/2007Шифр М24.03/2007Шифр М24.03/2007Шифр М24.03/2007Шифр М24.03/2007Шифр М24.03/2007Шифр М24.03/2007Шифр М24.03/2007Шифр М24.03/2007Шифр М24.03/2007Шифр М24.03/2007Шифр М24.03/2007Шифр М24.03/2007Шифр М24.03/2007Шифр М24.03/2007Шифр М24.03/2007Шифр М24.03/2007Шифр М24.03/2007Шифр М24.03/2007Шифр М24.03/2007Шифр М24.03/2007Шифр М24.03/2007Шифр М24.03/2007Шифр М24.03/2007Шифр М24.03/2007Шифр М24.03/2007Шифр М24.03/2007Шифр М24.03/2007Шифр М24.03/2007Шифр М24.03/2007Шифр М24.03/2007Шифр М24.03/2007Шифр М24.03/2007Шифр М24.03/2007Шифр М24.03/2007Шифр М24.03/2007Шифр М24.03/2007Шифр М24.03/2007Шифр М24.03/2007Шифр М24.03/2007Шифр М24.03/2007Шифр М24.03/2007Шифр М24.03/2007Шифр М24.03/2007Шифр М24.03/2007Шифр М24.03/2007Шифр М24.03/2007Шифр М24.03/2007Шифр М24.03/2007Шифр М24.03/2007Шифр М24.03/2007Шифр М24.03/2007Шифр М24.03/2007Шифр М24.03/2007Шифр М24.03/2007Шифр М24.03/2007Шифр М24.03/2007Шифр М24.03/2007Шифр М24.03/2007Шифр М24.03/2007Шифр М24.03/2007Шифр М24.03/2007Шифр М24.03/2007Шифр М24.03/2007Шифр М24.03/2007Шифр М24.03/2007Шифр М24.03/2007Шифр М24.03/2007Шифр М24.03/2007Шифр М24.03/2007Шифр М24.03/2007Шифр М24.03/2007Шифр М24.03/2007Шифр М24.03/2007Шифр М24.03/2007Шифр М24.03/2007Шифр М24.03/2007Шифр М24.03/2007Шифр М24.03/2007Шифр М24.03/2007Шифр М24.03/2007Шифр М24.03/2007Шифр М24.03/2007Шифр М24.03/2007Шифр М24.03/2007Шифр М24.03/2007Шифр М24.03/2007Шифр М24.03/2007Шифр М24.03/2007Шифр М24.03/2007Шифр М24.03/2007Шифр М24.03/2007

© 2013 Ёшкин Кот :-) Карта сайта