| ||||||||||||||||||||||||||||||||
Скачать Шифр М25.12/03 Конструкции междуэтажных и чердачных перекрытий из тонкостенных профилей производства ООО ТАЛДОМ ПРОФИЛЬ. Рекомендации по проектированиюДата актуализации: 10.08.2017
|
| Обозначение: | Шифр М25.12/03 |
| Обозначение англ: | М25.12/03 |
| Статус: | не определен законодательством |
| Название рус.: | Конструкции междуэтажных и чердачных перекрытий из тонкостенных профилей производства ООО "ТАЛДОМ ПРОФИЛЬ". Рекомендации по проектированию |
| Дата добавления в базу: | 01.09.2013 |
| Дата актуализации: | 05.05.2017 |
| Дата введения: | 01.12.2003 |
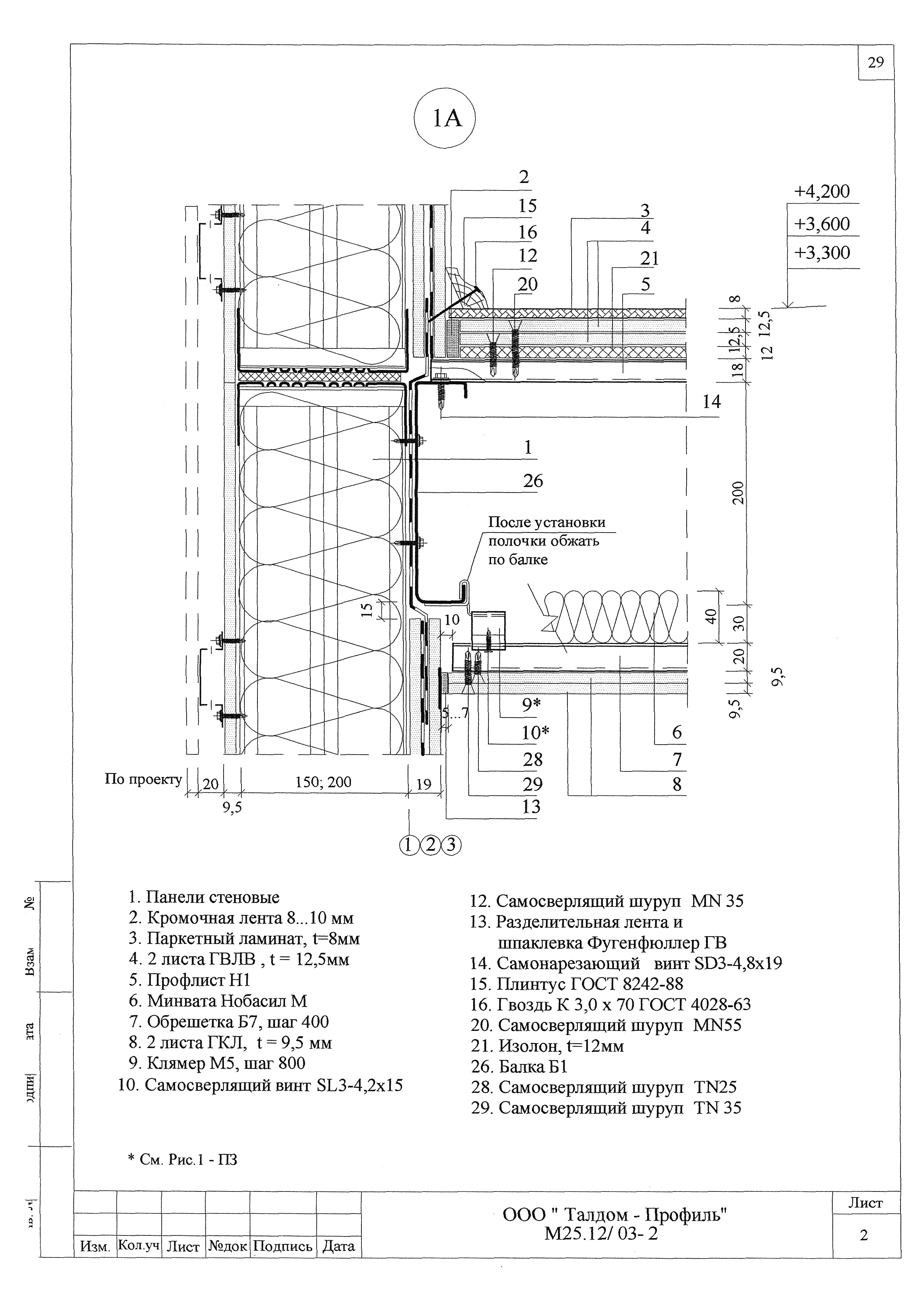
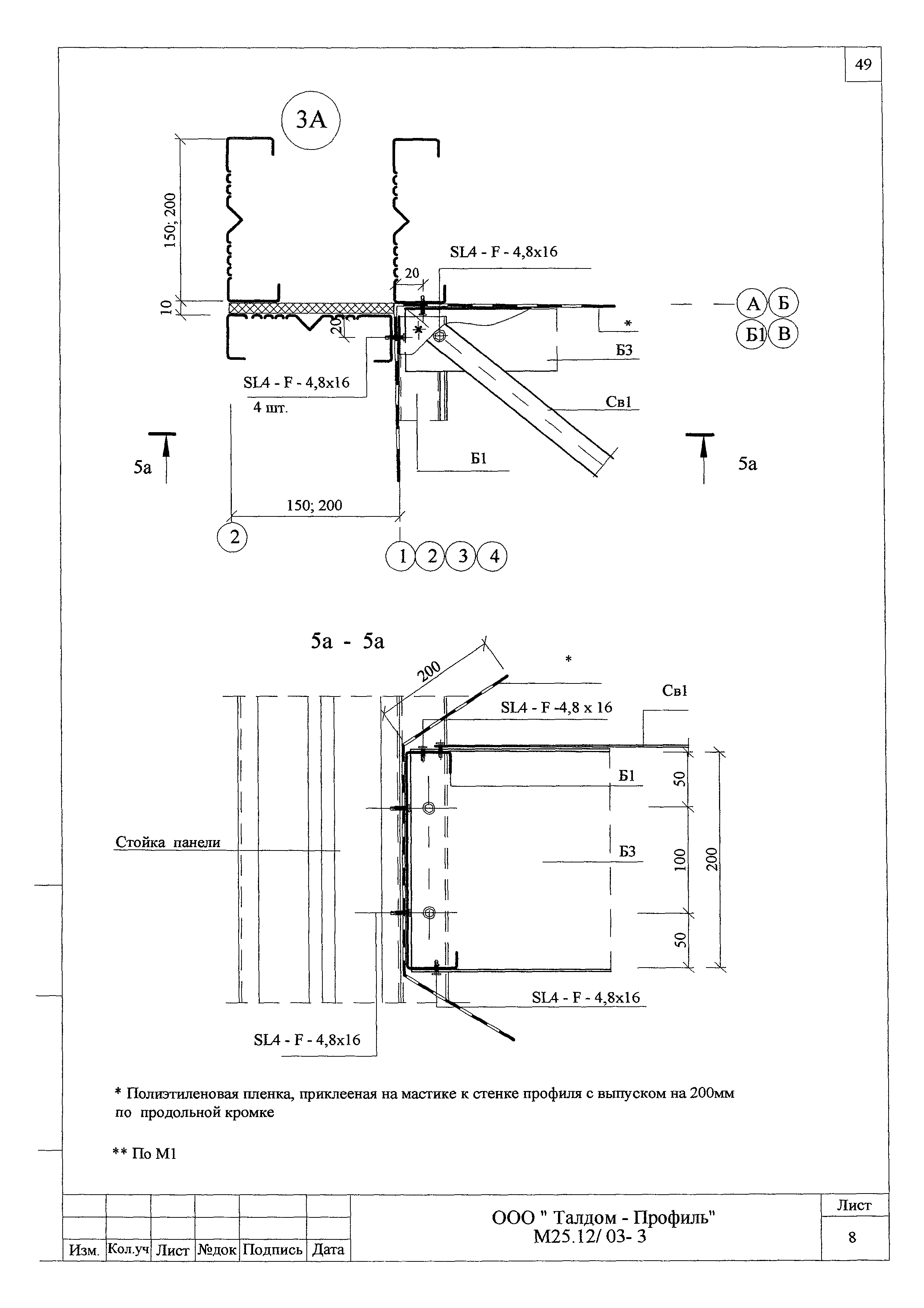
| Область применения: | Работа содержит рекомендации по проектированию конструкций междуэтажных перекрытий с балками из С-образных профилей и чердачных перекрытий с балками из термопрофилей в зданиях со стенами с каркасом из термопрофилей. Конструкции разработаны для жилых, общественных, административно-бытовых и производственных зданий с сухим или нормальным влажностным режимом помещений для строительства в сухой и нормальной зонах влажности со снеговой и ветровой нагрузкой I-IV районов по СНиП 2.01.07-85. |
| Оглавление: | Пояснительная записка 1. Область применения 2. Конструкция междуэтажных перекрытий 3. Конструкция чердачных перекрытий Планы этажей, разрезы, фасад Узлы 1-9 Монтажная схема каркаса междуэтажного перекрытия. Узлы 1 - 13 Монтажная схема каркаса чердачного перекрытия. Узлы 1 - 5 Спецификация профилей Приложения |
| Разработан: | ОАО ЦНИИпромзданий ООО Талдом-Термо |
| Утверждён: | 01.12.2003 ОАО ЦНИИпромзданий (TsNIIpromzdaniy OAO ) |
| Принят: | 01.12.2003 ООО Талдом-Профиль |
| Расположен в: | |
| Нормативные ссылки: |
|








































































































