Информационная система
«Ёшкин Кот»

Скачать базу одним архивом
Скачать обновления
История создания базы
Карта сайта

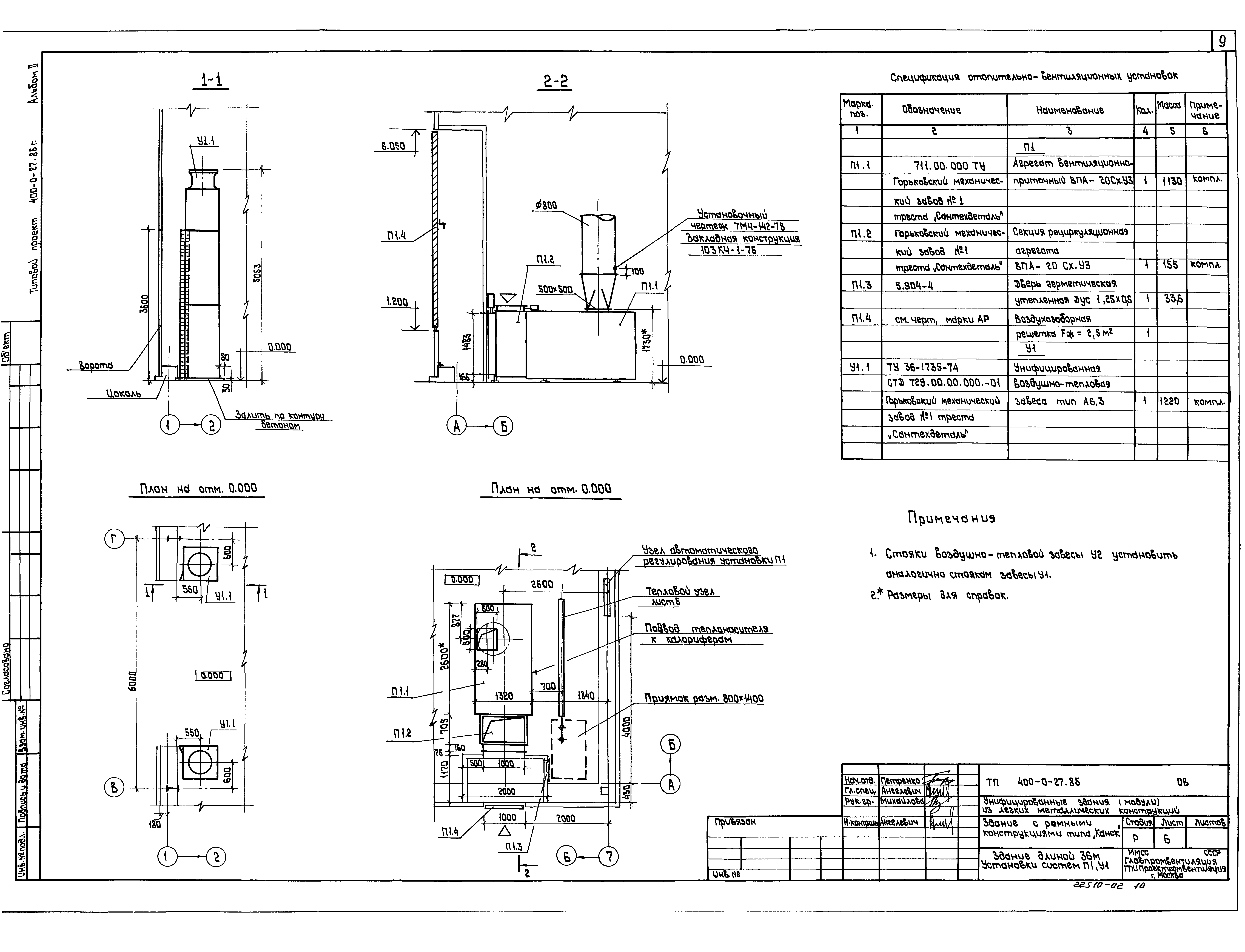
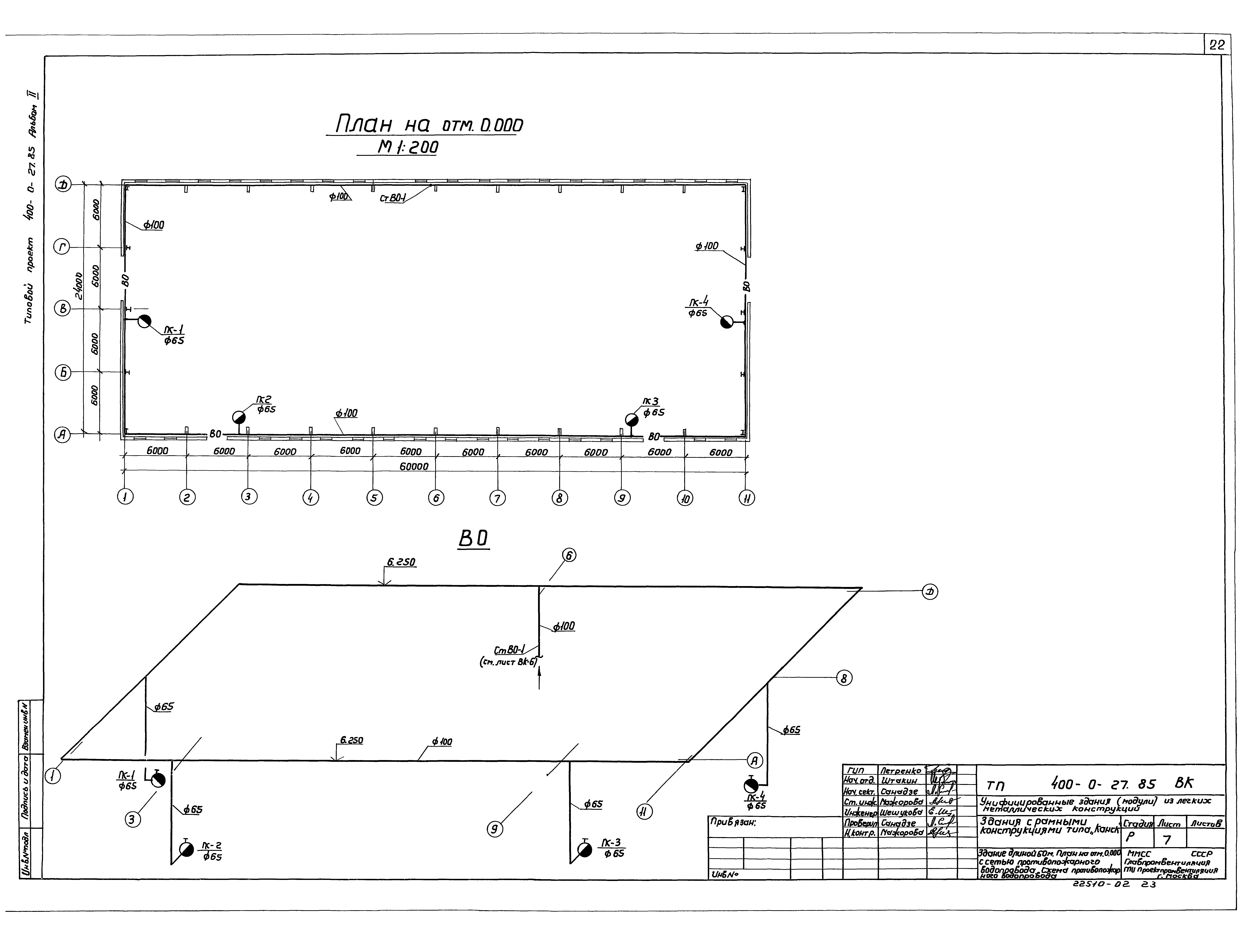
Скачать Типовые проектные решения 400-0-27.85 Альбом II. Отопление и вентиляция. Внутренние водопровод и канализация. Силовое электрооборудование. Автоматизация. Электроосвещение

Дата актуализации: 10.08.2017

Типовые проектные решения 400-0-27.85

Альбом II. Отопление и вентиляция. Внутренние водопровод и канализация. Силовое электрооборудование. Автоматизация. Электроосвещение

Обозначение: Типовые проектные решения 400-0-27.85
Обозначение англ: 400-0-27.85
Статус:cправочные материалы, мп, тпр
Название рус.:Альбом II. Отопление и вентиляция. Внутренние водопровод и канализация. Силовое электрооборудование. Автоматизация. Электроосвещение
Дата добавления в базу:01.09.2013
Дата актуализации:05.05.2017
Дата введения:01.01.1987
Разработан: Электропроект Минмонтажспецстроя СССР
ГПИ Проектпромвентиляция
Утверждён:11.10.1986 Госстрой СССР (Государственный комитет Совета Министров СССР по делам строительства) (USSR Gosstroy АЧ-63)
Расположен в:Техническая документация Строительство Справочные документы Типовые строительные конструкции, изделия и узлы Общероссийский строительный каталог Промышленные предприятия, здания и сооружения Предприятия, здания и сооружения промышленности и электроэнергетики Материалы общие межотраслевые. Унифицированные здания (модули, секции)
Типовые проектные решения 400-0-27.85Типовые проектные решения 400-0-27.85Типовые проектные решения 400-0-27.85Типовые проектные решения 400-0-27.85Типовые проектные решения 400-0-27.85Типовые проектные решения 400-0-27.85Типовые проектные решения 400-0-27.85Типовые проектные решения 400-0-27.85Типовые проектные решения 400-0-27.85Типовые проектные решения 400-0-27.85Типовые проектные решения 400-0-27.85Типовые проектные решения 400-0-27.85Типовые проектные решения 400-0-27.85Типовые проектные решения 400-0-27.85Типовые проектные решения 400-0-27.85Типовые проектные решения 400-0-27.85Типовые проектные решения 400-0-27.85Типовые проектные решения 400-0-27.85Типовые проектные решения 400-0-27.85Типовые проектные решения 400-0-27.85Типовые проектные решения 400-0-27.85Типовые проектные решения 400-0-27.85Типовые проектные решения 400-0-27.85Типовые проектные решения 400-0-27.85Типовые проектные решения 400-0-27.85Типовые проектные решения 400-0-27.85Типовые проектные решения 400-0-27.85Типовые проектные решения 400-0-27.85Типовые проектные решения 400-0-27.85Типовые проектные решения 400-0-27.85Типовые проектные решения 400-0-27.85Типовые проектные решения 400-0-27.85Типовые проектные решения 400-0-27.85Типовые проектные решения 400-0-27.85Типовые проектные решения 400-0-27.85Типовые проектные решения 400-0-27.85Типовые проектные решения 400-0-27.85Типовые проектные решения 400-0-27.85Типовые проектные решения 400-0-27.85Типовые проектные решения 400-0-27.85Типовые проектные решения 400-0-27.85Типовые проектные решения 400-0-27.85Типовые проектные решения 400-0-27.85Типовые проектные решения 400-0-27.85Типовые проектные решения 400-0-27.85Типовые проектные решения 400-0-27.85Типовые проектные решения 400-0-27.85Типовые проектные решения 400-0-27.85Типовые проектные решения 400-0-27.85Типовые проектные решения 400-0-27.85Типовые проектные решения 400-0-27.85Типовые проектные решения 400-0-27.85Типовые проектные решения 400-0-27.85

© 2013 Ёшкин Кот :-) Карта сайта