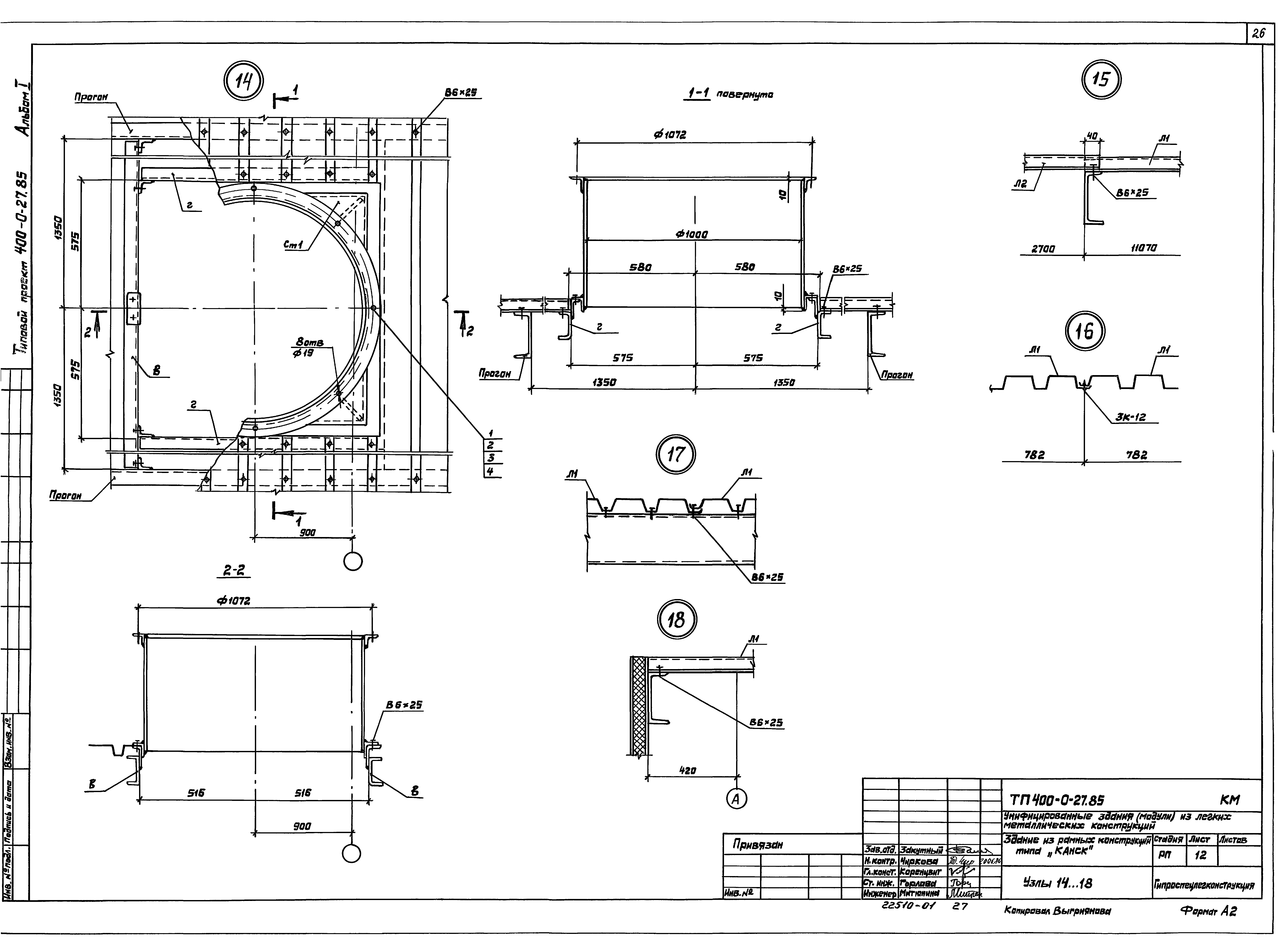
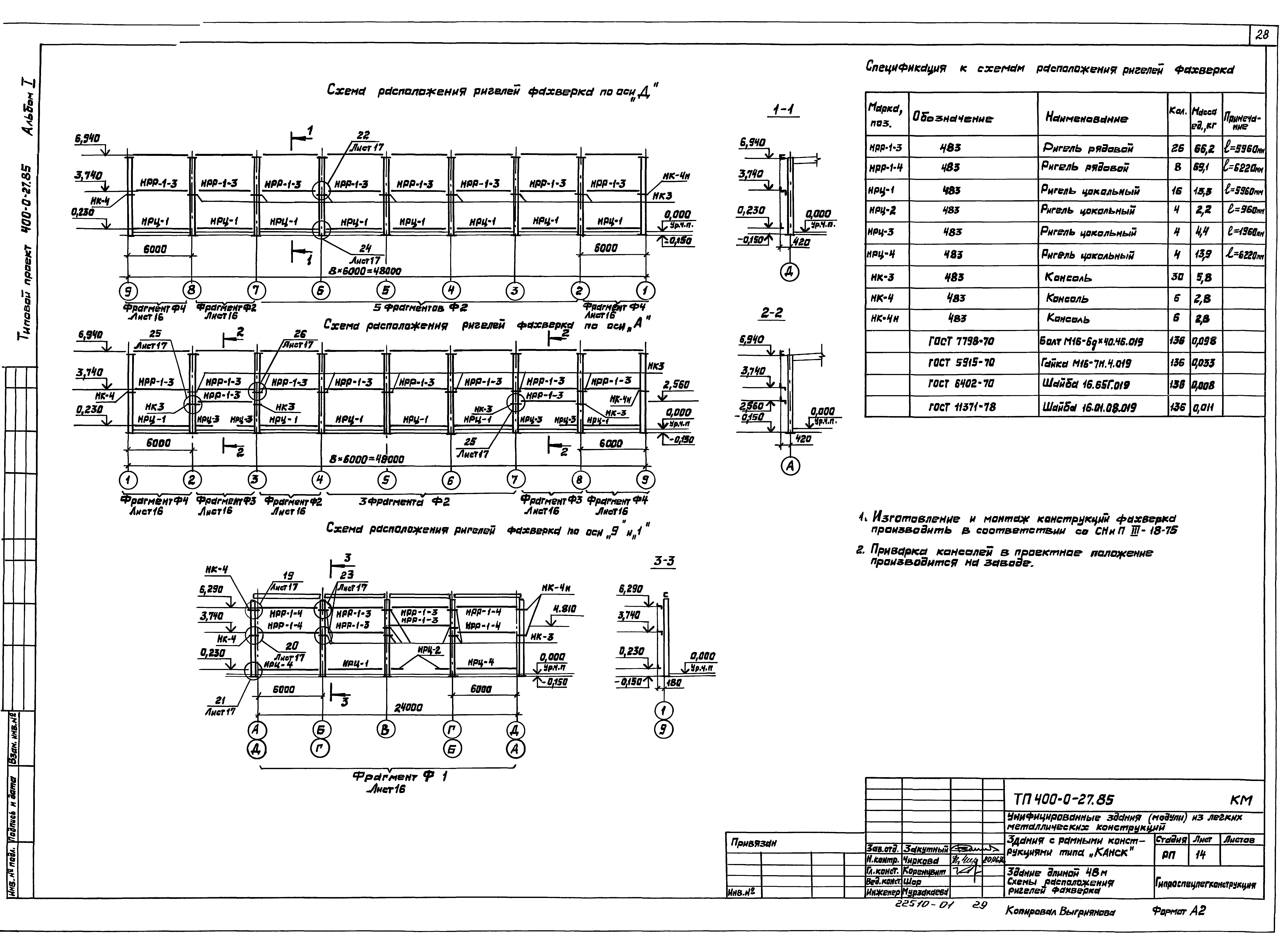
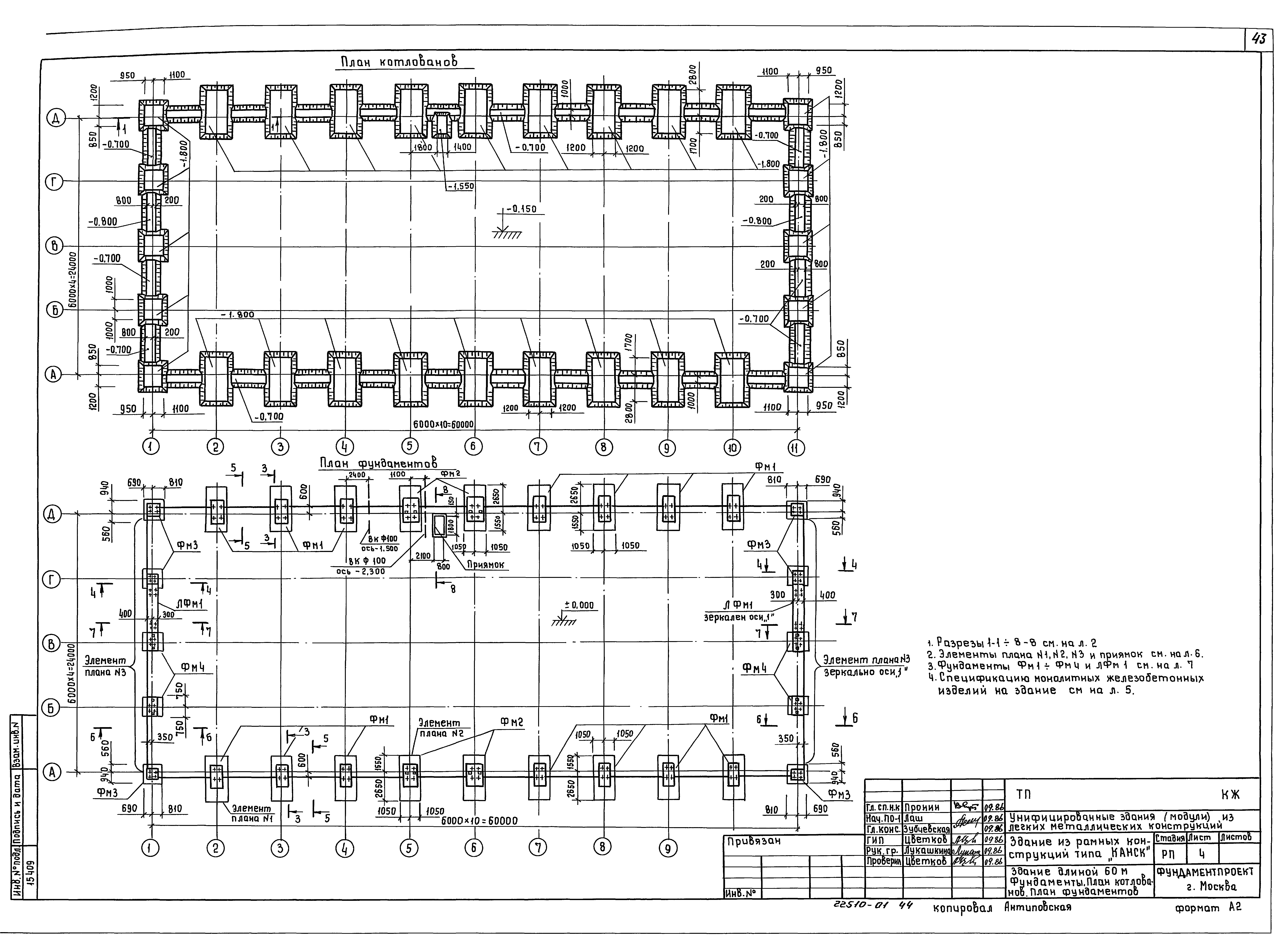
Скачать Типовые проектные решения 400-0-27.85 Альбом I. Пояснительная записка. Архитектурные решения. Конструкции металлические. Конструкции железобетонныеДата актуализации: 10.08.2017 Типовые проектные решения 400-0-27.85
Альбом I. Пояснительная записка. Архитектурные решения. Конструкции металлические. Конструкции железобетонные| Обозначение: | Типовые проектные решения 400-0-27.85 | | Обозначение англ: | 400-0-27.85 | | Статус: | cправочные материалы, мп, тпр | | Название рус.: | Альбом I. Пояснительная записка. Архитектурные решения. Конструкции металлические. Конструкции железобетонные | | Дата добавления в базу: | 01.09.2013 | | Дата актуализации: | 05.05.2017 | | Дата введения: | 01.01.1987 | | Разработан: | Гипроспецлегконструкция
| | Утверждён: | 11.10.1986 Госстрой СССР (Государственный комитет Совета Министров СССР по делам строительства) (USSR Gosstroy АЧ-63)
| | Расположен в: |
|
                                                    
|