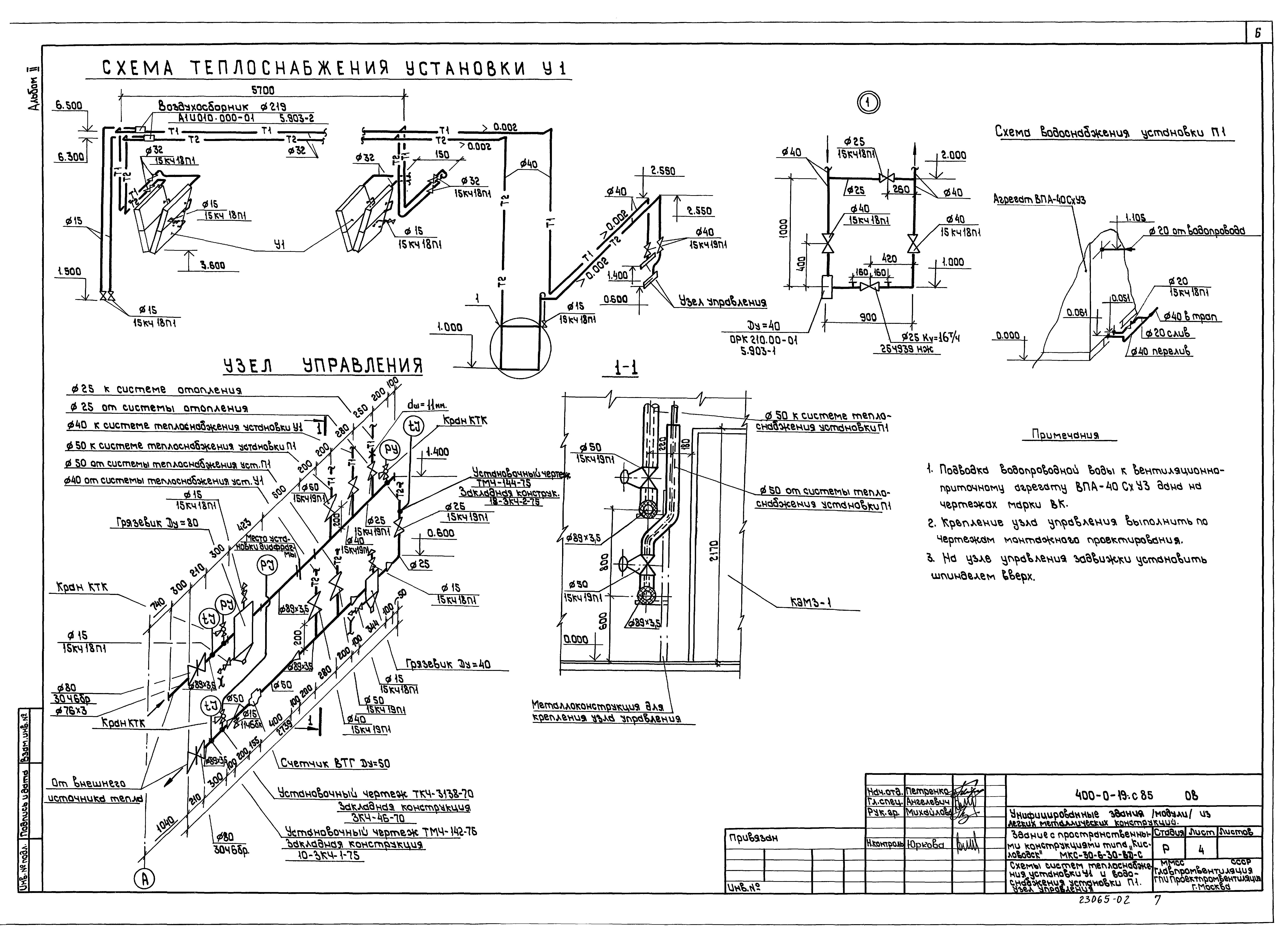
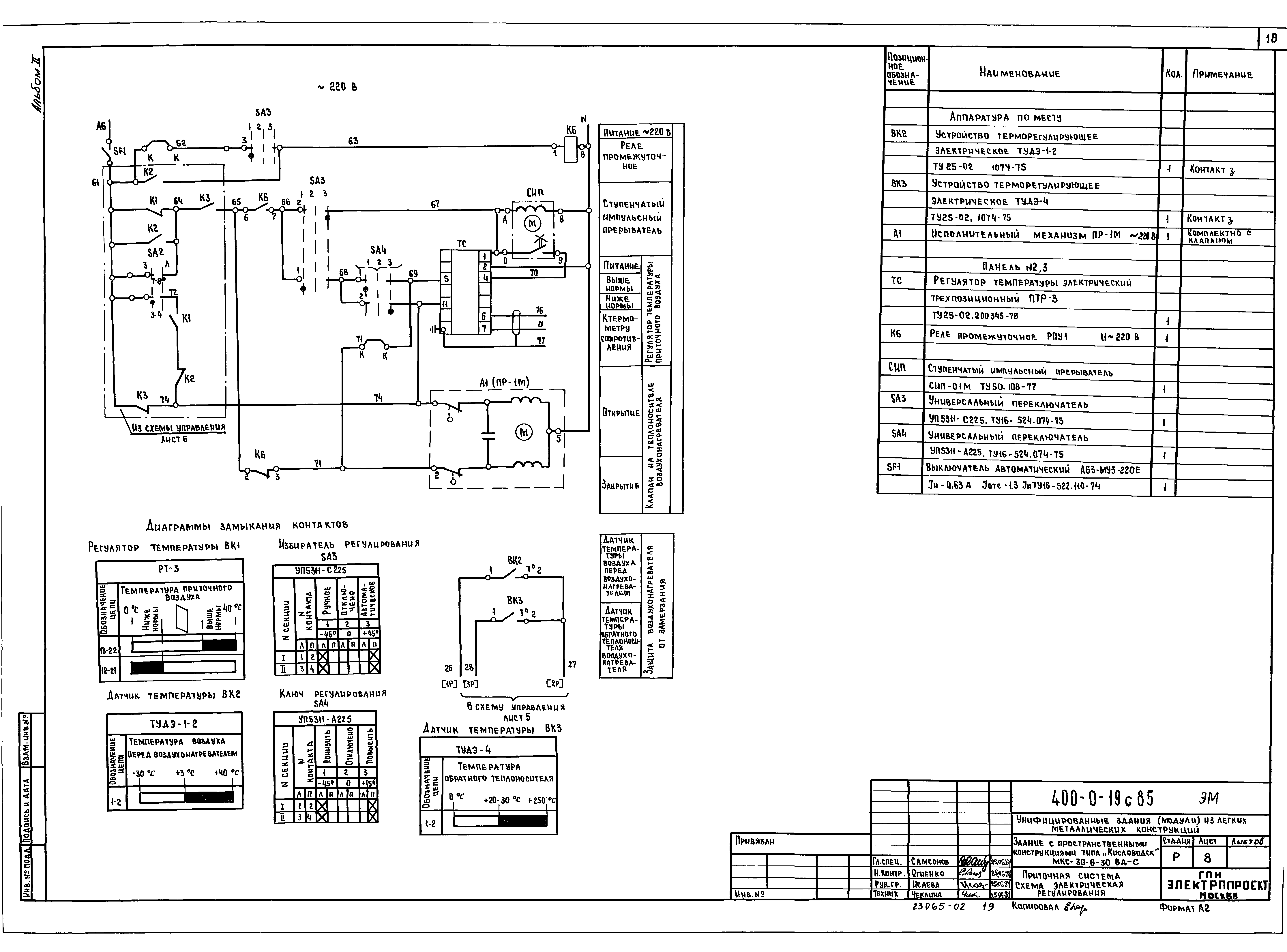
Скачать Типовые проектные решения 400-0-19с.85 Альбом II. Отопление и вентиляция. Внутренний водопровод и канализация. Силовое электрооборудование. Автоматизация, электроосвещениеДата актуализации: 10.08.2017 Типовые проектные решения 400-0-19с.85
Альбом II. Отопление и вентиляция. Внутренний водопровод и канализация. Силовое электрооборудование. Автоматизация, электроосвещение| Обозначение: | Типовые проектные решения 400-0-19с.85 | | Обозначение англ: | 400-0-19с.85 | | Статус: | cправочные материалы, мп, тпр | | Название рус.: | Альбом II. Отопление и вентиляция. Внутренний водопровод и канализация. Силовое электрооборудование. Автоматизация, электроосвещение | | Дата добавления в базу: | 01.09.2013 | | Дата актуализации: | 05.05.2017 | | Дата введения: | 06.01.1988 | | Разработан: | Электропроект Минмонтажспецстроя СССР ГПИ Проектпромвентиляция
| | Утверждён: | 23.11.1987 Минмонтажспецстрой СССР (USSR Minmontazhspetsstroy 400)
| | Расположен в: |
|
                        
|