Скачать Типовой проект 501-166 Выпуск 2. Пешеходные мосты через железные дороги с вариантом северного исполнения. Рабочие чертежиДата актуализации: 10.08.2017 Типовой проект 501-166
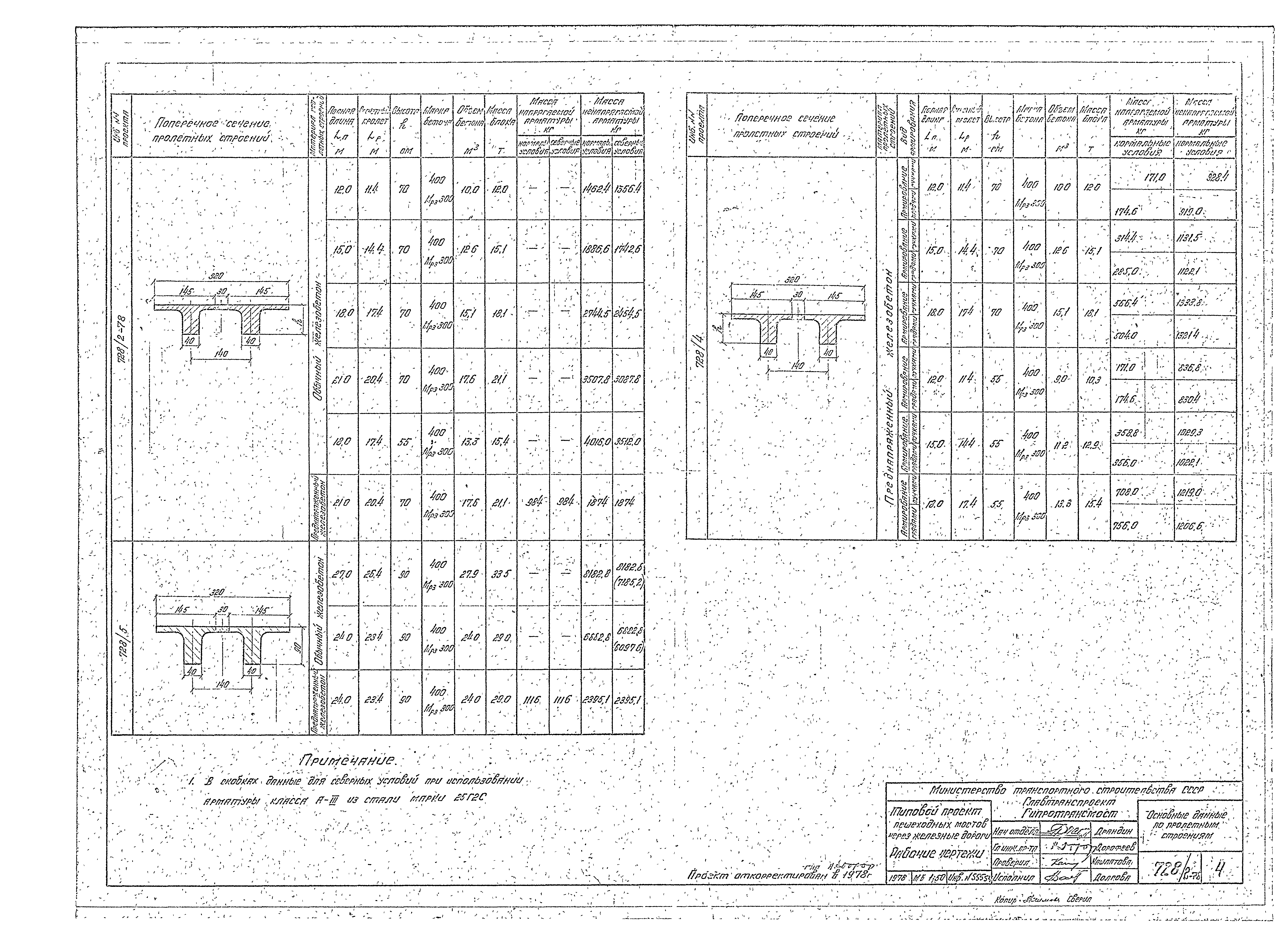
Выпуск 2. Пешеходные мосты через железные дороги с вариантом северного исполнения. Рабочие чертежиОбозначение: | Типовой проект 501-166 | Обозначение англ: | 501-166 | Статус: | действует | Название рус.: | Выпуск 2. Пешеходные мосты через железные дороги с вариантом северного исполнения. Рабочие чертежи | Дата добавления в базу: | 01.09.2013 | Дата актуализации: | 05.05.2017 | Область применения: | В типовой проект включены пролетные строения из обычного и предварительно напряженного железобетона, а также сталебетонное пролетное строение | Разработан: | Гипротрансмост
| Утверждён: | 20.02.1978 МПС (Ministry of Railroads 5595)
| Расположен в: |
|
                     
|