| ||||||||||||||||||||||||||||||
Скачать Серия ЭЛ-ТП.010.05 Стальные опоры из гнутого профиля серии С10П для ВЛ с неизолированными проводамиДата актуализации: 10.08.2017
|
| Обозначение: | Серия ЭЛ-ТП.010.05 |
| Обозначение англ: | Series ЭЛ-ТП.010.05 |
| Статус: | не действует |
| Название рус.: | Стальные опоры из гнутого профиля серии С10П для ВЛ с неизолированными проводами |
| Дата добавления в базу: | 01.09.2013 |
| Дата актуализации: | 05.05.2017 |
| Дата введения: | 01.01.2013 |
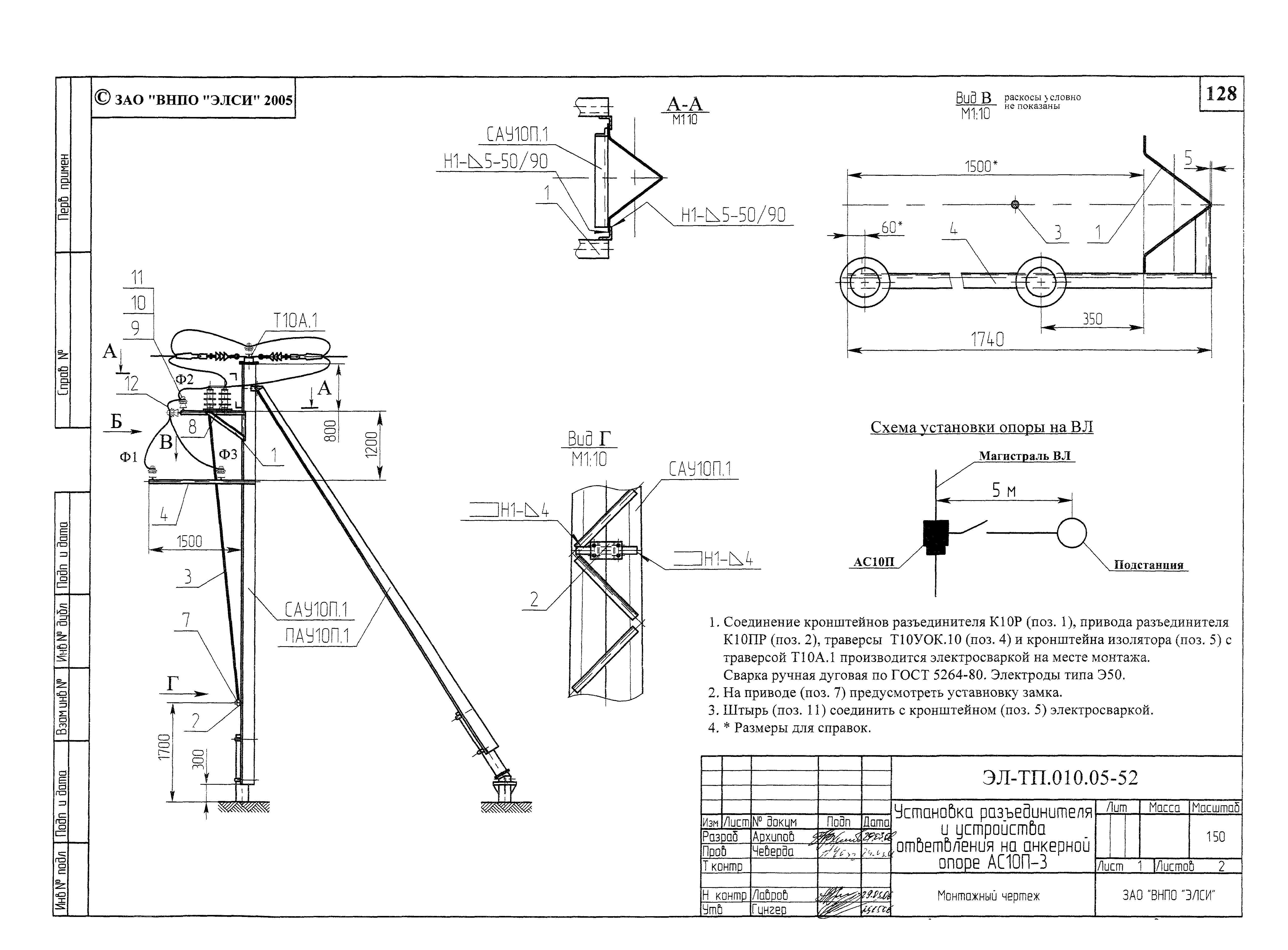
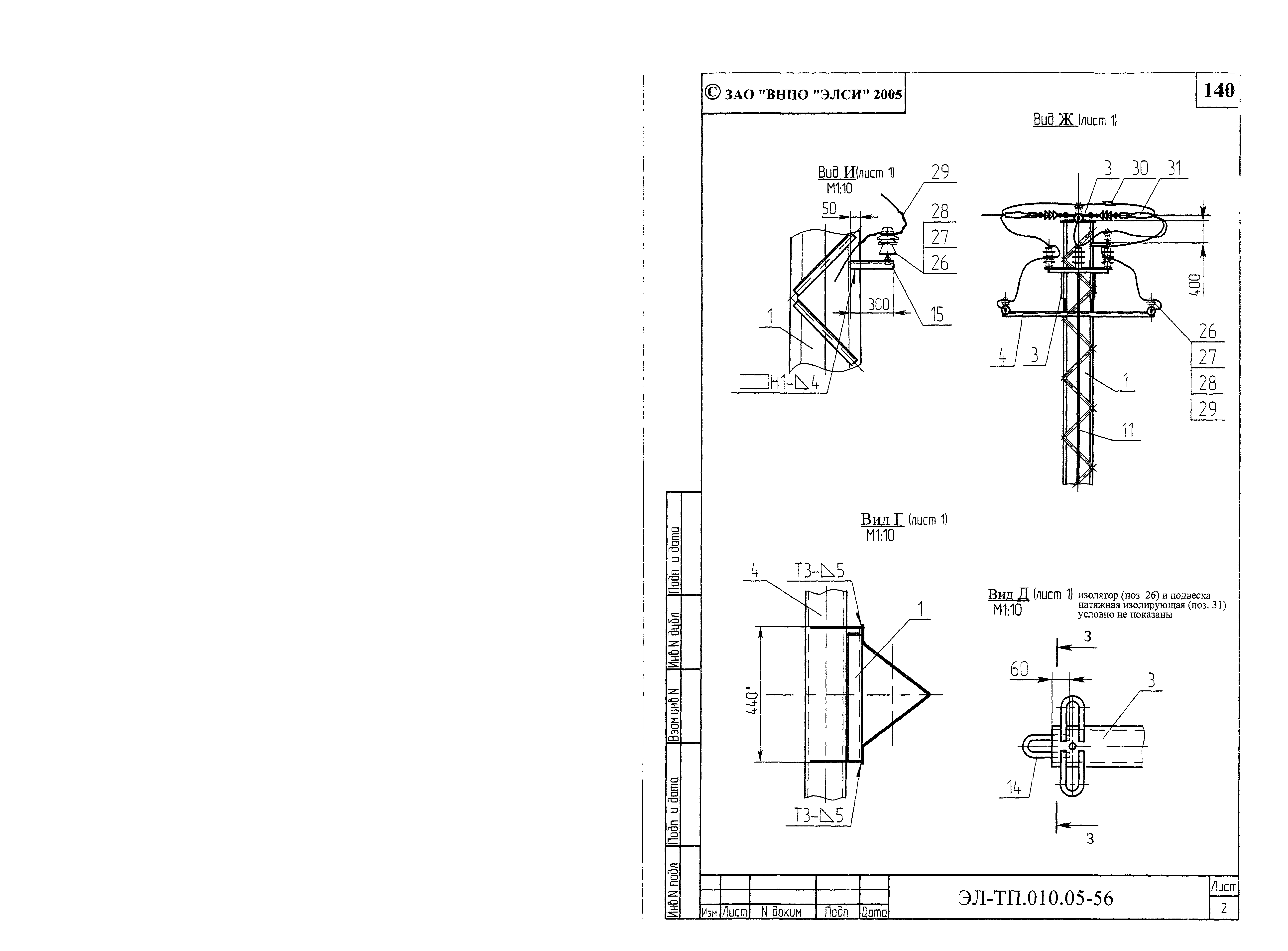
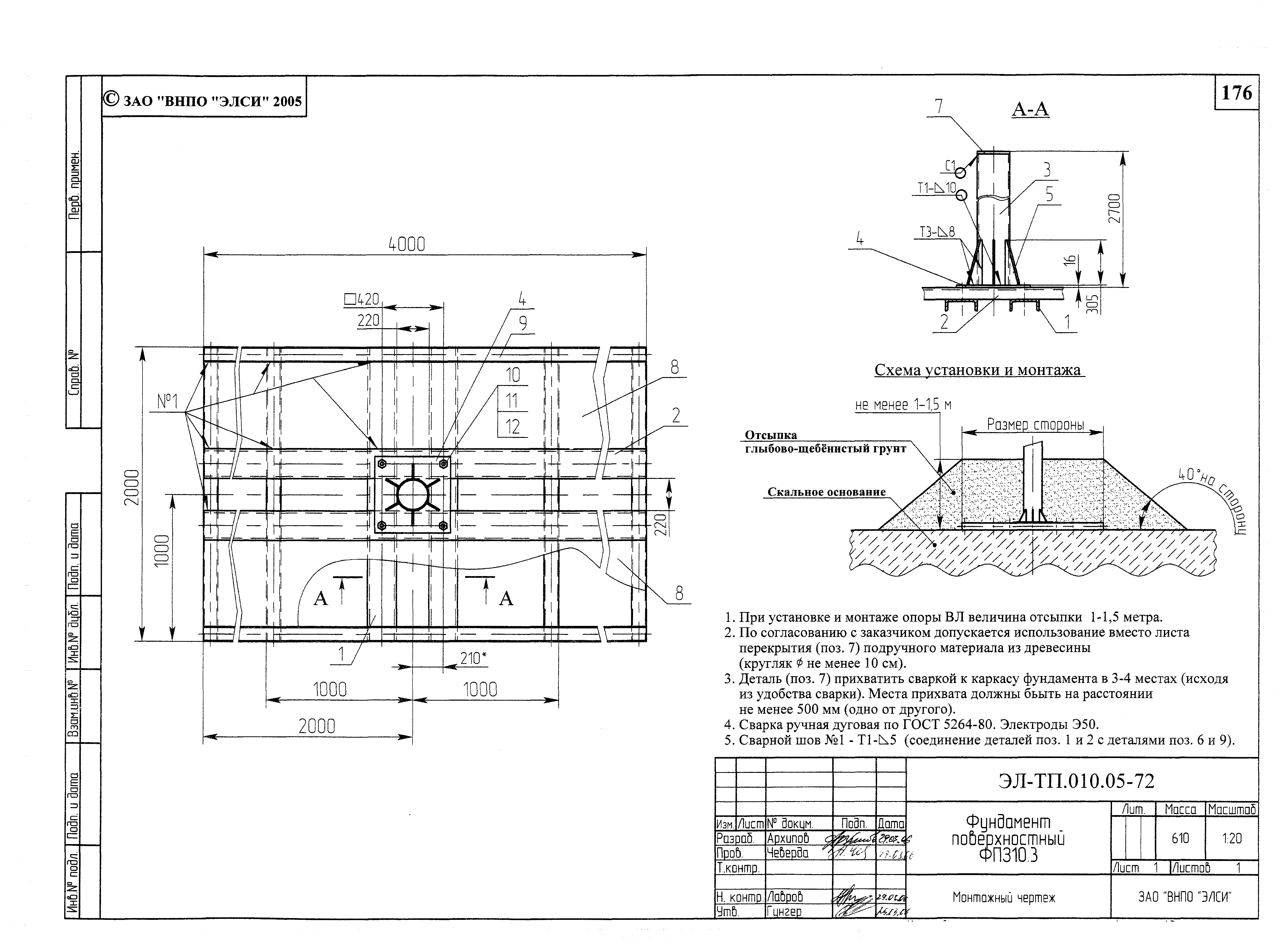
| Оглавление: | Пояснительная записка Введение 1. Общая часть 2. Особенности проектирования В Л с учетом требований ПУЭ 7-го издания 3. Указания по применению опор 4. Провода, изоляторы, арматура 5. Основные положения по расчету опор 6. Закрепления опор в грунте 7. Технико-экономические показатели 8. Экологические аспекты применения опор ЭЛ-ТП.010.05-01 Номенклатура опор ВЛ 10 кВ ЭЛ-ТП.010.05-02 Опора промежуточная ПС10П-6А ЭЛ-ТП.010.05-03 Опора промежуточная ПС 10П-7А ЭЛ-ТП.010.05-04 Опора промежуточная ПС10П-14А ЭЛ-ТП.010.05-05 Опора промежуточная ПС 10П-15 А ЭЛ-ТП.010.05-06 Опора промежуточная ПС 10П-17Б ЭЛ-ТП.010.05-07 Опора промежуточная ПС 10П-18Б ЭЛ-ТП.010.05-08 Опора промежуточная ПС 10П-19А ЭЛ-ТП.010.05-09 Опора промежуточная опора ПС10П-20А ЭЛ-ТП.010.05-10 Опора промежуточная угловая ПУС10П-2Б ЭЛ-ТП.010.05-11 Опора промежуточная угловая ПУС 10П-4Б ЭЛ-ТП.010.05-12 Опора анкерная АС10П-3 ЭЛ-ТП.010.05-13 Опора анкерная АСО10П-1 ЭЛ-ТП.010.05-14 Опора анкерная угловая АУС10П-3 ЭЛ-ТП.010.05-15 Опора анкерная угловая АУСО10П-1 ЭЛ-ТП.010.05-16 Опора анкерная ответвительная АОС10П-5 ЭЛ-ТП.010.05-17 Опора анкерная ответвительная АОС10П-6 ЭЛ-ТП.010.05-18 Опора анкерная ответвительная АОСО10П-1 ЭЛ-ТП.010.05-19 Опора анкерная ответвительная АОСО10П-2 ЭЛ-ТП.010.05-20 Опора анкерная угловая ответвительная АУОС10П-3 ЭЛ-ТП.010.05-21 Опора анкерная угловая ответвительная АУОСО10П-1 ЭЛ-ТП.010.05-22 Устройство ответвления УОП на промежуточных опорах ПС10П-14А и ПС10П-15А ЭЛ-ТП.010.05-23 Устройство ответвления УОП на промежуточных опорах ПС10П-17Б и ПС10П-20А ЭЛ-ТП.010.05-24 Устройство ответвления УОП на промежуточных опорах ПС10П-18А и ПС10П-19А ЭЛ-ТП.010.05-25 Устройство ответвления УОК на анкерной (концевой) опоре АС 10П-3 ЭЛ-ТП.010.05-26 Устройство ответвления УОК на анкерной опоре АСО10П-1 ЭЛ-ТП.010.05-27 Устройство ответвления УОП с разъединителем на промежуточных опорах ПС10П-14А и ПС10П-15А у подстанции ЭЛ-ТП.010.05-28 Устройство ответвления УОП с разъединителем на промежуточных опорах ПС10П-18Б и ПС10П-19А у подстанции ЭЛ-ТП.010.05-29 Установка разъединителя КР-1 на концевой опоре АС10П-3 ЭЛ-ТП.010.05-30 Установка разъединителя КР-1 на концевой опоре АСО10П-1 ЭЛ-ТП.010.05-31 Установка разъединителя АР-1 на анкерной опоре АС10П-3 ЭЛ-ТП.010.05-32 Установка разъединителя АР-1 ни анкерной опоре АСО10П-1 ЭЛ-ТП.010.05-33 Установка кабельной муфты КМ-1 на анкерной опоре АС10П-3 ЭЛ-ТП.010.05-34 Установка кабельной муфты КМ-1 на концевой опоре АСО10П-1 ЭЛ-ТП.010.05-35 Установка разъединителя КР-1 и кабельной муфты КМ-1 на концевой опоре АС10П-3 ЭЛ-ТП.010.05-36 Установка разъединителя КР-1 и кабельной муфты КМ-1 на анкерной (концевой) опоре АСО10П-1 ЭЛ-ТП.010.05-37 Опоры промежуточные повышенные на стойках С10П7А и С10П11А ЭЛ-ТП.010.05-38 Опора промежуточная пониженная ЭЛ-ТП.010.05-39 Фундамент стойки ФС10.219/325 ЭЛ-ТП.010.05-40 Фундамент стойки Ф10.219 ЭЛ-ТП.010.05-41 Фундамент стойки Ф10.325 ЭЛ-ТП.010.05-42 Фундамент подкоса ФПШ10.219 ЭЛ-ТП.010.05-43 Фундамент подкоса ФС 10.219/325 ЭЛ-ТП.010.05-44 Фундамент поверхностный для промежуточных опор ЭЛ-ТП.010.05-45 Фундамент ФП АУС поверхностный для анкерных и анкерных угловых опор с подкосами ЭЛ-ТП.010.05-46 Фундамент опор ВЛ 10 кВ с увеличенной опорной поверхностью ЭЛ-ТП.010.05-47 Антикоррозионная обработка фундаментов ЭЛ-ТП.010.05-48 Подвеска поддерживающая изолирующая ЭЛ-ТП.010.05-49 Подвеска натяжная изолирующая 3.407.1-143.1.28 Крепление провода на штыревом изоляторе Дополнительно разработанные модификации опор ЭЛ-ТП.010.05-50 Установка двух кабельных муфт на анкерной опоре АС10П-3 ЭЛ-ТП.010.05-51 Установка разъединителя КР-1 и двух кабельных муфт на анкерной концевой опоре АС10П-3 ЭЛ-ТП.010.05-52 Установка разъединителя и устройства ответвления на анкерной опоре АС10П-3 ЭЛ-ТП.010.05-53 Опора анкерная угловая ответвительная АУОС10П-3 с разъединителем КР-1 ЭЛ-ТП.010.05-54 Установка разъединителя типа АПС (реклоузер) на анкерной (концевой) опоре АС10П-3 ЭЛ-ТП.010.05-55 Установка разъединителя и устройства ответвления на концевой опоре АС10П-3 ЭЛ-ТП.010.05-56 Опора анкерная ответвительная АОС10П-7 с разъединителем ЭЛ-ТП.010.05-57 Установка реклоузера вакуумного серии РВА/TEL на анкерной опоре АСО10П-1 ЭЛ-ТП.010.05-58 Изолятор опорный СПК 4-20/125 IIУХЛ1 ЭЛ-ТП.010.05-59 Подставка П1 ЭЛ-ТП.010.05-60 Установка разъединителя КР-1 с ответвлением на концевой опоре АСО10П-1 ЭЛ-ТП.010.05-61 Опора анкерная с ответвлением (влево) АСО10П-1.Л и разъединителем КР-1 ЭЛ-ТП.010.05-62 Опора анкерная с ответвлением (вправо) АСО10П-1.П и разъединителем КР-1 ЭЛ-ТП.010.05-63 Подвеска натяжная изолирующая (20 кВ) ЭЛ-ТП.010.05-64 Опора промежуточная ПС10П-19А.04 (10/0,4 кВ) ЭЛ-ТП.010.05-65 Опора промежуточная ПС10П-7А.04 (10/0,4 кВ) ЭЛ-ТП.010.05-66 Опора промежуточная угловая ПУС10П-2Б.04 (10/0,4 кВ) ЭЛ-ТП.010.05-67 Опора промежуточная угловая ПУС10П-4Б.04 (10/0,4 кВ) ЭЛ-ТП.010.05-68 Опора анкерная угловая АУС10П-3.04 (10/0,4 кВ) ЭЛ-ТП.010.05-69 Опора анкерная АС10П-3.04 (10/0,4 кВ) Дополнительно разработанные конструкции фундаментов ЭЛ-ТП.010.05-70 Фундамент приповерхностный заглубленный ФП310.1 ЭЛ-ТП.010.05-71 Фундамент приповерхностный заглубленный ФП310.2 ЭЛ-ТП.010.05-72 Фундамент поверхностный ФП310.3 ЭЛ-ТП.010.05-73 Фундамент поверхностный ФП310.4 ЭЛ-ТП.010.05-74 Фундамент анкерный для скальных пород ФС10.1 ЭЛ-ТП.010.05-75 Фундамент анкерный для скальных пород ФС10.2 |
| Разработан: | ЗАО ВНПО ЭЛСИ |
| Утверждён: | 01.10.2004 ЗАО ВНПО ЭЛСИ |
| Расположен в: | |
| Заменяет собой: |
|
| Чем заменён: |
|





















































































































































































