Информационная система
«Ёшкин Кот»

Скачать базу одним архивом
Скачать обновления
История создания базы
Карта сайта

Скачать Типовой проект 901-4-71.83 Альбом I. Пояснительная записка. Материалы для проектирования резервуаров емкостью 50…20000 куб. м (из ТП 901-4-76.83)

Дата актуализации: 10.08.2017

Типовой проект 901-4-71.83

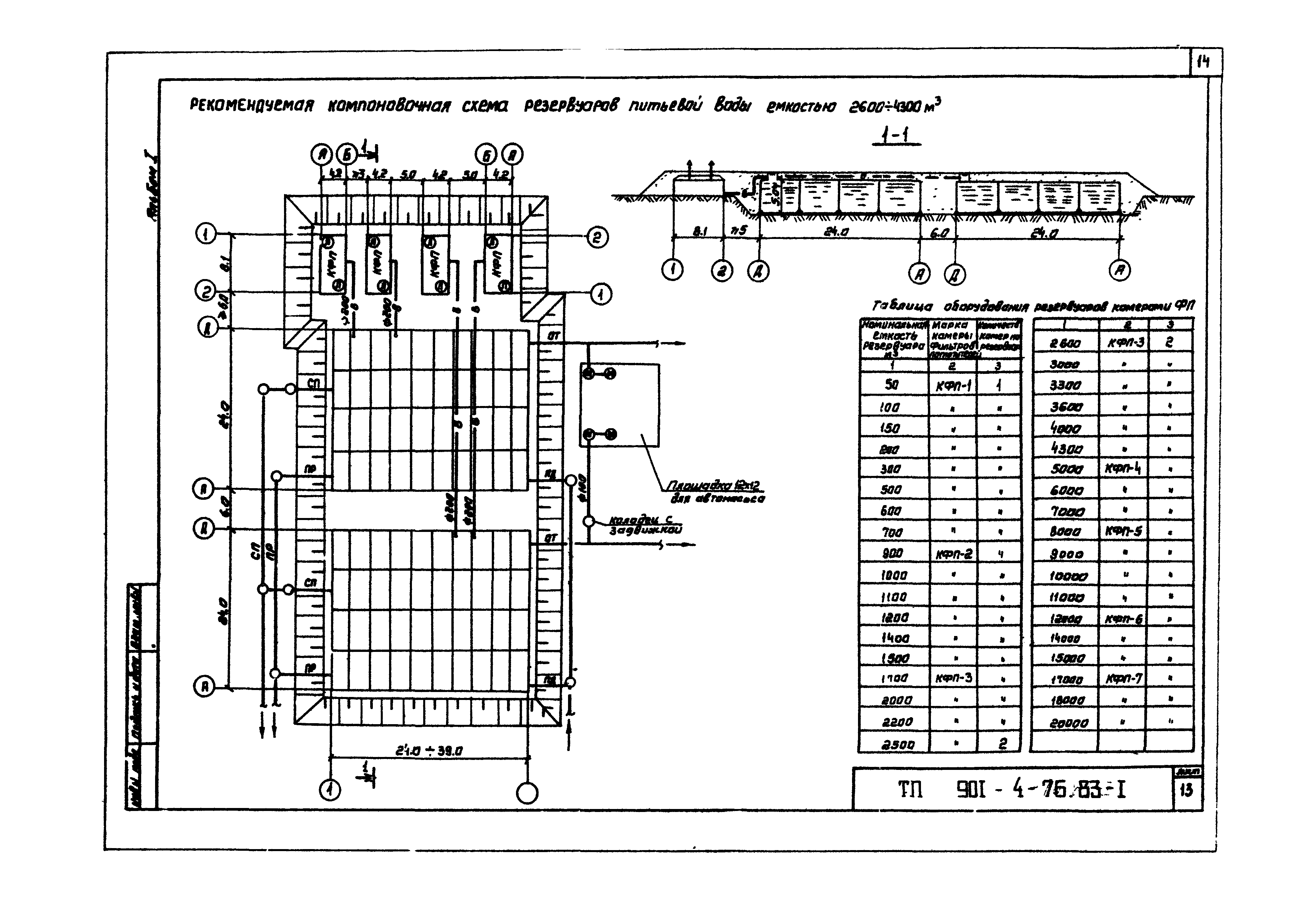
Альбом I. Пояснительная записка. Материалы для проектирования резервуаров емкостью 50…20000 куб. м (из ТП 901-4-76.83)

Обозначение: Типовой проект 901-4-71.83
Обозначение англ: 901-4-71.83
Статус:не определен законодательством
Название рус.:Альбом I. Пояснительная записка. Материалы для проектирования резервуаров емкостью 50…20000 куб. м (из ТП 901-4-76.83)
Дата добавления в базу:01.09.2013
Дата актуализации:05.05.2017
Дата введения:19.12.1983
Оглавление:ТП 901-4-76.83 Введение
ТП 901-4-76.83 Назначение и область применения
ТП 901-4-76.83 Техническая характеристика
ТП 901-4-76.83 Основные расчетные положения
ТП 901-4-76.83 Защита от коррозии
ТП 901-4-76.83 Оборудование резервуаров
ТП 901-4-76.83 Специальные мероприятия для резервуаров систем хозпитьевого водоснабжения
ТП 901-4-76.83 Указания по привязке
ТП 901-4-76.83 Основные положения по производству работ
ТП 901-4-76.83 Показатели результатов применения научно-технических достижений в строительных решениях проекта
Разработан: Союзводоканалпроект
ЦНИИпромзданий
НИИЖБ
Утверждён:30.06.1982 Госстрой СССР (Государственный комитет Совета Министров СССР по делам строительства) (USSR Gosstroy 53)
Расположен в:Техническая документация Строительство Справочные документы Типовые строительные конструкции, изделия и узлы Общероссийский строительный каталог Промышленные предприятия, здания и сооружения Здания и сооружения санитарно-технические Водоснабжение Резервуары для воды
Типовой проект 901-4-71.83Типовой проект 901-4-71.83Типовой проект 901-4-71.83Типовой проект 901-4-71.83Типовой проект 901-4-71.83Типовой проект 901-4-71.83Типовой проект 901-4-71.83Типовой проект 901-4-71.83Типовой проект 901-4-71.83Типовой проект 901-4-71.83Типовой проект 901-4-71.83Типовой проект 901-4-71.83Типовой проект 901-4-71.83Типовой проект 901-4-71.83Типовой проект 901-4-71.83Типовой проект 901-4-71.83Типовой проект 901-4-71.83Типовой проект 901-4-71.83Типовой проект 901-4-71.83Типовой проект 901-4-71.83Типовой проект 901-4-71.83Типовой проект 901-4-71.83Типовой проект 901-4-71.83Типовой проект 901-4-71.83Типовой проект 901-4-71.83Типовой проект 901-4-71.83Типовой проект 901-4-71.83Типовой проект 901-4-71.83

© 2013 Ёшкин Кот :-) Карта сайта