Информационная система
«Ёшкин Кот»

Скачать базу одним архивом
Скачать обновления
История создания базы
Карта сайта

Скачать Типовой проект 708-75.93 Альбом 5. Архитектурные решения. Конструкции железобетонные. Конструкции железобетонные (вариант выдачи пневмовинтовым насосом)

Дата актуализации: 10.08.2017

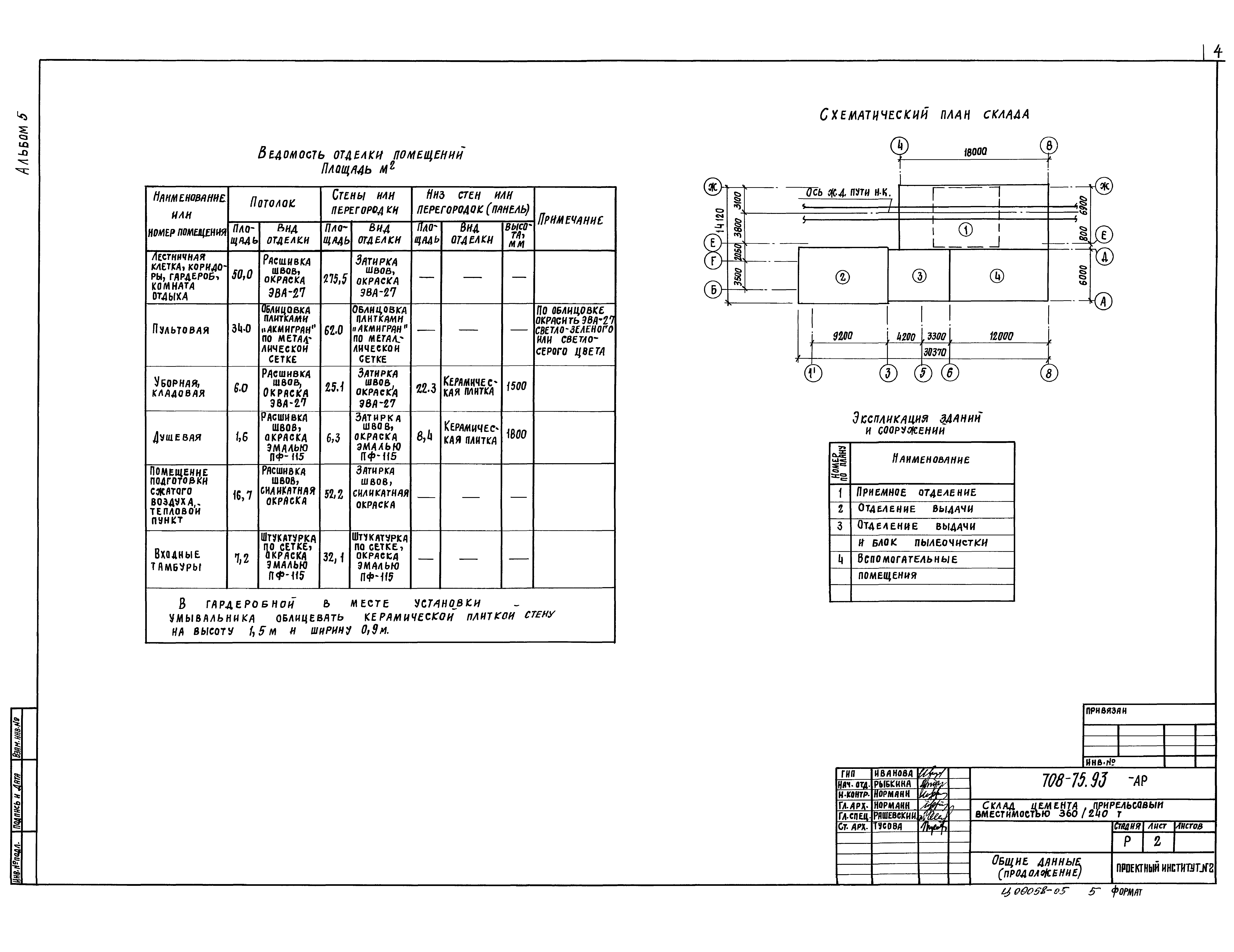
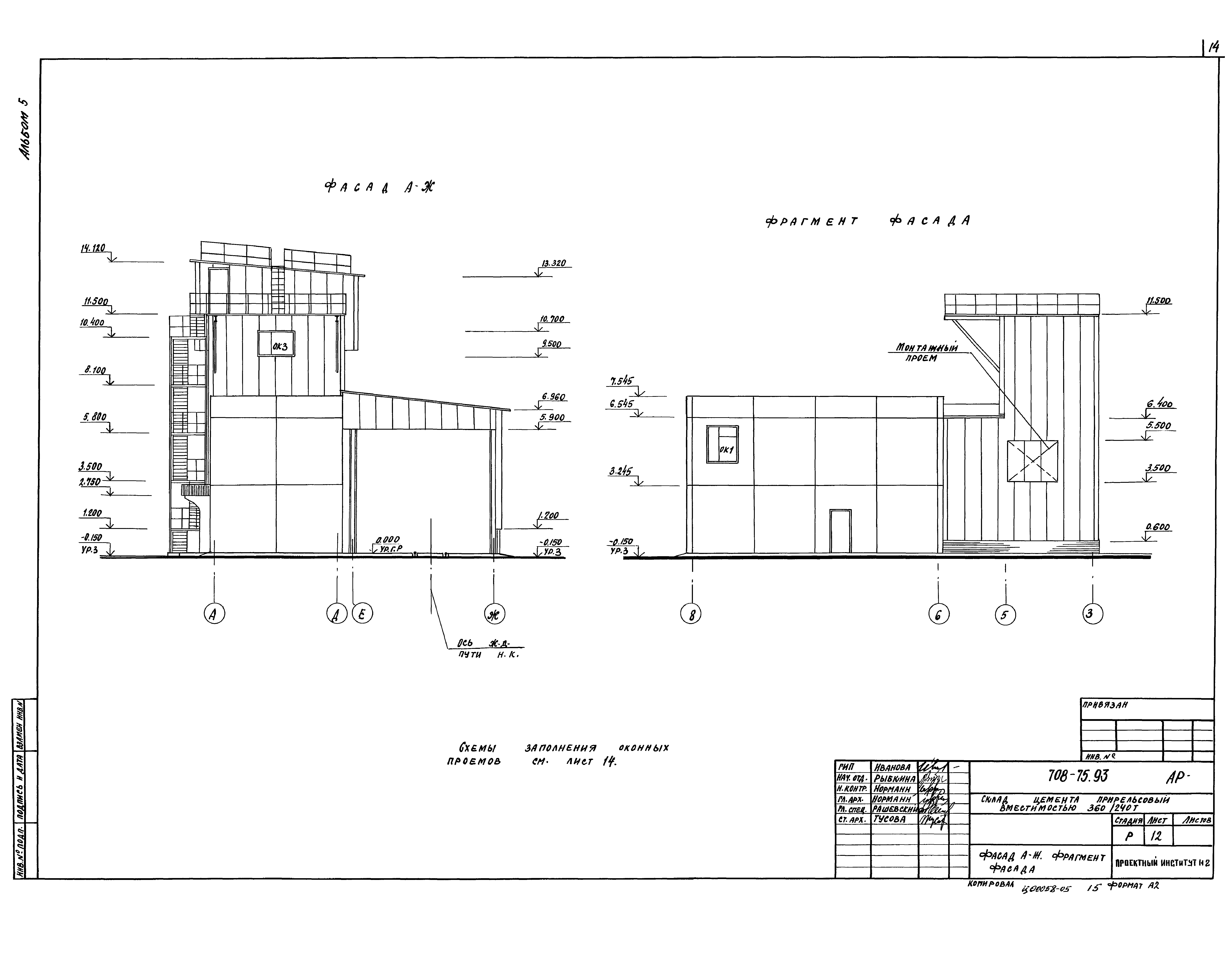
Типовой проект 708-75.93

Альбом 5. Архитектурные решения. Конструкции железобетонные. Конструкции железобетонные (вариант выдачи пневмовинтовым насосом)

Обозначение: Типовой проект 708-75.93
Обозначение англ: 708-75.93
Статус:не определен законодательством
Название рус.:Альбом 5. Архитектурные решения. Конструкции железобетонные. Конструкции железобетонные (вариант выдачи пневмовинтовым насосом)
Дата добавления в базу:01.09.2013
Дата актуализации:05.05.2017
Дата введения:06.12.1993
Разработан: Гипростроммаш
Проектный институт №2
Утверждён:30.11.1993 Главпроект Госстроя России (9-3-1/254)
Расположен в:Техническая документация Строительство Справочные документы Типовые строительные конструкции, изделия и узлы Общероссийский строительный каталог Промышленные предприятия, здания и сооружения Предприятия, здания и сооружения складские Склады строительных материалов и изделий
Типовой проект 708-75.93Типовой проект 708-75.93Типовой проект 708-75.93Типовой проект 708-75.93Типовой проект 708-75.93Типовой проект 708-75.93Типовой проект 708-75.93Типовой проект 708-75.93Типовой проект 708-75.93Типовой проект 708-75.93Типовой проект 708-75.93Типовой проект 708-75.93Типовой проект 708-75.93Типовой проект 708-75.93Типовой проект 708-75.93Типовой проект 708-75.93Типовой проект 708-75.93Типовой проект 708-75.93Типовой проект 708-75.93Типовой проект 708-75.93Типовой проект 708-75.93Типовой проект 708-75.93Типовой проект 708-75.93Типовой проект 708-75.93Типовой проект 708-75.93Типовой проект 708-75.93Типовой проект 708-75.93Типовой проект 708-75.93Типовой проект 708-75.93Типовой проект 708-75.93Типовой проект 708-75.93Типовой проект 708-75.93Типовой проект 708-75.93Типовой проект 708-75.93Типовой проект 708-75.93Типовой проект 708-75.93Типовой проект 708-75.93Типовой проект 708-75.93Типовой проект 708-75.93Типовой проект 708-75.93Типовой проект 708-75.93Типовой проект 708-75.93Типовой проект 708-75.93Типовой проект 708-75.93Типовой проект 708-75.93Типовой проект 708-75.93Типовой проект 708-75.93Типовой проект 708-75.93Типовой проект 708-75.93Типовой проект 708-75.93Типовой проект 708-75.93Типовой проект 708-75.93Типовой проект 708-75.93Типовой проект 708-75.93

© 2013 Ёшкин Кот :-) Карта сайта