Информационная система
«Ёшкин Кот»

Скачать базу одним архивом
Скачать обновления
История создания базы
Карта сайта

Скачать СТК 4-25-92 Узлы и детали несущих и опорных конструкций электрических и трубных проводок. Часть 2

Дата актуализации: 10.08.2017

СТК 4-25-92

Узлы и детали несущих и опорных конструкций электрических и трубных проводок. Часть 2

Обозначение: СТК 4-25-92
Обозначение англ: 4-25-92
Статус:действует
Название рус.:Узлы и детали несущих и опорных конструкций электрических и трубных проводок. Часть 2
Дата добавления в базу:01.09.2013
Дата актуализации:05.05.2017
Дата введения:01.06.1993
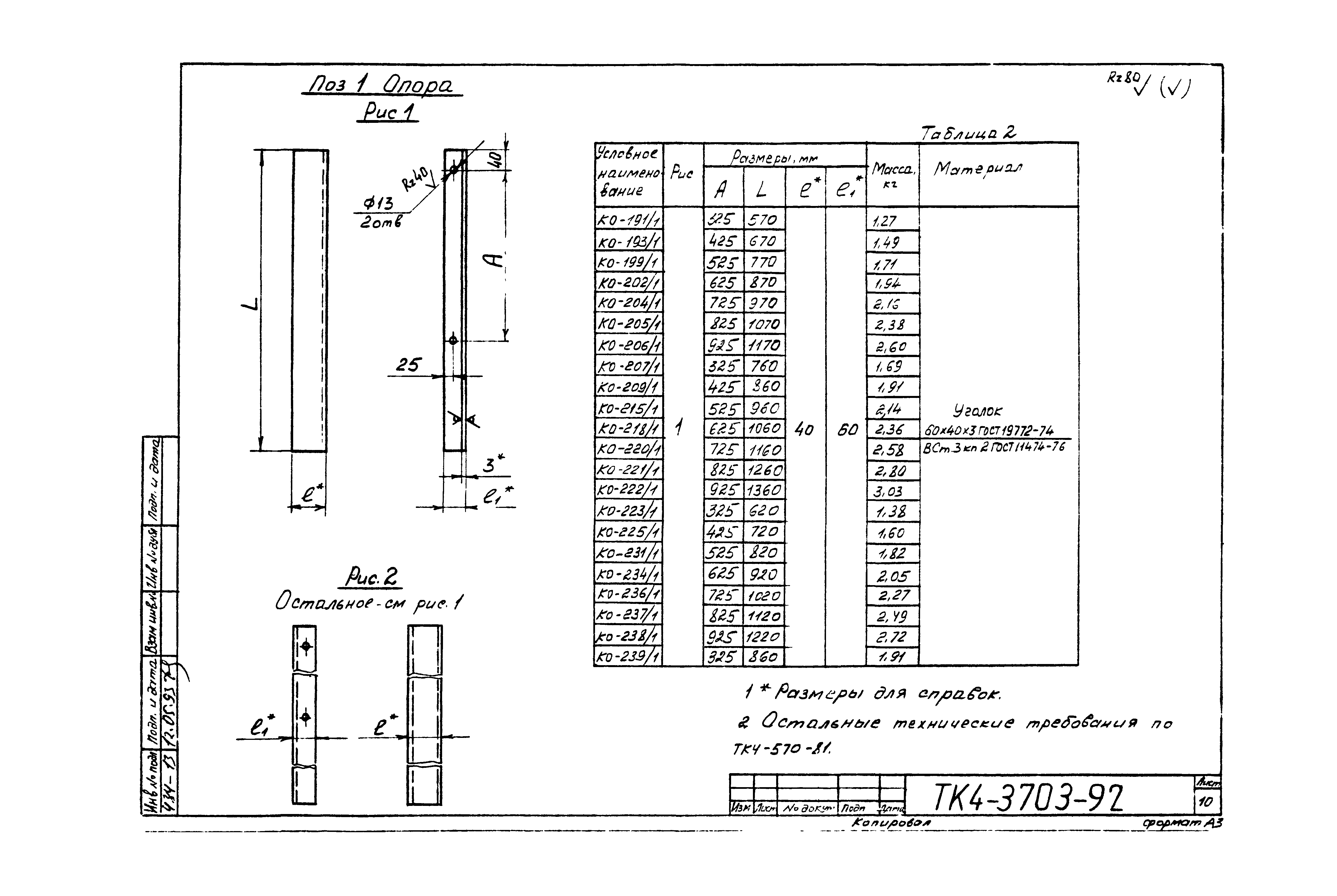
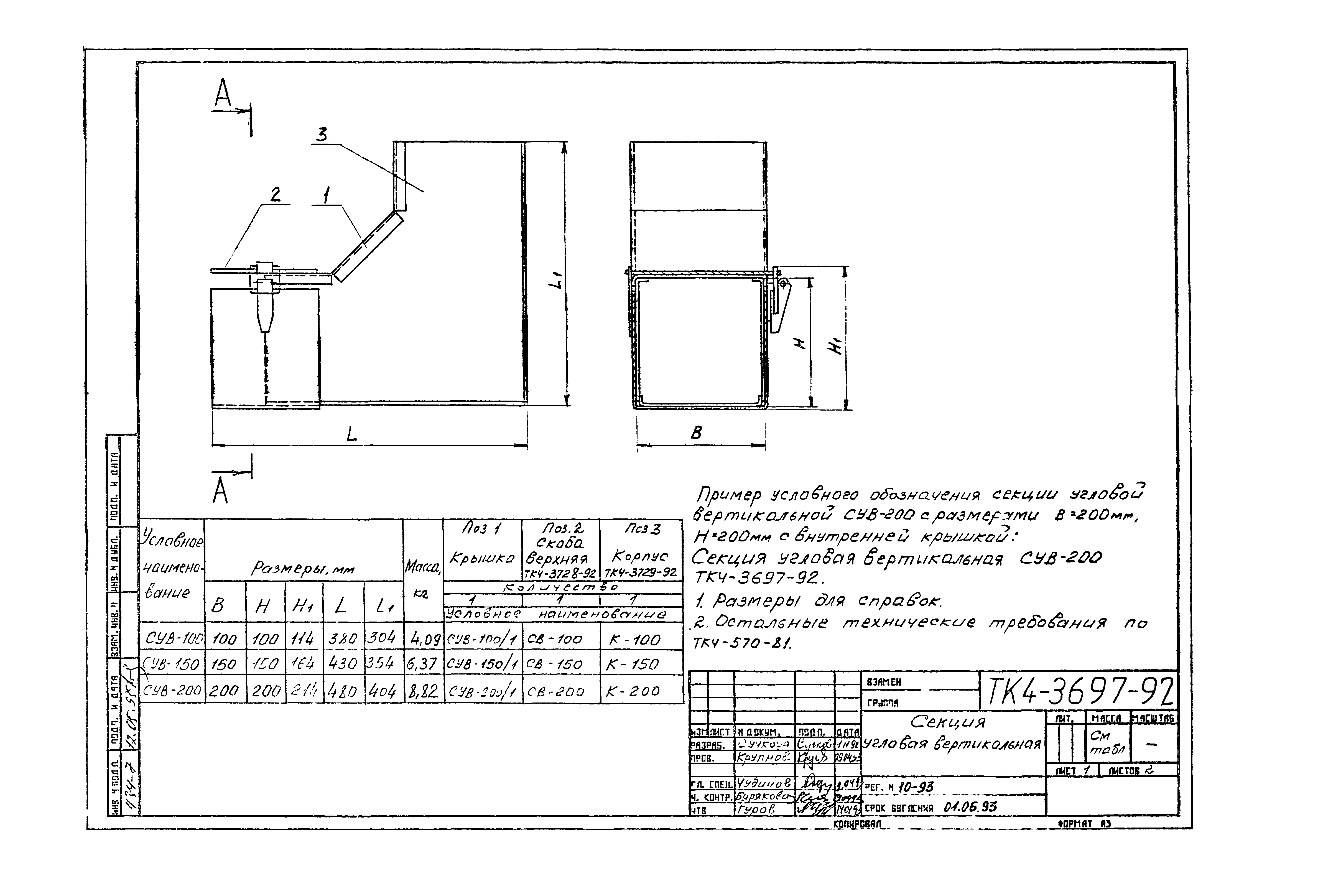
Область применения:Сборник содержит чертежи опорных конструкций установки коробов стальных по ТУ 36.1107-77, прокладываемых по стенам, перекрытиям и колоннам горизонтально и вертикально
Оглавление:Ведомость документов
Общие указания
Чертежи опорных конструкций установки коробов стальных
Утверждён: Ассоциация Монтажавтоматика
Издан: ГПКИ Проектмонтажавтоматика (1992 г. )
Расположен в:Техническая документация Экология СТРОИТЕЛЬНЫЕ МАТЕРИАЛЫ И СТРОИТЕЛЬСТВО Установки в зданиях Системы электроснабжения Инженерное оборудование зданий в целом ЭЛЕКТРОТЕХНИКА Электрические провода и кабели Электрические провода и кабели в целом МАШИНОСТРОЕНИЕ Промышленные автоматизированные системы Промышленные автоматизированные системы в целом Строительство Нормативные документы Отраслевые и ведомственные нормативно-методические документы Производство монтажных и специальных строительных работ
Нормативные ссылки:
СТК 4-25-92СТК 4-25-92СТК 4-25-92СТК 4-25-92СТК 4-25-92СТК 4-25-92СТК 4-25-92СТК 4-25-92СТК 4-25-92СТК 4-25-92СТК 4-25-92СТК 4-25-92СТК 4-25-92СТК 4-25-92СТК 4-25-92СТК 4-25-92СТК 4-25-92СТК 4-25-92СТК 4-25-92СТК 4-25-92СТК 4-25-92СТК 4-25-92СТК 4-25-92СТК 4-25-92СТК 4-25-92СТК 4-25-92СТК 4-25-92СТК 4-25-92СТК 4-25-92СТК 4-25-92СТК 4-25-92СТК 4-25-92СТК 4-25-92СТК 4-25-92СТК 4-25-92СТК 4-25-92СТК 4-25-92СТК 4-25-92СТК 4-25-92СТК 4-25-92СТК 4-25-92СТК 4-25-92СТК 4-25-92СТК 4-25-92СТК 4-25-92СТК 4-25-92СТК 4-25-92СТК 4-25-92СТК 4-25-92СТК 4-25-92СТК 4-25-92СТК 4-25-92СТК 4-25-92СТК 4-25-92СТК 4-25-92СТК 4-25-92СТК 4-25-92СТК 4-25-92СТК 4-25-92СТК 4-25-92СТК 4-25-92СТК 4-25-92

© 2013 Ёшкин Кот :-) Карта сайта