| ||||||||||||||||||||||||
 Скачать Справочник Электрооборудование, шинопроводы, электромонтажные изделия, инструменты и механизмы. СправочникДата актуализации: 10.08.2017
 | 
| Обозначение: |   Справочник  | 
| Обозначение англ: |   Reference Book  | 
| Статус: | не действует | 
| Название рус.: | Электрооборудование, шинопроводы, электромонтажные изделия, инструменты и механизмы. Справочник | 
| Дата добавления в базу: | 01.09.2013 | 
| Дата актуализации: | 05.05.2017 | 
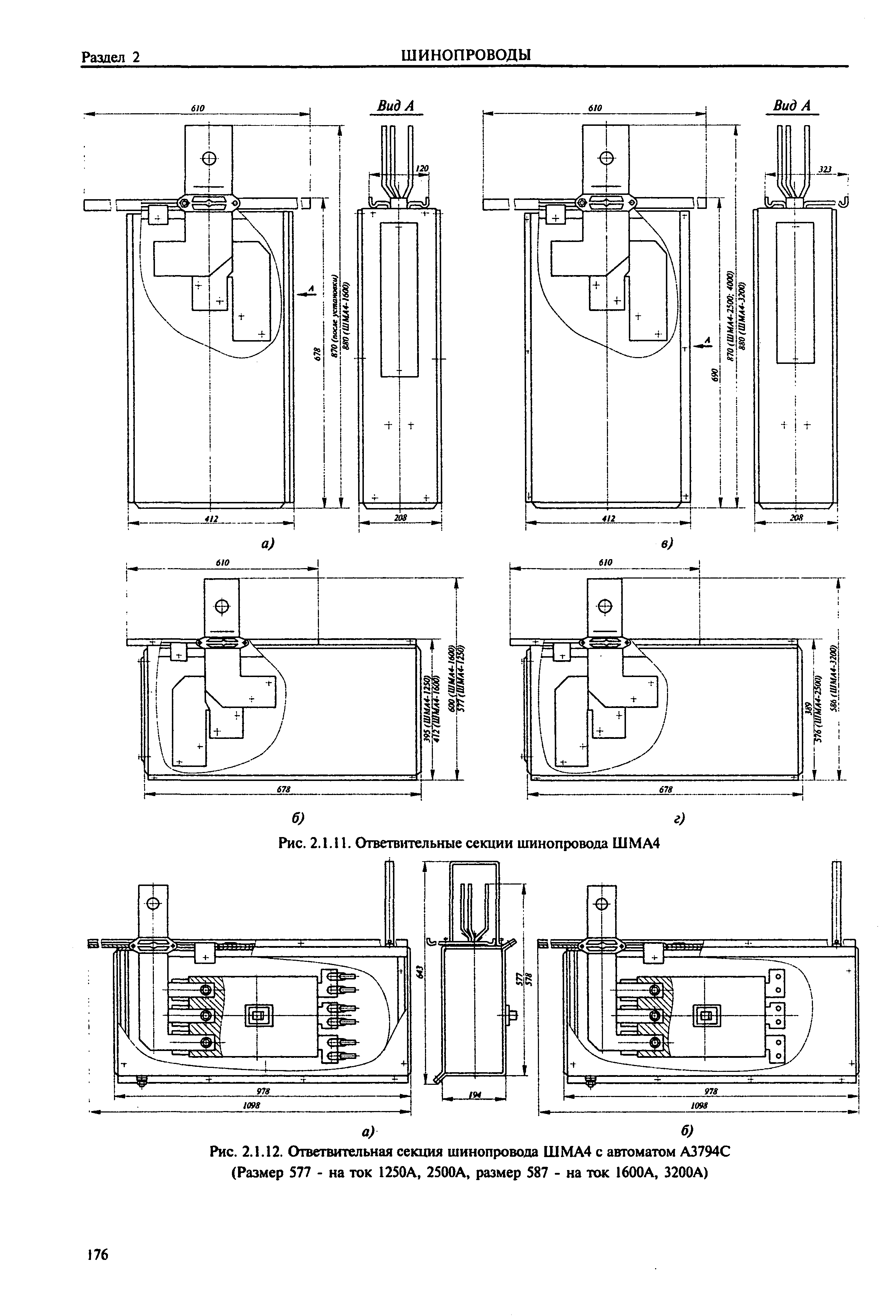
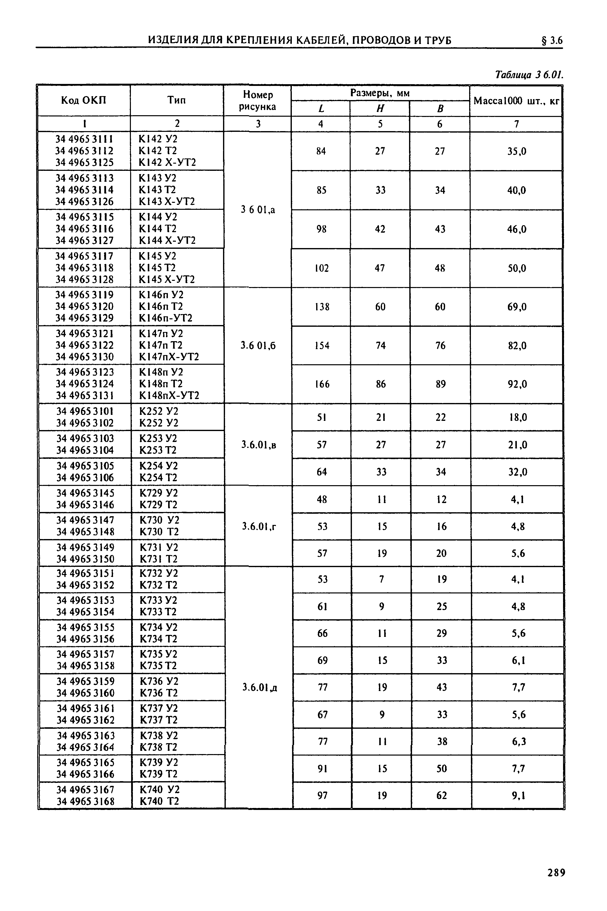
| Область применения: | Приведены описания и технические данные комплектных распределительных устройств и шинопроводов до и свыше 1000 В, электромонтажных изделий, инструментов и средств механизации, применяемых при производстве электромонтажных работ. Для инженерно-технических работников проектных и монтажных организаций, служб эксплуатации предприятий | 
| Оглавление: | Предисловие Раздел 1. Комплектные распределительные устройства Раздел 2. Шинопроводы Раздел 3. Электромонтажные изделия Раздел 4. Механизмы и инструменты Раздел 5. Светильники и осветительная арматура Название и адреса заводов Алфавитный указатель  | 
| Издан: |  ИНПА (2005 г. ) | 
| Расположен в: | 















































































































































































































































































































































































