| 
 | ||||||||||||||||||||||||||||
| 
 Скачать Альбом СК 3303-87 Конструктивные решения двухтрубных тепловых сетей с пенополиуретановой изоляцией диаметром Ду 50 - 1000 мм. Материалы для проектированияДата актуализации: 10.08.2017
 | 
| Обозначение: |  Альбом СК 3303-87 | 
| Обозначение англ: |  СК 3303-87 | 
| Статус: | не определен законодательством | 
| Название рус.: | Конструктивные решения двухтрубных тепловых сетей с пенополиуретановой изоляцией диаметром Ду 50 - 1000 мм. Материалы для проектирования | 
| Дата добавления в базу: | 01.09.2013 | 
| Дата актуализации: | 05.05.2017 | 
| Дата введения: | 25.09.1987 | 
| Область применения: | В настоящем альбоме разработаны типовые решения бесканальной и канальной прокладки двухтрубных тепловых сетей с применением труб, изолированных пенополиуретаном, диаметром от 50 до 1000 мм | 
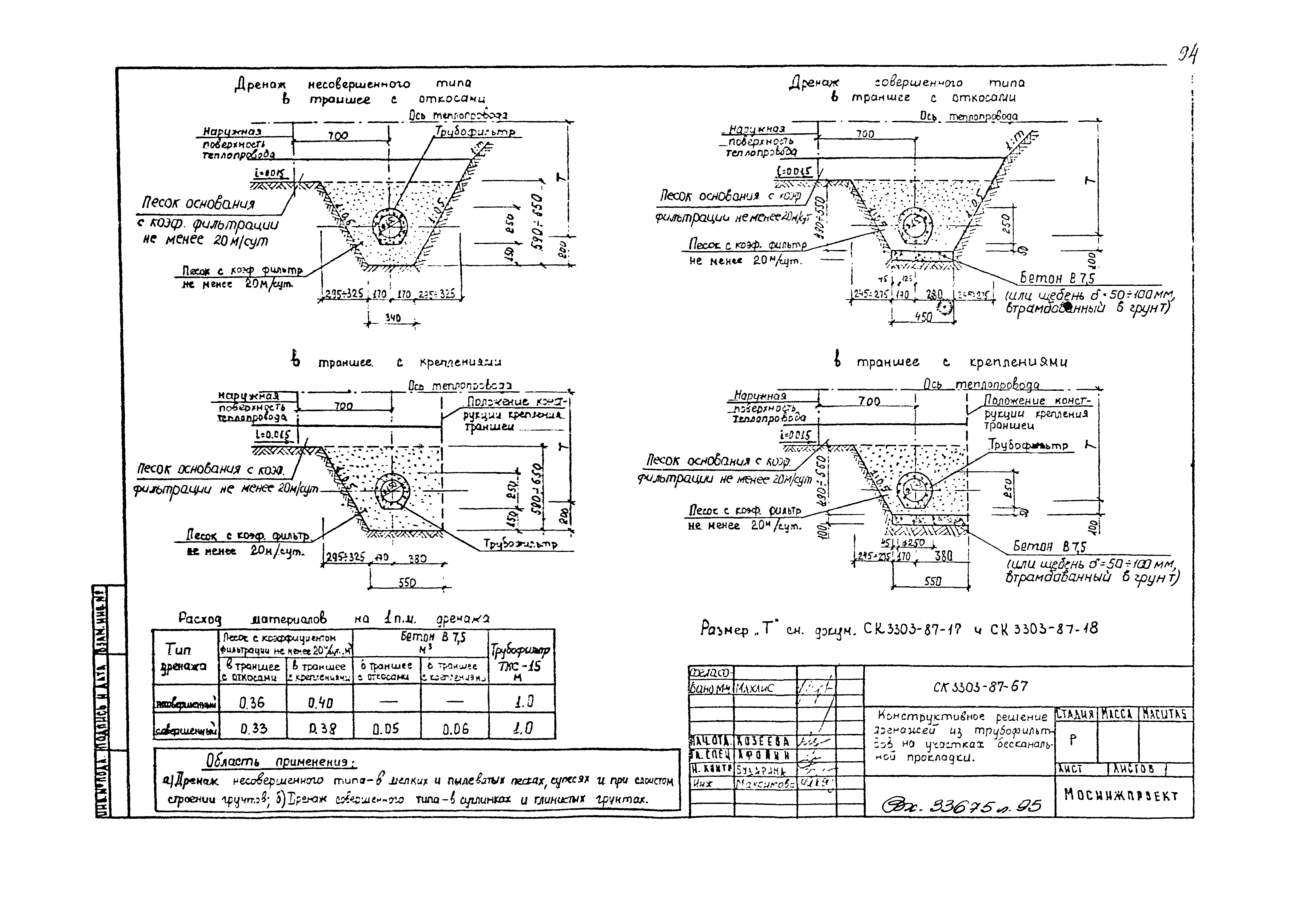
| Оглавление: | СК 3303-87-00ПЗ Пояснительная записка СК 3303-87-01 Основные показатели труб с изоляцией из пенополиуретана в полиэтиленовой оболочке Ду 50 - 1000 мм СК 3303-87-02 Основные показатели изолированных отводов теплопроводов Ду 50 - 500 мм СК 3303-87-03 Основные показатели изолированных отводов теплопроводов Ду 500 - 1000 мм с углом поворота 90 градусов СК 3303-87-04 Основные показатели изолированных отводов теплопроводов Ду 500 - 1000 мм с углом поворота 135 градусов СК 3303-87-05 Основные показатели изолированных отводов теплопроводов Ду 500 - 1000 мм с углом поворота 150 градусов СК 3303-87-06 Основные показатели изолированных равнопроходных тройников Ду 50 - 500 мм СК 3303-87-07 Основные показатели изолированных разнопроходных тройников Ду 50 - 500 мм СК 3303-87-08 Основные показатели скорлуп из пеноролиуретана для теплопроводов Ду 50 - 200 мм СК 3303-87-09 Основные показатели полиэтиленовых гильз, термоусаживающихся манжет и матов из эластичного вспененного полиэтилена СК 3303-87-10 Изолированные элементы неподвижных опор Ду 50 - 400 мм СК 3303-87-11 Изолированные элементы неподвижных опор Ду 500 - 1000 мм СК 3303-87-12 Изолированные элементы неподвижных опор Ду 500 - 1000 мм. Металлоконструкции СК 3303-87-13 Неподвижная сборная щитовая опора НОП-1 для теплопроводов Ду 50 - 400 мм на усилие до 15 т. Сборочный чертеж СК 3303-87-14 Неподвижная сборная щитовая опора НОП-2 для теплопроводов Ду 200 - 400 мм на усилие до 25 т. Сборочный чертеж СК 3303-87-15 Неподвижная сборная щитовая опора НОП-3 для теплопроводов Ду 500 и 600 мм на усилие до 50 т. Сборочный чертеж СК 3303-87-16 Бесканальная прокладка теплопроводов в сухих песчаных грунтах СК 3303-87-17 Бесканальная прокладка теплопроводов с дренажом несовершенного типа СК 3303-87-18 Бесканальная прокладка теплопроводов с дренажом совершенного типа СК 3303-87-19 Бесканальная прокладка теплопроводов при высоком уровне подземных вод с дренажом несовершенного типа СК 3303-87-20 Бесканальная прокладка теплопроводов при высоком уровне подземных вод с дренажом совершенного типа СК 3303-87-21 Бесканальная прокладка теплопроводов с дренажом несовершенного типа. Вариант СК 3303-87-22 Бесканальная прокладка теплопроводов с дренажом совершенного типа. Вариант СК 3303-87-23 Бесканальная прокладка теплопроводов при высоком уровне подземных вод с дренажом несовершенного типа. Вариант СК 3303-87-24 Бесканальная прокладка теплопроводов при высоком уровне подземных вод с дренажом совершенного типа. Вариант СК 3303-87-25 Бесканальная прокладка теплопроводов с дренажом несовершенного типа с применением нетканых материалов СК 3303-87-26 Бесканальная прокладка теплопроводов с дренажом совершенного типа с применением нетканых материалов СК 3303-87-27 Бесканальная прокладка теплопроводов с дренажом несовершенного типа с применением нетканых материалов. Вариант СК 3303-87-28 Бесканальная прокладка теплопроводов с дренажом несовершенного типа с применением нетканых материалов. Вариант СК 3303-87-29 Конструктивное решение углов поворота теплопроводов Ду 50 - 200 мм из эластичных полистирольных блоков. Пример решения СК 3303-87-30 Конструктивное решение углов поворота теплопроводов Ду 50 - 1000 мм с применением матов из эластичного вспененного полиэтилена. Пример решения СК 3303-87-31 Изоляция стыков труб на прямых участках теплопроводов Ду 50 - 200 мм скорлупами из пенополиуретана и термоусаживающимися манжетами СК 3303-87-32 Изоляция стыков труб на прямых участках теплопроводов Ду 50 - 200 мм при помощи скорлуп, гильз и ленточных усадочных муфт СК 3303-87-33 Изоляция стыков труб на прямых участках теплопроводов Ду 250 - 1000 мм полиуретановой пеной, гильзами и ленточными усадочными муфтами СК 3303-87-34 Изоляция стыков труб на прямых участках теплопроводов Ду 200 - 1000 мм пеноэпоксидом (камюм), гильзами и ленточными усадочными муфтами СК 3303-87-35 Изоляция стыков труб на углах поворота теплопроводов Ду 50 - 200 мм. Пример СК 3303-87-36 Изоляция стыков труб на углах поворота теплопроводов Ду 250 - 1000 мм. Пример СК 3303-87-37 Конструкция свободного прохода труб через стенки камер СК 3303-87-38 Технологические сечения каналов для теплопроводов Ду 400 - 1000 мм с проходом по середине СК 3303-87-39 Технологические сечения каналов для теплопроводов Ду 200 - 600 мм с проходом по середине с применением блоков БС СК 3303-87-40 Технологические сечения каналов для теплопроводов Ду 200 - 1000 мм с проходом по середине с применением блоков КС СК 3303-87-41 Каналы из лотковых элементов для теплопроводов Ду 50 - 600 мм. Строительный чертеж СК 3303-87-42 Каналы из ребристых лотковых элементов для теплопроводов Ду 700 - 1000 мм. Строительный чертеж СК 3303-87-43 Технологические сечения непроходных каналов из лотковых элементов для теплопроводов Ду 50 - 1000 мм при укладке на песчаную подушку СК 3303-87-44 Каналы из лотковых элементов для теплопроводов Ду 50 - 1000 мм при укладке теплопроводов на песчаную подушку. Строительный чертеж СК 3303-87-45 Каналы из лотковых элементов. Детали стыков СК 3303-87-46 Основание и обсыпка каналов для теплопроводов Ду 50 - 1000 мм в сухих песчаных грунтах СК 3303-87-47 Основание и обсыпка каналов для теплопроводов Ду 50 - 1000 мм с дренажом сбоку канала СК 3303-87-48 Основание и обсыпка каналов для теплопроводов Ду 50 - 1000 мм с дренажом несовершенного типа сбоку канала. Вариант СК 3303-87-49 Основание и обсыпка каналов для теплопроводов Ду 50 - 1000 мм с дренажом совершенного типа сбоку канала. Вариант СК 3303-87-50 Основание и обсыпка каналов для теплопроводов Ду 50 - 1000 мм при высоком уровне подземных вод СК 3303-87-51 Основание и обсыпка каналов для теплопроводов Ду 50 - 1000 мм в сухих песчаных грунтах с применением фильтрующих плит из пенополистирола СК 3303-87-52 Основание и обсыпка каналов для теплопроводов Ду 50 - 1000 мм (дренаж сбоку канала) с применением фильтрующих плит из пенополистирола СК 3303-87-53 Основание и обсыпка каналов для теплопроводов Ду 100 - 1000 мм (дренаж под каналом) с применением фильтрующих плит из пенополистирола СК 3303-87-54 Основание и обсыпка каналов для теплопроводов Ду 50 - 1000 мм при высоком уровне подземных вод (дренаж сбоку канала) с применением фильтрующих плит из керамзитобетона и полистирола СК 3303-87-55 Конструкция сопряжения бесканальной прокладки с канальным участком. Вариант 1 СК 3303-87-56 Конструкция сопряжения бесканальной прокладки с канальным участком. Вариант 2 СК 3303-87-57 Подвижные опоры теплопроводов Ду 50 - 150 мм СК 3303-87-58 Подвижные опоры теплопроводов Ду 200 - 1000 мм. Установочный чертеж СК 3303-87-59 Подвижные опоры теплопроводов Ду 200 - 1000 мм. Металлоконструкции СК 3303-87-60 Конструктивный чертеж монолитных неподвижных щитовых опор для теплопроводов Ду 700 - 1000 мм. Тип 3,4 СК 3303-87-61 Конструктивный чертеж неподвижных сборных щитовых опор для теплопроводов Ду 50 - 600 мм СК 3303-87-62 Конструкция прохода труб через щитовую опору. Принципиальное решение СК 3303-87-63 Строительный чертеж ниши "П"-образного компенсатора для теплопроводов Ду 50 - 500 мм с применением угловых железобетонных элементов СК 3303-87-64 Технологический чертеж ниши "П"-образного компенсатора для теплопроводов Ду 50 - 500 мм при укладке труб на песчаную подушку СК 3303-87-65 Конструктивное решение дренажей из асбестоцементных труб на канальных участках СК 3303-87-66 Конструктивное решение дренажей из трубофильтров на канальных участках СК 3303-87-67 Конструктивное решение дренажей из трубофильтров на участках бесканальной прокладки СК 3303-87-68 Конструктивное решение дренажей из асбестоцементных труб на участках бесканальной прокладки СК 3303-87-69 Данные для определения усилий на неподвижные опоры (силы трения и внутреннего давления) СК 3303-87-70 Правила пользования к номограммам для расчета "П"-образных компенсаторов при бесканальной прокладке СК 3303-87-71 Номограмма для определения размеров "П"-образных компенсаторов (В = Н) при бесканальной прокладке СК 3303-87-72 Номограмма для определения размеров "П"-образных компенсаторов (В = 1,5 Н) при бесканальной прокладке СК 3303-87-73 Номограмма для определения длин канальных участков, примыкающих к "П"-образным компенсаторам (В = Н, В = 1,5 Н) при бесканальной прокладке СК 3303-87-74 Номограмма для определения сил упругой деформации в "П"-образных компенсаторах (В = Н) при бесканальной прокладке СК 3303-87-75 Номограмма для определения сил упругой деформации в "П"-образных компенсаторах (В = 1,5Н) при бесканальной прокладке СК 3303-87-76 Правила пользования номограммой для определения длин канальных участков при Г-образной самокомпенсации для бесканальной прокладки СК 3303-87-77 Номограмма для определения длин канальных участков при Г-образной самокомпенсации для бесканальной прокладки СК 3303-87-78 Номограмма для определения сил упругой деформации при Г-образной самокомпенсации для бесканальной прокладки СК 3303-87-79 Правила пользования номограммой для определения сил упругой деформации при Г-образной самокомпенсации для бесканальной прокладки СК 3303-87-80 Номограммы для определения сил упругой деформации при Z-образной самокомпенсации для бесканальной прокладки СК 3303-87-81 Правила пользования номограммой для определения длин канальных участков и сил упругой деформации при Z-образной самокомпенсации для бесканальной прокладки СК 3303-87-82 Номограмма №1 для определения длин канальных участков при Z-образной самокомпенсации для бесканальной прокладки СК 3303-87-83 Номограмма №2 для определения длин канальных участков при Z-образной самокомпенсации для бесканальной прокладки СК 3303-87-84 Конструкция пересечения труб теплосети при бесканальной прокладке над существующим газопроводом СК 3303-87-85 Конструкция пересечения труб теплосети при бесканальной прокладке под существующим газопроводом СК 3303-87-86 Конструкция пересечения труб теплосети при бесканальной прокладке над существующим водопроводом СК 3303-87-87 Конструкция пересечения труб теплосети при бесканальной прокладке под существующим водопроводом | 
| Разработан: | Мосинжпроект | 
| Утверждён: | 25.09.1987 Мосинжпроект (Mosinzhproject 28) | 
| Расположен в: | 


















































































































