| 
 | ||||||||||||||||||||||||||||||
| 
 Скачать Альбом РК 2301-82 Сборные железобетонные блоки и плиты днища каналов и камер водосточных и канализационных сетей. Рабочие чертежи изделийДата актуализации: 10.08.2017
 | 
| Обозначение: |  Альбом РК 2301-82 | 
| Обозначение англ: |  РК 2301-82 | 
| Статус: | не определен законодательством | 
| Название рус.: | Сборные железобетонные блоки и плиты днища каналов и камер водосточных и канализационных сетей. Рабочие чертежи изделий | 
| Дата добавления в базу: | 01.09.2013 | 
| Дата актуализации: | 05.05.2017 | 
| Дата введения: | 27.10.1982 | 
| Область применения: | Каталог унифицированных изделий для строительства в г. Москве разделом 2-ой части "Инженерные сооружения и коммуникации" предусматривает изготовление стеновых блоков и плит днища для сооружения водосточных и канализационных каналов большого сечения, а также строительства камер на них | 
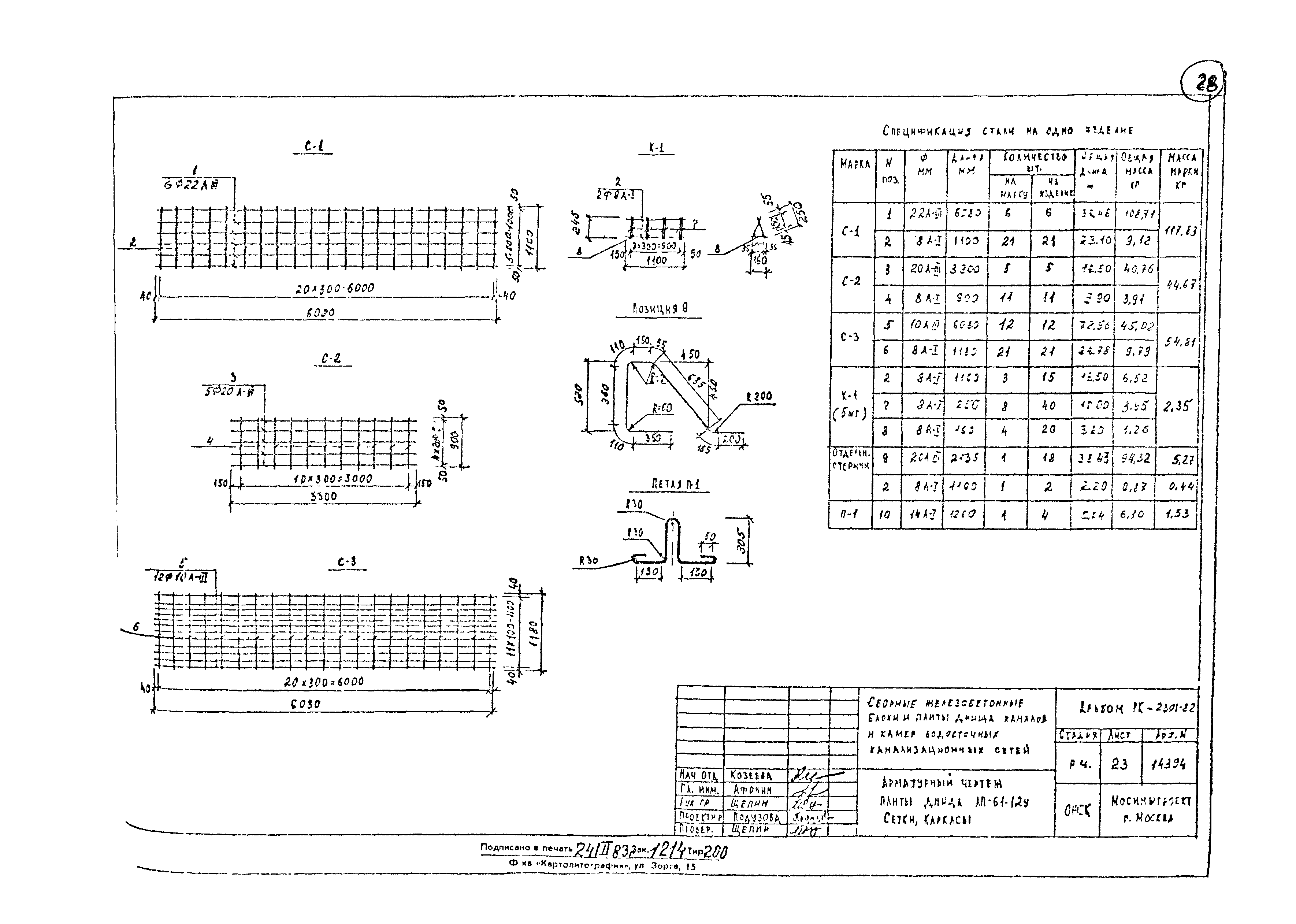
| Оглавление: | РК 2301-82 Титульный лист РК 2301-82 Содержание альбома РК 2301-82 Пояснительная записка РК 2301-82 Основные показатели сборных железобетонных элементов РК 2301-82 Схемы испытания сборных железобетонных элементов РК 2301-82 Общий вид водосточного (канализационного) коллектора с применение блоков типа БС. Пример решения РК 2301-82 Общий вид водосточного (канализационного) коллектора с применение блоков типа БС-35-16. Пример решения РК 2301-82 Опалубочный чертеж стеновых блоков БС-6А,БС-6Ау,БС-35-16,БС-35-16у РК 2301-82 Опалубочный чертеж стеновых блоков БС-1с,БС-1Су,БС-1К,БС-1Ку РК 2301-82 Опалубочный чертеж плит днища ЛП-55-12,ЛП-55-12у,ЛП-61-12,ЛП-61-12у РК 2301-82 Арматурный чертеж стеновых блоков БС-6А,БС-6Ау. Разрезы РК 2301-82 Арматурный чертеж стеновых блоков БС-6А,БС-6Ау. Сетки, каркасы РК 2301-82 Арматурный чертеж стеновых блоков БС-35-16,БС-35-16у. Разрезы РК 2301-82 Арматурный чертеж стеновых блоков БС-35-16,БС-35-16у. Сетки каркасы РК 2301-82 Арматурный чертеж стеновых блоков БС-1С,БС-1Су. Разрезы РК 2301-82 Арматурный чертеж стеновых блоков БС-1С,БС-1Су. Сетки, каркасы РК 2301-82 Арматурный чертеж стеновых блоков БС-1К,БС-1Ку. Разрезы РК 2301-82 Арматурный чертеж стеновых блоков БС-1К,БС-1Ку. Сетки, каркасы РК 2301-82 Арматурный чертеж плиты днища ЛП-55-12. Разрезы РК 2301-82 Арматурный чертеж плиты днища ЛП-55-12. Сетки, каркасы РК 2301-82 Арматурный чертеж плиты днища ЛП-55-12у. Разрезы РК 2301-82 Арматурный чертеж плиты днища ЛП-55-12у. Сетки, каркасы РК 2301-82 Арматурный чертеж плиты днища ЛП-61-12. Разрезы РК 2301-82 Арматурный чертеж плиты днища ЛП-61-12. Сетки, каркасы РК 2301-82 Арматурный чертеж плиты днища ЛП-61-12у. Разрезы РК 2301-82 Арматурный чертеж плиты днища ЛП-61-12у. Сетки, каркасы | 
| Разработан: | Мосинжпроект | 
| Утверждён: | 27.10.1982 Мосинжпроект (Mosinzhproject 246) | 
| Расположен в: | |
| Заменяет собой: | 
 | 




























