| ||||||||||||||||||||||||||||
Скачать Шифр М25.13/98 Выпуск 3. Монтажные узлыДата актуализации: 10.08.2017
|
| Обозначение: | Шифр М25.13/98 |
| Обозначение англ: | М25.13/98 |
| Статус: | не определен законодательством |
| Название рус.: | Выпуск 3. Монтажные узлы |
| Дата добавления в базу: | 01.09.2013 |
| Дата актуализации: | 05.05.2017 |
| Дата введения: | 30.07.1999 |
| Область применения: | Выпуск содержит рабочие чертежи узлов сопряжения трехслойных стеновых панелей самонесущих и навесных стен каркасных общественных зданий |
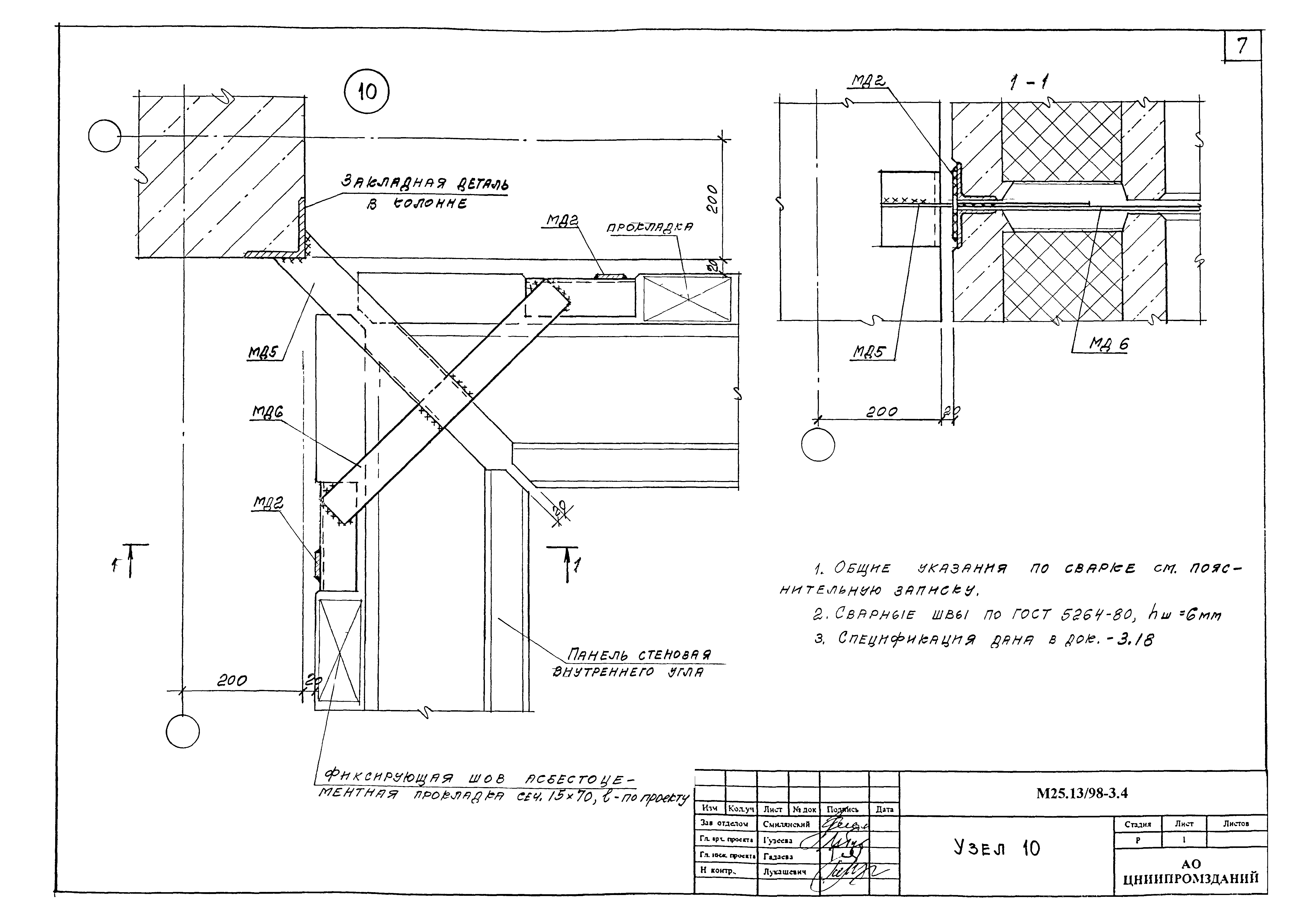
| Оглавление: | М25.13/98-3.ПЗ Пояснительная записка М25.13/98-3.1 Узлы 1 и 2 М25.13/98-3.2 Узлы 3...6 М25.13/98-3.3 Узлы 7 и 8 М25.13/98-3.4 Узел 10 М25.13/98-3.5 Узел 11 М25.13/98-3.6 Узлы 12...14 М25.13/98-3.7 Узлы 15, 16 М25.13/98-3.8 Узлы 18, 19 М25.13/98-3.9 Узлы 20...23 М25.13/98-3.10 Узлы 25...30 М25.13/98-3.11 Узлы 31...33 М25.13/98-3.12 Узлы 34...36 М25.13/98-3.13 Узлы 37...39 М25.13/98-3.14 Узлы 40...42 М25.13/98-3.15 Узлы 43, 44 М25.13/98-3.16 Узлы 45...51, «А» М25.13/98-3.17 Соединительные детали МД1...МД27, РК-250; ТК-250 М25.13/98-3.18 Спецификация |
| Разработан: | ЦНИИпромзданий |
| Утверждён: | 30.12.1999 ЦНИИ промзданий (TsNII promzdaniy ) |
| Расположен в: |


























