| ||||||||||||||||||||||||||||||
Скачать Часть III Цехи бортового питания в аэропортах ГАДата актуализации: 10.08.2017
|
| Обозначение: | Часть III |
| Обозначение англ: | Часть III |
| Статус: | не установлен срок действия |
| Название рус.: | Цехи бортового питания в аэропортах ГА |
| Дата добавления в базу: | 01.09.2013 |
| Дата актуализации: | 05.05.2017 |
| Область применения: | Пособие является вспомогательным методическим материалом для проектирования новых, а также расширения и реконструкции действующих цехов бортового питания (ЦБП) гражданской авиации и предназначено для повышения уровня проектирования. Проектирование цехов бортового питания в международных аэропортах следует осуществлять в соответствии с положениями Пособия с учетом специфики обслуживания международных рейсов |
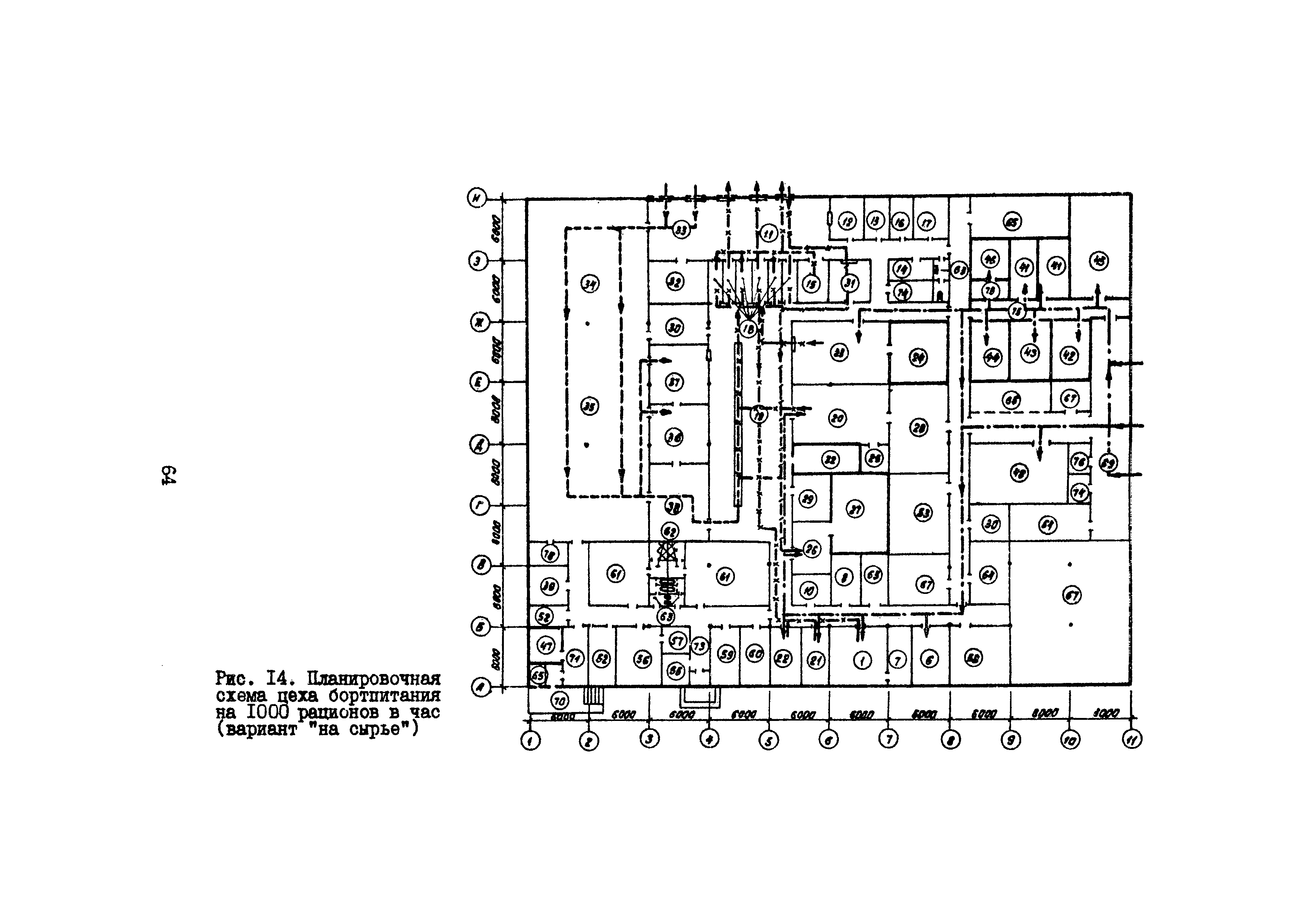
| Оглавление: | 1. Общие положения 2. Расчетные характеристики. Режим работы 3. Технологические процессы и организация работы цехов бортового питания 4. Состав и размещение помещений. Нормы площади 5. Рекомендуемые планировочные схемы цехов бортового питания 6. Средства механизации технологических процессов 7. Электроснабжение, электрооборудование, электроосвещение и электросвязь 8. Требования взрыво- и пожарной безопасности, пожарной сигнализации 9. Режимно-охранное обеспечение 10. Технико-экономические показатели Приложение 1 Площади помещений, предназначенных для отпуска прохладительных напитков, предусмотренные в предприятиях общественного питания аэропорта и принципиальная технологическая схема организации работы ЦБП Приложение 2 Порядок (методика) расчета производительности и состава рационов цехов бортового питания для перспективного периода при наличии конкретных исходных данных Приложение 3 Ориентировочная производительность цехов бортового питания в зависимости от класса аэропорта Приложение 4 Нормы времени на выполнение операций в расчете на обеспечение рационами бортового питания 100-местного воздушного судна Приложение 5 Основные положения по определению площадей помещений при объединении цехов бортового питания с предприятиями общественного питания Приложение 6 Нормы площадей помещений кондитерского цеха, подлежащего проектированию в составе цехов бортового питания производительностью 200-2000 рац. /ч Приложение 7 Примерная номенклатура и численность персонала цеха в максимальную смену при работе на полуфабрикатах и на сырье Приложение 8 Методика расчета средств механизации специфических технологических процессов Приложение 9 Коэффициент спроса основных силовых электроприемников и ориентировочная величина установленной мощности основного технологического оборудования по цехам бортового питания производительностью 200-2000 рац./ч Приложение 10 Перечень помещений цехов бортового питания, подлежащих оборудованию техническими средствами охраны (ТСО) |
| Разработан: | ГПИ и НИИ ГА Аэропроект |
| Утверждён: | 29.05.1986 ГПИ и НИИ ГА Аэропроект |
| Издан: | ГПИ и НИИ ГА (1986 г. ) |
| Расположен в: | |
| Заменяет собой: |
|































































































































































































