| ||||||||||||||||||||||||||
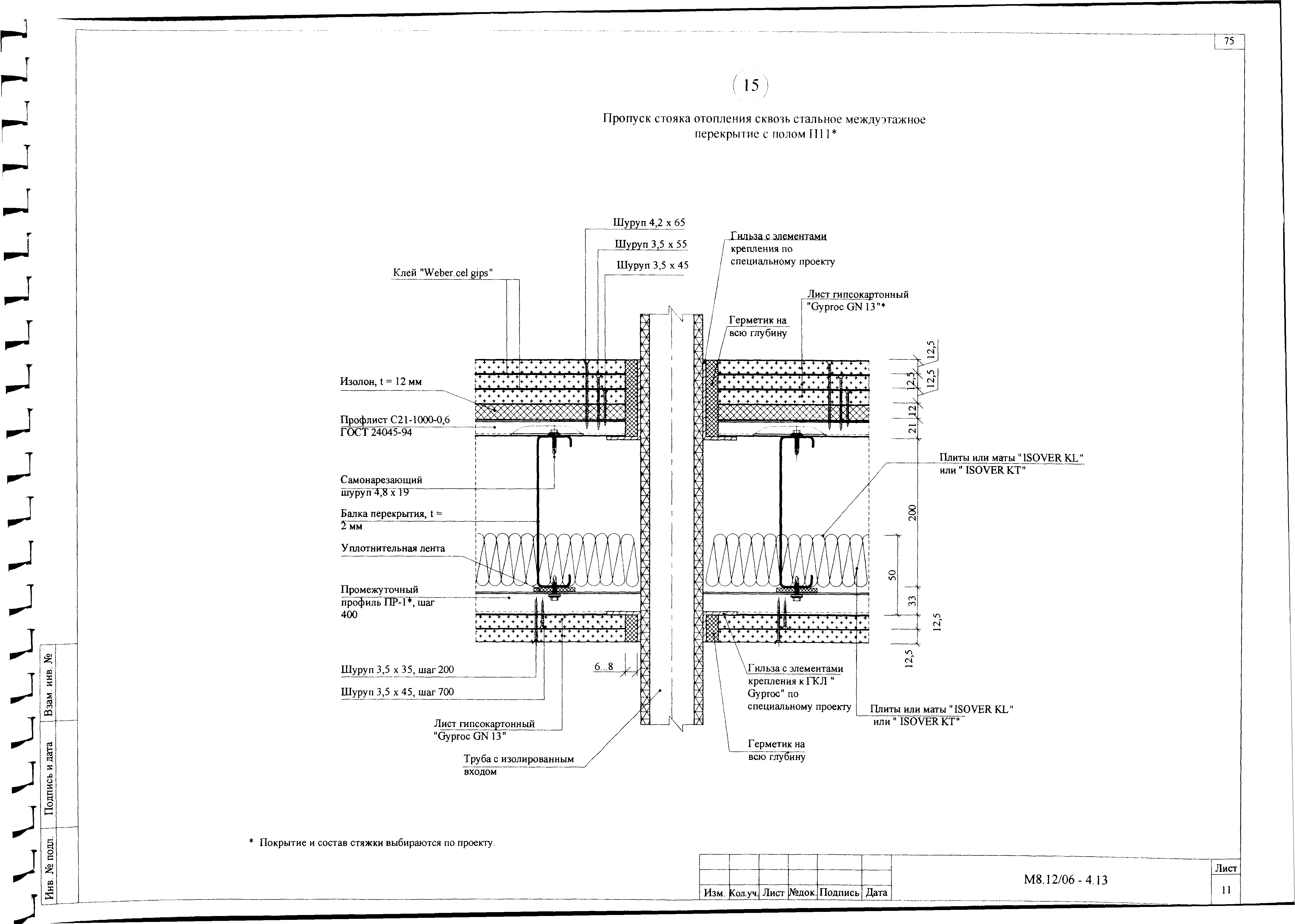
Скачать Шифр М8.12/06 Выпуск 4. Основание под чистые полы. Материалы для проектирования и рабочие чертежи узловДата актуализации: 10.08.2017
|
| Обозначение: | Шифр М8.12/06 |
| Обозначение англ: | М8.12/06 |
| Статус: | не определен законодательством |
| Название рус.: | Выпуск 4. Основание под чистые полы. Материалы для проектирования и рабочие чертежи узлов |
| Дата добавления в базу: | 01.09.2013 |
| Дата актуализации: | 05.05.2017 |
| Дата введения: | 15.06.2006 |
| Разработан: | ОАО ЦНИИпромзданий АО Сен-Гобен Изовер Егорьевск АО Гипрок |
| Утверждён: | ОАО ЦНИИпромзданий (TsNIIpromzdaniy OAO ) |
| Принят: | АО Гипрок ООО Сен-Гобен Изовер Егорьевск ООО Сен-Гобен Вебер Рус |
| Расположен в: |






















































































