Скачать Типовые материалы для проектирования 501-01-6.89 Альбом 4. Настилы переходов для прогона скота железобетонные. Настилы переходов для прогона скота деревянныеДата актуализации: 10.08.2017 Типовые материалы для проектирования 501-01-6.89
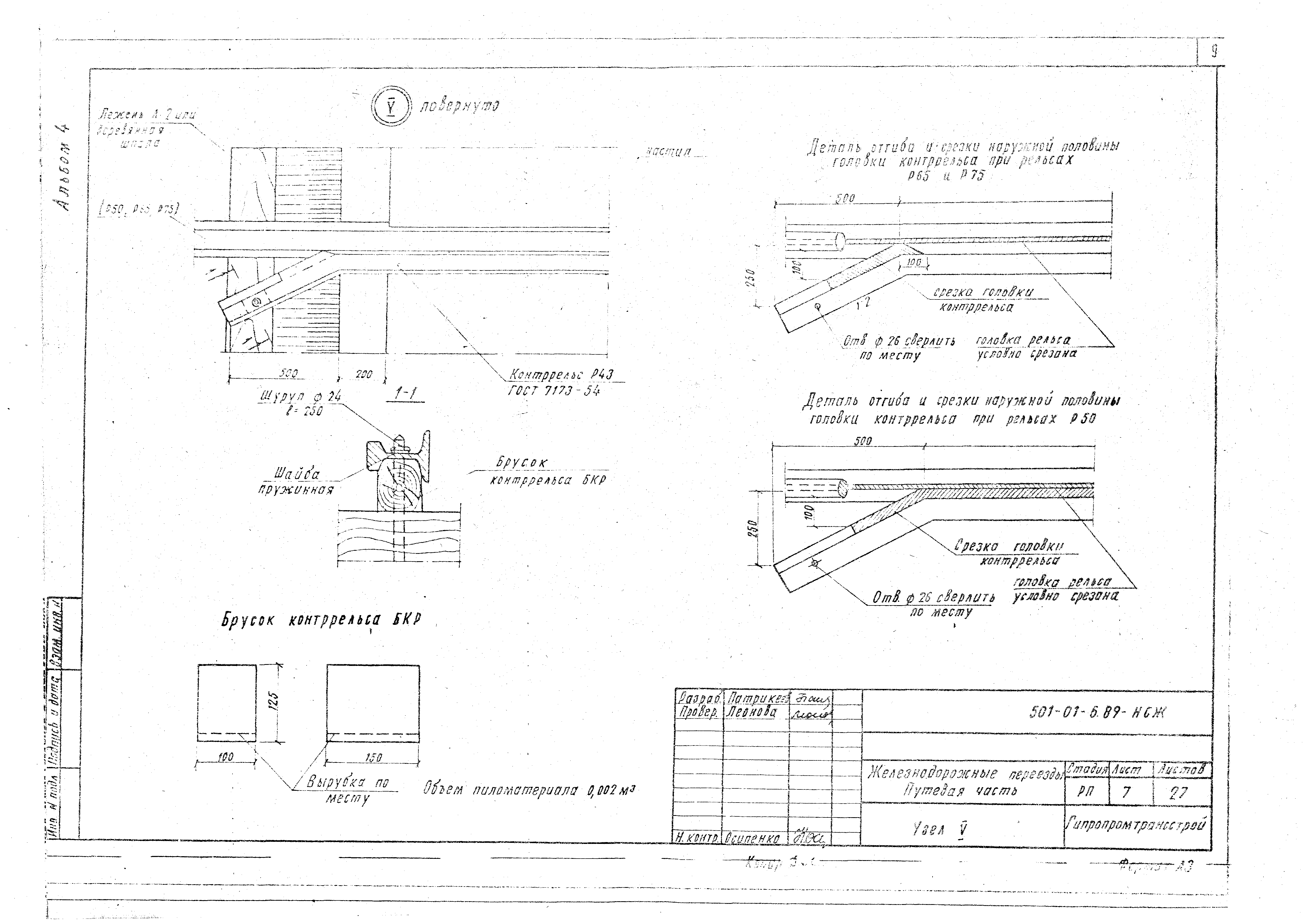
Альбом 4. Настилы переходов для прогона скота железобетонные. Настилы переходов для прогона скота деревянные| Обозначение: | Типовые материалы для проектирования 501-01-6.89 | | Обозначение англ: | 501-01-6.89 | | Статус: | cправочные материалы, мп, тпр | | Название рус.: | Альбом 4. Настилы переходов для прогона скота железобетонные. Настилы переходов для прогона скота деревянные | | Дата добавления в базу: | 01.09.2013 | | Дата актуализации: | 05.05.2017 | | Дата введения: | 17.08.1989 | | Разработан: | Гипропромтрансстрой
| | Утверждён: | 17.08.1989 МПС СССР (USSR Ministry of Railroads Н-2128у)
| | Расположен в: |
|
                                
|