Скачать Типовой проект 903-4-46.86 Альбом 2. Архитектурно-строительные решения. Ведомости потребности в материалах к архитектурно-строительным решениям. Отопление, вентиляция, внутренний водопровод и канализация. Каркасно-панельный вариантДата актуализации: 10.08.2017 Типовой проект 903-4-46.86
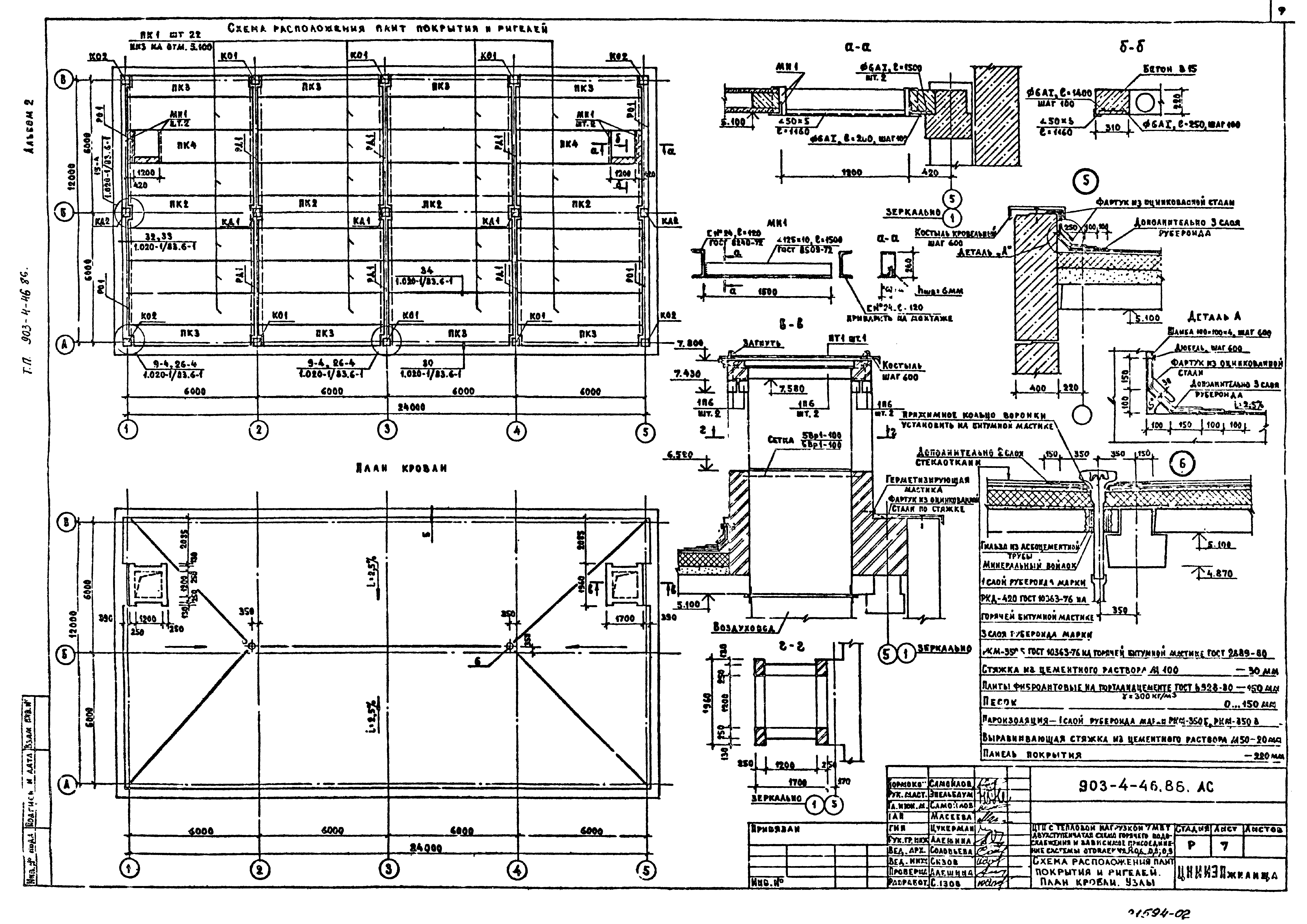
Альбом 2. Архитектурно-строительные решения. Ведомости потребности в материалах к архитектурно-строительным решениям. Отопление, вентиляция, внутренний водопровод и канализация. Каркасно-панельный вариантОбозначение: | Типовой проект 903-4-46.86 | Обозначение англ: | 903-4-46.86 | Статус: | не определен законодательством | Название рус.: | Альбом 2. Архитектурно-строительные решения. Ведомости потребности в материалах к архитектурно-строительным решениям. Отопление, вентиляция, внутренний водопровод и канализация. Каркасно-панельный вариант | Дата добавления в базу: | 01.09.2013 | Дата актуализации: | 05.05.2017 | Дата введения: | 01.12.1986 | Оглавление: | Титульный лист Содержание Архитектурно-строительные решения 903-4-46.86.АС Л.1 Общие данные 903-4-46.86.АС Л.2 Спецификация 903-4-46.86.АС Л.3 Фасады 903-4-46.86.АС Л.4 Варианты фасадов 903-4-46.86.АС Л.5 План. Разрезы 903-4-46.86.АС Л.6 План фундаментов. План установки монорельсов и глушителей. Узлы 903-4-46.86.АС Л.7 Схема расположения плит покрытия и ригелей. План кровли. Узлы 903-4-46.86 ВМ АС Л1.4 Ведомость потребности в материалах по рабочим чертежам АС Отопление и вентиляция 903-4-46.86 ОВ Общие данные. План на отм. 0.000 Схемы систем П1, ВЕ1 Эскизные чертежи общих видов нетиповых конструкций 903-4-46.86 ОВН Содержание 903-4-46.86 ОВН Конфузор 903-4-46.86 ОВН Звукоизоляция Водопровод и канализация 903-4-46.86 ВК Общие указания, фрагменты планов на отм 0.040 Выкопировка из плана кровли по оси Б Схемы В1,Т3,К1,К2 | Разработан: | ЦНИИЭП инженерного оборудования ЦНИИЭП жилища
| Утверждён: | 31.05.1985 Госгражданстрой (Gosgrazhdanstroy 174)
| Расположен в: |
|
             
|