Информационная система
«Ёшкин Кот»

Скачать базу одним архивом
Скачать обновления
История создания базы
Карта сайта

Скачать Типовой проект 901-3-24 Альбом VI. Башня для хранения промывной воды с баком емкостью 200 куб. м (чертежи)

Дата актуализации: 10.08.2017

Типовой проект 901-3-24

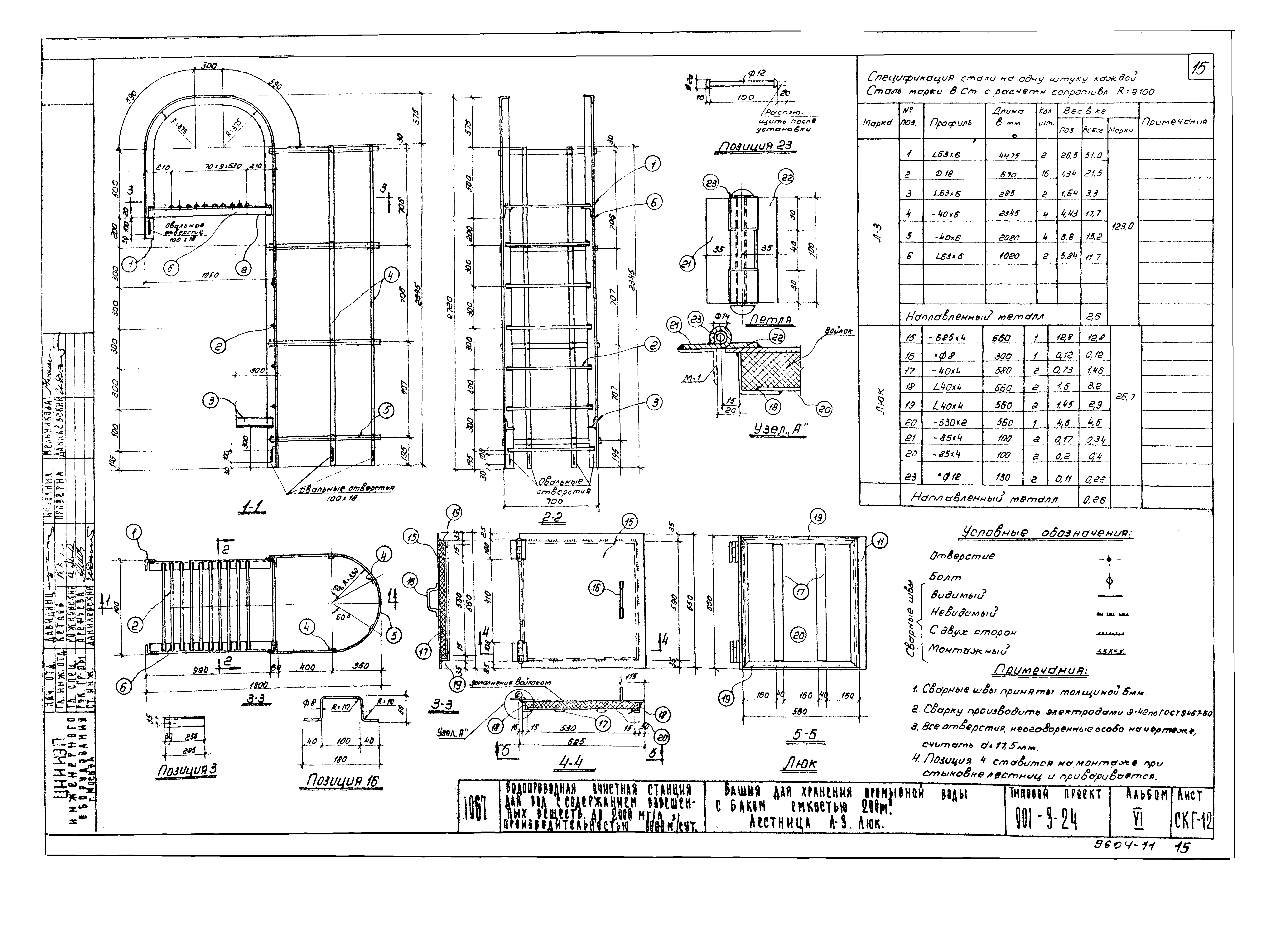
Альбом VI. Башня для хранения промывной воды с баком емкостью 200 куб. м (чертежи)

Обозначение: Типовой проект 901-3-24
Обозначение англ: 901-3-24
Статус:не определен законодательством
Название рус.:Альбом VI. Башня для хранения промывной воды с баком емкостью 200 куб. м (чертежи)
Дата добавления в базу:01.09.2013
Дата актуализации:05.05.2017
Дата введения:01.12.1967
Область применения:Башня предназначена для хранения промывной воды в водопроводных очистных станциях для вод с содержанием взвешенных веществ до 2000 мг/л производительностью 8000 м3/сут
Оглавление:Титульный лист
Состав проекта
Содержание альбома
Архитектурно-строительная часть
   Пояснительная записка
   Заглавный лист, выборка материалов на проект
   Фасады. Архитектурные детали
   Планы, разрезы, узел 1
   Узлы 2 - 8
   Детали утепления
   Стальной бак V = 200 куб. м
   Лестницы Л-1, Л-2
   Лестница Л-3. Люк
   Оголовок ствола, перемычка БП-1, закладные детали ЗД-1, ЗД-2
   Опалубка фундамента Ф-1 и плиты П-1
   Армирование фундамента Ф-1 и плиты П-1
Технологическая часть
   Технологическое оборудование башни. Разрез 1-1. План по А-А и по Б-Б. Монтажная схема. Спецификация трубопроводов
Автоматика
   Элементная схема обогрева электродов. Установка датчиков ЭРСУ-2 и подогревных сопротивлений
Электротехническая часть
   Пояснительная записка
   Электрическое освещение, индукционный подогрев стояка и молниезащита
   Электроподогрев напорно-разводящего стояка. Схема управления индукционными нагревателями
   Электроподогрев напорно-разводящего стояка. Индукционный нагреватель и детали
   Электроподогрев напорно-разводящего стояка. Щиток управления
Разработан: ЦНИИЭП инженерного оборудования
Утверждён:20.12.1967 ЦНИИЭП инженерного оборудования (TsNIIEP of Building Service Equipment 121)
Расположен в:Техническая документация Строительство Справочные документы Типовые строительные конструкции, изделия и узлы Общероссийский строительный каталог Промышленные предприятия, здания и сооружения Здания и сооружения санитарно-технические Водоснабжение Сооружения и установки по обеззараживанию воды Сооружения обработки и повторного использования воды для промывки фильтров
Типовой проект 901-3-24Типовой проект 901-3-24Типовой проект 901-3-24Типовой проект 901-3-24Типовой проект 901-3-24Типовой проект 901-3-24Типовой проект 901-3-24Типовой проект 901-3-24Типовой проект 901-3-24Типовой проект 901-3-24Типовой проект 901-3-24Типовой проект 901-3-24Типовой проект 901-3-24Типовой проект 901-3-24Типовой проект 901-3-24Типовой проект 901-3-24Типовой проект 901-3-24Типовой проект 901-3-24Типовой проект 901-3-24Типовой проект 901-3-24Типовой проект 901-3-24Типовой проект 901-3-24Типовой проект 901-3-24Типовой проект 901-3-24Типовой проект 901-3-24

© 2013 Ёшкин Кот :-) Карта сайта