| Обозначение: |  Альбом СК 3301-86 | 
| Обозначение англ: |  СК 3301-86 | 
| Статус: | не определен законодательством | 
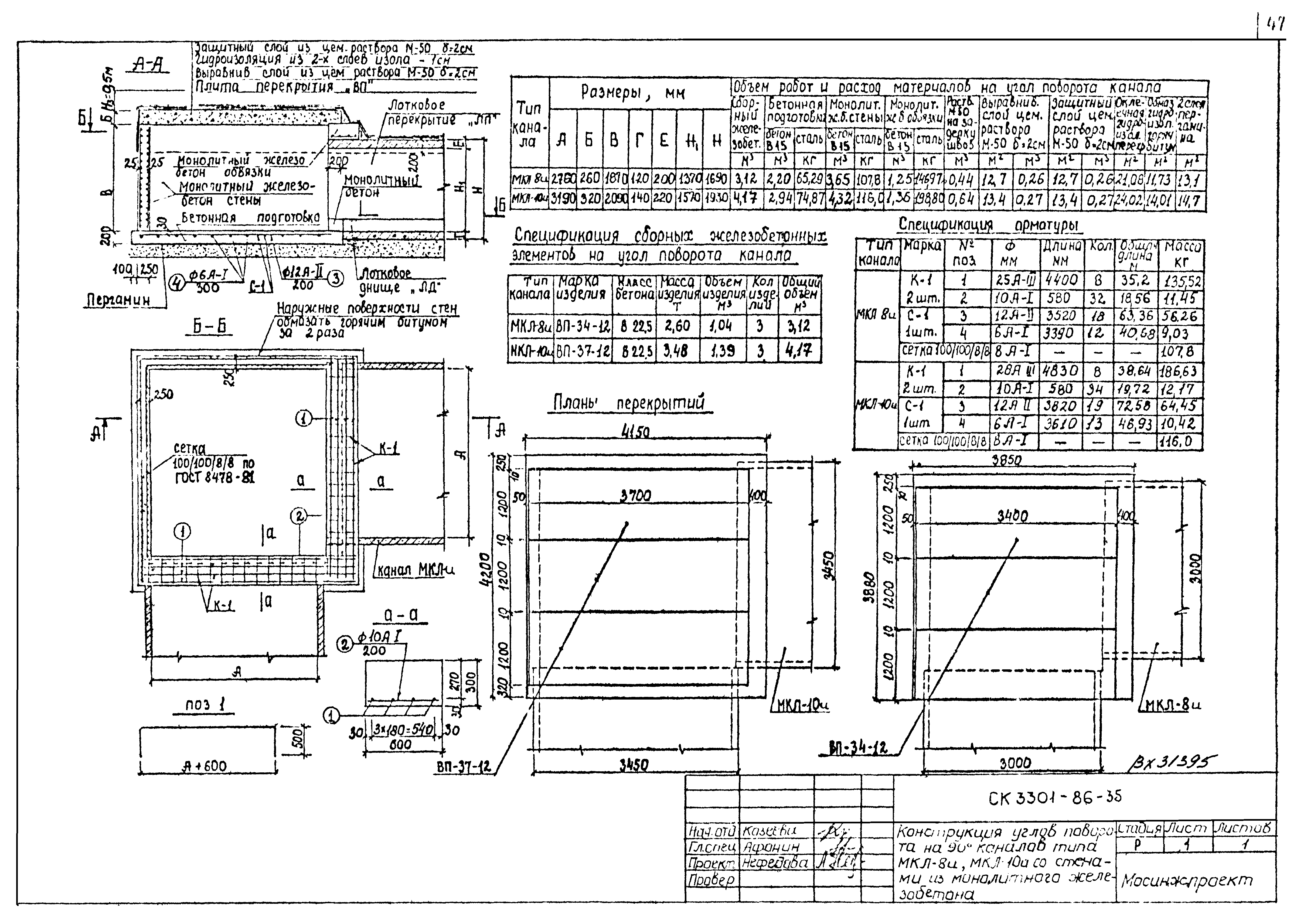
| Название рус.: | Сборные железобетонные каналы из лотковых элементов для теплопроводов Ду 50 - 1400 мм. Материалы для проектирования | 
| Дата добавления в базу: | 01.09.2013 | 
| Дата актуализации: | 05.05.2017 | 
| Дата введения: | 29.08.1986 | 
| Область применения: | В настоящем альбоме представлены материалы для проектирования непроходных и проходных каналов из лотковых элементов для теплопроводов Ду 50-1400 мм | 
| Разработан: | Мосинжпроект 
 | 
| Утверждён: | 29.08.1986 Мосинжпроект (Mosinzhproject 32) 
 | 
| Расположен в: | 
 | 
| Заменяет собой: |  |