Информационная система
«Ёшкин Кот»

Скачать базу одним архивом
Скачать обновления
История создания базы
Карта сайта

Скачать Серия 1.020-1/83 Выпуск 1-1. Фундаменты сборные железобетонные для колонн сечением 300х300 и 400х400 мм. Рабочие чертежи

Дата актуализации: 10.08.2017

Серия 1.020-1/83

Выпуск 1-1. Фундаменты сборные железобетонные для колонн сечением 300х300 и 400х400 мм. Рабочие чертежи

Обозначение: Серия 1.020-1/83
Обозначение англ: Series 1.020-1/83
Статус:заменен
Название рус.:Выпуск 1-1. Фундаменты сборные железобетонные для колонн сечением 300х300 и 400х400 мм. Рабочие чертежи
Дата добавления в базу:01.09.2013
Дата актуализации:05.05.2017
Дата введения:01.12.1992
Оглавление:1.020-1/83.1-1 0.0.0 Содержание
1.020-1/83.1-1 0.0.0 ТО Техническое описание
1.020-1/83.1-1 1.0.0 Фундамент 1Ф 12.8-1; 1Ф 12.8-2; 1Ф 12.8-3
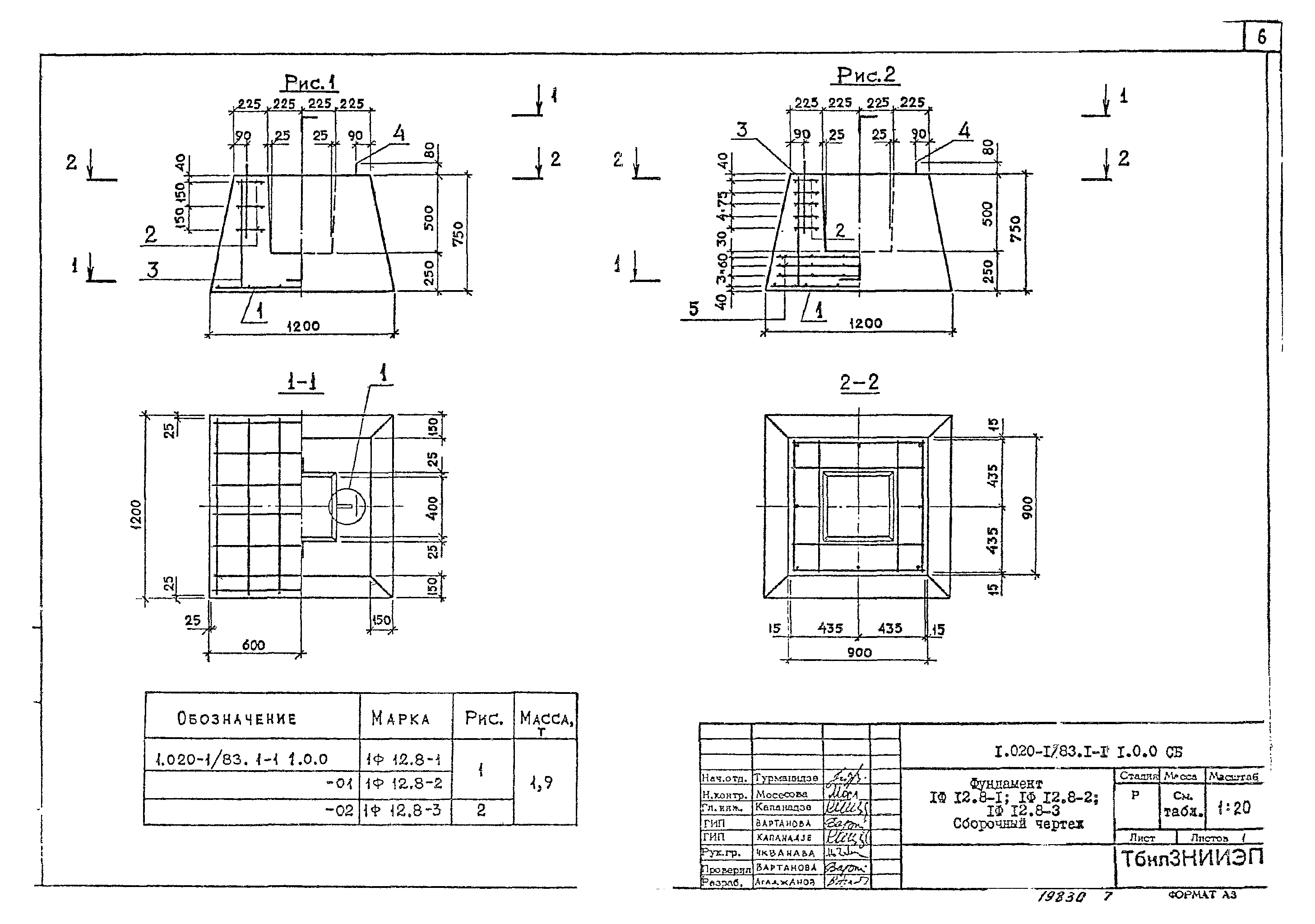
1.020-1/83.1-1 1.0.0 СБ Фундамент 1Ф 12.8-1; 1Ф 12.8-2; 1Ф 12.8-3. Сборочный чертеж
1.020-1/83.1-1 2.0.0 Фундамент 1Ф 15.8-1; 1Ф 15.8-2; 1Ф 15.8-3; 1Ф 15.9-1; 1Ф 18.8-1
1.020-1/83.1-1 2.0.0 СБ Фундамент 1Ф 15.8-1; 1Ф 15.8-2; 1Ф 15.8-3; 1Ф 15.9-1; 1Ф 18.8-1. Сборочный чертеж
1.020-1/83.1-1 3.0.0 Фундамент 1Ф 18.8-2; 1Ф 18.9-1; 1Ф 18.9-2; 1Ф 18.9-3; 1Ф 21.8-1; 1Ф 21.8-2; 1Ф 21.9-1
1.020-1/83.1-1 3.0.0 СБ Фундамент 1Ф 18.8-2; 1Ф 18.9-1; 1Ф 18.9-2; 1Ф 18.9-3; 1Ф 21.8-1; 1Ф 21.8-2; 1Ф 21.9-1. Сборочный чертеж
1.020-1/83.1-1 4.0.0 Фундамент 2Ф 12.9-1;2Ф 12.9-2
1.020-1/83.1-1 4.0.0 СБ Фундамент 2Ф 12.9-1;2Ф 12.9-2. Сборочный чертеж
1.020-1/83.1-1 5.0.0 Фундамент 2Ф 15.9-1; 2Ф 15.9-2; 2Ф 18.9-1; 2Ф 18.9-2; 2Ф 21.9-1
1.020-1/83.1-1 5.0.0 СБ Фундамент 2Ф 15.9-1; 2Ф 15.9-2; 2Ф 18.9-1; 2Ф 18.9-2; 2Ф 21.9-1. Сборочный чертеж
1.020-1/83.1-1 6.0.0 Фундамент 2Ф 18.9-3; 20 18.11-1; 2Ф 21.9-2; 2Ф 21,9-3; 2Ф 21.11-1
1.020-1/83.1-1 6.0.0 СБ Фундамент 2Ф 18.9-3; 20 18.11-1; 2Ф 21.9-2; 2Ф 21,9-3; 2Ф 21.11-1. Сборочный чертеж
1.020-1/83.1-1 0.1.0 Сетка арматурная C1-C6
1.020-1/83.1-1 0.1.0 СБ Сетка арматурная C1-C6. Сборочный чертеж
1.020-1/83.1-1 0.2.0 Сетка арматурная С7-С11; C14
1.020-1/83.1-1 0.2.0 СБ Сетка арматурная С7-С11; C14. Сборочный чертеж
1.020-1/83.1-1 0.3.0 Сетка арматурная C12, C13, C15
1.020-1/83.1-1 0.0.1 Петля П1
1.020-1/83.1-1 0.0.0 ВС Ведомость расхода стала на изделие
Разработан: ЦНИИпромзданий
ТбилЗНИИЭП
ЦНИИЭП ТБЗ и ТК
Утверждён:13.07.1984 Госстрой СССР (Государственный комитет Совета Министров СССР по делам строительства) (USSR Gosstroy 112)
Расположен в:Техническая документация Строительство Справочные документы Типовые строительные конструкции, изделия и узлы Общероссийский строительный каталог Строительные конструкции, изделия и узлы зданий и сооружений для всех видов строительства Конструкции, изделия и узлы зданий Несущие конструкции двухэтажных и многоэтажных зданий Каркасные здания
Заменяет собой:
Чем заменён:
Серия 1.020-1/83Серия 1.020-1/83Серия 1.020-1/83Серия 1.020-1/83Серия 1.020-1/83Серия 1.020-1/83Серия 1.020-1/83Серия 1.020-1/83Серия 1.020-1/83Серия 1.020-1/83Серия 1.020-1/83Серия 1.020-1/83Серия 1.020-1/83Серия 1.020-1/83Серия 1.020-1/83Серия 1.020-1/83Серия 1.020-1/83Серия 1.020-1/83Серия 1.020-1/83Серия 1.020-1/83Серия 1.020-1/83Серия 1.020-1/83Серия 1.020-1/83

© 2013 Ёшкин Кот :-) Карта сайта