| ||||||||||||||||||||||||||
Скачать Типовые проектные решения 903-1-0255.1.87 Альбом 1. Решения тепломеханические. Автоматизация. Спецификации оборудования. Ведомости потребности в материалахДата актуализации: 10.08.2017
|
| Обозначение: | Типовые проектные решения 903-1-0255.1.87 |
| Обозначение англ: | 903-1-0255.1.87 |
| Статус: | cправочные материалы, мп, тпр |
| Название рус.: | Альбом 1. Решения тепломеханические. Автоматизация. Спецификации оборудования. Ведомости потребности в материалах |
| Дата добавления в базу: | 01.09.2013 |
| Дата актуализации: | 05.05.2017 |
| Дата введения: | 22.01.1988 |
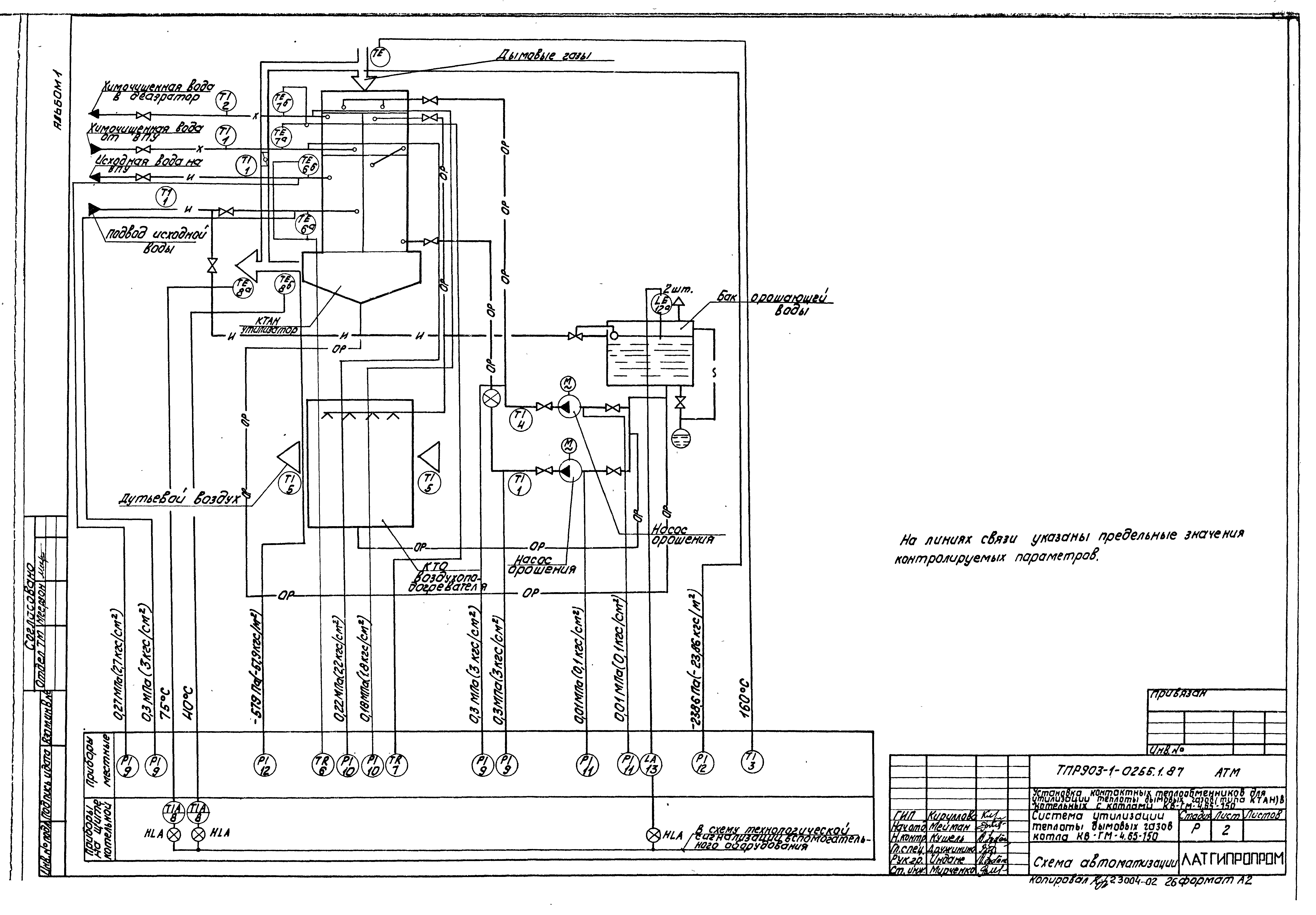
| Оглавление: | Тепломеханическая часть. Основной комплект рабочих чертежей марки ТМ Общие данные Тепловая схема подключения утилизационного оборудования Компоновка. План на отм. 0.000. Разрезы А-А, Б-Б, Ж-Ж Компоновка. Разрезы В-В, Г-Г, Д-Д. Вид Е Газовоздухопроводы котла КВ-ГМ-4.65-150. План на отм. 0.000. Разрезы А-А, Б-Б. Узел 1 Газовоздухопроводы котла КВ-ГМ-4.65-150. Разрезы В-В, Г-Г, Д-Д. Вид Е Газовоздухопроводы котла КВ-ГМ-4.65-150. Спецификация Трубопроводы. План. Разрезы А-А, Б-Б Трубопроводы. Разрез В-В. Спецификация Прилагаемые документы Задание строительному отделу Воздухоподогреватель КТМО-5ПДВ Клапан поплавковый Ду40 Изоляция теплоутилизаторов, газовоздухопроводов Спецификация оборудования Ведомость потребности в материалах Автоматизация. Основной комплект рабочих чертежей марки АТМ Общие данные Схема автоматизации Схема соединений внешних проводок Прилагаемые документы Спецификация оборудования |
| Разработан: | Латгипропром |
| Утверждён: | 22.01.1988 Госстрой Латвийской ССР (11) |
| Расположен в: |





























