Информационная система
«Ёшкин Кот»

Скачать базу одним архивом
Скачать обновления
История создания базы
Карта сайта

Скачать Типовой проект 902-1-132.88 Альбом II. Часть 1, 2. Нестандартизированное оборудование

Дата актуализации: 10.08.2017

Типовой проект 902-1-132.88

Альбом II. Часть 1, 2. Нестандартизированное оборудование

Обозначение: Типовой проект 902-1-132.88
Обозначение англ: 902-1-132.88
Статус:не определен законодательством
Название рус.:Альбом II. Часть 1, 2. Нестандартизированное оборудование
Дата добавления в базу:01.09.2013
Дата актуализации:05.05.2017
Дата введения:25.12.1987
Оглавление:Содержание альбома
Часть 1
ТП 902-1-132.88 М688-00.000 Канализационная насосная станция в комплектно-блочном исполнении с погружными электронасосами производительностью 5 - 25 куб. м/ч
ТП 902-1-132.88 М688-00.000 М4 Канализационная насосная станция в комплектно-блочном исполнении с погружными электронасосами производительностью 5 - 25 куб. м/ч. Монтажный чертеж
ТП 902-1-132.88 М688-00.000 ВС Канализационная насосная станция в комплектно-блочном исполнении с погружными электронасосами производительностью 5 - 25 куб. м/ч. Ведомость спецификаций
ТП 902-1-132.88 М688-00.000 ВП Канализационная насосная станция в комплектно-блочном исполнении с погружными электронасосами производительностью 5 - 25 куб. м/ч. Ведомость покупных изделий
ТП 902-1-132.88 М688-01.000 Решетка-заслонка
ТП 902-1-132.88 М688-01.100 Решетка
ТП 902-1-132.88 М688-02.100 Запор
ТП 902-1-132.88 М688-01.000 СБ Решетка-заслонка. Сборочный чертеж
ТП 902-1-132.88 М688-01.101 Упор
ТП 902-1-132.88 М688-01.102 Уголок
ТП 902-1-132.88 М688-01.100 СБ Решетка. Сборочный чертеж
ТП 902-1-132.88 М688-01.103 Пластина
ТП 902-1-132.88 М688-01.002 Направляющая
ТП 902-1-132.88 М688-01.001 Пластина
ТП 902-1-132.88 М688-01.003 Заслонка
ТП 902-1-132.88 М688-01.005 Ось
ТП 902-1-132.88 М688-01.004 Прокладка
ТП 902-1-132.88 М688-02.300 СБ Петля. Сборочный чертеж
ТП 902-1-132.88 М688-02.001 Ось
ТП 902-1-132.88 М688-02.000 Контейнер решетчатый
ТП 902-1-132.88 М688-02.300 Петля
ТП 902-1-132.88 М688-02.200 Рамка
ТП 902-1-132.88 М688-02.000 СБ Контейнер решетчатый. Сборочный чертеж
ТП 902-1-132.88 М688-02.101 Крючок
ТП 902-1-132.88 М688-02.102 Втулка
ТП 902-1-132.88 М688-02.100 СБ Запор. Сборочный чертеж
ТП 902-1-132.88 М688-02.401 Лист
ТП 902-1-132.88 М688-02.400 Дно
ТП 902-1-132.88 М688-02.400 СБ Дно. Сборочный чертеж
ТП 902-1-132.88 М688-02.301 Скоба
ТП 902-1-132.88 М688-02.200 СБ Рамка. Сборочный чертеж
ТП 902-1-132.88 М688-03.000 Запор
ТП 902-1-132.88 М688-05.100 Кронштейн
ТП 902-1-132.88 М688-05.002 Петля
ТП 902-1-132.88 М688-03.003 Рукоятка
ТП 902-1-132.88 М688-03.000 СБ Запор. Сборочный чертеж
ТП 902-1-132.88 М688-04.000 Контейнер герметический
ТП 902-1-132.88 М688-04.100 Корпус
ТП 902-1-132.88 М688-04.200 Крышка
ТП 902-1-132.88 М688-02.200 СБ Крышка. Сборочный чертеж
ТП 902-1-132.88 М688-04.000 СБ Контейнер герметический. Сборочный чертеж
ТП 902-1-132.88 М688-04.100 СБ Корпус. Сборочный чертеж
ТП 902-1-132.88 М688-04.101 Цилиндр
ТП 902-1-132.88 М688-04.102 Скоба
ТП 902-1-132.88 М688-04.201 Ручка
ТП 902-1-132.88 М688-04.202 Обечайка
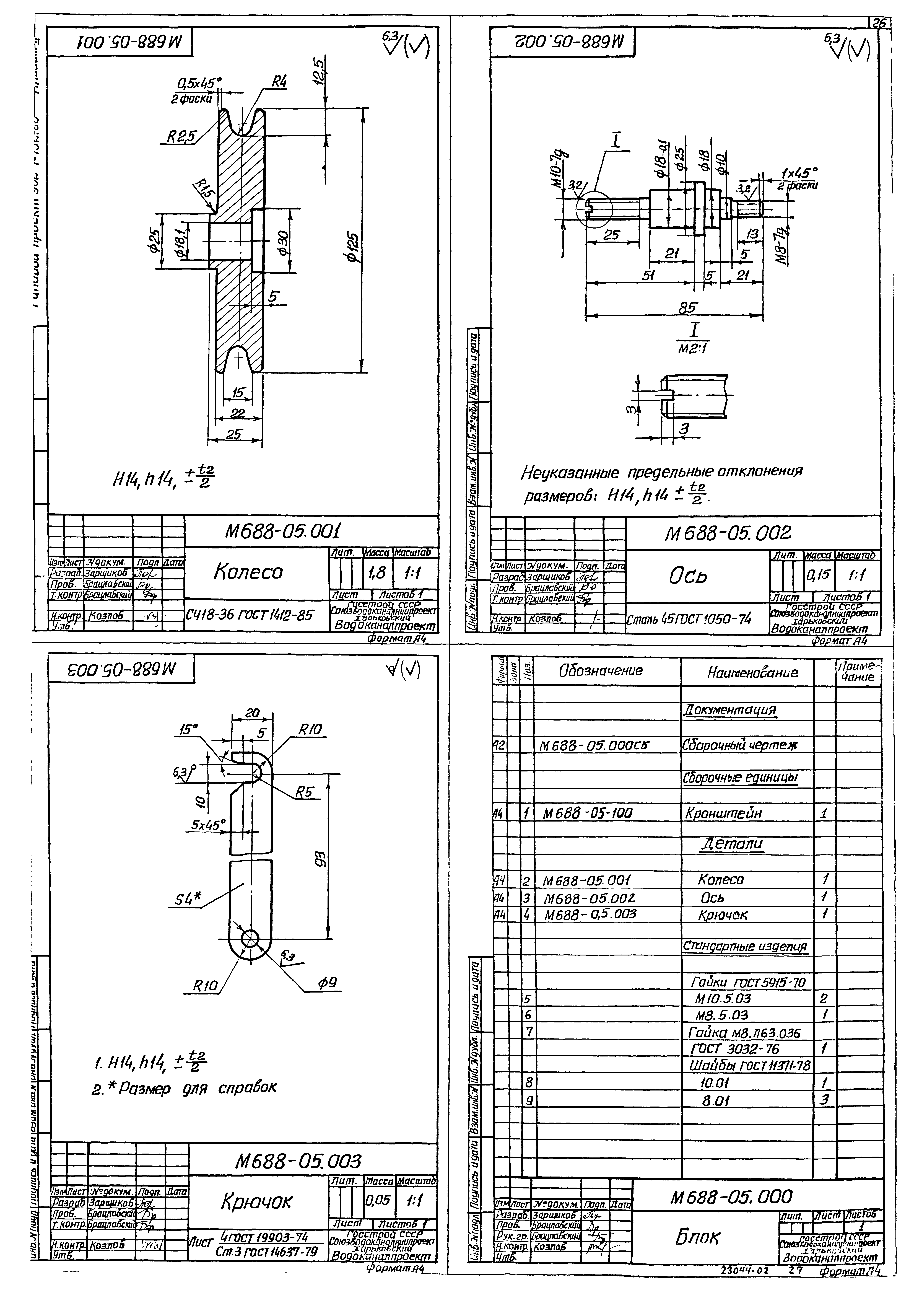
ТП 902-1-132.88 М688-05.001 Колесо
ТП 902-1-132.88 М688-05.002 Ось
ТП 902-1-132.88 М688-05.003 Крючок
ТП 902-1-132.88 М688-05.000 Блок
ТП 902-1-132.88 М688-05.000 СБ Блок. Сборочный чертеж
ТП 902-1-132.88 М688-05.102 Уголок
ТП 902-1-132.88 М688-05.101 Скоба
ТП 902-1-132.88 М688-05.100 СБ Кронштейн. Сборочный чертеж
ТП 902-1-132.88 М688-07.000 Шкаф металлический
ТП 902-1-132.88 М688-06.000 Короб воздухоотводящий
ТП 902-1-132.88 М688-06.100 Короб
ТП 902-1-132.88 М688-06.101 Лоток
ТП 902-1-132.88 М688-06.100 СБ Короб. Сборочный чертеж
ТП 902-1-132.88 М688-06.000 СБ Короб воздухоотводящий. Сборочный чертеж
ТП 902-1-132.88 М688-07.000 СБ Шкаф металлический. Сборочный чертеж
ТП 902-1-132.88 М688-07.001 Боковина
ТП 902-1-132.88 М688-07.002 Уголок
ТП 902-1-132.88 М688-07.003 Уголок
ТП 902-1-132.88 М688-07.004 Уголок
ТП 902-1-132.88 М688-07.005 Уголок
ТП 902-1-132.88 М688-07.006 Створка
ТП 902-1-132.88 М688-07.007 Прокладка
ТП 902-1-132.88 М688-06.102 Крышка
ТП 902-1-132.88 М688-09.000 Крышка
ТП 902-1-132.88 М688-08.000 Заземление
ТП 902-1-132.88 М688-09.100 Рама
ТП 902-1-132.88 М688-09.200 Люк
ТП 902-1-132.88 М688-08.000 СБ Заземление. Сборочный чертеж
ТП 902-1-132.88 М688-09.000 СБ Крышка. Сборочный чертеж
ТП 902-1-132.88 М688-09.100 СБ Рама. Сборочный чертеж
ТП 902-1-132.88 М688-09.200 СБ Люк. Сборочный чертеж
ТП 902-1-132.88 М688-09.108 Петля
ТП 902-1-132.88 М688-09.109 Кольцо
ТП 902-1-132.88 М688-09.001 Прокладка
ТП 902-1-132.88 М688-09.101 Крышка
ТП 902-1-132.88 М688-09.106 Крышка
ТП 902-1-132.88 М688-09.113 Угольник стяжной
ТП 902-1-132.88 М688-09.107 Переходник
ТП 902-1-132.88 М688-09.202 Ручка
ТП 902-1-132.88 М688-09.112 Угольник
ТП 902-1-132.88 М688-09.111 Стяжка
ТП 902-1-132.88 М688-10.000 Стрела
ТП 902-1-132.88 М688-09.203 Крюк
ТП 902-1-132.88 М688-10.000 СБ Стрела. Сборочный чертеж
ТП 902-1-132.88 М688-10.002 СБ Втулка
ТП 902-1-132.88 М688-10.003 Вкладыш
ТП 902-1-132.88 М688-10.001 Пята
ТП 902-1-132.88 М688-10.004 Цапфа
ТП 902-1-132.88 М688-10.005 Кронштейн
ТП 902-1-132.88 М688-10.006 Ребро
ТП 902-1-132.88 М688-10.007 Кожух
ТП 902-1-132.88 М688-10.008 Уголок
ТП 902-1-132.88 М688-10.009 Уголок
ТП 902-1-132.88 М688-10.011 Уголок
ТП 902-1-132.88 М688-10.021 Труба
ТП 902-1-132.88 М688-10.017 Скоба
ТП 902-1-132.88 М688-10.023 Втулка
ТП 902-1-132.88 М688-10.022 Пята
ТП 902-1-132.88 М688-11.000 Труба приточная
ТП 902-1-132.88 М688-12.301 Труба
ТП 902-1-132.88 М688-12.302 Патрубок
ТП 902-1-132.88 М688-11.001 Конус
ТП 902-1-132.88 М688-11.002 Патрубок
ТП 902-1-132.88 М688-11.000 СБ Труба приточная. Сборочный чертеж
ТП 902-1-132.88 М688-11.003 Скоба
ТП 902-1-132.88 М688-11.004 Заглушка
ТП 902-1-132.88 М688-11.006 Труба
ТП 902-1-132.88 М688-14.024 Скоба
Часть 2
ТП 902-1-132.88 М688-12.000 Труба вентиляционная
ТП 902-1-132.88 М688-12.200 Ящик
ТП 902-1-132.88 М688-12.100 Стойка
ТП 902-1-132.88 М688-12.000 СБ Труба вентиляционная. Сборочный чертеж
ТП 902-1-132.88 М688-12.100 СБ Стойка. Сборочный чертеж
ТП 902-1-132.88 М688-12.111 Ребро
ТП 902-1-132.88 М688-12.102 Ребро
ТП 902-1-132.88 М688-12.104 Фланец
ТП 902-1-132.88 М688-12.109 Ребро
ТП 902-1-132.88 М688-12.217 Петля
ТП 902-1-132.88 М688-12.103 Конус
ТП 902-1-132.88 М688-12.108 Кронштейн
ТП 902-1-132.88 М688-12.105 Опора
ТП 902-1-132.88 М688-12.107 Основание
ТП 902-1-132.88 М688-12.201 Стержень
ТП 902-1-132.88 М688-12.202 Шайба
ТП 902-1-132.88 М688-12.300 Опора
ТП 902-1-132.88 М688-12.210 Корпус
ТП 902-1-132.88 М688-12.220 Дверь
ТП 902-1-132.88 М688-13.000 СБ Трубопровод. Сборочный чертеж
ТП 902-1-132.88 М688-12.220 СБ Дверь. Сборочный чертеж
ТП 902-1-132.88 М688-12.200 СБ Ящик. Сборочный чертеж
ТП 902-1-132.88 М688-12.216 Петля
ТП 902-1-132.88 М688-12.213 Дно
ТП 902-1-132.88 М688-12.210 СБ Корпус. Сборочный чертеж
ТП 902-1-132.88 М688-12.214 Скоба
ТП 902-1-132.88 М688-12.215 Крюк
ТП 902-1-132.88 М688-12.222 Скоба
ТП 902-1-132.88 М688-12.223 Скоба
ТП 902-1-132.88 М688-07.219 Уголок
ТП 902-1-132.88 М688-13.000 Трубопровод
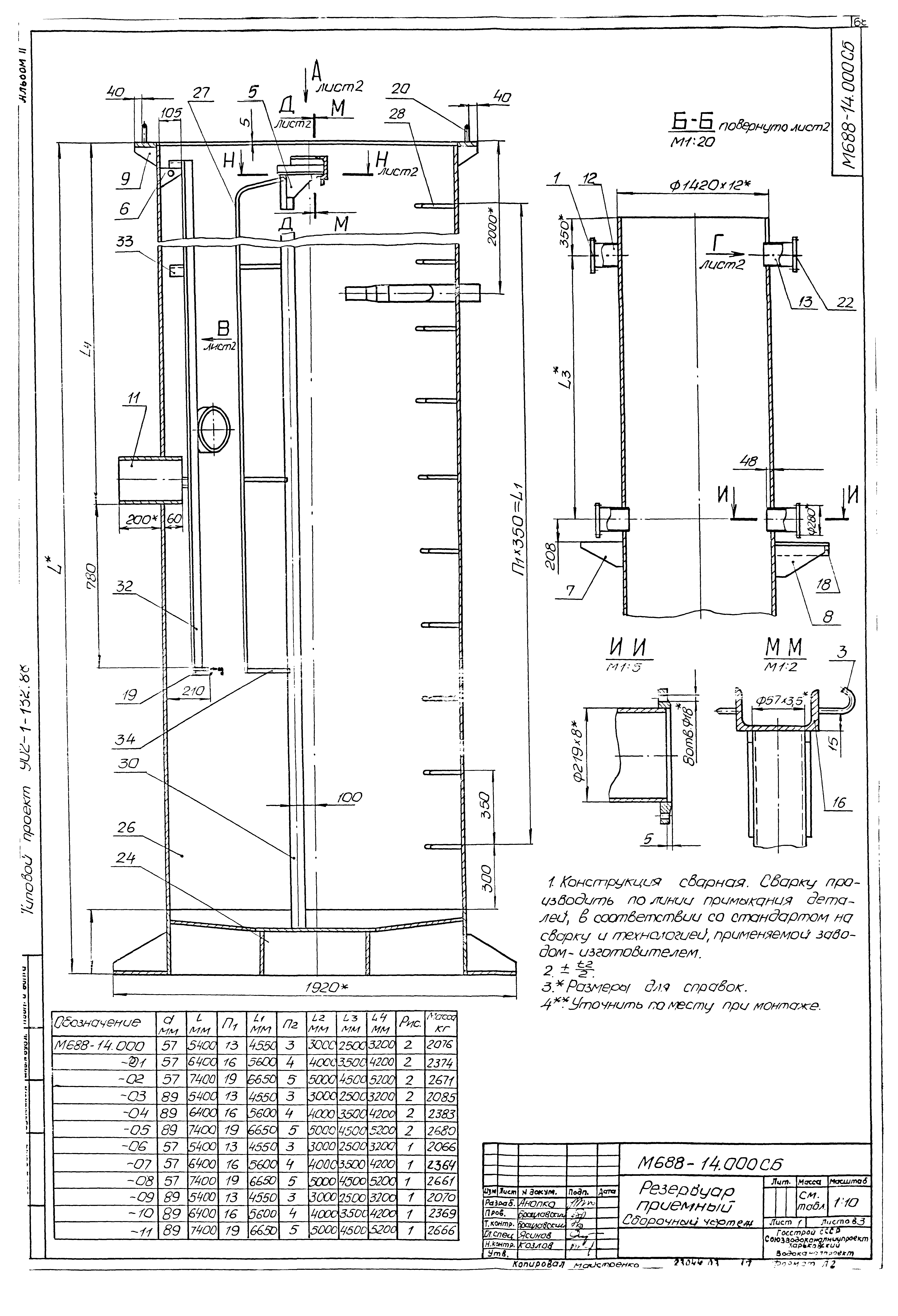
ТП 902-1-132.88 М688-14.000 Резервуар приемный
ТП 902-1-132.88 М688-14.000 СБ Резервуар приемный. Сборочный чертеж
ТП 902-1-132.88 М688-14.003 Кронштейн
ТП 902-1-132.88 М688-14.021 Скоба
ТП 902-1-132.88 М688-14.001 Фланец
ТП 902-1-132.88 М688-14.002 Крюк
ТП 902-1-132.88 М688-14.004 Ребро
ТП 902-1-132.88 М688-14.005 Ребро
ТП 902-1-132.88 М688-14.006 Ребро
ТП 902-1-132.88 М688-14.007 Ребро
ТП 902-1-132.88 М688-14.008 Ребро
ТП 902-1-132.88 М688-14.100 Дно
ТП 902-1-132.88 М688-14.200 Патрубок
ТП 902-1-132.88 М688-14.100 СБ Дно. Сборочный чертеж
ТП 902-1-132.88 М688-14.101 Фланец
ТП 902-1-132.88 М688-14.102 Ребро
ТП 902-1-132.88 М688-14.103 Лист
ТП 902-1-132.88 М688-14.108 Шпилька
ТП 902-1-132.88 М688-14.025 Кронштейн
ТП 902-1-132.88 М688-14.023 Направляющая
ТП 902-1-132.88 М688-14.200 СБ Патрубок. Сборочный чертеж
ТП 902-1-132.88 М688-14.032 Конус
ТП 902-1-132.88 М688-14.009 Скоба
ТП 902-1-132.88 М688-14.022 Корпус
ТП 902-1-132.88 М688-15.000 Рукав
ТП 902-1-132.88 М688-12.300 СБ Опора. Сборочный чертеж
ТП 902-1-132.88 М688-15.000 СБ Рукав. Сборочный чертеж
ТП 902-1-132.88 М688-16.000-Э3 Электрооборудование. Схема электрическая принципиальная
ТП 902-1-132.88 М688-16.000-Э4 Электрооборудование. Схема электрическая соединений
ТП 902-1-132.88 М688-16.000.СБ Электрооборудование. Сборочный чертеж
Конструкторская документация
ТП 902-1-132.88 М688-Д Указания по антикоррозионной защите
ТП 902-1-132.88 М688-16.000 Электрооборудование
ТП 902-1-132.88 М688-16.001 Колено
Разработан: Харьковский Водоканалпроект
Утверждён:25.12.1987 Госстрой СССР (Государственный комитет Совета Министров СССР по делам строительства) (USSR Gosstroy 102)
Издан: ЦИТП Госстроя СССР (CITP, Gosstroy (USSR) 1988 г. )
Расположен в:Техническая документация Строительство Справочные документы Типовые строительные конструкции, изделия и узлы Общероссийский строительный каталог Промышленные предприятия, здания и сооружения Здания и сооружения санитарно-технические Канализация Станции насосные Станции насосные для перекачки бытовых сточных вод
Типовой проект 902-1-132.88Типовой проект 902-1-132.88Типовой проект 902-1-132.88Типовой проект 902-1-132.88Типовой проект 902-1-132.88Типовой проект 902-1-132.88Типовой проект 902-1-132.88Типовой проект 902-1-132.88Типовой проект 902-1-132.88Типовой проект 902-1-132.88Типовой проект 902-1-132.88Типовой проект 902-1-132.88Типовой проект 902-1-132.88Типовой проект 902-1-132.88Типовой проект 902-1-132.88Типовой проект 902-1-132.88Типовой проект 902-1-132.88Типовой проект 902-1-132.88Типовой проект 902-1-132.88Типовой проект 902-1-132.88Типовой проект 902-1-132.88Типовой проект 902-1-132.88Типовой проект 902-1-132.88Типовой проект 902-1-132.88Типовой проект 902-1-132.88Типовой проект 902-1-132.88Типовой проект 902-1-132.88Типовой проект 902-1-132.88Типовой проект 902-1-132.88Типовой проект 902-1-132.88Типовой проект 902-1-132.88Типовой проект 902-1-132.88Типовой проект 902-1-132.88Типовой проект 902-1-132.88Типовой проект 902-1-132.88Типовой проект 902-1-132.88Типовой проект 902-1-132.88Типовой проект 902-1-132.88Типовой проект 902-1-132.88Типовой проект 902-1-132.88Типовой проект 902-1-132.88Типовой проект 902-1-132.88Типовой проект 902-1-132.88Типовой проект 902-1-132.88Типовой проект 902-1-132.88Типовой проект 902-1-132.88Типовой проект 902-1-132.88Типовой проект 902-1-132.88Типовой проект 902-1-132.88Типовой проект 902-1-132.88Типовой проект 902-1-132.88Типовой проект 902-1-132.88Типовой проект 902-1-132.88Типовой проект 902-1-132.88Типовой проект 902-1-132.88Типовой проект 902-1-132.88Типовой проект 902-1-132.88Типовой проект 902-1-132.88Типовой проект 902-1-132.88Типовой проект 902-1-132.88Типовой проект 902-1-132.88Типовой проект 902-1-132.88Типовой проект 902-1-132.88Типовой проект 902-1-132.88Типовой проект 902-1-132.88Типовой проект 902-1-132.88Типовой проект 902-1-132.88Типовой проект 902-1-132.88Типовой проект 902-1-132.88Типовой проект 902-1-132.88Типовой проект 902-1-132.88Типовой проект 902-1-132.88Типовой проект 902-1-132.88Типовой проект 902-1-132.88Типовой проект 902-1-132.88Типовой проект 902-1-132.88Типовой проект 902-1-132.88Типовой проект 902-1-132.88Типовой проект 902-1-132.88Типовой проект 902-1-132.88Типовой проект 902-1-132.88Типовой проект 902-1-132.88Типовой проект 902-1-132.88Типовой проект 902-1-132.88Типовой проект 902-1-132.88Типовой проект 902-1-132.88

© 2013 Ёшкин Кот :-) Карта сайта