| ||||||||||||||||||||||||||||||||
Скачать Пособие к МГСН 4.07-05 Дошкольные образовательные учрежденияДата актуализации: 10.08.2017
|
| Обозначение: | Пособие к МГСН 4.07-05 |
| Обозначение англ: | MGSN Handbook 4.07-05 |
| Статус: | действует |
| Название рус.: | Дошкольные образовательные учреждения |
| Дата добавления в базу: | 01.09.2013 |
| Дата актуализации: | 05.05.2017 |
| Дата введения: | 08.06.2007 |
| Область применения: | Пособие распространяется на проектирование, в первую очередь, массовых типов государственных образовательных учреждений, предназначенных для практически здоровых детей и детей с недостатками развития, подлежащих коррекции и компенсации в развитии и в процессе подготовки к школе. Требования пособия не распространяются на проектирование детских домов для детей с нарушением психического и физического развития, а также дошкольных отделений в школах-интернатах для детей с нарушением развития. |
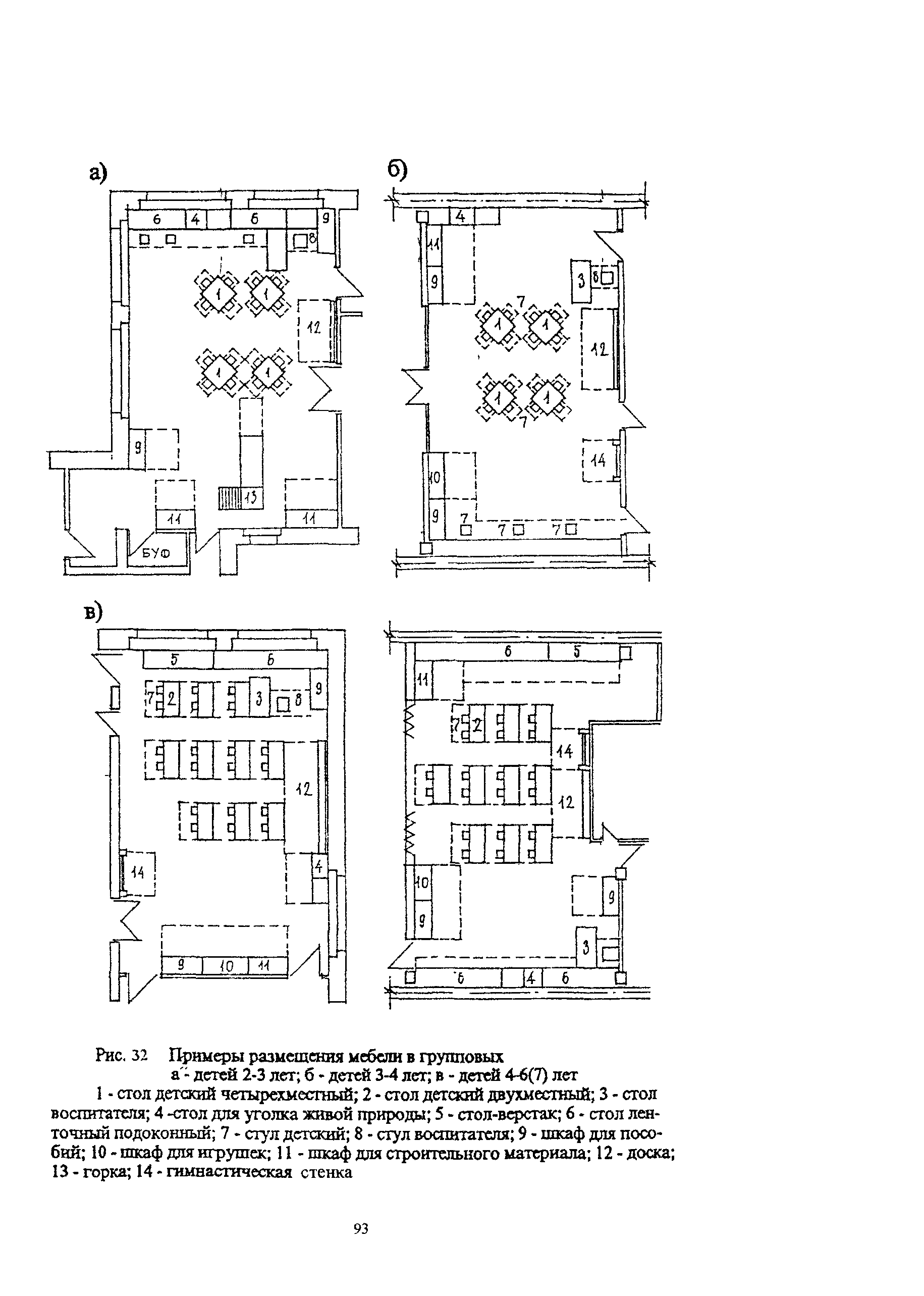
| Оглавление: | Введение 1 Основные положения 2 Организация сети дошкольных образовательных учреждений, размещаемых в жилой застройке 3 Организация земельного участка 3.1 Общие требования к земельному участку 3.2 Планировка и оборудование элементов участка 3.3 Благоустройство и озеленение 4 Объемно-планировочные решения зданий 4.1 Функциональная структура дошкольных учреждений 4.2 Общие требования к функционально-планировочной организации зданий 5 Помещения основного пребывания детей 5.1 Универсальные групповые ячейки 5.2 Специализированные групповые ячейки 6 Специализированные помещения для работы с детьми 6.1 Залы для музыкальных и гимнастических занятий 6.2 Бассейны 7 Сопутствующие группы помещений 7.1 Медицинские помещения 7.2 Пищеблок 7.3 Постирочная 7.4 Служебно-бытовые помещения 8 Специальные требования к проектированию дошкольных образовательных учреждений компенсирующего вида 9 Условия размещения начальных классов общеобразовательной школы в зданиях детских садов Приложение А Нормативно-методические материалы, использованные в работе над Пособием Приложение Б Примерный ассортимент зеленых насаждений (для детского сада на 10 групп) Приложение В Рекомендуемый состав смеси трав (в граммах на 1 м2) Приложение Г Наполняемость детских групп с компенсирующей направленностью Приложение Д Ширина проходов в производственных помещениях пищеблока Иллюстрации |
| Разработан: | ИОЗ (институт общественных зданий) |
| Утверждён: | 08.06.2007 Москомархитектура (Moskomarkhitektura 116) |
| Издан: | ГУП НИАЦ (2007 г. ) |
| Расположен в: | |
| Нормативные ссылки: |
|






















































































































