| ||||||||||||||||||||||||||||||||
Скачать Шифр М24.39/05 Герметизация конструкций зданий и сооружений материалами АБРИС С и АБРИС Р. Материалы для проектирования и рабочие чертежи узловДата актуализации: 10.08.2017
|
| Обозначение: | Шифр М24.39/05 |
| Обозначение англ: | М24.39/05 |
| Статус: | не определен законодательством |
| Название рус.: | Герметизация конструкций зданий и сооружений материалами "АБРИС С" и "АБРИС Р". Материалы для проектирования и рабочие чертежи узлов |
| Дата добавления в базу: | 01.09.2013 |
| Дата актуализации: | 05.05.2017 |
| Дата введения: | 20.01.2006 |
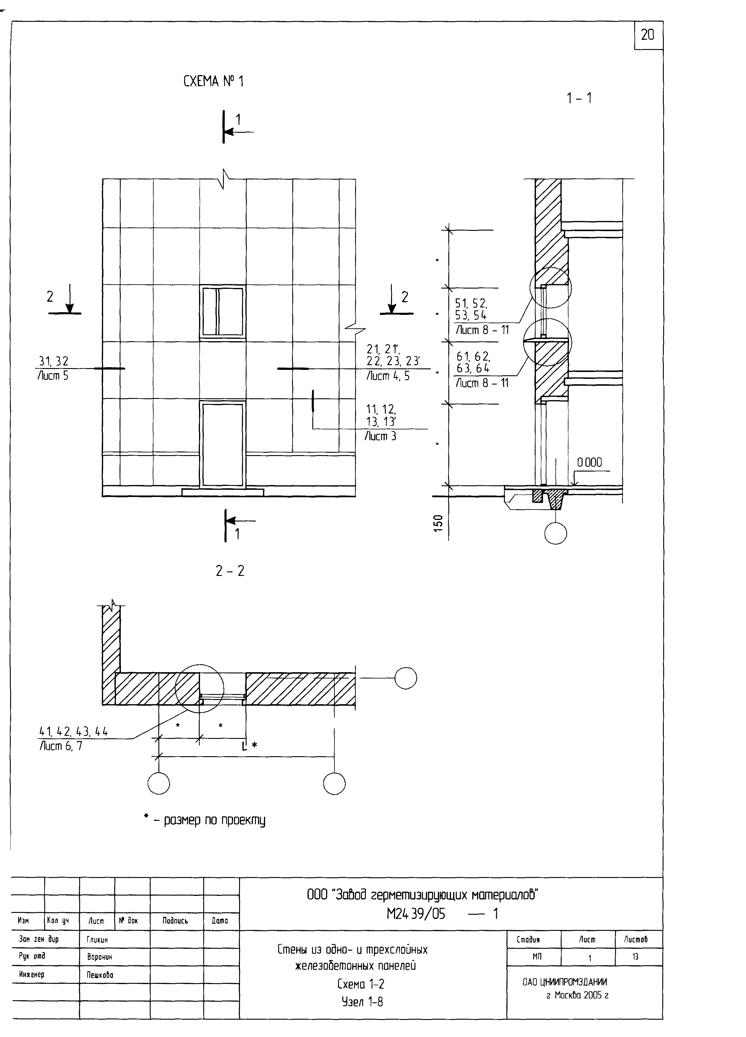
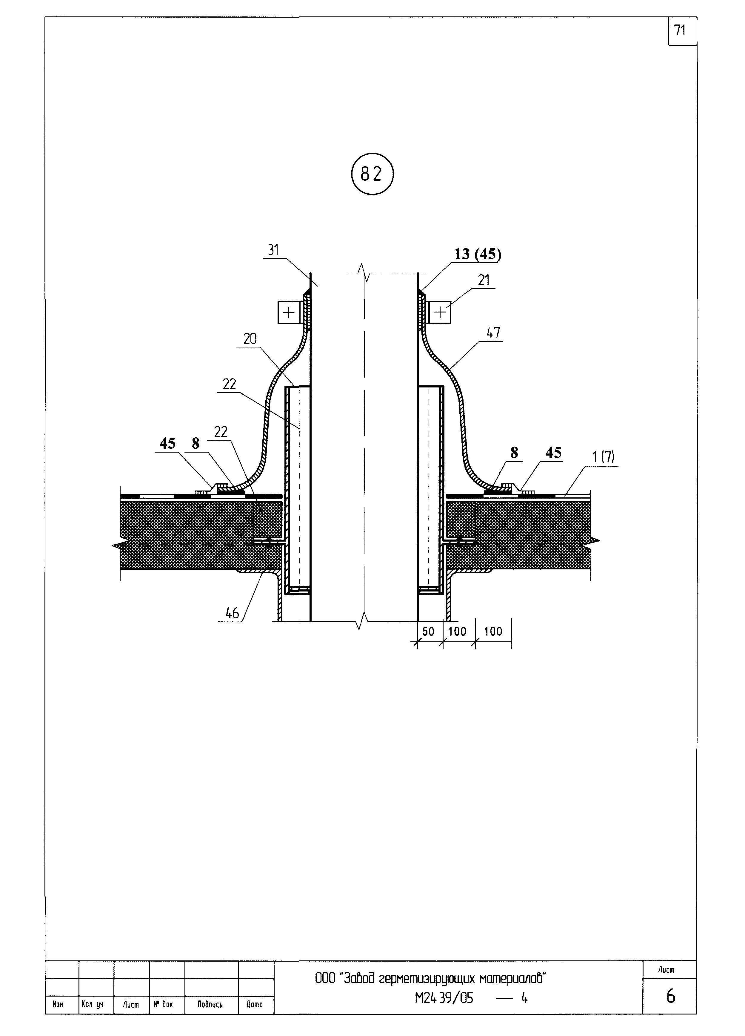
| Область применения: | Альбом содержит материалы для проектирования и рабочие чертежи стыков одно- и трехслойных железобетонных панелей, металлических трехслойных панелей, в т.ч. каркасных и послойной сборки, а также сопряжений стен и кровель к конструкциям зданий, узлов и деталей подземной гидроизоляции и светопрозрачных ограждений с применением неотверждаемых самоклеящихся герметиков "Абрис С" и "Абрис Р" |
| Оглавление: | Пояснительная записка 1. Общие положения 2. Свойства герметиков и области их применения. Герметизация стыков и узлов стен 3. Стены из одно- и трехслойных железобетонных панелей 4. Стены из металлических трехслойных панелей 5. Стены из каркасных панелей 6. Кровли из битуминозных и полимерных материалов 7. Кровли из штучных материалов и лотковых панелей 8. Герметизация деталей и узлов подземной гидроизоляции 9. Выполнение герметизации, контроль качества и приемка работ 10. Техника безопасности при производстве работ Раздел 1. Стены из одно- и трехслойных железобетонных панелей Раздел 2. Стены из металлических трехслойных панелей Раздел 3. Стены из каркасных панелей Раздел 4. Кровли из битуминозных материалов и полимерных пленок Раздел 5. Кровли из штучных материалов и лотковых панелей Раздел 6. Подземная гидроизоляция |
| Разработан: | ОАО ЦНИИпромзданий |
| Утверждён: | 18.01.2006 ОАО ЦНИИпромзданий (TsNIIpromzdaniy OAO ) |
| Принят: | ООО Завод герметизирующих материалов |
| Расположен в: | |
| Нормативные ссылки: |
|
























































































