| ||||||||||||||||||||||||||||
Скачать Серия 1.031.9-3.01 Выпуск 1. Перегородки. Рабочие чертежиДата актуализации: 10.08.2017
|
| Обозначение: | Серия 1.031.9-3.01 |
| Обозначение англ: | Series 1.031.9-3.01 |
| Статус: | не действует |
| Название рус.: | Выпуск 1. Перегородки. Рабочие чертежи |
| Дата добавления в базу: | 01.09.2013 |
| Дата актуализации: | 05.05.2017 |
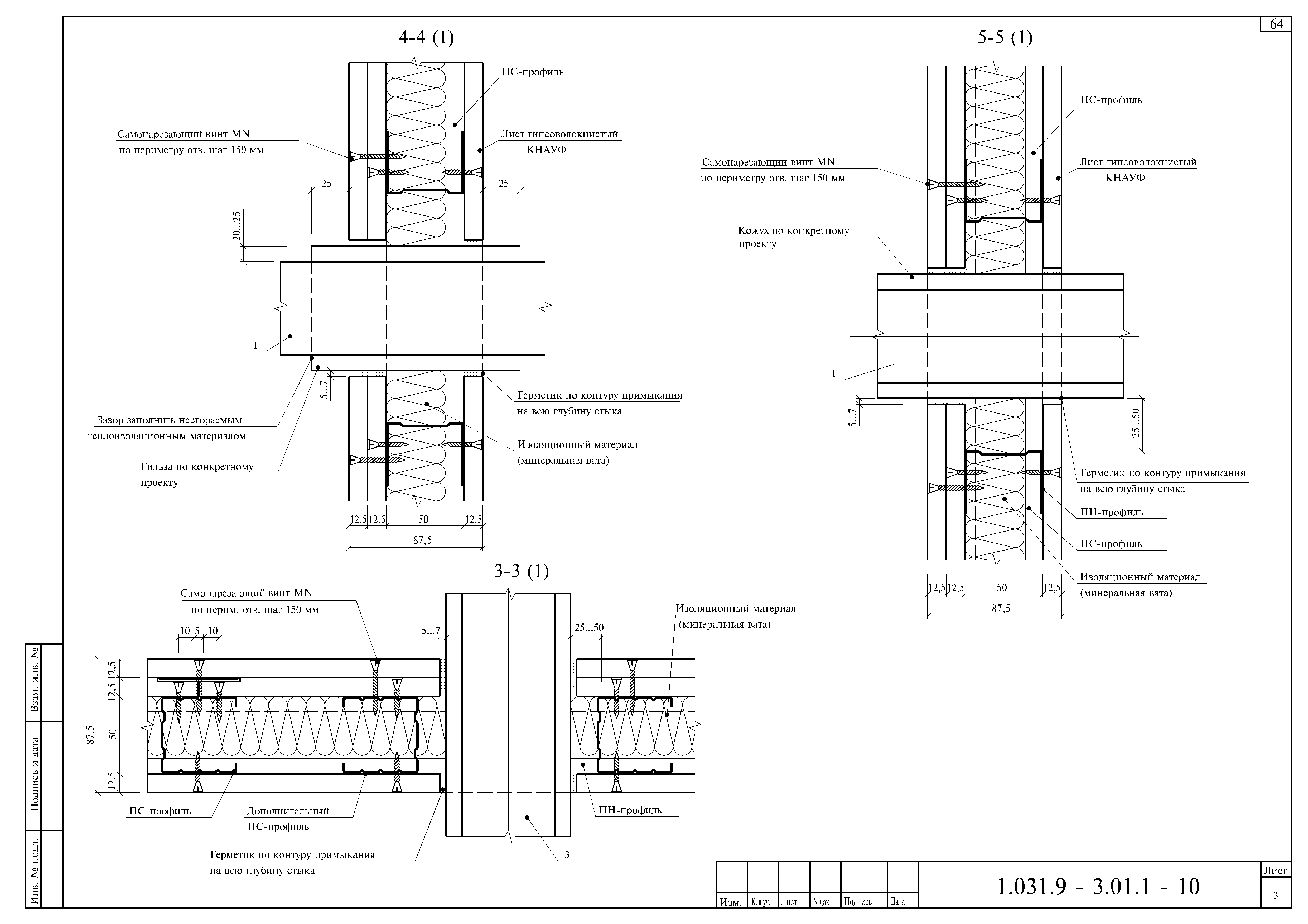
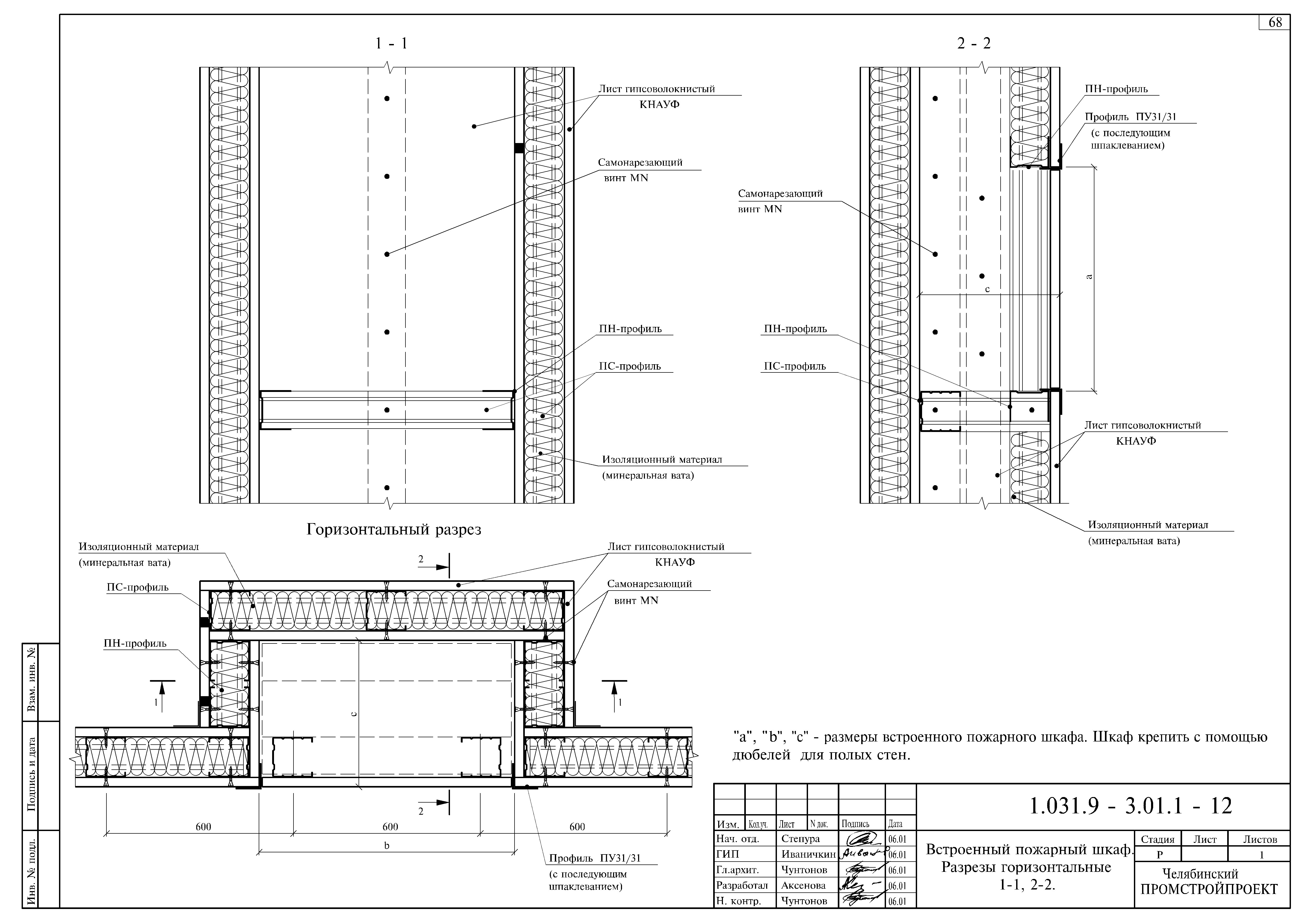
| Оглавление: | 1.031.9-3.01.1-ПЗ Пояснительная записка 1.031.9-3.01.1-1 Перегородка С 361 1.031.9-3.01.1-2 Устройство проёма в металлическом каркасе, удлинение стоечных профилей 1.031.9-3.01.1-3 Перегородка С 362 1.031.9-3.01.1-4 Перегородка С 363 1.031.9-3.01.1-5 Перегородка С 365 1.031.9-3.01.1-6 Перегородка С 366 1.031.9-3.01.1-7 Перегородка С 367 1.031.9-3.01.1-8 Перегородка С 368 1.031.9-3.01.1-9 Перегородка С 369 1.031.9-3.01.1-10 Сопряжение перегородок с коммуникационными трассами 1.031.9-3.01.1-11 Установка коробок под электрооборудование 1.031.9-3.01.1-12 Встроенный пожарный шкаф 1.031.9-3.01.1-13 Система для крепления навесного оборудования 1.031.9-3.01.1-П1 Приложение 1 1.031.9-3.01.1-П2 Приложение 2 |
| Разработан: | ЗАО НП Челябинский Промстройпроект |
| Утверждён: | 05.06.2001 Глава Администрации Челябинской области (33) |
| Принят: | КНАУФ |
| Расположен в: | |
| Чем заменён: |











































































