Информационная система
«Ёшкин Кот»

Скачать базу одним архивом
Скачать обновления
История создания базы
Карта сайта

Скачать Стреловые самоходные краны. Технические характеристики. Часть II. Пневмоколесные и гусеничные краны

Дата актуализации: 10.08.2017

Стреловые самоходные краны. Технические характеристики. Часть II. Пневмоколесные и гусеничные краны

Статус:действует
Название рус.:Стреловые самоходные краны. Технические характеристики. Часть II. Пневмоколесные и гусеничные краны
Дата добавления в базу:01.09.2013
Дата актуализации:05.05.2017
Область применения:Каталог содержит общие сведения, основные технические характеристики стреловых самоходных кранов, используемых для выполнения строительно-монтажных и погрузочно-разгрузочных работ. Каталог предназначен для использования инженерно-техническим персоналом проектных и строительных организаций, осуществляющих подбор кранов при разработке проектов организации строительства и проектов производства работ, а также для специалистов служб строительно-монтажных организаций.
Оглавление:Общая часть
Пневмоколесные краны
   1. К-161 (КС-4361)
   2. КС-4361А
   3. КС-4362 (К-166)
   4. К-255 (КС-5361)
   5. КС-5363
   6. КС-5363А
   7. КС-5363Б
   8. КС-5363В
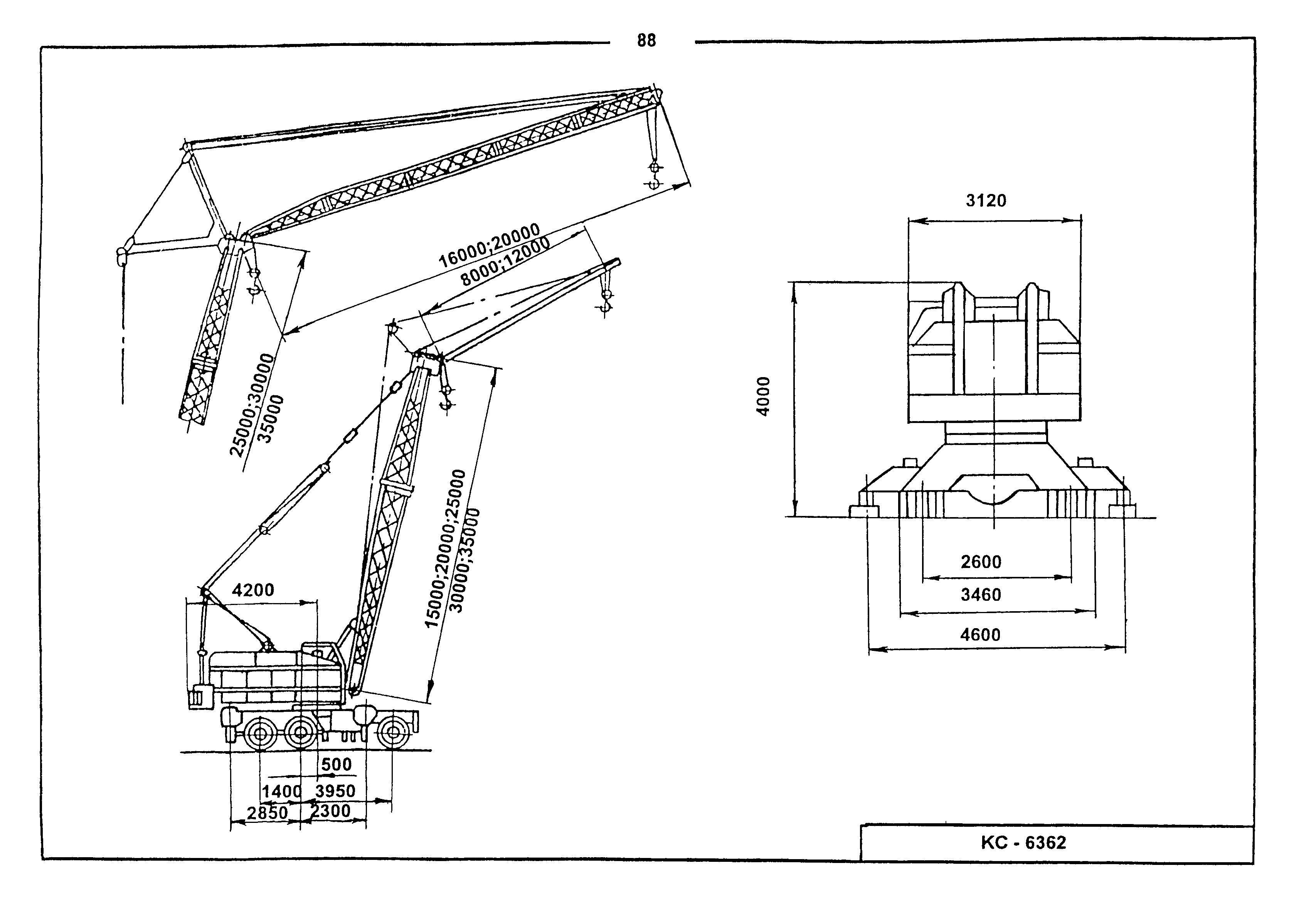
   9. КС-6362
   10. КС-7361 (К-631)
   11. КС-1001
Гусеничные краны
   1. Э-10011Д
   2. МКГ-25
   3. СКГ-25БР
   4. РДК-25
   5. РДК-25-2, РДК-25-3
   6. ДЭК-251
   7. ДЭК-25Г
   8. РДК-250-2
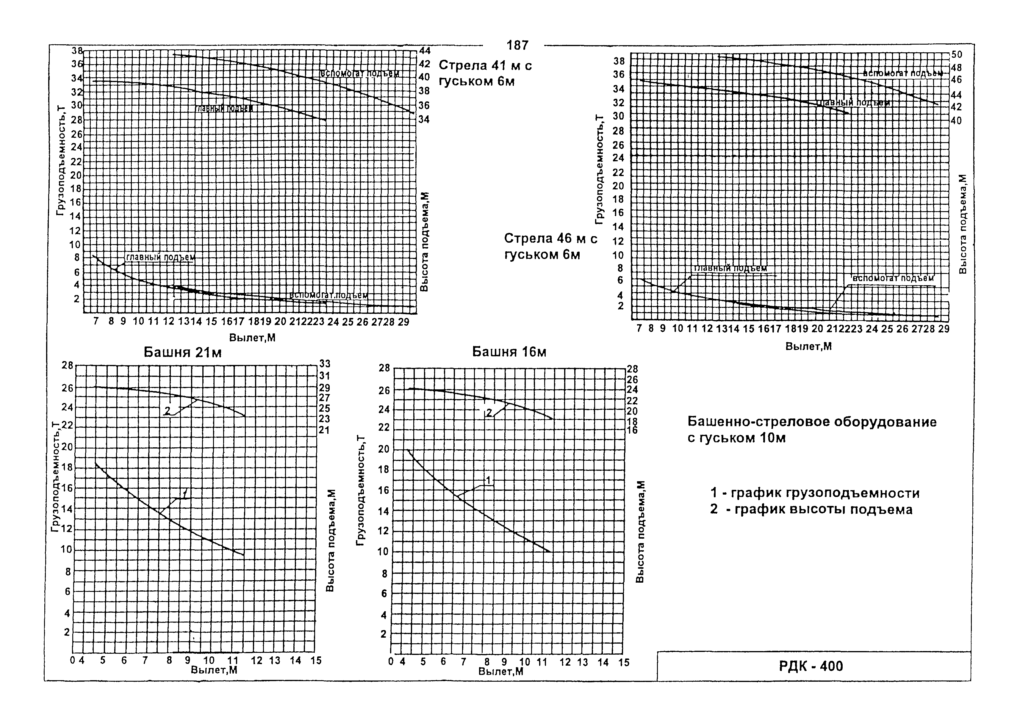
   9. РДК-400
   10. ДЭК-50
   11. Э-2508
   12. МКГ-100
   13. КС-8161
Список литературы
Разработан: ОАО ПКТИпромстрой
Утверждён:01.01.1996 ОАО ПКТИпромстрой (PKTIpromstroy OAO )
Издан: ОАО ПКТИпромстрой (1996 г. )
Расположен в:Техническая документация Экология ПОДЪЕМНО-ТРАНСПОРТНОЕ ОБОРУДОВАНИЕ Подъемное оборудование Краны Строительство Справочные документы Каталоги

© 2013 Ёшкин Кот :-) Карта сайта