| 
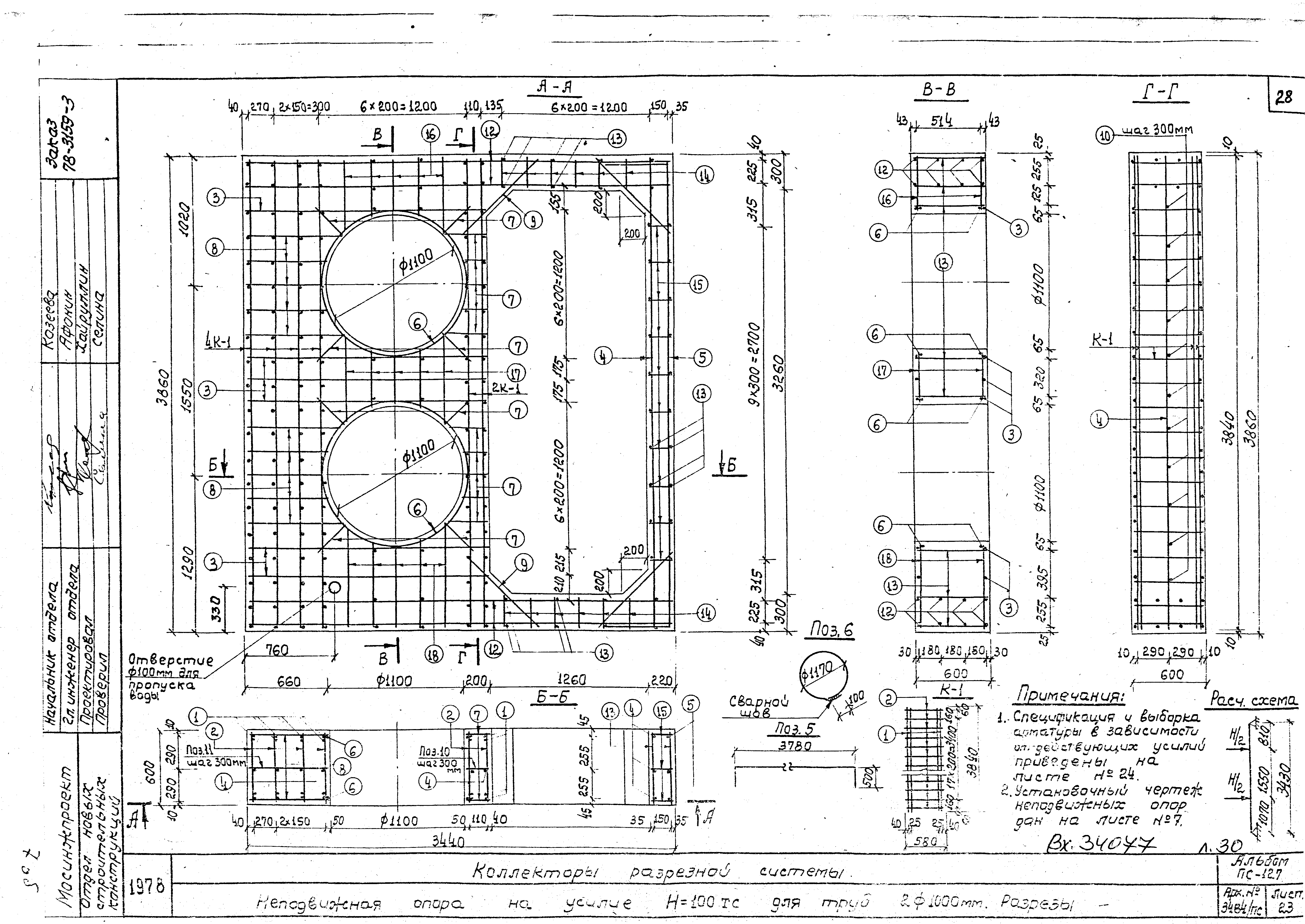
 Скачать Альбом ПС-127 Коллекторы сечением 3,0 м х 3,2 м разрезной системы. Материалы для проектированияДата актуализации: 10.08.2017   Альбом ПС-127
Коллекторы сечением 3,0 м х 3,2 м разрезной системы. Материалы для проектирования| Обозначение: |  Альбом ПС-127 |  | Обозначение англ: |  ПС-127 |  | Статус: | не определен законодательством |  | Название рус.: | Коллекторы сечением 3,0 м х 3,2 м разрезной системы. Материалы для проектирования |  | Дата добавления в базу: | 01.09.2013 |  | Дата актуализации: | 05.05.2017 |  | Дата введения: | 01.01.1978 |  | Разработан: | Мосинжпроект 
 |  | Утверждён: | 01.01.1978 Мосинжпроект (Mosinzhproject ) 
 |  | Расположен в: | 
 | 
                                    |