| 
 | ||||||||||||||||||||||||||
| 
 Скачать Альбом ПС-103 Выпуск I. Строительная часть. Рабочие чертежиДата актуализации: 10.08.2017
 | 
| Обозначение: |  Альбом ПС-103 | 
| Обозначение англ: |  ПС-103 | 
| Статус: | не определен законодательством | 
| Название рус.: | Выпуск I. Строительная часть. Рабочие чертежи | 
| Дата добавления в базу: | 01.09.2013 | 
| Дата актуализации: | 05.05.2017 | 
| Дата введения: | 01.01.1974 | 
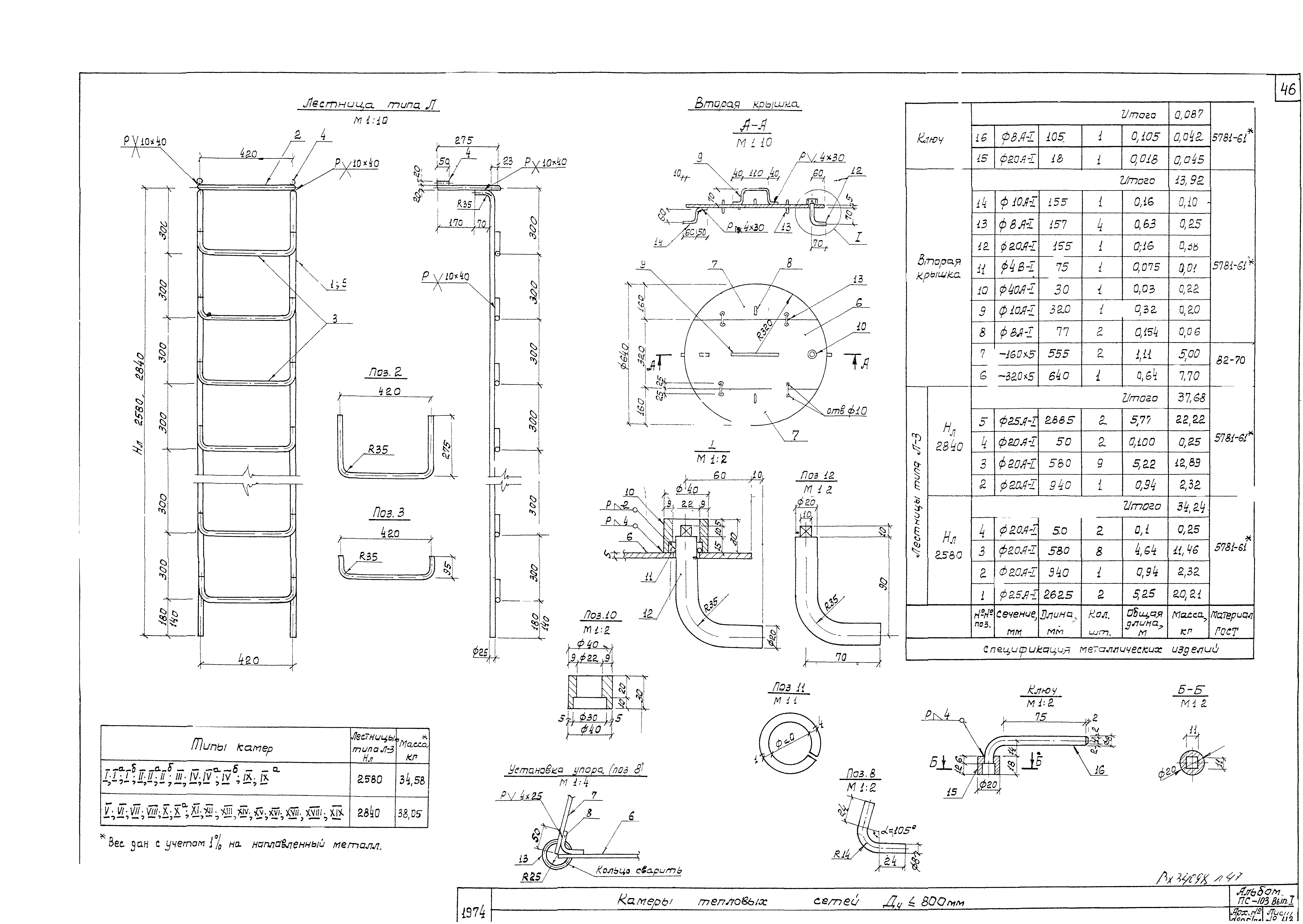
| Оглавление: | ПС-103-1 Титульный лист ПС-103-2 Содержание альбома ПС-103-3 Пояснительная записка ПС-103-4 Сводный монтаж чертежа камер для теплопроводов Ду=100-800мм без сальниковых компенсаторов ПС-103-5 Сводный монтаж чертежа камер для теплопроводов Ду=400-800мм с сальниковыми компенсаторов ПС-103-6 Основные показатели сборных железобетонных элементов камер ПС-103-7 Камера тип 1. Строительная часть ПС-103-8 Камера тип 1а. Строительная часть ПС-103-9 Камера тип 2. Строительная часть ПС-103-10 Камера тип 2а. Строительная часть ПС-103-11 Камера тип 3. Строительная часть ПС-103-12 Камера тип 4. Строительная часть ПС-103-13 Камера тип 5. Строительная часть ПС-103-14 Камера тип 6. Строительная часть ПС-103-15 Камера тип 7. Строительная часть ПС-103-16 Камера тип 8. Строительная часть ПС-103-17 Камера тип 7 и 8. Строительная часть. Армирование ПС-103-18 Камера тип 9. Строительная часть ПС-103-19 Камера тип 9. Строительная часть. Армирование ПС-103-20 Камера тип 10. Строительная часть ПС-103-21 Камера тип 10. Строительная часть ПС-103-22 Камера тип 11. Строительная часть ПС-103-23 Камера тип 11. Строительная часть. Армирование ПС-103-24 Камера тип 12. Строительная часть ПС-103-25 Камера тип 12. Строительная часть. Армирование ПС-103-26 Камера тип 13. Строительная часть ПС-103-27 Камера тип 13. Строительная часть. Армирование ПС-103-28 Камера тип 14. Строительная часть ПС-103-29 Камера тип 15. Строительная часть ПС-103-30 Камера тип 15. Строительная часть ПС-103-31 Камера тип 17. Строительная часть ПС-103-32 Камера тип 18. Строительная часть ПС-103-33 Камера тип 19. Строительная часть ПС-103-34 Конструктивный чертеж щитовых опор на усилия от 5 до 25 тонн ПС-103-35 Арматурный чертеж щитовых опор на усилия от 5 до 25 тонн ПС-103-36 Арматурный чертеж неподвижной опоры на усилия до 15 тонн ПС-103-37 Арматурный чертеж неподвижной опоры на усилия до 30 тонн ПС-103-38 Армирование монолитных участков камер. Разрезы ПС-103-39 Армирование монолитных участков камер. Разрезы, спецификация ПС-103-40 Армирование монолитных участков камер при канальной прокладке ПС-103-41 Детали крепления лестниц, детали приямков камер и установки 2-ой крышки ПС-103-42 Конструкция прохода теплопроводов через неподвижные опоры ПС-103-43 Конструкция свободного прохода теплопроводов через стены камер ПС-103-44 Конструкция примыкания каналов к камерам ПС-103-45 Устройство горловин для спуска в камеры ПС-103-46 Металлоконструкции лестниц, обустройств горловин ПС-103-47 Принципиальное решение устройства водовыпусков из камер | 
| Разработан: | Мосинжпроект | 
| Утверждён: | 01.01.1974 Мосинжпроект (Mosinzhproject ) | 
| Расположен в: | 















































