| 
 | ||||||||||||||||||||||||||
| 
 Скачать Альбом ПС-199 Камеры для разводящих и магистральных теплопроводов Ду <= 800 мм. Строительная часть. Рабочие чертежиДата актуализации: 10.08.2017
 | 
| Обозначение: |  Альбом ПС-199 | 
| Обозначение англ: |  ПС-199 | 
| Статус: | не определен законодательством | 
| Название рус.: | Камеры для разводящих и магистральных теплопроводов Ду <= 800 мм. Строительная часть. Рабочие чертежи | 
| Дата добавления в базу: | 01.09.2013 | 
| Дата актуализации: | 05.05.2017 | 
| Дата введения: | 01.01.1985 | 
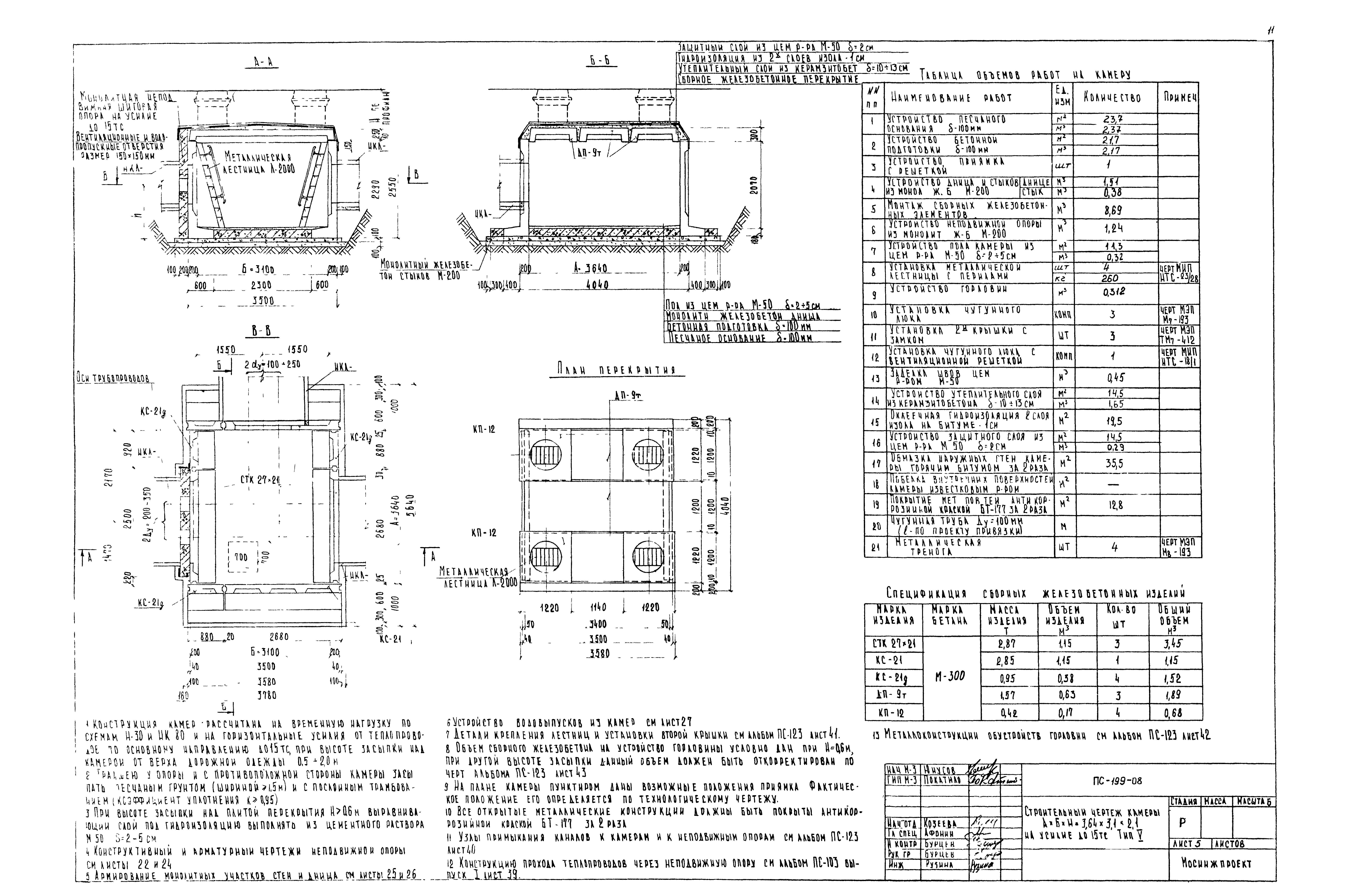
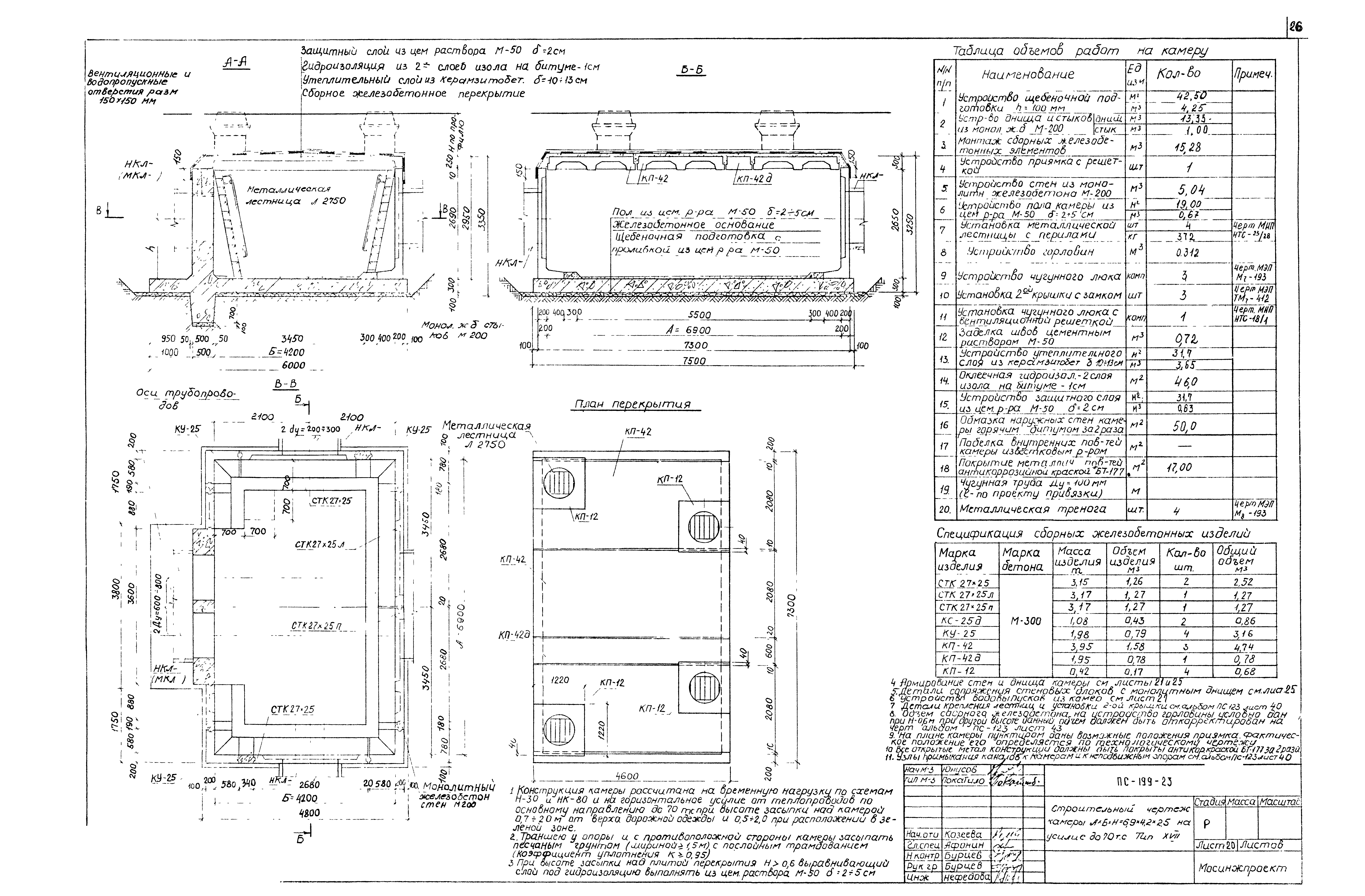
| Оглавление: | ПС-199-00 ПЗ Пояснительная записка ПС-199-01 Сводный монтажный чертеж ПС-199-02 Основные показатели сборных железобетонных изделий ПС-199-03 Основные показатели сборных железобетонных изделий ПС-199-04 Строительный чертеж камеры АхБхН=3,7х3,1х2,1 на усилие до 5 тс. Тип 1 ПС-199-05 Строительный чертеж камеры АхБхН = 3,1x2,72x2,1 на усилие до 5 тс. Тип 2 ПС-199-06 Строительный чертеж камеры АхБхН =3,1x3,64x2,1 на усилие до 5 тс. Тип 3 ПС-199-07 Строительный чертеж камеры АхБхН = 3,0x4,2x2,1 на усилие до 15 тс. Тип 4 ПС-199-08 Строительный чертеж камеры АхБхН = 3,64x3,1x2,1 на усилие до 15 тс. Тип 5 ПС-199-09 Строительный чертеж камеры АхБхН = 4,2x3,0x2,1 на усилие до 15 тс. Тип 6 ПС-199-10 Строительный чертеж камеры АхБхН = 4,2x4,2x2,1 на усилие до 15 тс. Тип 7 ПС-199-11 Строительный чертеж камеры АхБхН = 4,8x4,2x2,1 на усилие до 15 тс. Тип 8 ПС-199-12 Строительный чертеж камеры АхБхН = 4,8x4,2x2,5 на усилие до 25 тс. Тип 9 ПС-199-13 Строительный чертеж камеры АхБхН = 6,02x4,2x2,5 на усилие до 25 тс. Тип 10 ПС-199-14 Строительный чертеж камеры АхБхН = 5,41x4,2x2,1 на усилие до 70 тс. Тип 11 ПС-199-15 Строительный чертеж камеры АхБхН = 5,41x4,2x2,1 на усилие до 70 тс. Тип 11. Армирование ПС-199-16 Строительный чертеж камеры АхБхН = 6,02x4,2x2,1 на усилие до 70 тс. Тип 12 ПС-199-17 Строительный чертеж камеры АхБхН = 6,02x4,2x2,1 на усилив до 70 тс. Тип 13 ПС-199-18 Строительный чертеж камер АхБхН = 6,02x4,2x2,1 на усилие до 70 тс. Типы 12 и 13. Армирование ПС-199-19 Строительный чертеж камеры АхБхН = 6,02x4,2x2,5 на усилие до 70 тс. Тип 12 и 13. Армирование ПС-199-20 Строительный чертеж камеры АхБхН = 6,02x4,2x2,5 на усилие до '70 тс. Тип 14 ПС-199-21 Строительный чертеж камеры АхБхН = 6,02x4,2x2,5 на усилие до 70 тс. Тип 14 и 15. Армирование ПС-199-22 Строительный чертеж камеры АхБхН = 6,3x4,2x2,5 на усилие до 70 тс. Тип 16 ПС-199-23 Строительный чертеж камеры АхБхН = 6,9x4,2x2,5 на усилие до 70 тс. Тип 17 ПС-199-24 Строительный чертеж камеры АхБхН = 6,3x4,2x2,5 тип 16 и АхБхН = 6,9x4,2x2,5 тип 17 на усилие до 70 тс. Армирование ПС-199-25 Конструктивный чертеж щитовых опор на усилие от 5 то до 25 то ПС-199-26 Арматурный чертеж щитовых опор на усилив до 5 тс ПС-199-27 Арматурный чертеж щитовых опор на усилив до 15 тс и до 25 тс ПС-199-28 Армирование монолитных участков камер ПС-199-29 Армирование монолитных участков камер ПС-199-30 Принципиальное решение водовыпусков из камер | 
| Разработан: | Мосинжпроект | 
| Утверждён: | 01.01.1985 Мосинжпроект (Mosinzhproject ) | 
| Расположен в: | 




































