Информационная система
«Ёшкин Кот»

Скачать базу одним архивом
Скачать обновления
История создания базы
Карта сайта

Скачать Типовой проект 407-3-672.04 Альбом 2. Электротехническая часть. Электросиловое оборудование. Электромонтажные конструкции

Дата актуализации: 10.08.2017

Типовой проект 407-3-672.04

Альбом 2. Электротехническая часть. Электросиловое оборудование. Электромонтажные конструкции

Обозначение: Типовой проект 407-3-672.04
Обозначение англ: 407-3-672.04
Статус:не определен законодательством
Название рус.:Альбом 2. Электротехническая часть. Электросиловое оборудование. Электромонтажные конструкции
Дата добавления в базу:01.09.2013
Дата актуализации:05.05.2017
Дата введения:17.04.2006
Оглавление:ТП 407-3-672.04-СА Содержание альбома
ТП 407-3-672.04-ЭП Электротехническая часть
ТП 407-3-672.04-ЭП Общие данные (начало)
ТП 407-3-672.04-ЭП Общие данные (окончание)
ТП 407-3-672.04-ЭП Схема электрических соединений 10(6) кВ
ТП 407-3-672.04-ЭП Схема электрических соединений 0,4 кВ (начало)
ТП 407-3-672.04-ЭП Схема электрических соединений 0,4 кВ (окончание)
ТП 407-3-672.04-ЭП План и разрезы ТП (начало)
ТП 407-3-672.04-ЭП План и разрезы ТП (окончание)
ТП 407-3-672.04-ЭП Распределительное устройство низкого напряжения (РУНН). Схема электрическая принципиальная (начало)
ТП 407-3-672.04-ЭП Распределительное устройство низкого напряжения (РУНН). Схема электрическая принципиальная (продолжение)
ТП 407-3-672.04-ЭП Распределительное устройство низкого напряжения (РУНН). Схема электрическая принципиальная (окончание)
ТП 407-3-672.04-ЭП Шкаф учета. Схема электрическая принципиальная
ТП 407-3-672.04-ЭП Шкаф наружного освещения головной. Схема электрическая принципиальная (начало)
ТП 407-3-672.04-ЭП Шкаф наружного освещения головной. Схема электрическая принципиальная (продолжение)
ТП 407-3-672.04-ЭП Шкаф наружного освещения головной. Схема электрическая принципиальная (окончание)
ТП 407-3-672.04-ЭП Шкаф наружного освещения промежуточный. Схема электрическая принципиальная (начало)
ТП 407-3-672.04-ЭП Шкаф наружного освещения промежуточный. Схема электрическая принципиальная (окончание)
ТП 407-3-672.04-ЭП Кабельный журнал
ТП 407-3-672.04-ЭП План прокладки кабелей
ТП 407-3-672.04-ЭП РУ-0,4 кВ. Схема межпанельных связей
ТП 407-3-672.04-ЭП Трансформатор Т1(Т2). Ряды зажимов панелей вводов
ТП 407-3-672.04-ЭМ Электросиловое оборудование
ТП 407-3-672.04-ЭМ Общие данные
ТП 407-3-672.04-ЭМ Узлы силовых трансформаторов (начало)
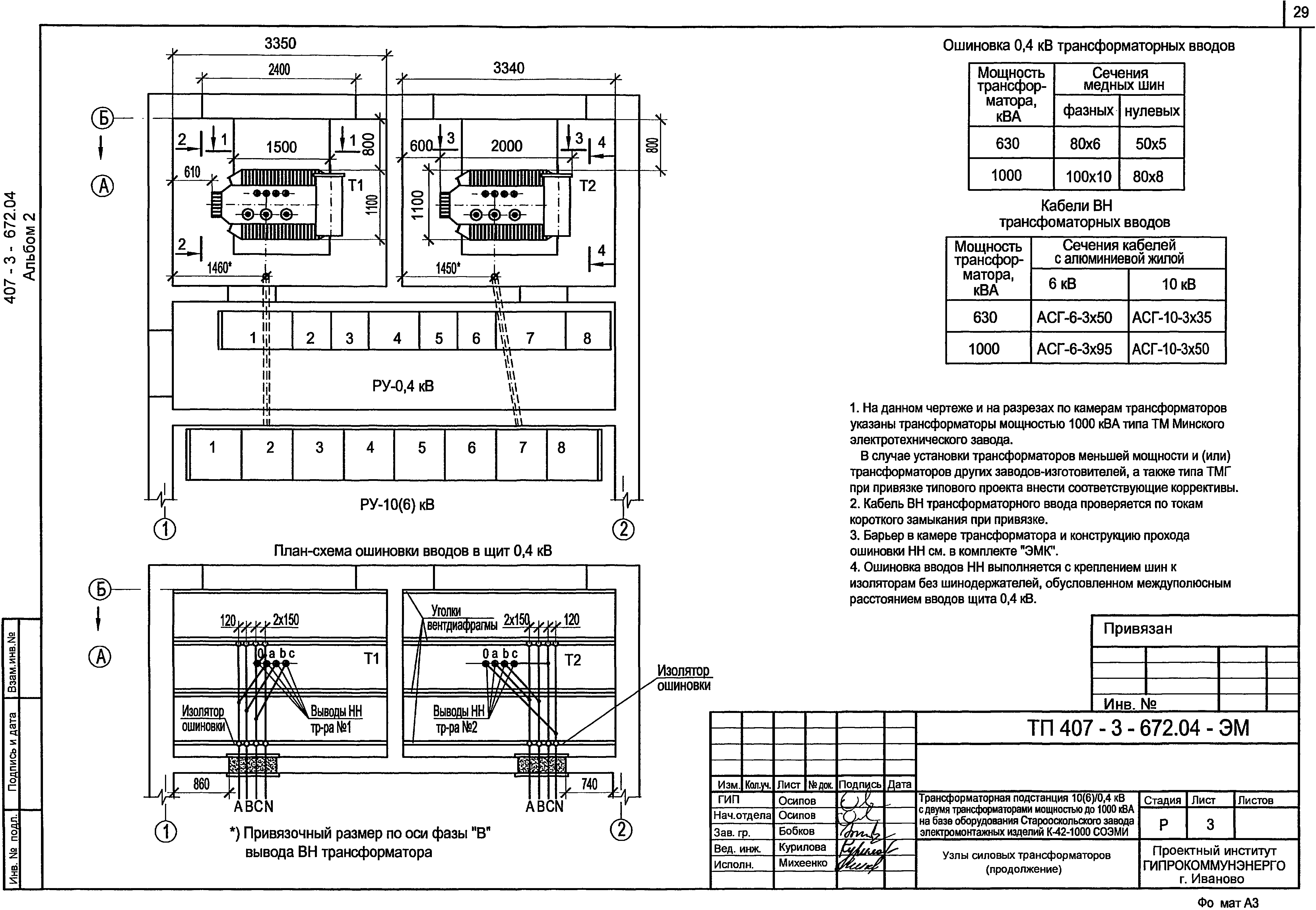
ТП 407-3-672.04-ЭМ Узлы силовых трансформаторов (продолжение)
ТП 407-3-672.04-ЭМ Узлы силовых трансформаторов (окончание)
ТП 407-3-672.04-ЭМ Схема электрического освещения и отопления
ТП 407-3-672.04-ЭМ План осветительной сети (начало)
ТП 407-3-672.04-ЭМ План осветительной сети (окончание)
ТП 407-3-672.04-ЭМ План силовой сети
ТП 407-3-672.04-ЭМ Автоматика обогрева. Схема электрическая принципиальная
ТП 407-3-672.04-ЭМ Заземление и молниезащита
ТП 407-3-672.04-ЭМК Электромонтажные конструкции
ТП 407-3-672.04-ЭМК Барьер в камере трансформатора
ТП 407-3-672.04-ЭМК Детали оборудования трансформаторных вводов
ТП 407-3-672.04-ЭМК Подставка изолирующая
ТП 407-3-672.04-ЭМК Ведомость изделий МЭЗ
Разработан: ОГУП ПИ Гипрокоммунэнерго
Утверждён:17.04.2006 ОАО Компания Электромонтаж (11)
Издан: Информационный бюллетень о нормативной, методической и типовой проектной документации ФГУП ЦПП (2006 г. (10))
Расположен в:Техническая документация Строительство Справочные документы Типовые строительные конструкции, изделия и узлы Общероссийский строительный каталог Промышленные предприятия, здания и сооружения Предприятия, здания и сооружения промышленности и электроэнергетики Электроэнергетика Устройства и подстанции распределительные
Типовой проект 407-3-672.04Типовой проект 407-3-672.04Типовой проект 407-3-672.04Типовой проект 407-3-672.04Типовой проект 407-3-672.04Типовой проект 407-3-672.04Типовой проект 407-3-672.04Типовой проект 407-3-672.04Типовой проект 407-3-672.04Типовой проект 407-3-672.04Типовой проект 407-3-672.04Типовой проект 407-3-672.04Типовой проект 407-3-672.04Типовой проект 407-3-672.04Типовой проект 407-3-672.04Типовой проект 407-3-672.04Типовой проект 407-3-672.04Типовой проект 407-3-672.04Типовой проект 407-3-672.04Типовой проект 407-3-672.04Типовой проект 407-3-672.04Типовой проект 407-3-672.04Типовой проект 407-3-672.04Типовой проект 407-3-672.04Типовой проект 407-3-672.04Типовой проект 407-3-672.04Типовой проект 407-3-672.04Типовой проект 407-3-672.04Типовой проект 407-3-672.04Типовой проект 407-3-672.04Типовой проект 407-3-672.04Типовой проект 407-3-672.04Типовой проект 407-3-672.04Типовой проект 407-3-672.04Типовой проект 407-3-672.04Типовой проект 407-3-672.04Типовой проект 407-3-672.04Типовой проект 407-3-672.04Типовой проект 407-3-672.04Типовой проект 407-3-672.04Типовой проект 407-3-672.04Типовой проект 407-3-672.04Типовой проект 407-3-672.04

© 2013 Ёшкин Кот :-) Карта сайта