| ||||||||||||||||||||||||||||||
Скачать Серия 5.905-23.07 Выпуск 1. Рабочие чертежиДата актуализации: 10.08.2017
|
| Обозначение: | Серия 5.905-23.07 |
| Обозначение англ: | Series 5.905-23.07 |
| Статус: | не определен законодательством |
| Название рус.: | Выпуск 1. Рабочие чертежи |
| Дата добавления в базу: | 01.09.2013 |
| Дата актуализации: | 05.05.2017 |
| Дата введения: | 01.03.2007 |
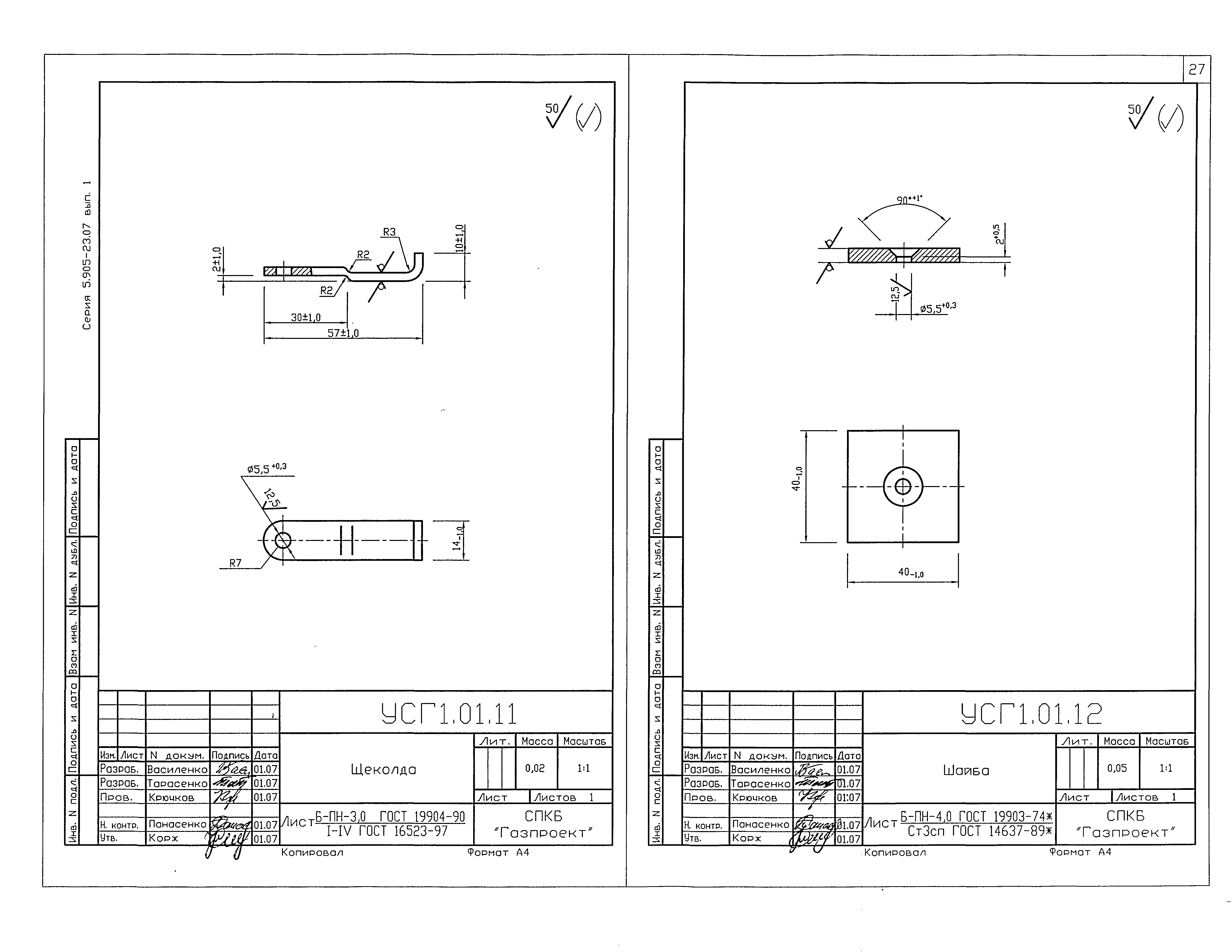
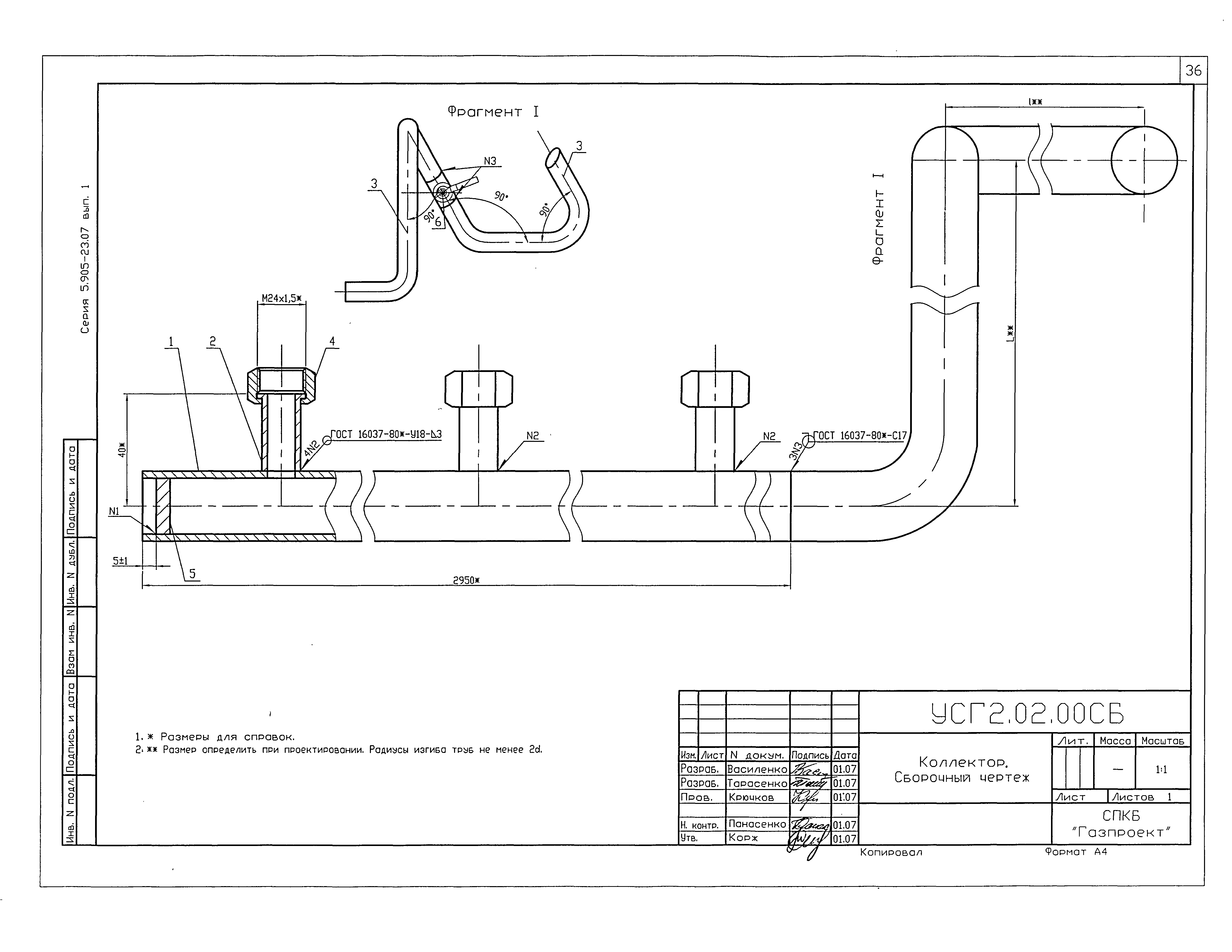
| Область применения: | Рабочие чертежи настоящей типовой документации применяются при проектировании баллонных установок СУГ, служащих в качестве источников газоснабжения жилых, административных, общественных, производственных и бытовых зданий, СУГ по ГОСТ 20448-90* с избыточным давлением до регулятора до 1,6 МПа (16 кгс/кв.см) |
| Разработан: | ОАО СПКБ Газпроект -БТЦ |
| Утверждён: | 16.02.2007 АО Росгазификация (Rosgazifikatsiya AO 5) |
| Издан: | Информационный бюллетень о нормативной, методической и типовой проектной документации ФГУП ЦПП (2007 г. (5)) |
| Расположен в: | |
| Заменяет собой: |
































































