| ||||||||||||||||||||||||||
Скачать Серия 3.501.3-185.03 Выпуск 0-1. Конструкции круглого очертания. Материалы для проектированияДата актуализации: 10.08.2017
|
| Обозначение: | Серия 3.501.3-185.03 |
| Обозначение англ: | Series 3.501.3-185.03 |
| Статус: | не определен законодательством |
| Название рус.: | Выпуск 0-1. Конструкции круглого очертания. Материалы для проектирования |
| Дата добавления в базу: | 01.09.2013 |
| Дата актуализации: | 05.05.2017 |
| Дата введения: | 01.01.2006 |
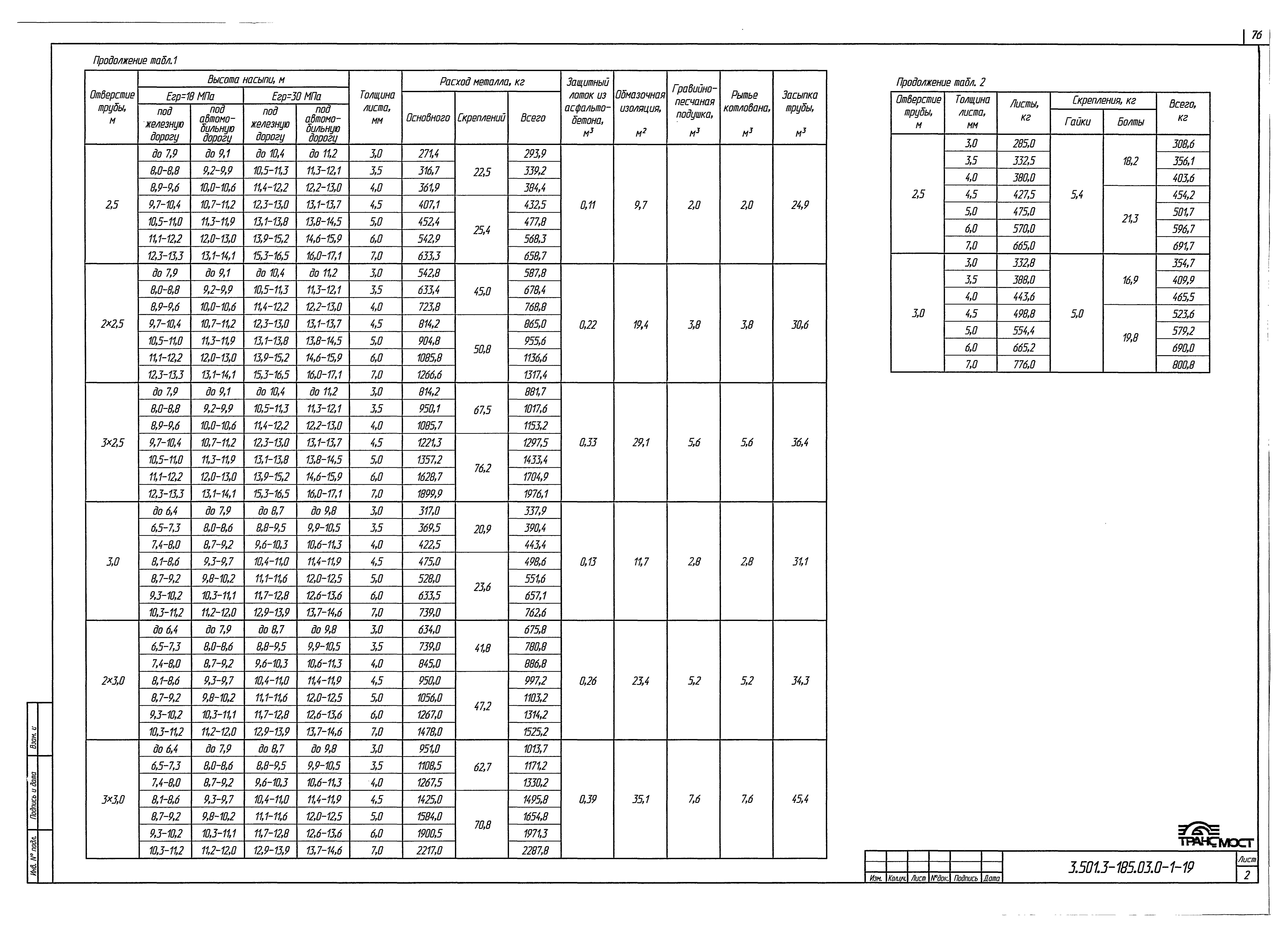
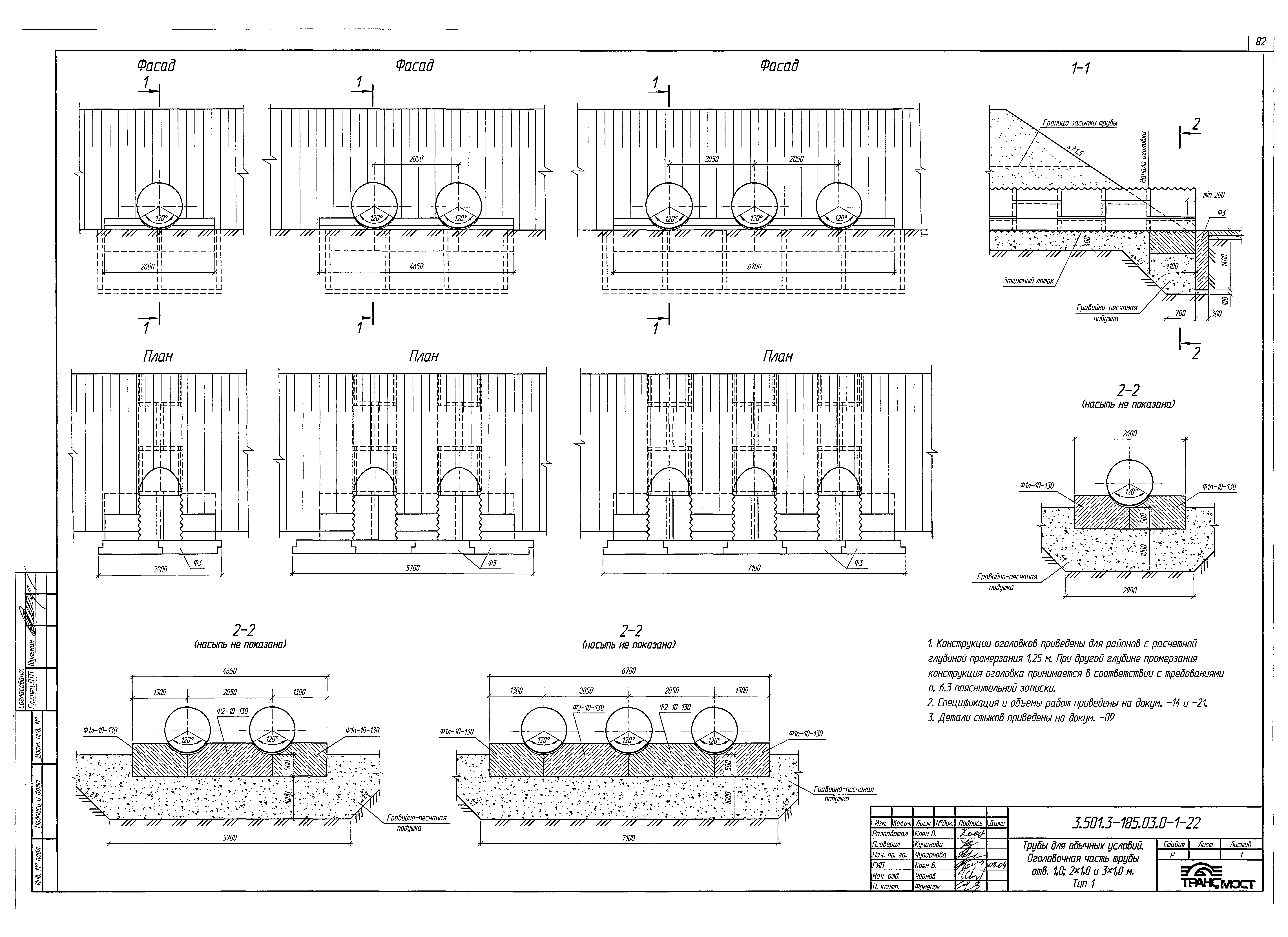
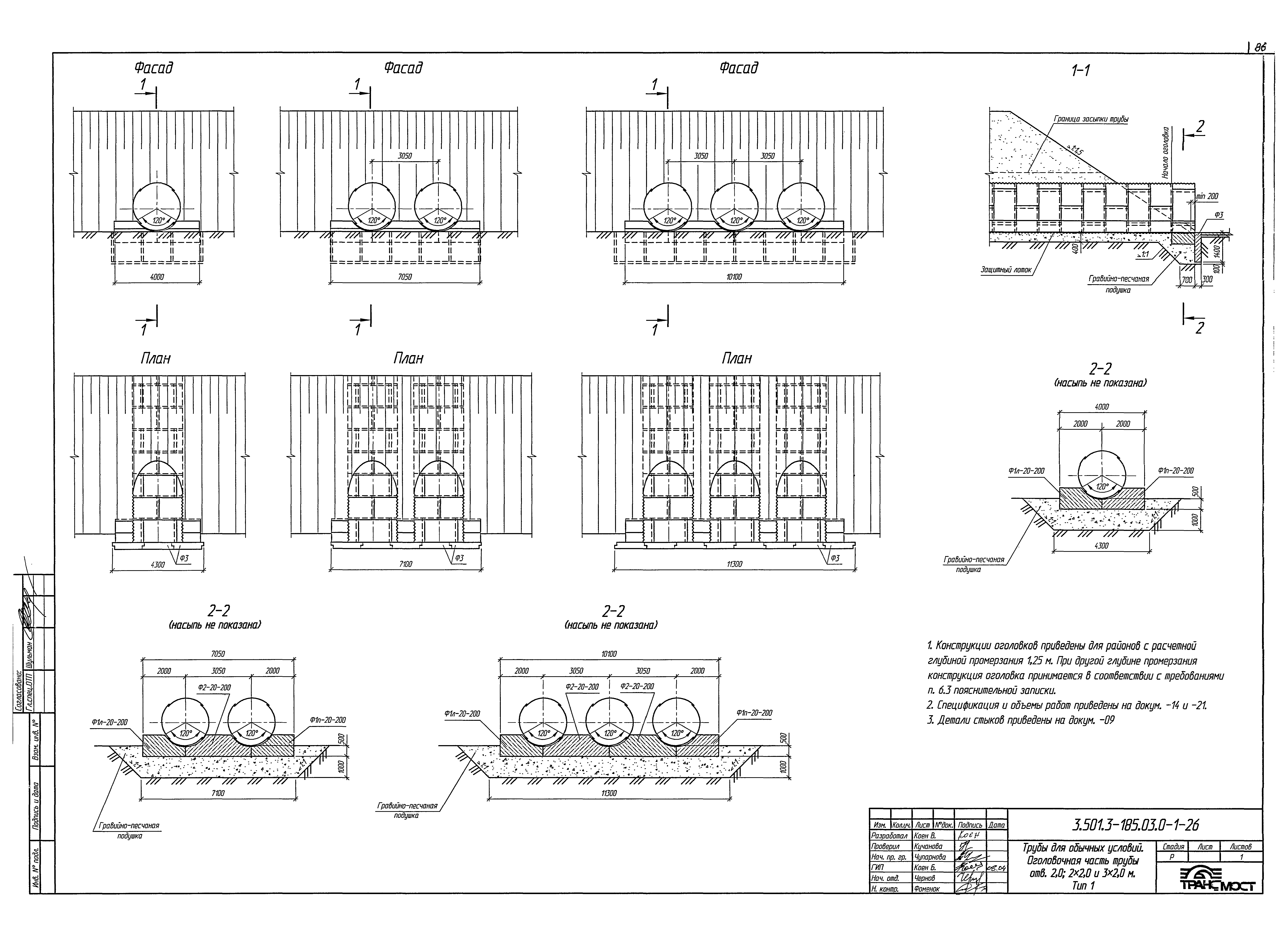
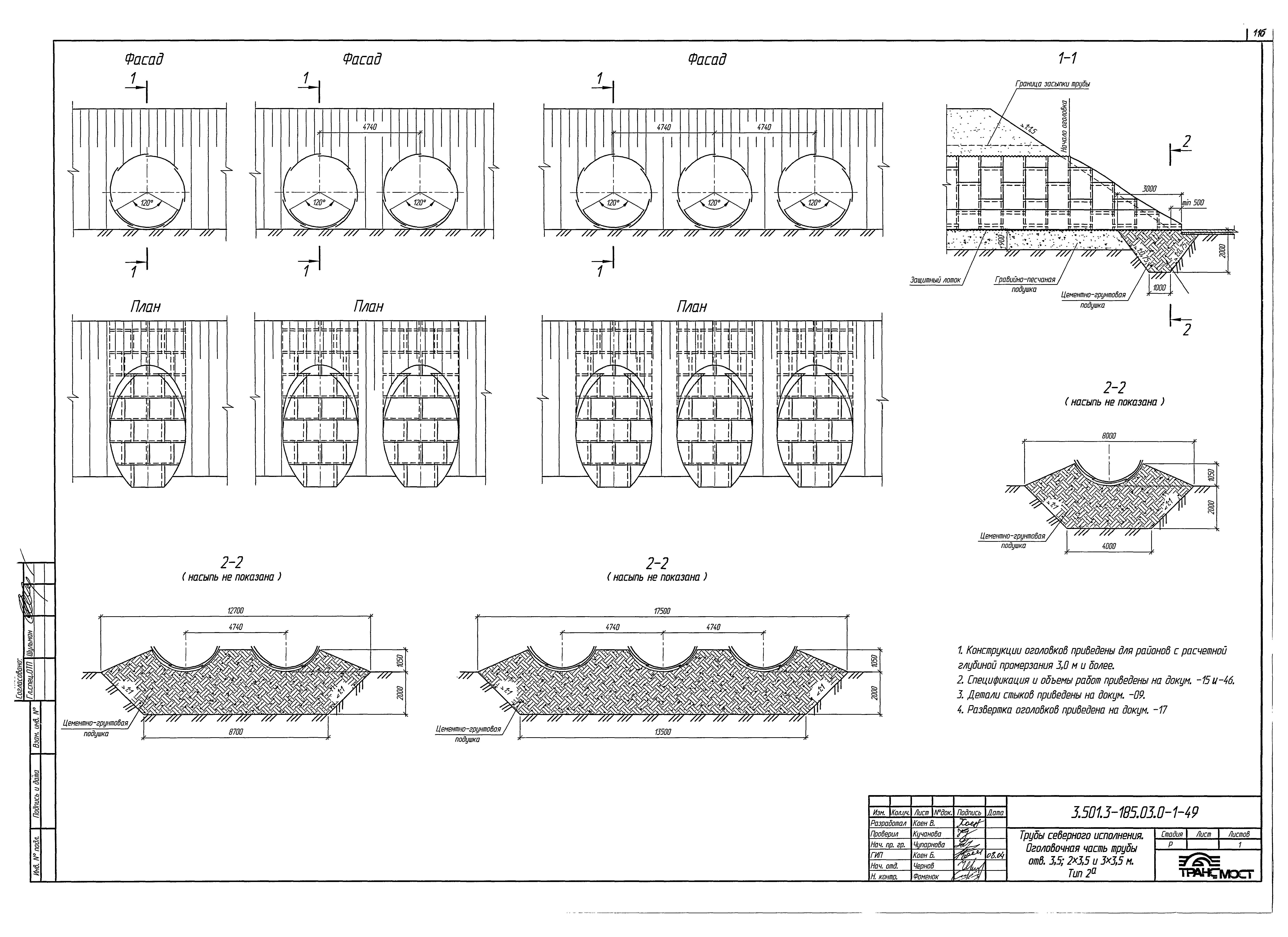
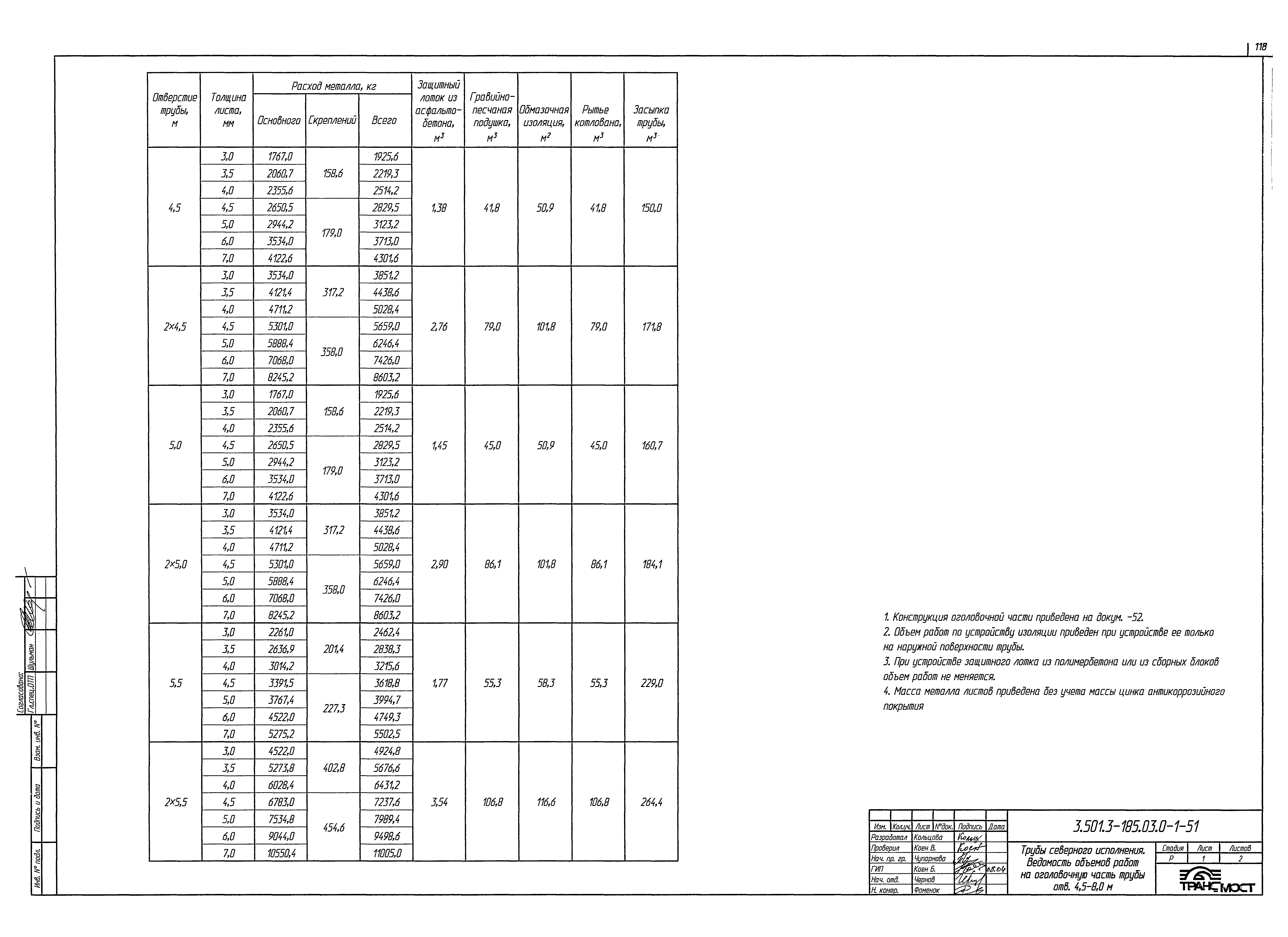
| Оглавление: | 3.501.3-185.03.0-1-ПЗ Пояснительная записка 3.501.3-185.03.0-1-01 Гидравлические расчеты 3.501.3-185.03.0-1-02 Графики водопропускной способности труб 3.501.3-185.03.0-1-03 Гидравлические расчеты труб на каменной подсыпке 3.501.3-185.03.0-1-04 Графики расчетных давлений на грунт 3.501.3-185.03.0-1-05 Номенклатура металлических элементов труб 3.501.3-185.03.0-1-06 Номенклатура бетонных блоков 3.501.3-185.03.0-1-07 Блок бетонный Ф 3.501.3-185.03.0-1-08 Сборный защитный лоток 3.501.3-185.03.0-1-09 Детали стыков 3.501.3-185.03.0-1-10 Порядок сборки трубы 3.501.3-185.03.0-1-11 Спецификация металла на секции труб отв. 1,0 - 4,0 м 3.501.3-185.03.0-1-12 Спецификация металла на секции труб отв. 4,5 - 8,0 м 3.501.3-185.03.0-1-13 Секции труб 3.501.3-185.03.0-1-14 Спецификация металла на оголовную часть трубы отв. 1,0 - 2,0 м. Тип 1 и 1а 3.501.3-185.03.0-1-15 Спецификация металла на оголовную часть трубы отв. 2,5 - 4,0 м. Тип 2 и 2а 3.501.3-185.03.0-1-16 Спецификация металла на оголовную часть трубы отв. 4,5 - 8,0 м 3.501.3-185.03.0-1-17 Развертки оголовных частей труб отв. 2,5; 3,0; 3,5; 4,0; 4,5; 5,0; 5,5; 6,0; 6,5; 7,0; 7,5; и 8,0 м. Тип 2 и 2а 3.501.3-185.03.0-1-18 Трубы для обычных условий. Средняя часть трубы. Схема засыпки трубы 3.501.3-185.03.0-1-19 Трубы для обычных условий. Ведомость объемов работ на среднюю часть трубы отв. 1,0 - 4,0 м 3.501.3-185.03.0-1-20 Трубы для обычных условий. Ведомость объемов работ на среднюю часть трубы отв. 4,5 - 8,0 м 3.501.3-185.03.0-1-21 Трубы для обычных условий. Ведомость объемов работ на оголовную часть трубы отв. 1,0 - 2,0 м. Тип 1 и 1а 3.501.3-185.03.0-1-22 Трубы для обычных условий. Оголовочная часть трубы отв. 1,0; 2х1,0 и 3х1,0 м. Тип 1 3.501.3-185.03.0-1-23 Трубы для обычных условий. Оголовочная часть трубы отв. 1,0; 2х1,0 и 3х1,0 м. Тип 1а 3.501.3-185.03.0-1-24 Трубы для обычных условий. Оголовочная часть трубы отв. 1,5; 2х1,5 и 3х1,5 м. Тип 1 3.501.3-185.03.0-1-25 Трубы для обычных условий. Оголовочная часть трубы отв. 1,5; 2х1,5 и 3х1,5 м. Тип 1а 3.501.3-185.03.0-1-26 Трубы для обычных условий. Оголовочная часть трубы отв. 2,0; 2х2,0 и 3х2,0 м. Тип 1 3.501.3-185.03.0-1-27 Трубы для обычных условий. Оголовочная часть трубы отв. 2,0; 2х2,0 и 3х2,0 м. Тип 1а 3.501.3-185.03.0-1-28 Трубы для обычных условий. Ведомость объемов работ на оголовную часть трубы отв. 2,5 - 4,0 м. Тип 2 и 2а 3.501.3-185.03.0-1-29 Трубы для обычных условий. Оголовочная часть трубы отв. 2,5; 2х2,5 и 3х2,5 м. Тип 2 3.501.3-185.03.0-1-30 Трубы для обычных условий. Оголовочная часть трубы отв. 2,5; 2х2,5 и 3х2,5 м. Тип 2а 3.501.3-185.03.0-1-31 Трубы для обычных условий. Оголовочная часть трубы отв. 3,0; 2х3,0 и 3х3,0 м. Тип 2 3.501.3-185.03.0-1-32 Трубы для обычных условий. Оголовочная часть трубы отв. 3,0; 2х3,0 и 3х3,0 м. Тип 2а 3.501.3-185.03.0-1-33 Трубы для обычных условий. Оголовочная часть трубы отв. 3,5; 2х3,5 и 3х3,5 м. Тип 2 3.501.3-185.03.0-1-34 Трубы для обычных условий. Оголовочная часть трубы отв. 3,5; 2х3,5 и 3х3,5 м. Тип 2а 3.501.3-185.03.0-1-35 Трубы для обычных условий. Оголовочная часть трубы отв. 4,0; 2х4,0 и 3х4,0 м. Тип 2 3.501.3-185.03.0-1-36 Трубы для обычных условий. Оголовочная часть трубы отв. 4,0; 2х4,0 и 3х4,0 м. Тип 2а 3.501.3-185.03.0-1-37 Трубы для обычных условий. Ведомость объемов работ на оголовную часть трубы отв. 4,5 - 8,0 м 3.501.3-185.03.0-1-38 Трубы для обычных условий. Оголовочная часть трубы отв. 4,5 - 8,0 м 3.501.3-185.03.0-1-39 Трубы для обычных условий. Пример оголовочной части трубы отв. 1,5 м при расчетной глубине промерзания 2,0м. Тип 1а 3.501.3-185.03.0-1-40 Трубы северного исполнения. Средняя часть трубы. Схема засыпки трубы 3.501.3-185.03.0-1-41 Трубы северного исполнения. Ведомость объемов работ на среднюю часть трубы отв. 1,5 - 4,0 м 3.501.3-185.03.0-1-42 Трубы северного исполнения. Ведомость объемов работ на среднюю часть трубы отв. 4,5 - 8,0 м 3.501.3-185.03.0-1-43 Трубы северного исполнения. Ведомость объемов работ на оголовочную часть трубы отв. 1,5 - 2,0 м. Тип 1а 3.501.3-185.03.0-1-44 Трубы северного исполнения. Оголовочная часть трубы отв. 1,5; 2х1,5 и 3х1,5 м. Тип 1а 3.501.3-185.03.0-1-45 Трубы северного исполнения. Оголовочная часть трубы отв. 2,0; 2х2,0 и 3х2,0 м. Тип 1а 3.501.3-185.03.0-1-46 Трубы северного исполнения. Ведомость объемов работ на оголовочную часть трубы отв. 2,5 - 4,0 м. Тип 2а 3.501.3-185.03.0-1-47 Трубы северного исполнения. Оголовочная часть трубы отв. 2,5; 2х2,5 и 3х2,5 м. Тип 2а 3.501.3-185.03.0-1-48 Трубы северного исполнения. Оголовочная часть трубы отв. 3,0; 2х3,0 и 3х3,0 м. Тип 2а 3.501.3-185.03.0-1-49 Трубы северного исполнения. Оголовочная часть трубы отв. 3,5; 2х3,5 и 3х3,5 м. Тип 2а 3.501.3-185.03.0-1-50 Трубы северного исполнения. Оголовочная часть трубы отв. 4,0; 2х4,0 и 3х4,0 м. Тип 2а 3.501.3-185.03.0-1-51 Трубы северного исполнения. Ведомость объемов работ на оголовочную часть трубы отв. 4,5 - 8,0 м 3.501.3-185.03.0-1-52 Трубы северного исполнения. Оголовочная часть трубы отв. 4,5 - 8,0 м 3.501.3-185.03.0-1-53 Трубы на косогорах 3.501.3-185.03.0-1-54 Трубы в узких логах и прорезях. Схемы расположения 3.501.3-185.03.0-1-55 Укрепление монолитным бетоном. Конструкция укрепления 3.501.3-185.03.0-1-56 Укрепление монолитным бетоном. Ведомость объемов работ 3.501.3-185.03.0-1-57 Укрепление сборными блоками П-1. Конструкция укреплений 3.501.3-185.03.0-1-58 Укрепление сборными блоками П-1. Ведомость объемов работ 3.501.3-185.03.0-1-59 Укрепление сборными блоками ГП. Конструкция укреплений 3.501.3-185.03.0-1-60 Укрепление сборными блоками ГП. Ведомость объемов работ 3.501.3-185.03.0-1-61 Конструкция конца укрепления 3.501.3-185.03.0-1-62 Укрепление каменной наброской 3.501.3-185.03.0-1-63 Примеры конструкции. Общие данные 3.501.3-185.03.0-1-64 Примеры конструкции. Пример 1. Водопропускная труба отв. 2,0 м под автомобильную дорогу 3.501.3-185.03.0-1-65 Примеры конструкции. Пример 2. Водопропускная труба отв. 2х1,5 м под автомобильную дорогу 3.501.3-185.03.0-1-66 Примеры конструкции. Пример 3. Водопропускная труба отв. 2,5 м на слабых грунтах под железную дорогу 3.501.3-185.03.0-1-67 Примеры конструкции. Пример 4. Водопропускная труба отв. 1,5 м на косогоре под железную дорогу 3.501.3-185.03.0-1-68 Примеры конструкции. Пример 5. Путепровод отв. 8,0 м (габарит "С") на железной дороге 3.501.3-185.03.0-1-69 Примеры конструкции. Пример 6. Путепровод отв. 2х7,0 м (Г-4,5) на автомобильной дороге |
| Разработан: | ОАО Трансмост |
| Утверждён: | 02.08.2005 ОАО Алексинстройконструкция (423/09) |
| Расположен в: |















































































































































