| ||||||||||||||||||||||||||||
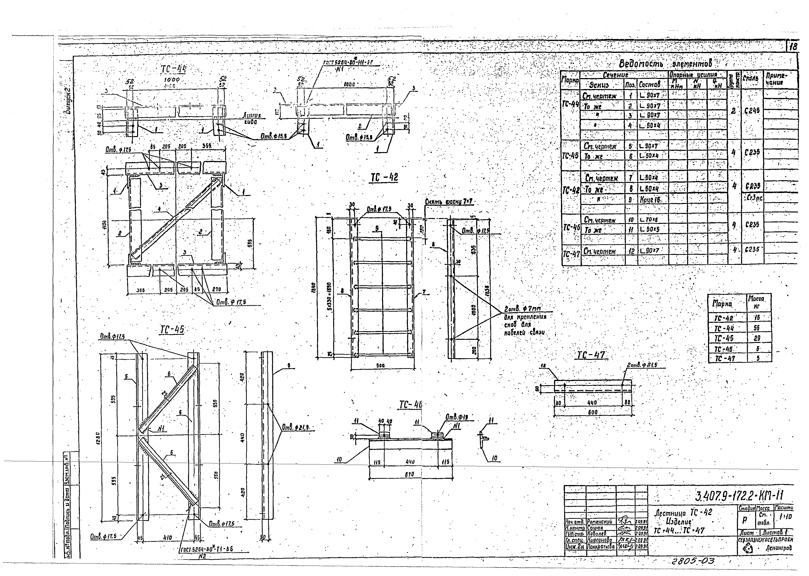
Скачать Серия 3.407.9-172 Выпуск 2. Стальные конструкции. Чертежи КМДата актуализации: 10.08.2017
|
| Обозначение: | Серия 3.407.9-172 |
| Обозначение англ: | Series 3.407.9-172 |
| Статус: | не определен законодательством |
| Название рус.: | Выпуск 2. Стальные конструкции. Чертежи КМ |
| Дата добавления в базу: | 01.09.2013 |
| Дата актуализации: | 05.05.2017 |
| Дата введения: | 01.11.1991 |
| Разработан: | Севзапэнергосетьпроект |
| Утверждён: | 18.09.1991 Минэнерго СССР (USSR Minenergo 40) |
| Издан: | Севзапэнергосетьпроект (1991 г. ) |
| Расположен в: | |
| Заменяет собой: |
























